
Snow Peak Cafe
중국 장쑤성 쑤저우, 졸정원 북측에 인접한 마트로 럭셔리 센터 내에 자리한 Snow Peak Cafe는 1950년대에 지어진 적벽돌 창고를 개조한 프로젝트이다. 한때 22개의 붉은 벽돌 창고로 구성되었던 이 부지는 현재 쑤저우 전통 정원의 질서와 자연의 흐름이 공존하는 장소로 재편되었다. 이 카페는 산업 유산이 지닌 기억과 브랜드가 추구하는 자연 감각을 하나의 공간 언어로 엮어낸다.
설계를 맡은 키키 아키(KiKi ARCHi)는 스노우피크의 핵심 철학인 ‘Embrace Your Nature’를 공간적으로 해석하는 데 집중했다. 설계는 최소 개입의 원칙 아래 기존 건축의 구조와 적벽돌 질감을 최대한 보존하는 데서 출발했다. 과거의 흔적을 지우기보다, 지역적 요소를 새로운 형식 언어로 재조합함으로써 브랜드의 정체성과 장소성을 동시에 드러내는 전략이다. 결과적으로 공간은 개방적이면서도 유연한 흐름을 갖추고, 자연에 대한 감각이 은근하게 스며든다.
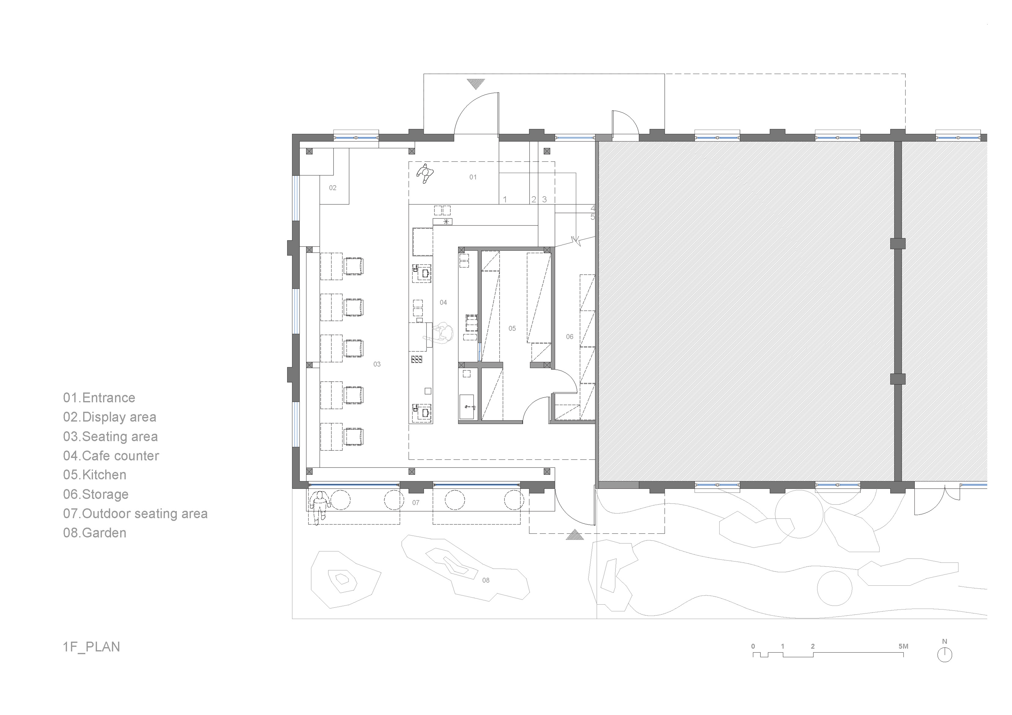
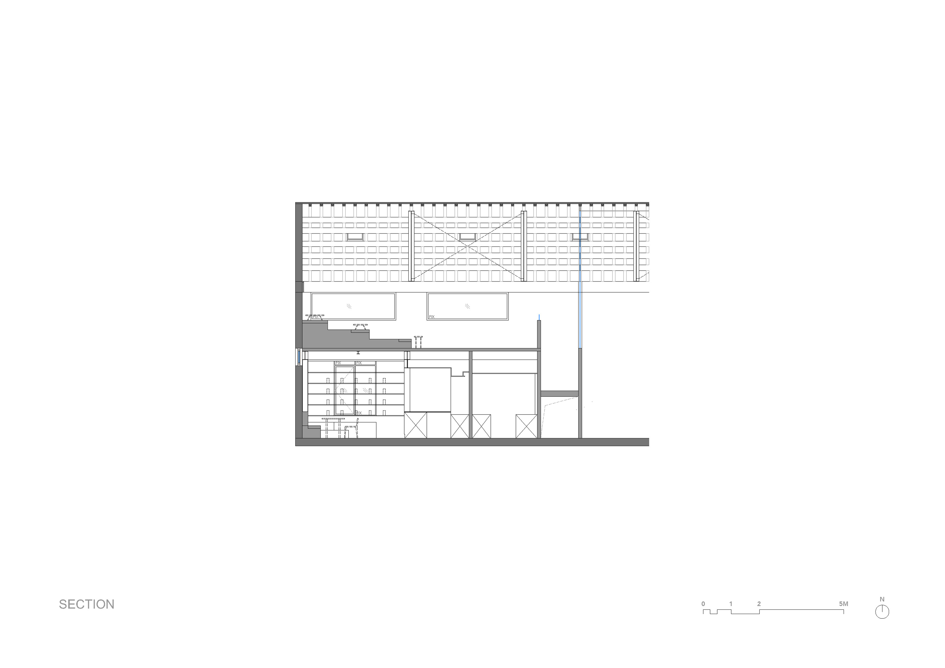
1층에 들어서면 공간의 중심에 배치된 다기능 바가 시선을 이끈다. 이 바는 브랜드 전시, 핸드드립 커피 제조, 디스플레이, 계산 기능을 모두 수용하며 동선과 시각적 중심을 형성한다. 적벽돌이 층층이 쌓인 구조 논리를 연상시키는 목재 스트립을 겹겹이 쌓아 구성했고, 상부에는 스틸 패널을 얹어 재료 간의 대비를 강조했다. 스틸 표면은 마이크로 시멘트로 마감된 계단으로 자연스럽게 이어지며, 하나의 연속된 디스플레이 면을 형성한다. 이 재료적 대화는 천장과 좌석 영역까지 확장되어 공간 전체의 일관성을 만든다.
바 옆으로 놓인 마이크로 시멘트 계단은 바닥에서 자라난 듯 자연스럽게 2층으로 이어진다. 절제된 형태의 이 계단은 단순한 수직 동선이 아니라, 전시와 흐름을 동시에 조직하는 공간 장치로 작동한다. 별도의 구조물을 삽입하기보다는, 공간의 연속성을 강화하는 내부 리듬으로 기능한다.
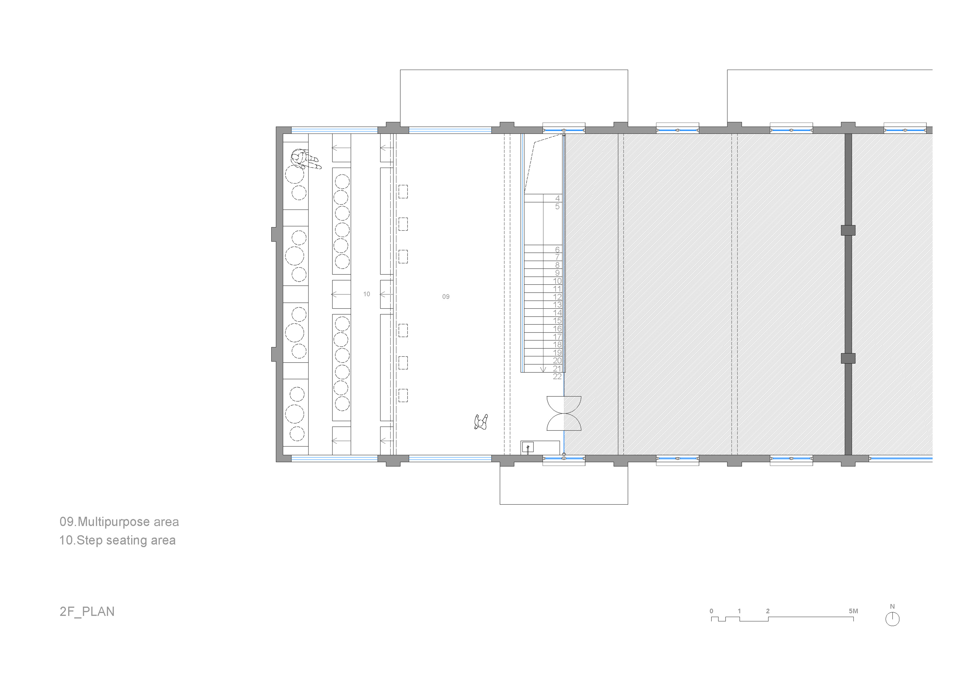
2층에서는 보다 정제된 분위기가 펼쳐진다. 재사용한 적벽돌로 만든 단차형 좌석이 공간을 고정시키고, 가느다란 목재 스트립이 좌석의 경계를 은근하게 구분한다. 이 구성은 자연 지형 속에 머무는 듯한 감각을 유도하며, 거친 재료의 진정성과 편안한 체류 경험 사이의 균형을 이룬다. 기존 목재 보 구조는 흰색으로 도장되어 벽돌과 목재의 시각적 무게를 완화하고, ‘Embrace Your Nature’라는 브랜드 메시지를 지역적 색감으로 재해석한다.
공간 전반에는 목재, 적벽돌, 정제된 스틸 패널, 마이크로 시멘트가 사용되었다. 거친 지역적 질감과 현대적 공예의 정밀함은 충돌하지 않고 서로를 보완한다. 자연에 반응하는 원초적 재료 위에 세심하게 다듬어진 디테일이 더해지며, 공간은 조용하지만 분명한 공존의 감각을 드러낸다.
Snow Peak Cafe 쑤저우는 자연에 대한 ‘최소 개입’이라는 브랜드의 태도를 도시 공간 안에서 실천한다. 이 프로젝트는 산업 유산을 존중하는 절제된 개입을 통해, 스노우피크가 추구하는 아웃도어 라이프스타일의 미학을 일상의 공간으로 확장한다. 자연의 거칠음과 도시의 세밀함이 균형을 이루는 이 카페는, 도심 속에서도 자연의 시적 감각을 경험할 수 있는 하나의 장면을 만들어낸다.























건축가 키키 아키(KiKi ARCHi)
위치 중국 장쑤성 쑤저우
용도 카페, 상업공간
연면적 200㎡
준공 2024.10
대표건축가 Yoshihiko Seki
디자인팀 Saika Akiyoshi, Takahito Yagyuda
사진작가 Ruijing Photo Beijing
'Interior Project > Cafe&Restaurant' 카테고리의 다른 글
| 격자 위에 얹은 동양의 리듬, ‘MOSS’ 레스토랑 / 스튜디오8 아키텍츠 (0) | 2026.03.11 |
|---|---|
| 켜켜이 쌓은 점토벽돌, 둥글게 말린 공간의 밀도 / 석철목 (0) | 2025.12.15 |
| 아치와 테라조가 만든 조용한 우아함, 비스트로 인테리어 / 아틀리에 레알리테 (0) | 2025.12.04 |
| 테라조와 색의 레이어로 재구성한 비스트로 인테리어 / 마르케타 브로모바 아키텍티 (0) | 2025.11.21 |
| 바와 그리드 천장이 만드는 카페 인테리어 / 이리 루카스 아틀리에 (0) | 2025.11.19 |
마실와이드 | 등록번호 : 서울, 아03630 | 등록일자 : 2015년 03월 11일 | 마실와이드 | 발행ㆍ편집인 : 김명규 | 청소년보호책임자 : 최지희 | 발행소 : 서울시 마포구 월드컵로8길 45-8 1층 | 발행일자 : 매일



