
일산 장항동에 자리잡은 적색의 새둥지
일산 장항동에 자리한 파르코니도(Parconido)는 유럽의 광장을 모티브로 한 베이커리 카페다. 경기 북부라는 지역적 맥락 속에서 이곳은 특정 도시를 직접적으로 재현하기보다는, 오랜 시간 이탈리아에서 생활해온 의뢰인의 기억과 감각을 공간 안에 은유적으로 담아낸다. 명확한 레퍼런스를 드러내기보다 ‘카피가 아닌 오마주’를 선택한 태도는, 직관적이기보다는 서서히 읽히는 공간의 인상을 만든다.
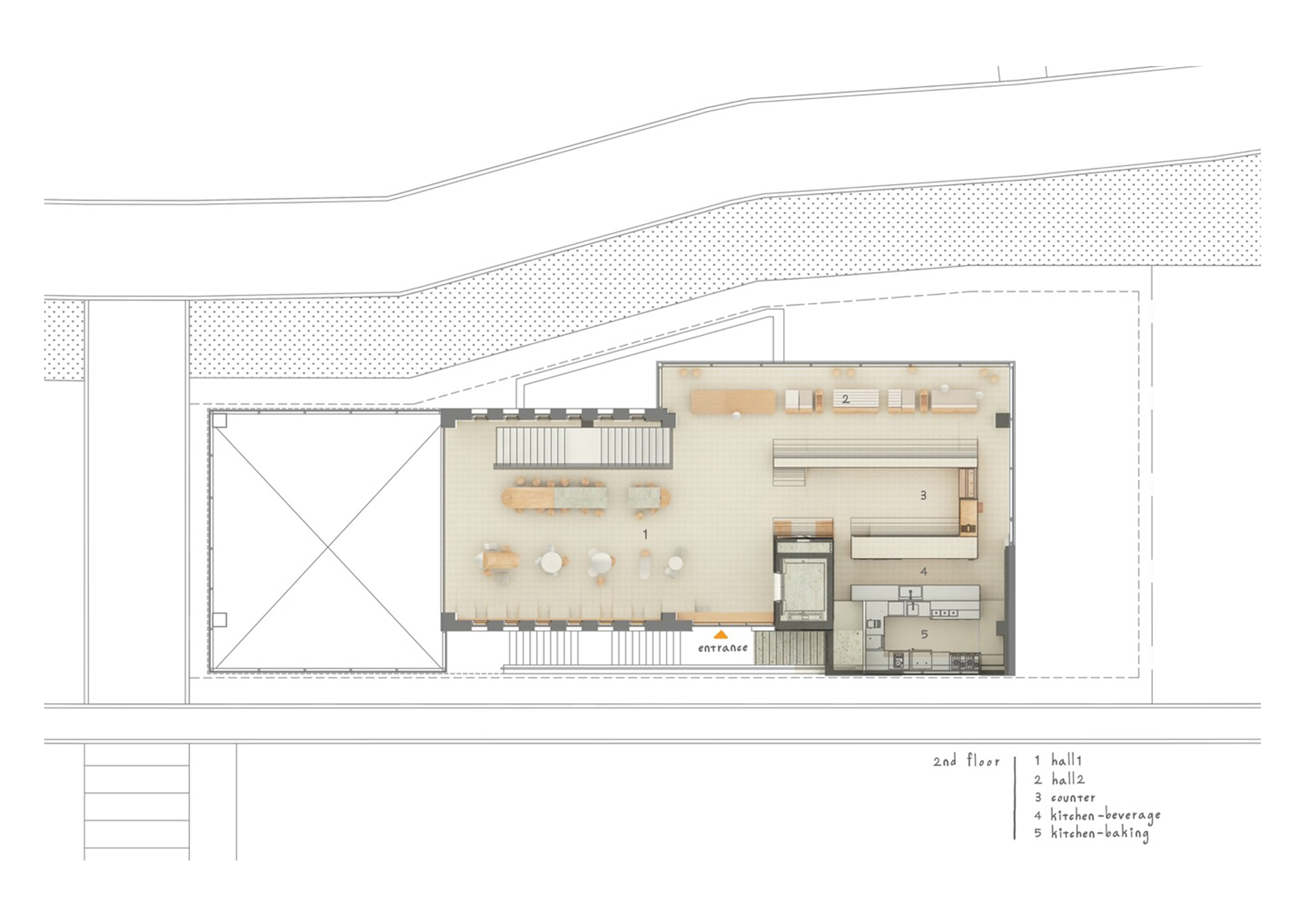
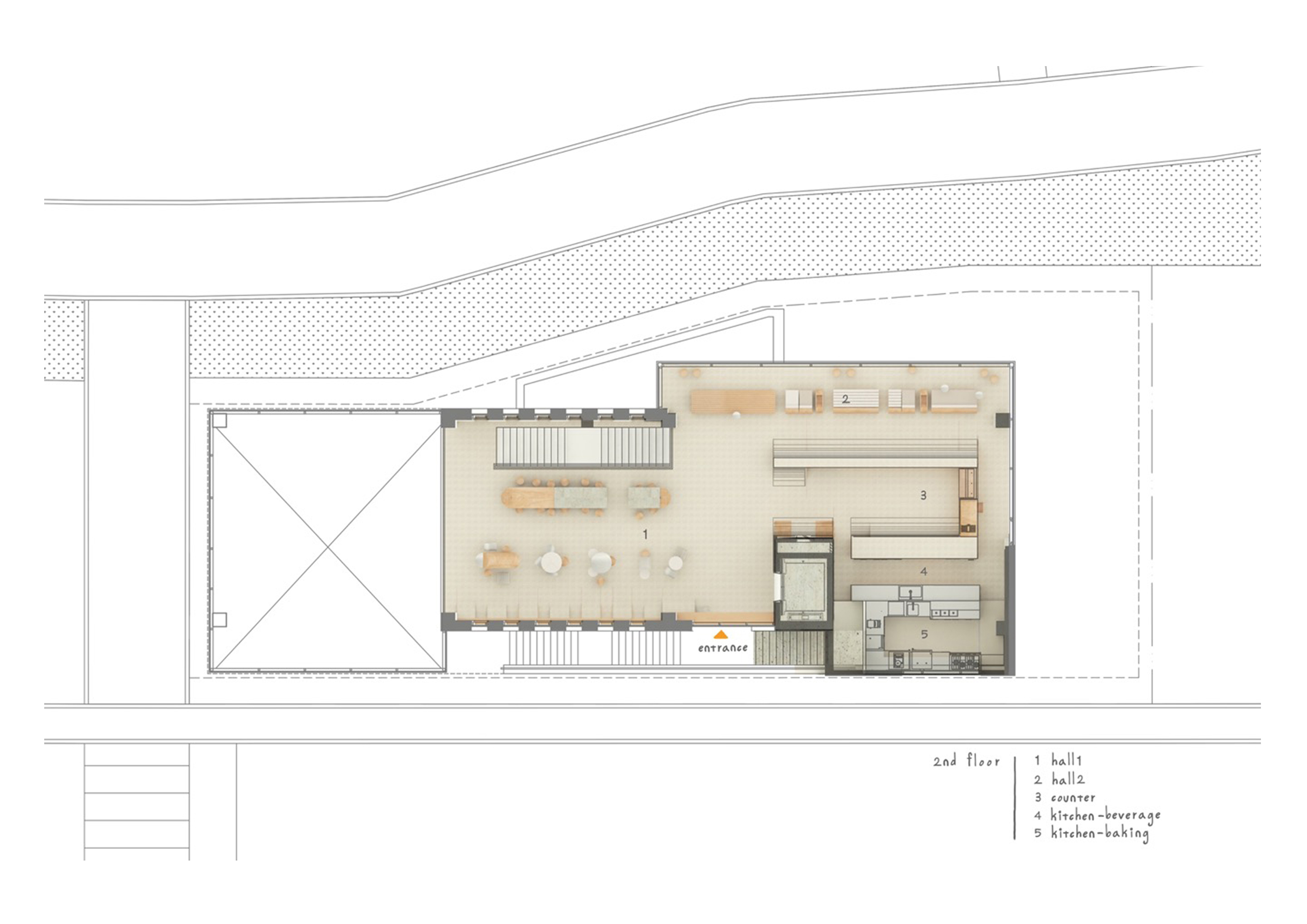
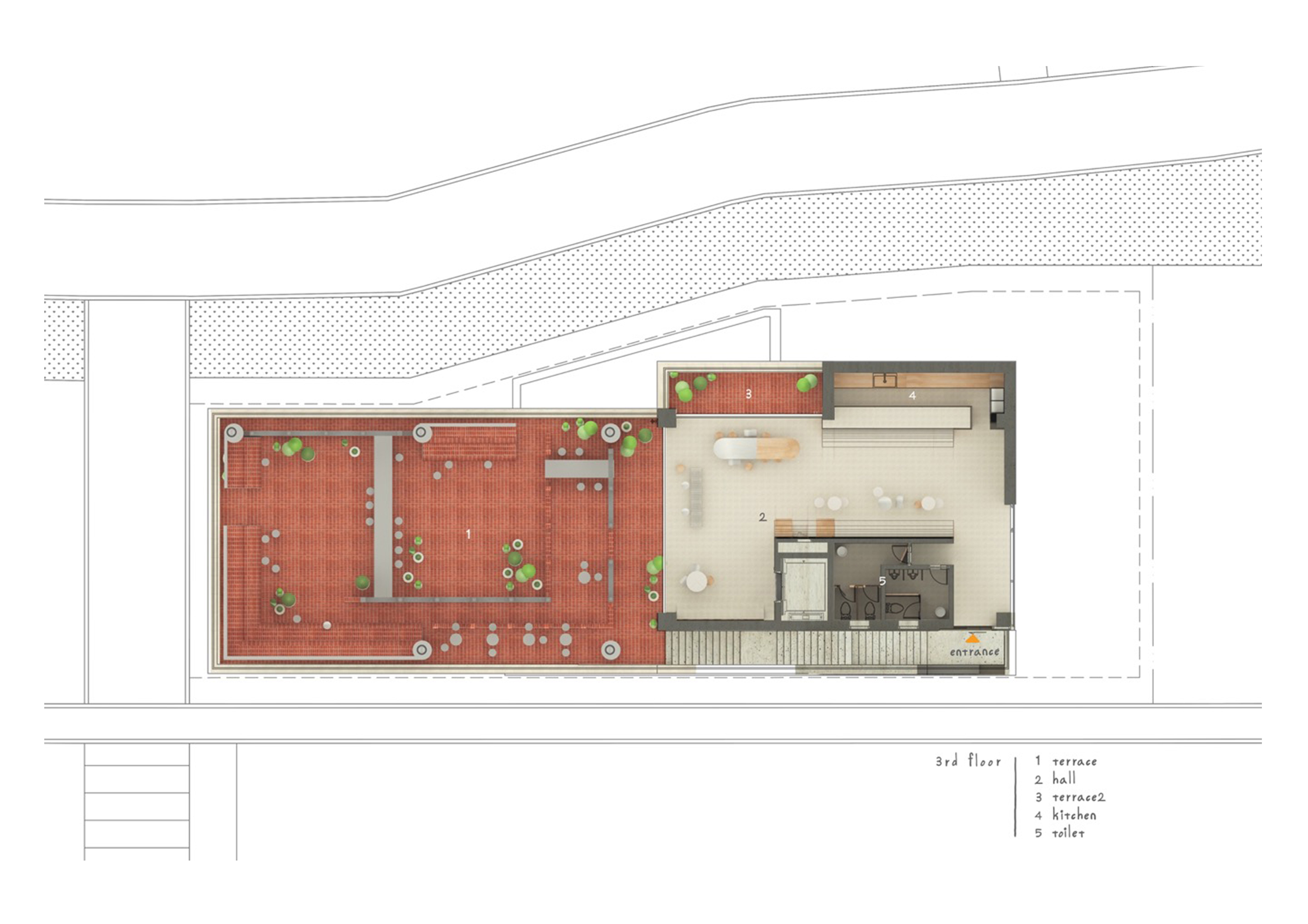
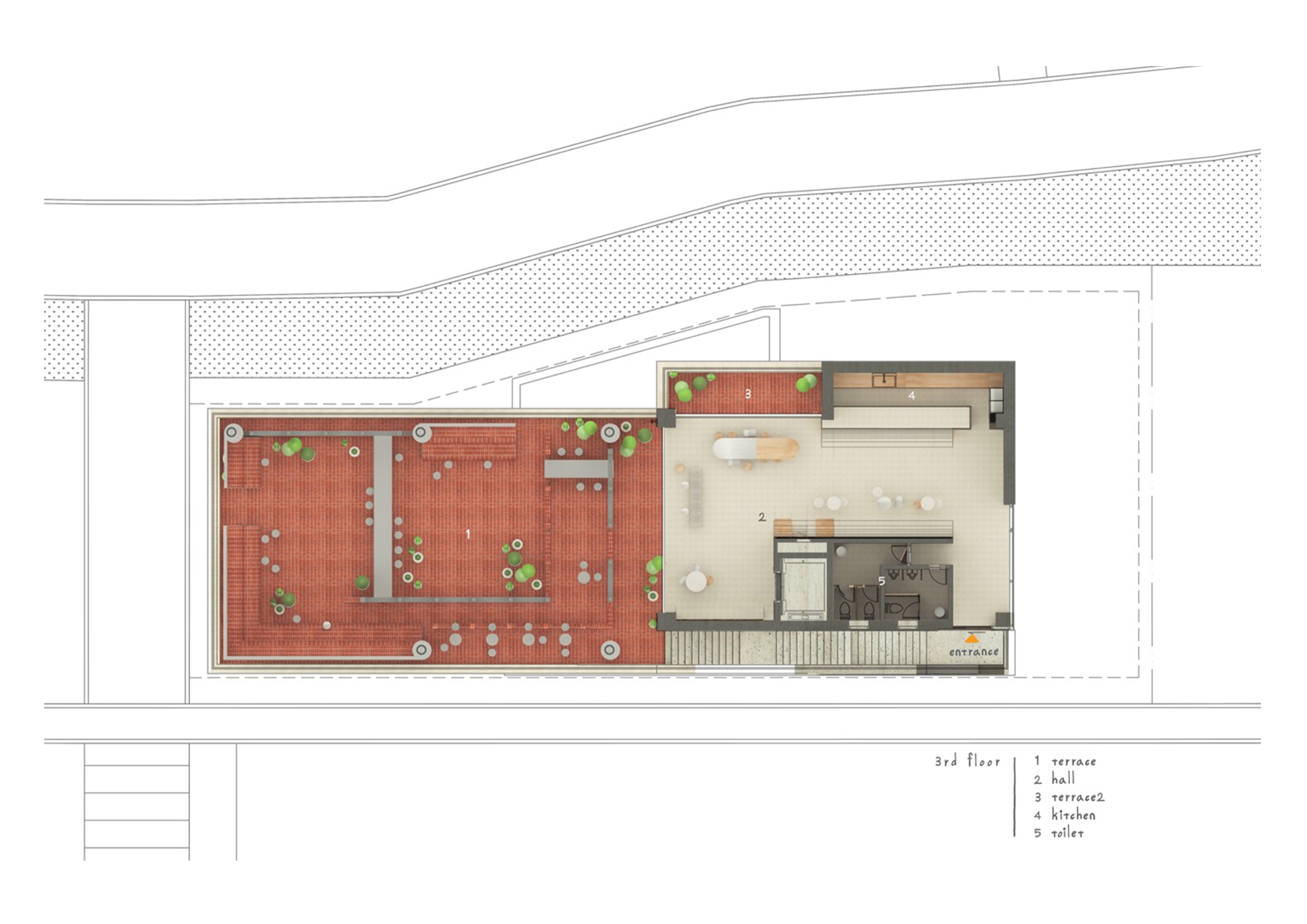
공간의 출발점은 햇살이 좋은 날, 적벽돌 건물과 석재 기둥 사이로 사람들이 자연스럽게 모여 대화를 나누는 유럽 광장의 장면이다. 실내와 외부 곳곳에는 기둥과 둥글게 말린 벽들이 흩어져 배치되며, 사용자를 감싸 안는 듯한 구조를 형성한다. 이 반복되는 원형의 제스처는 마치 둥지를 연상시키고, 이는 곧 브랜드 심볼로까지 확장되었다.
형태는 다양하지만 모든 벽과 기둥에는 600mm 반지름이라는 단일한 규칙이 적용된다. 이 명확한 기준은 공간 전체에 통일감을 부여하면서도 단조로움을 피하는 장치로 작동한다. 구조는 구멍 없는 점토 벽돌을 한 장 한 장 쌓아 올리는 방식으로 완성되었고, 하중 부담을 줄이기 위해 벽돌의 두께를 줄여 철제 프레임 위에 피부처럼 입히는 방식이 병행되었다. ‘켜켜이 쌓고 한 땀 한 땀 붙인다’는 태도는 이 공간의 물리적 완성도를 넘어, 시간의 밀도를 드러내는 방식이기도 하다.
가구 역시 동일한 조형 언어 안에서 설계되었다. 정원(正圓)의 비례를 기준으로 제작된 테이블과 오브제들은 콘크리트 캐스팅, 목재와의 결합, 중첩된 원형 파이프 등 다양한 방식으로 구현되며 공간에 자연스럽게 스며든다. 과도하게 드러나지 않으면서도, 둥근 공간의 성격을 조용히 강조하는 요소들이다.
마감 재료로는 적벽돌, 트래버틴, 목재가 사용되었다. 특히 트래버틴 자연석은 유럽 광장의 분수대를 연상시키는 재료로, 1.5mm × 1.5mm 크기로 잘게 쪼개져 바닥과 벽, 천정까지 이어진다. 모서리를 둥글게 처리한 실내는 면과 면의 경계를 흐릿하게 만들며, 공간이 실제보다 더 확장되어 보이는 인상을 준다. 이로 인해 실내는 무게감보다는 부유하는 듯한 이미지를 띠고, 전시된 빵과 오브제들이 자연스럽게 시선을 끄는 배경이 된다.
웜톤의 색감으로 구성된 이 공간은 시각적으로도 따뜻한 분위기를 형성한다. 긴장을 풀고 머무르게 만드는 이 감각은 ‘둥지’라는 브랜드 개념과 맞닿아 있다. 둥지 안에서 졸고 있는 아기 새를 형상화한 심볼은, 방문객들이 잠시 일상의 근심을 내려놓고 쉬어가기를 바라는 마음을 담고 있다. 동시에 새로운 사업을 시작하는 의뢰인의 상황을 비유적으로 드러내며, 이 공간이 또 하나의 시작점임을 암시한다.
2022년 완공된 파르코니도에서는 직접 로스팅과 베이킹이 이루어지며, 공간은 이제 새로운 시간과 이야기를 차곡차곡 쌓아가고 있다. 눈과 입이 모두 즐거운 장소로 기억되기를 바라는 바람처럼, 이곳은 재료와 형태, 개념이 조용히 어우러진 하나의 ‘적색 둥지’로 자리한다.
※ 공간에 사용된 조명과 가구는 모두 직접 디자인·제작된 오브젝트다.





















건축가 석 철 목
위치 경기도 고양시 일산동구 월드고양로 102-65
용도 카페
프로젝트면적 630㎡
규모 지상 3층
설계기간 2021.12. - 2022. 3.
시공기간 2022.2. - 2022.5.
준공 2022. 05. 22.
프로젝트디자이너 박현희
시공 석철목
사진작가 홍석규
'Interior Project > Cafe&Restaurant' 카테고리의 다른 글
| 격자 위에 얹은 동양의 리듬, ‘MOSS’ 레스토랑 / 스튜디오8 아키텍츠 (0) | 2026.03.11 |
|---|---|
| 산업 유산 위에 놓인 자연의 감각, 스노우피크 카페 쑤저우 / 키키 아키 (0) | 2026.02.04 |
| 아치와 테라조가 만든 조용한 우아함, 비스트로 인테리어 / 아틀리에 레알리테 (0) | 2025.12.04 |
| 테라조와 색의 레이어로 재구성한 비스트로 인테리어 / 마르케타 브로모바 아키텍티 (0) | 2025.11.21 |
| 바와 그리드 천장이 만드는 카페 인테리어 / 이리 루카스 아틀리에 (0) | 2025.11.19 |
마실와이드 | 등록번호 : 서울, 아03630 | 등록일자 : 2015년 03월 11일 | 마실와이드 | 발행ㆍ편집인 : 김명규 | 청소년보호책임자 : 최지희 | 발행소 : 서울시 마포구 월드컵로8길 45-8 1층 | 발행일자 : 매일



