
sensu
지슈코프 옛 철도역 부지에 새로운 개발이 진행되면서, 아케이드를 따라 출근하거나 인근 공원으로 향하는 사람들의 흐름이 끊임없이 이어진다. 이러한 역동적인 주변 환경 속에서, 센수(Sensu)는 말차를 중심으로 한 아시아 카페라는 정체성을 지닌 채 작은 ‘고요의 섬’처럼 자리 잡는다.
이번 인테리어 디자인은 바닥부터 천장까지, 가구와 마감재 하나까지 설계가 치밀하게 반영된 프로젝트였다. 콘크리트 바닥의 줄눈 비율부터 스테인리스 물끊기 디테일까지, 모든 요소에 정교한 설계를 적용했다. 투자자의 특별한 태도 역시 프로젝트에 강한 동력을 더했는데, 그는 일본 현지 차 농가와 직접 관계를 맺기 위해 현지를 방문할 정도로 ‘품질에 대한 절대적 기준’을 명확히 드러냈다.
공간의 기본 재료는 목재, 리넨, 콘크리트, 유리로 구성되며 절제된 톤을 유지한다. 이 차분한 배경 덕분에 말차와 디저트의 생동감 있는 색감이 더욱 돋보인다. 또한 재료 간의 대비가 공간적 깊이를 형성한다. 벨벳처럼 부드러운 오크 베니어는 차갑고 반질반질한 스테인리스와 대조되고, 단단한 콘크리트는 부드럽게 물결치는 리넨 커튼과 만나 균형을 이룬다. 의자, 테이블, 조명, 컵 등 세심하게 선택된 요소들은 하나의 조화를 이루며 방문객에게 차분하고 집중된 경험을 제공한다.
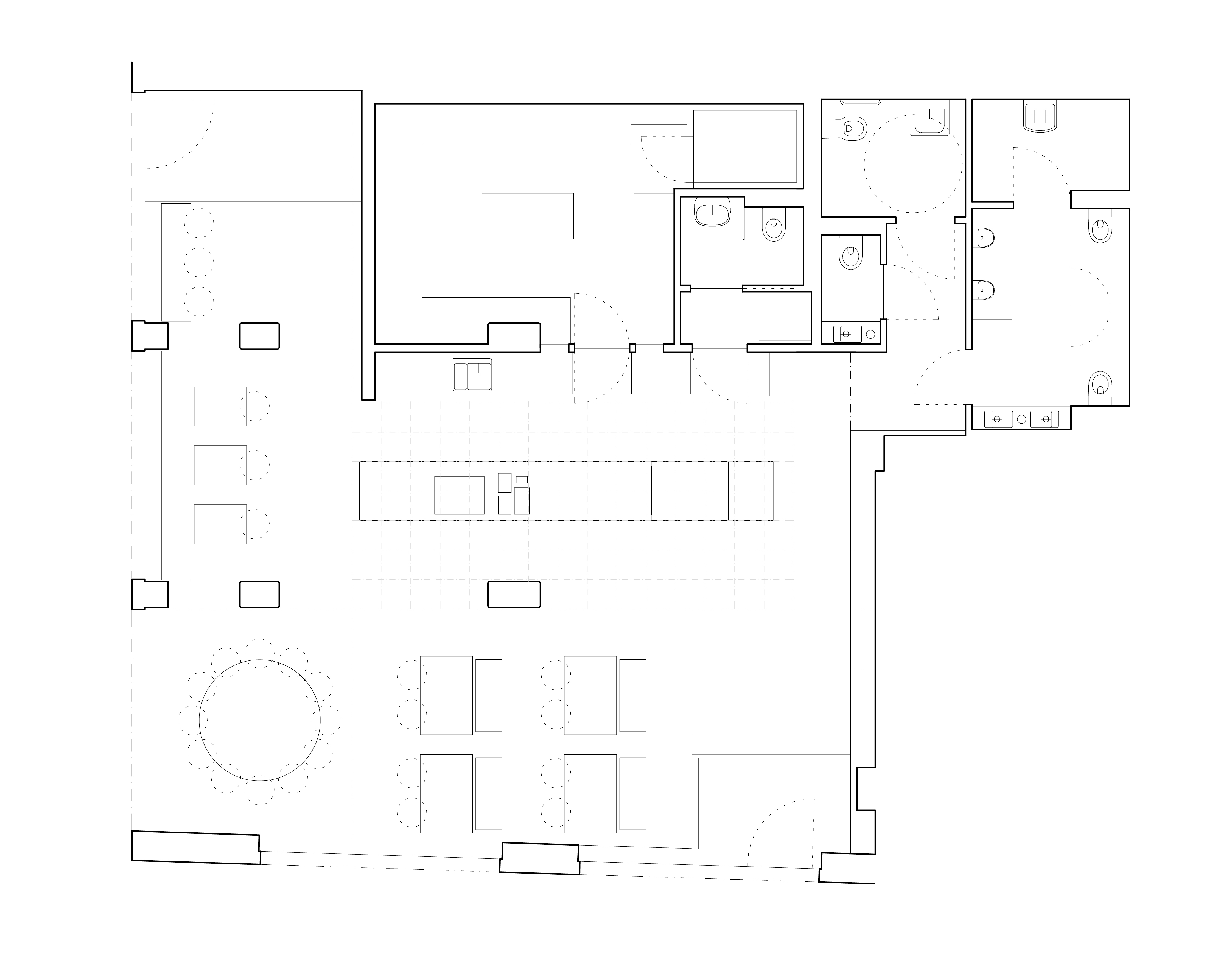
공간의 중심에는 길게 뻗은 선형 바가 자리한다. 이 바는 직원의 동선을 효율적으로 통합하고, 동시에 카페 내부의 움직임과 흐름을 자연스럽게 이끈다. 센수를 위해 특별히 디자인한 가구 시리즈도 눈에 띈다. 지름 2m의 원형 테이블, 4인이 앉을 수 있는 직사각 테이블, 입구 측 바 테이블까지 다양한 형태가 조응을 이룬다.
바 위 천장은 그리드 구조로 구성해 커피머신 주변의 음향을 조절하고 공조 설비가 원활히 작동하도록 했다. 깊은 음영을 만드는 그리드의 형태는 바 공간에 단단한 무게감을 더한다. 전체적으로 공간은 빛과 그림자의 대비를 적극 활용해, 단정하면서도 명료한 분위기를 만들어낸다.


























건축가 이리 루카스 아틀리에 (Jiri Lukas Atelier)
위치 체코, 프라하, 야나 젤리브스케호 2934/2b
용도 카페
연면적 135㎡
규모 지상 1층
준공 2025
대표건축가
구조엔지니어 Hakulin Architects
시공 Stavdex
조명 U1 Lighting
발주자 Sensu Café
사진작가 Alex Shoots Buildings
'Interior Project > Cafe&Restaurant' 카테고리의 다른 글
| 아치와 테라조가 만든 조용한 우아함, 비스트로 인테리어 / 아틀리에 레알리테 (0) | 2025.12.04 |
|---|---|
| 테라조와 색의 레이어로 재구성한 비스트로 인테리어 / 마르케타 브로모바 아키텍티 (0) | 2025.11.21 |
| 역사와 일상 사이, 작은 도시를 회복시키는 다층적 주택 재생 / 마테이 셰벡 아르키테크티 (0) | 2025.11.19 |
| 빛으로 조각된 카페, 더 패싯츠 / 비비워크스페이스 (0) | 2025.09.26 |
| 덜어냄으로 완성한 정원 속 건축 / 슈엉셉 (0) | 2025.09.15 |
마실와이드 | 등록번호 : 서울, 아03630 | 등록일자 : 2015년 03월 11일 | 마실와이드 | 발행ㆍ편집인 : 김명규 | 청소년보호책임자 : 최지희 | 발행소 : 서울시 마포구 월드컵로8길 45-8 1층 | 발행일자 : 매일



