
K66 | Townhouse with a Café
후소보 광장에 자리한 이 주택은 작은 도시 특유의 테라스형 주택으로, 건물 내부 통로를 통해 뒤쪽 농가 마당으로 이어지는 구조를 지니고 있다. 이번 프로젝트는 기존 건물이 지닌 잠재력을 최대치로 활용해야 했고, 전체 재생 과정은 자르하드닉 가족이 함께 참여한 협업의 산물이다. 가족의 남성 구성원들은 직접 운영하는 시공회사를 통해 공사를 주도했고, 여성 구성원들은 카페와 요가 스튜디오라는 프로그램의 기획과 운영을 맡아 공간의 정체성을 완성했다.
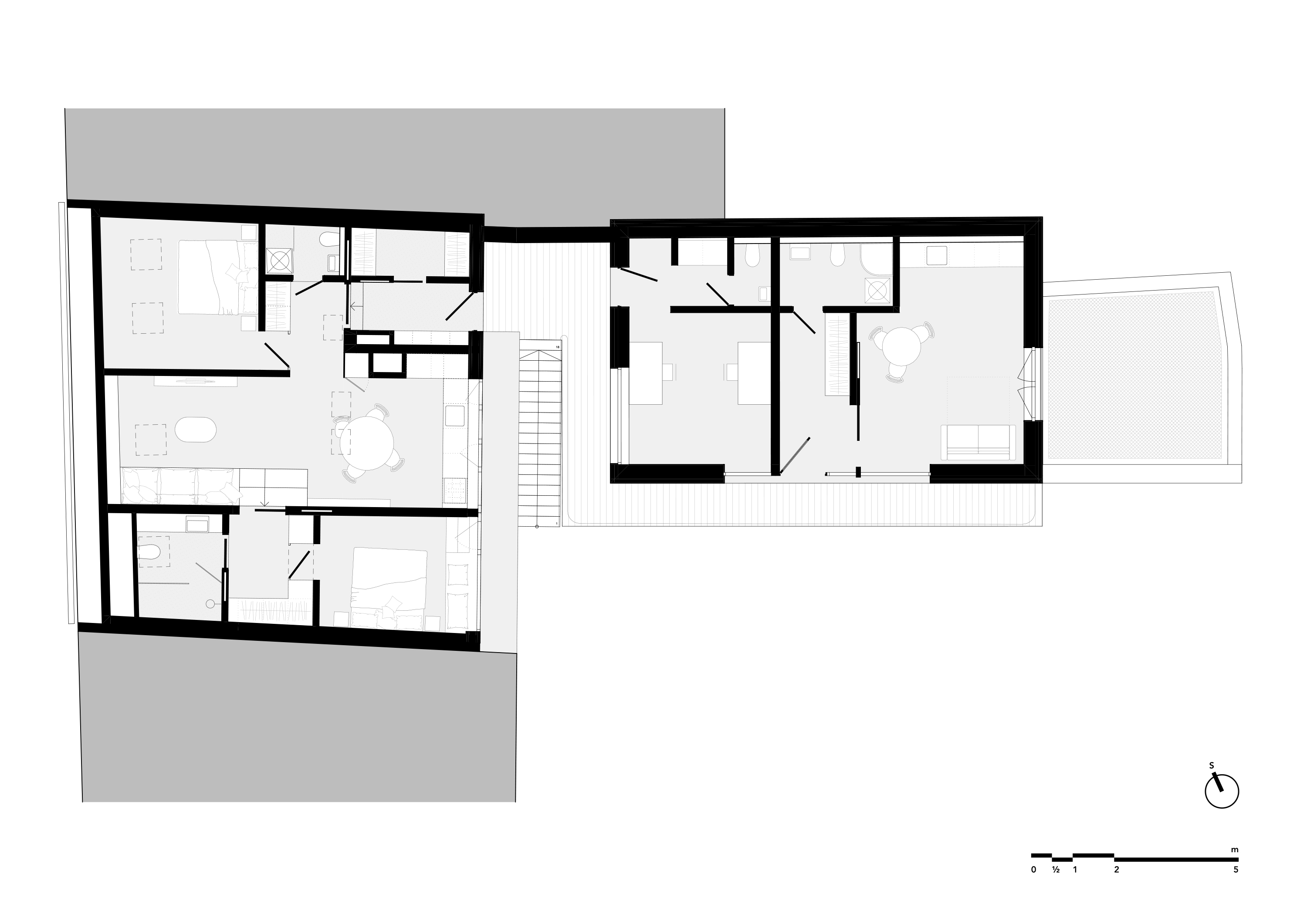
광장을 향한 역사적 건물은 카페로 재탄생했다. 드러낸 벽돌과 보 구조는 과거의 용도와 수많은 변화를 고스란히 보여주는 흔적이며, 그 안에 정교하게 설계된 스테인리스 카페 카운터와 화장실 등 필수 공간이 배치된다. 기다란 물푸레나무 벤치와 파란 의자가 놓여 있으며, 기존과 새로운 재료들이 뒤섞여 다층적이면서도 따뜻한 재료 콜라주를 형성한다. 내부에서 이어지는 통로는 마당까지 연결되고, 길게 놓인 콘크리트 벤치가 외부 자리의 중심이 된다.
마당 쪽 증축동은 과거 축사 터 위에 새로 지은 건물로, 새로움은 숨기지 않되 기존 주택의 질서를 존중하는 태도로 설계되었다. 철거 현장에서 가져온 오래된 벽돌로 1층을 쌓았고, 목재 보가 발코니를 받치며 섬세한 철제 계단과 난간이 더해진다. 1층은 요가, 강연, 세미나 등 다양한 프로그램을 수용하는 스튜디오로 사용되며, 전면 유리벽을 통해 마당과 유기적으로 연결된다.
아연도금 계단은 마당에서 갤러리층으로 이어지고, 이 갤러리는 역사적 건물과 현대적 증축동을 연결하는 수평적 통합 공간의 역할을 한다. 기존 건물의 다락은 전면적으로 재구성되었고, 광장을 향한 지붕은 기존의 용마루 높이와 경사를 유지하면서 마당 쪽에는 큰 도머 창을 새로 추가했다. 이를 통해 내부에는 3+kk 구성의 아파트가 만들어졌고, 가족의 한 아들이 ‘카페 위 집’으로 거주한다. 갤러리에서는 두 개의 임대 유닛에 접근할 수 있으며, 하나는 테라피 룸, 다른 하나는 녹화 지붕 위 작은 테라스를 가진 원룸이다.
복잡한 재건축 과정에도 불구하고, 이 프로젝트는 가족의 의지와 협업을 바탕으로 비소치나 지역의 작은 도시에 활력을 불어넣는 도시형 주택으로 다시 태어났다.










































건축가 마테이 셰벡 아르키테크티 (matěj šebek architekti)
위치 체코, 카메니체 나드 리포우, 후소보 나메스티 66
용도 카페
건축면적 200㎡
연면적 367㎡
규모 지상 2층
설계기간 2021- 2025
준공 2025
대표건축가 Matěj Šebek
시공 I. Kamenická stavební
발주자 Zahradnik Family
사진작가 Radek Úlehla
'Interior Project > Cafe&Restaurant' 카테고리의 다른 글
| 테라조와 색의 레이어로 재구성한 비스트로 인테리어 / 마르케타 브로모바 아키텍티 (0) | 2025.11.21 |
|---|---|
| 바와 그리드 천장이 만드는 카페 인테리어 / 이리 루카스 아틀리에 (0) | 2025.11.19 |
| 빛으로 조각된 카페, 더 패싯츠 / 비비워크스페이스 (0) | 2025.09.26 |
| 덜어냄으로 완성한 정원 속 건축 / 슈엉셉 (0) | 2025.09.15 |
| 경계 안에서 누리는 무한한 자유, 아웃포스트 / 스페이스 디자인 어라이브 (0) | 2025.09.11 |
마실와이드 | 등록번호 : 서울, 아03630 | 등록일자 : 2015년 03월 11일 | 마실와이드 | 발행ㆍ편집인 : 김명규 | 청소년보호책임자 : 최지희 | 발행소 : 서울시 마포구 월드컵로8길 45-8 1층 | 발행일자 : 매일



