
The Capsule Neo-Bistro
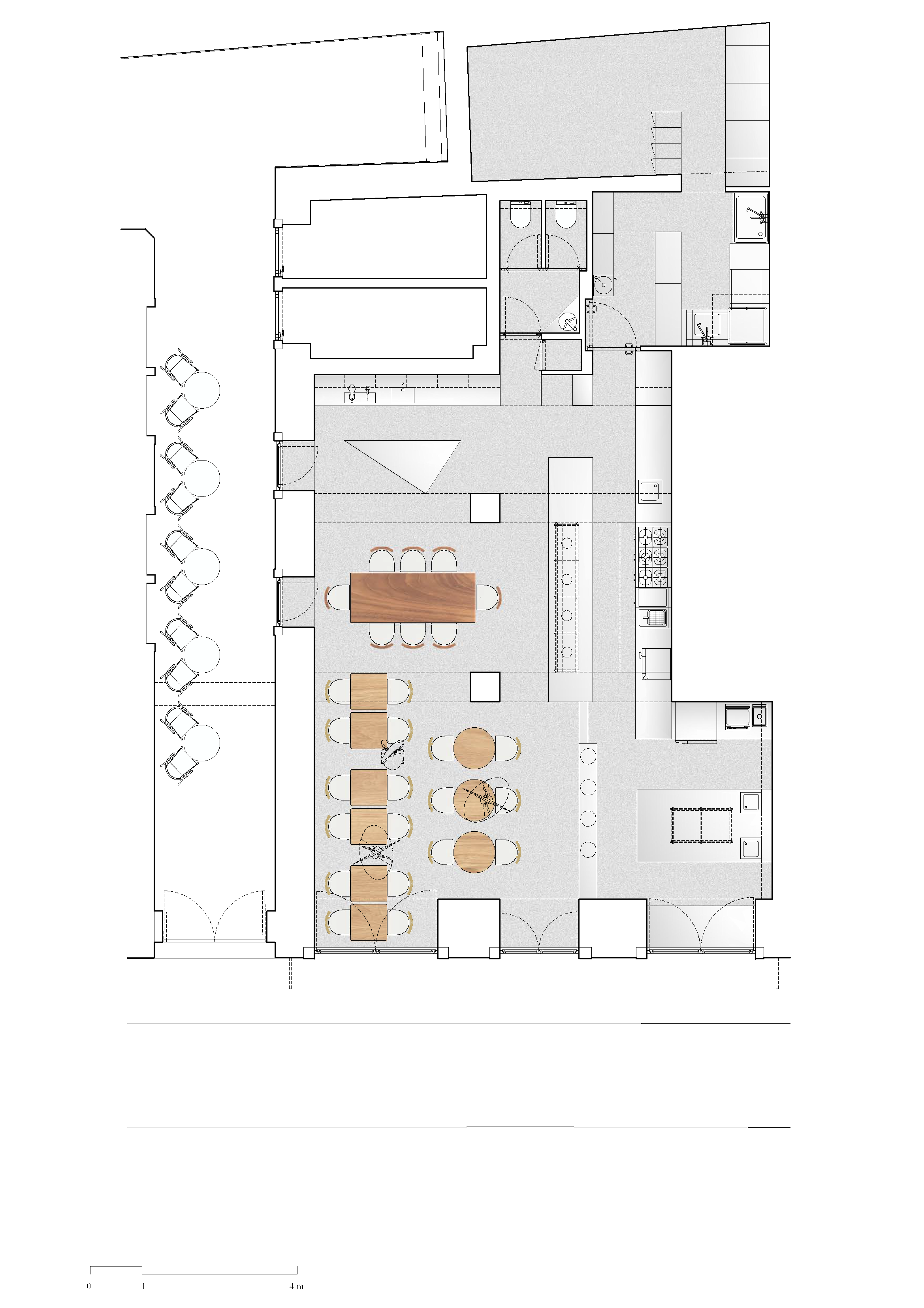
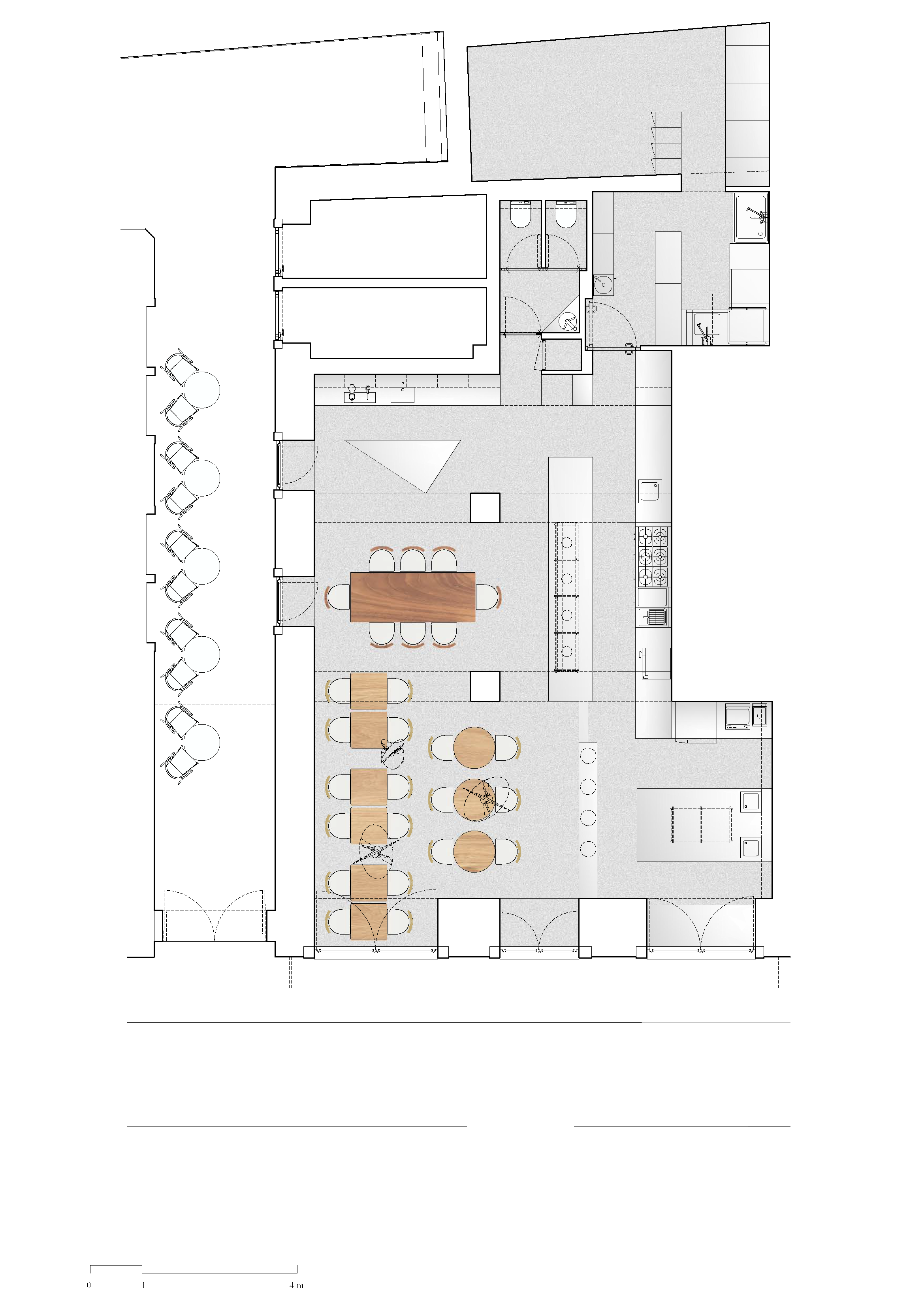
Capsule Neo-Bistro는 리스본 역사 중심지 ‘바이샤 폼발리나(Baixa Pombalina)’의 18세기 건물 1층을 개조한 프로젝트로, Atelier Réalité와 캡슐의 두 번째 협업 작업이다. 이번 개편의 핵심은, 공간을 지탱해온 가장 중요한 구조적 유산인 아치 를 보존하고 그 존재감을 현대적인 감각으로 되살리는 데 있다.
건축가는 기존 공간의 구성과 비례를 가능한 한 바꾸지 않으면서도, 새로운 프로그램(베이커리·키친·바·카페가 하나로 이어지는 ‘네오 비스트로’)를 지원할 수 있는 조심스러운 개입을 선택했다. 장식은 절제하고 기술적 장치는 드러내지 않음으로써, 단순함이 공간의 기품을 더하는 ‘조용한 우아함’을 구현한다.
가장 중심이 되는 네 개의 아치는 밝은 회색 톤으로 마감되어 벽과 천장과 부드럽게 이어지며, 건물의 오랜 시간성을 현대적 분위기 속에 자연스럽게 끌어안는다. 바닥의 연속적인 테라조 마감은 이 중립성을 더욱 강화하며, 스테인리스 설비와 오크·월넛·가죽으로 만든 가구가 도드라질 수 있는 배경이 된다.
공간의 길이를 따라 배치된 긴 카운터는 주방·서비스 영역과 다이닝룸을 분리하며, 후면부에서는 삼각형 형태의 아일랜드가 바와 카페 구역의 중심을 형성한다. 화장실은 순환 동선 뒤쪽에 숨겨져 있어, 전체적으로 깨끗하고 간결한 공간 흐름을 유지한다.
조명 계획 역시 공간의 분위기를 결정짓는 중요한 요소다. 첫 번째 공간을 채우는 부채 형태의 조명은 확산적이면서도 시각적 리듬을 만들고, 부렐(burel)로 제작한 은행나무(Ginkgo Biloba) 조명은 섬세하고 따뜻한 표정을 더해 방문객을 부드럽게 맞이한다.
결과적으로 Capsule Neo-Bistro는 역사적 골격을 존중하면서 현대적인 기능과 감각을 정교하게 결합한 작은 도시적 장소로 재탄생했다.




























건축가 아틀리에 레알리테 (Atelier Réalité)
위치 포루투갈, 리스본
용도 레스토랑
연면적 140,000㎡
준공 2024
대표건축가 Mariana Póvoa, Pedro Pedroso, Sílvia Rocio
사진작가 Ivo Tavares Studio
'Interior Project > Cafe&Restaurant' 카테고리의 다른 글
| 산업 유산 위에 놓인 자연의 감각, 스노우피크 카페 쑤저우 / 키키 아키 (0) | 2026.02.04 |
|---|---|
| 켜켜이 쌓은 점토벽돌, 둥글게 말린 공간의 밀도 / 석철목 (0) | 2025.12.15 |
| 테라조와 색의 레이어로 재구성한 비스트로 인테리어 / 마르케타 브로모바 아키텍티 (0) | 2025.11.21 |
| 바와 그리드 천장이 만드는 카페 인테리어 / 이리 루카스 아틀리에 (0) | 2025.11.19 |
| 역사와 일상 사이, 작은 도시를 회복시키는 다층적 주택 재생 / 마테이 셰벡 아르키테크티 (0) | 2025.11.19 |
마실와이드 | 등록번호 : 서울, 아03630 | 등록일자 : 2015년 03월 11일 | 마실와이드 | 발행ㆍ편집인 : 김명규 | 청소년보호책임자 : 최지희 | 발행소 : 서울시 마포구 월드컵로8길 45-8 1층 | 발행일자 : 매일



