
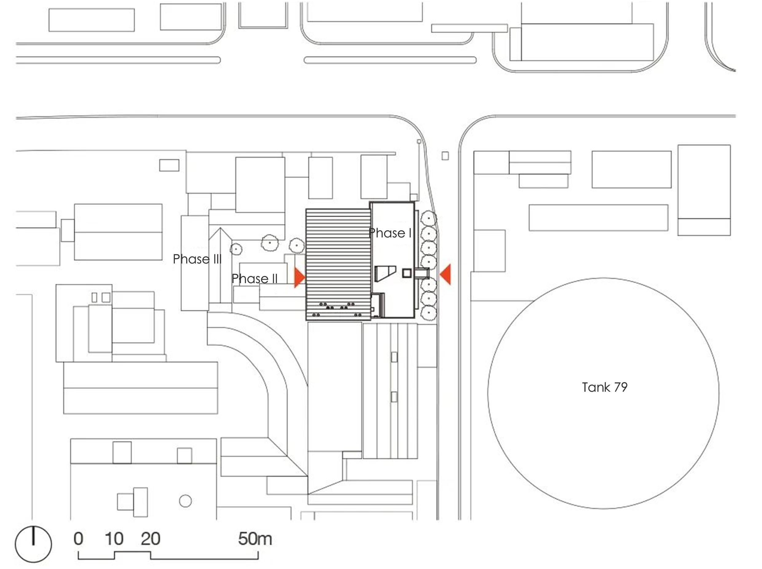
바람 H 아트 센터 · 현 갤러리는 베이징 751 디스트릭트에 위치한 기존 산업 공장과 부속 사무동을 개조해 조성된 전시 공간이다. 전체 리노베이션은 세 개의 페이즈로 나뉘어 진행되었으며, 페이즈 I은 메인 전시홀과 아트숍을 포함한 핵심 공간으로 가장 먼저 완공되었다. 이후 페이즈 II에는 카페, 아티스트 스튜디오, 음악홀이, 페이즈 III에는 아트 랩과 오피스 공간이 더해질 예정이며, 이 모든 프로그램은 중앙의 중정을 둘러싸는 구조로 계획되었다.
페이즈 I이 들어선 기존 건물은 1980년대에 지어진 공장으로, 1990년대 동측에 사무동이 증축된 상태였다. 구조는 동·서측의 콘크리트 기둥이 40mm 두께의 접힌 콘크리트 지붕을 지지하는 방식으로, 내부에는 기둥 없는 넓은 공간이 형성되어 있었다. 리노베이션 이전 남측에는 중이층이 있었고, 나머지 공간은 오픈형 사무 공간으로 사용되고 있었다.
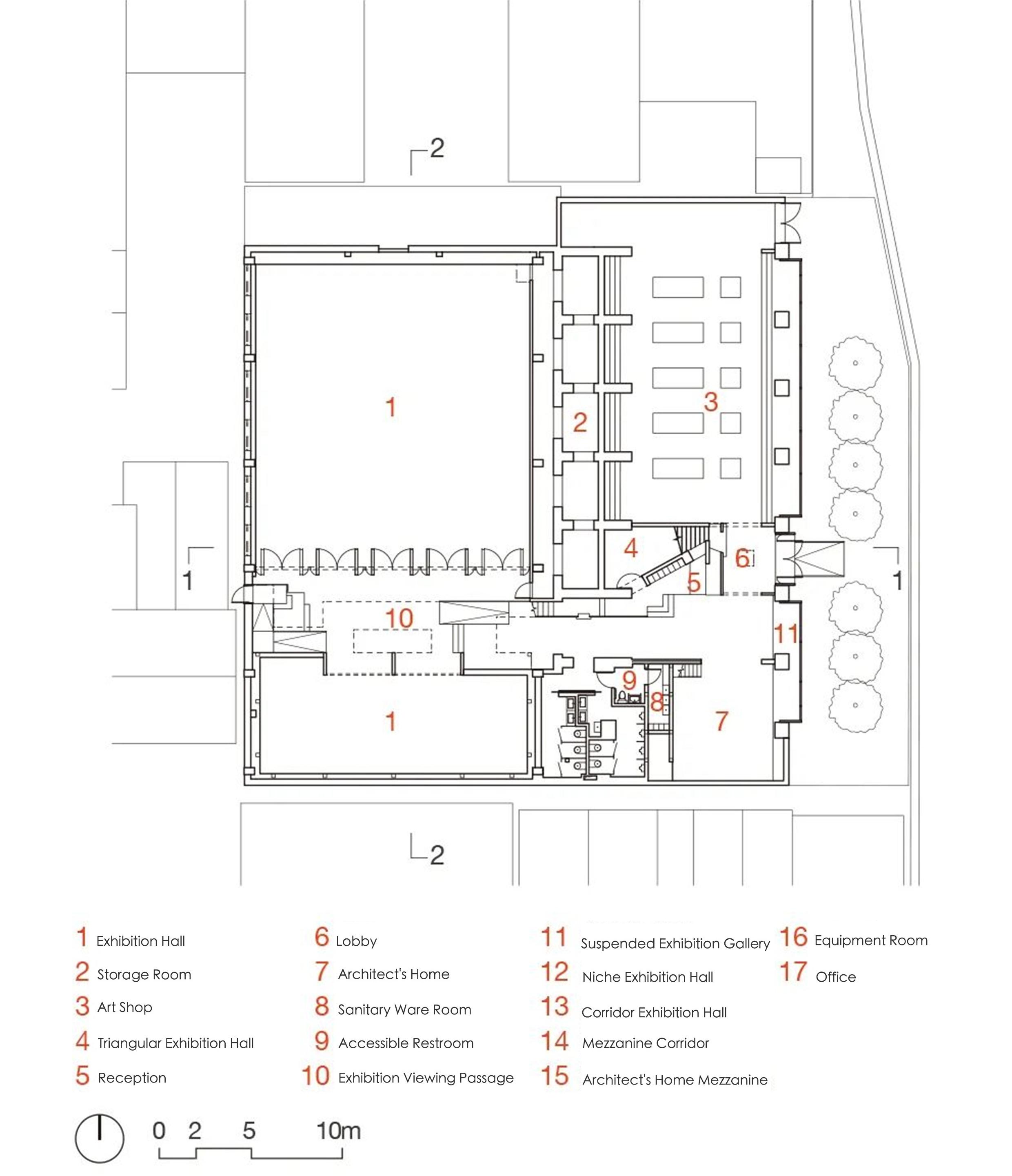
향후 중정에 카페가 배치될 것을 고려해, 모든 기능 공간은 각각 독립적으로 구성되면서도 중정으로의 동선이 원활하게 연결되어야 했다. 이에 따라 전시홀과 상점, 중정 사이를 매개하는 중심적 공간 장치가 필요해졌고, 이 역할을 수행하는 구조로 ‘거대한 돌(Giant Stone)’이라 명명된 콘크리트 구조체가 삽입되었다.
이 구조체는 내부가 비워진 콘크리트 박스로, 중앙이 사선으로 절개되며 전시홀과 중정으로 향하는 방향성을 형성한다. 파사드에는 이중 벽체가 적용되었고, 일부는 비워 리셉션 데스크가 들어가는 공간을 만들었다. 반대편 콘크리트 스크린 뒤에는 옥상으로 이어지는 계단이 숨겨져 있으며, 전체적으로는 하나의 덩어리처럼 보이지만 내부는 다공성 구조로 작동한다. 다소 높은 카운터, 좁은 개구부, 가파른 계단 경사는 사용자가 ‘완전한 기능적 상자’가 아닌, 균열 난 암석 내부를 통과하고 있다는 감각을 인지하게 만든다.
이 ‘거대한 돌’에 삽입된 또 하나의 요소가 ‘주머니(Pouch)’라 불리는 상설 조명 장치다. 구조적으로 가장 두꺼운 경사벽에 마련된 두 개의 개구부에 끼워진 이 조명은 공간 전체에 빛을 투과시키며, 건축과 오브제의 경계를 흐린다. 하나는 계단실 벽에 매달려 이동 중의 시선과 관계를 맺고, 다른 하나는 리셉션 상부에서 콘크리트 벽을 뚫고 나온 것처럼 보인다. 두 조명은 물리적으로 연결되어 있지 않지만, 분열 혹은 융합의 한 순간처럼 인식되며, 기존 구조와 새로운 개입 사이의 관계를 은유적으로 드러낸다.
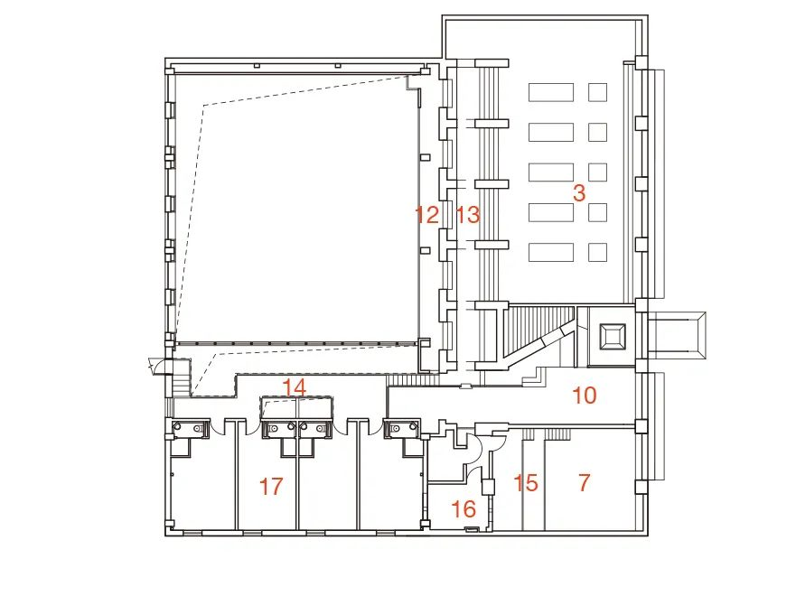
진입부를 지나면 평행한 내력벽으로 구성된 ‘복도형 갤러리’가 이어진다. 서측에는 기존 외벽과 구조 기둥 사이에 형성된 매우 좁은 틈이 남아 있었고, 이 공간은 채광창에서 떨어지는 빛과 함께 ‘틈새 갤러리’로 전환되었다. 일부 벽은 개구부가 확장되어 문처럼 사용되고, 또 다른 벽에는 더 큰 구멍이 뚫리며, 빛의 틈이 연속되는 ‘벽-문 시퀀스’를 형성한다.
아트숍에서 전시홀을 바라보면, 바닥과 동선은 점진적으로 상승하며 공간의 밝기도 함께 높아진다. 데크 가장자리에는 전시벽 대신 난간이 설치되어 서로 다른 공간 사이의 시각적 연속성이 유지된다. 남동쪽에는 건축가의 작업 공간이 배치되어 있으며, 콘크리트 구조물에서 출발한 철제 계단을 통해 중이층으로 연결된다. 서로 다른 높이의 플랫폼 사이에는 낮은 콘크리트 단이 만들어져, 계단식 좌석이자 무대처럼 읽히는 장면을 만든다.
리노베이션 과정에서는 기존 구조의 물성을 최대한 유지하려는 태도가 일관되게 적용되었다. 접힌 콘크리트 지붕의 내부 면, 노후된 기둥, 중정을 향한 벽돌 외벽 등이 그대로 노출되었다. 반면 일부 벽면은 철거 과정에서 손상되어 마감이 불가피했고, 완전한 정밀함보다는 재료가 가진 흔적과 불완전함을 수용하는 방향이 선택되었다. 콘크리트의 거친 표면은 손으로 연마되었고, 철재는 일부러 녹을 낸 뒤 흑색 처리되었다.
이 프로젝트의 전반적인 재료 전략은 ‘새것도, 옛것도 아닌 상태’에 머무르는 것이었다. 재료는 완결된 상태를 목표로 하지 않고, 자연스러운 노화를 전제로 한 ‘짧은 수명의 건축’으로 다루어졌다. 이는 대규모 재생이 아닌, 사용 기간에 상응하는 가벼운 갱신이라는 태도에 가깝다.
진입부 동측에는 중국 피스타치아 나무가 자리하며, 내부의 따뜻한 조명과 대비를 이룬다. 공사 과정에서 남은 자재들은 이후 페이즈 II를 위해 보관되었고, 일부 잔여 철골은 의도적으로 노출된 채 새로운 공간 장치로 재사용되었다. 페이즈 I의 핵심은 남겨진 공간과 재료를 적극적으로 활용해, 콘크리트 개입을 통해 기능을 삽입하고 깊이를 만들어내는 데 있다. 이 프로젝트는 결과적으로 ‘집 안에 정원을 짓는’ 방식으로, 산업 유산의 잔여 공간을 전시 건축으로 전환한다.

















건축가 진 치우예 스튜디오 (Jin Qiuye Studio)
위치 중국, 베이징, 차오양구
용도 문화시설
대지면적 1,240㎡
건축면적 1,240㎡
규모 지상 2층
설계기간 2021.7. - 10.
시공기간 2022.4. - 11.
준공 2022
대표건축가 Jin Qiuye
디자인팀 Leilei Gao, Liyuan Liu, Tao Chang, Junjie Shi
시공 Beijing Zhonghe Construction Co., Ltd.
발주자 The Wind H Art Center
사진작가 Qiuye Jin
'Interior Project > Exhibition' 카테고리의 다른 글
| 공중의 계단과 금빛 레진, 라틴 감성을 담은 구조적 서사 / 20–20–아르키테크티 (0) | 2025.10.30 |
|---|---|
| 공간 안의 집, 사물을 위한 그릇 / 더블유제이 스튜디오 (0) | 2025.10.29 |
| 공동체의 초상, 공간으로 확장된 아모아코 보아포의 세계 / 드로슈 프로젝트 (0) | 2025.09.15 |
| 몰입형 우주 체험이 가능한 관람공간 / 콜콜 (0) | 2025.07.17 |
| 일본 전통 공간을 새로운 흐름으로, 갤러리 카타치 / 네기시 켄치쿠 스튜디오 (0) | 2025.04.23 |
마실와이드 | 등록번호 : 서울, 아03630 | 등록일자 : 2015년 03월 11일 | 마실와이드 | 발행ㆍ편집인 : 김명규 | 청소년보호책임자 : 최지희 | 발행소 : 서울시 마포구 월드컵로8길 45-8 1층 | 발행일자 : 매일



