
프로젝트 멕시츠카 (Project Mexická)는 투게더(Together) 외식 그룹의 주도로 시작되었다. 공동 소유주 데이비드 페트르익(David Petřík)은 아시아, 이탈리아, 멕시코를 세계 미식 문화의 3대 축으로 꼽으며, 멕시코를 포트폴리오에 추가하는 것은 시간 문제였다고 말한다. 투자자의 요구는 단순한 레스토랑을 넘어, 중앙아메리카의 요리와 문화를 함께 경험할 수 있는 기념비적 공간을 프라하에 구현하는 것이었다. 초기 단계부터 핵심 개념은 오픈 키친, 대형 화덕, 그리고 활기찬 멕시코 하시엔다(hacienda)의 분위기를 결합하는 것이었다. 멕시츠카는 투게더 그룹의 최대 규모 프로젝트로 계획되었다.
콘셉트와 공간 구성
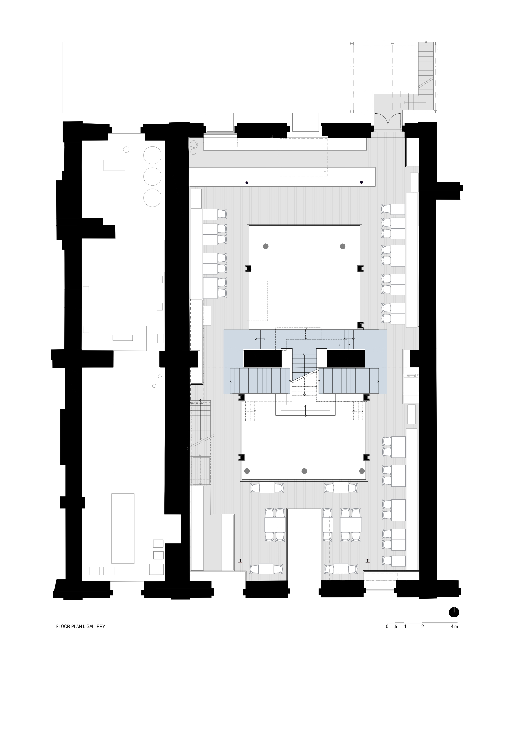
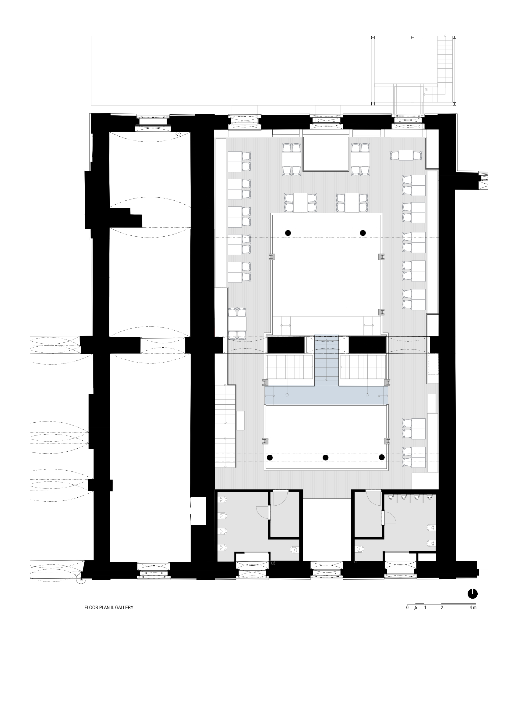
이 레스토랑의 가장 독창적인 점은 그 공간 개념에 있다. 과거 홀레쇼비체 양조장의 높은 층고 공간 안에 중앙 중정을 중심으로 한 2층 갤러리 구조를 새롭게 구축한 것만으로도 특별하다. 여기에 금빛 조명 아래 반짝이는 다중 팔형 계단이 더해지며, 마야 시대의 역사적 상징들이 암시적으로 녹아 있다. 이 모든 요소는 방문객에게 건축적으로 이례적인 체험을 제공한다. 레스토랑의 또 다른 특징은 주방과 객석의 완전한 통합이다. 손님들은 눈앞에서 토르티야가 구워지고, 타코가 만들어지며, 화덕에서 요리가 조리되는 과정을 직접 볼 수 있다. 세비체는 어항 섹션에서 바로 조리되며, 재료들이 손에 닿을 듯 가까운 거리에서 준비된다. 상층의 대형 칵테일 바 역시 독창적인 디자인과 재료 구성을 갖추었으며, 음료 진열장은 바를 넘어 갤러리까지 연장되어 공간적 리듬감을 형성한다.
갤러리를 지지하는 기둥에는 마야 문자를 모티프로 한 석조 부조가 새겨져 있다. 이 독특한 문양은 그래픽 디자이너 페트르 슈테판(Petr Štěpán)이 건축가와 조각가들과 협업해 멕시츠카를 위해 새롭게 창작한 알파벳 시스템이다. 이러한 시각적 요소들은 멕시코 문화를 구성하는 역사적 문명과 식민지적 유산, 그리고 거칠지만 생동감 있는 거리의 풍경을 공간 안에 녹여낸다. 기능적이면서도 시간의 흔적이 남은 멕시코 거리의 정취가 실내로 재해석된 것이다.
구조와 재료
새로 구축된 갤러리는 터키 블루 컬러의 강철 프레임과 오크 플로어 데크로 구성되었다. 중앙 계단 상부의 브리지는 마치 공중에 떠 있는 듯한 인상을 주는데, 이는 두 개의 원형 기둥 위에 얹힌 유리 바닥과 미세한 금속 지지대 덕분이다. 여기에 블랙 스틸 메쉬 난간이 더해져 전체적인 개방감을 완성한다. 계단의 디테일 또한 독창적이다. 각 단은 정밀 가공된 목재 보드를 결합해 제작하고, 그 위에 금빛 입자가 섞인 에폭시 레진을 부어 완성했다. 계단 전체는 워크어블 글라스(walkable glass)로 연결되어 있으며, 하부의 스포트라이트가 빛을 투과시켜 단일 색조의 인테리어 속에서 계단이 공간의 중심 조형물로 떠오른다.


















































건축가 20–20–아르키테크티 (20–20–ARCHITEKTI)
위치 체코, 프라하
건축면적 890㎡
설계기간 2024
준공 2025
대표건축가
발주자 Together
사진작가 BoysPlayNice
'Interior Project > Exhibition' 카테고리의 다른 글
| 공간 안의 집, 사물을 위한 그릇 / 더블유제이 스튜디오 (0) | 2025.10.29 |
|---|---|
| 공동체의 초상, 공간으로 확장된 아모아코 보아포의 세계 / 드로슈 프로젝트 (0) | 2025.09.15 |
| 몰입형 우주 체험이 가능한 관람공간 / 콜콜 (0) | 2025.07.17 |
| 일본 전통 공간을 새로운 흐름으로, 갤러리 카타치 / 네기시 켄치쿠 스튜디오 (0) | 2025.04.23 |
| 헬스케어 브랜드의 미래적인 감각을 느낄 수 있는 곳 / 더블유유유엑스 아키텍처 디자인 스튜디오 (0) | 2025.03.17 |
마실와이드 | 등록번호 : 서울, 아03630 | 등록일자 : 2015년 03월 11일 | 마실와이드 | 발행ㆍ편집인 : 김명규 | 청소년보호책임자 : 최지희 | 발행소 : 서울시 마포구 월드컵로8길 45-8 1층 | 발행일자 : 매일



