
Rose Gallery
“존재하는 것은 이롭고, 비어 있는 것은 유용하다.” — 노자
사물은 ‘존재’이며, 공간은 ‘부재’이다. 로즈 갤러리(Rose Gallery)의 설계는 이 ‘부재의 여백’을 통해 존재의 본질을 드러내는 데 초점을 맞췄다. 공간은 고요한 그릇이 되어, 고대 도자기 하나하나의 아름다움을 가장 순수한 상태로 담아낸다.
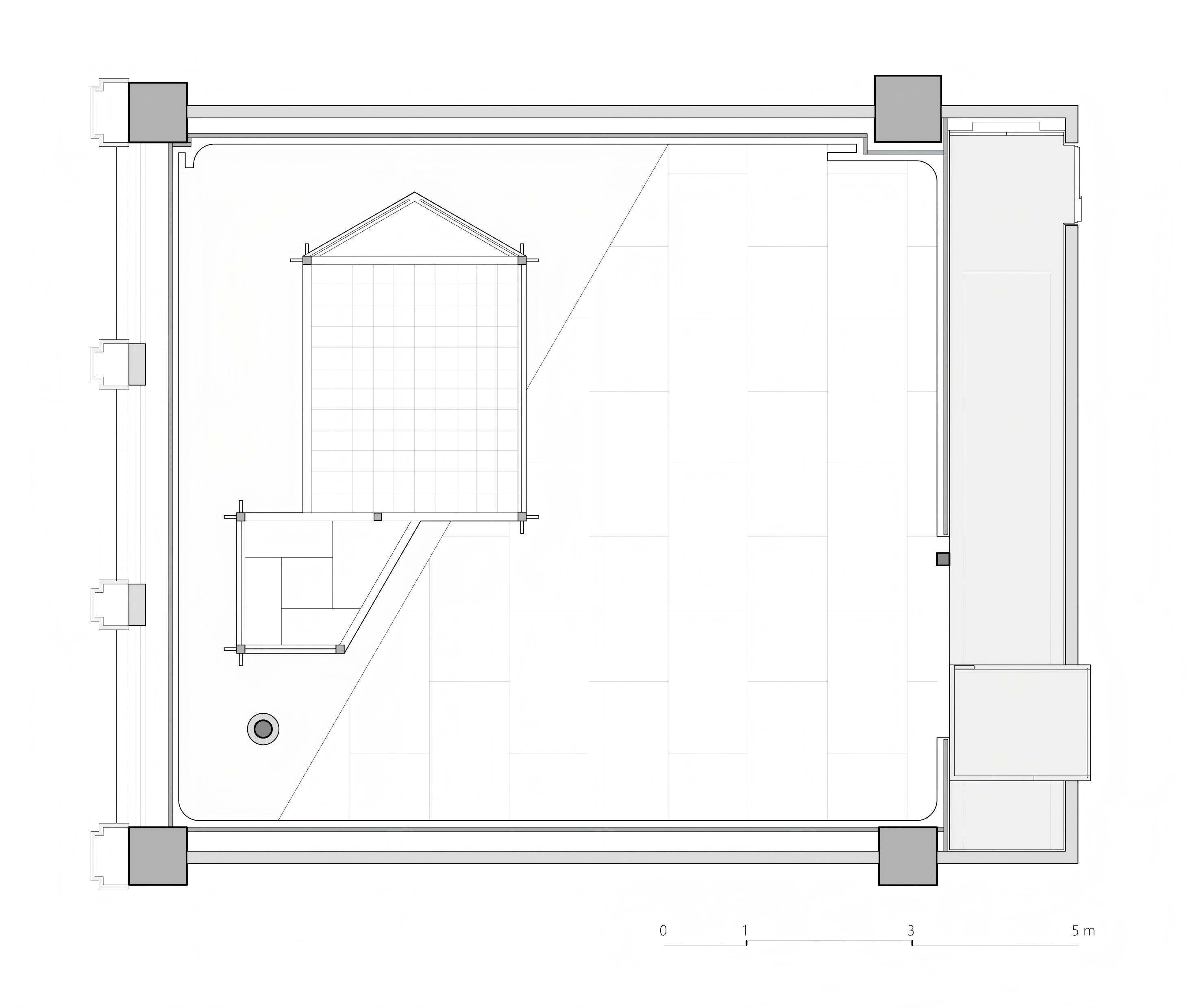
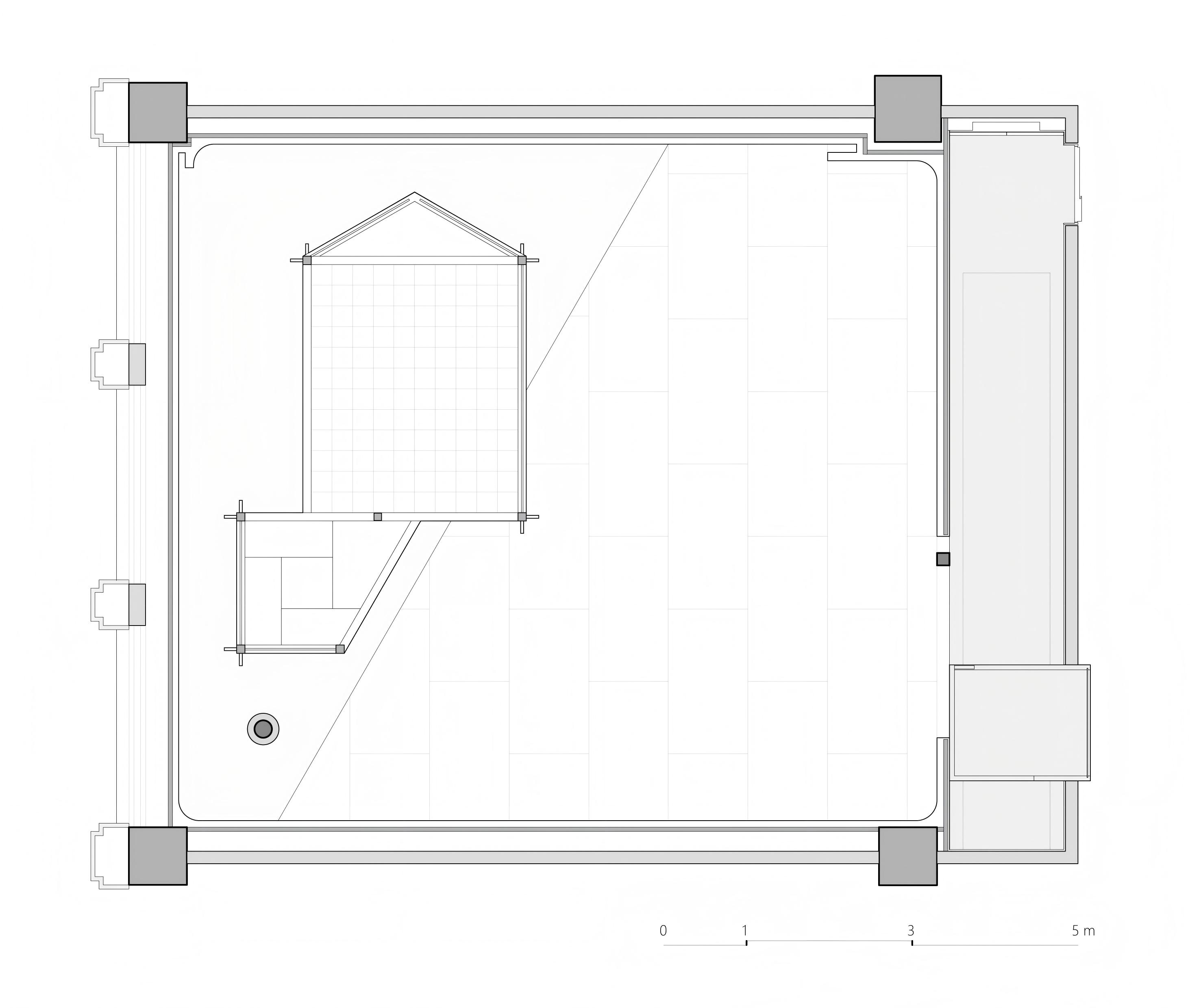
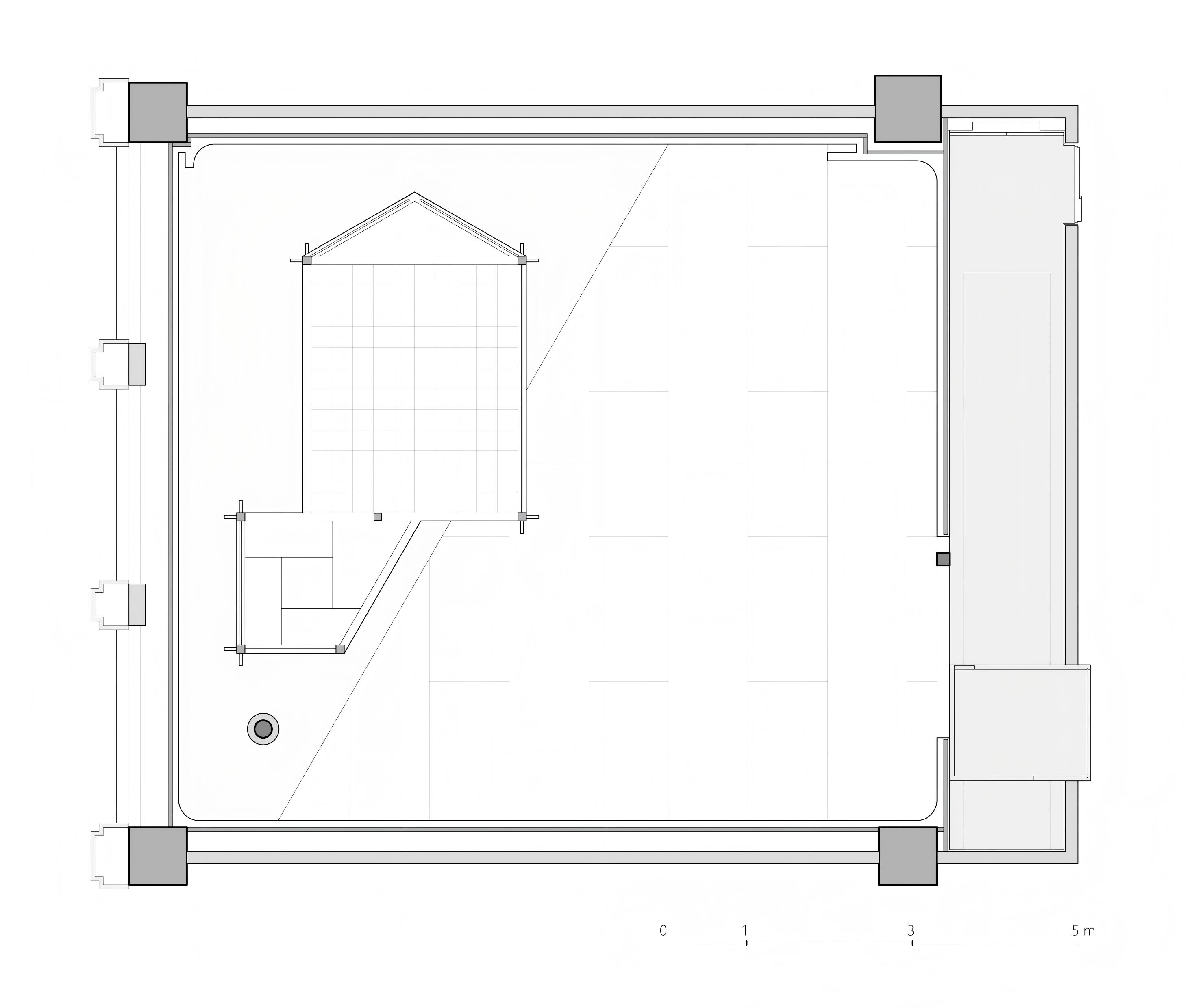
01. 공간: 공간 안의 또 다른 집
갤러리는 유약을 입히지 않은 백자처럼 순수하고 절제된 공간으로, 사물이 호흡하고 확장하며 존재할 수 있는 여백을 제공했다. 중국 전통 건축의 층층이 겹치는 공간적 깊이가 미묘하게 내재되어 있으며, 노출된 보 구조와 단독 기둥이 ‘콘크리트 박스’를 공간 안의 집(house within a house)으로 변모시켰다. 단정한 구조 안에 고대의 울림이 스며든다.
02. 빛과 그림자: 빛과의 대화
직사광의 날카로움은 없고, 부드럽고 확산된 빛이 사물을 감싼다. 이는 유리가 없던 시대, 나무 격자 사이로 스며들던 햇빛을 떠올리게 하며, 따스하고 은은한 분위기를 만든다. 빛이 어스름해질수록 건요 찻잔의 무지갯빛 광택, 고대 도자기의 깊은 풍화의 결이 드러난다. 이 빛은 시간을 잇는 매개로 작동하며, 오늘의 관람자가 과거의 예술적 정취 속에서 사물의 본질적 아름다움을 느낄 수 있게 한다.
03. 사물: 작은 것 안의 큰 세계
하나의 사물은 하나의 세계이다.
관람자는 화려한 진열 속에서 무언가를 찾는 대신, 조용히 앉아 천으로 싸인 보자기를 풀어가며 사물을 마주한다. 여운이 머무는 루요(汝窯)의 하늘빛 유약, 예측할 수 없는 건요(建窯)의 가마빛 효과, 그 속에는 작은 세계가 우주처럼 펼쳐진다. 몇 점의 도자기와의 느린 대화는 사물과 관람자의 내면을 연결한다. 이는 중국 문인 미학의 정수, “작은 것에서 큰 것을 본다(以小見大)”는 개념의 구현이다.










































건축가 더블유제이 스튜디오(WJ studio)
위치 중국, 저장성, 항저우
용도 전시공간
준공 2025. 9.
대표건축가 Hu Zhile
인테리어 Liu Yu'ao, Zhan Yuming, Wang Ying
시공 Hangzhou Maozhou Decoration Design Co.
발주자 Rose Gallery
사진작가 Yida, Rose Gallery, WJ STUDIO
'Interior Project > Exhibition' 카테고리의 다른 글
| 공중의 계단과 금빛 레진, 라틴 감성을 담은 구조적 서사 / 20–20–아르키테크티 (0) | 2025.10.30 |
|---|---|
| 공동체의 초상, 공간으로 확장된 아모아코 보아포의 세계 / 드로슈 프로젝트 (0) | 2025.09.15 |
| 몰입형 우주 체험이 가능한 관람공간 / 콜콜 (0) | 2025.07.17 |
| 일본 전통 공간을 새로운 흐름으로, 갤러리 카타치 / 네기시 켄치쿠 스튜디오 (0) | 2025.04.23 |
| 헬스케어 브랜드의 미래적인 감각을 느낄 수 있는 곳 / 더블유유유엑스 아키텍처 디자인 스튜디오 (0) | 2025.03.17 |
마실와이드 | 등록번호 : 서울, 아03630 | 등록일자 : 2015년 03월 11일 | 마실와이드 | 발행ㆍ편집인 : 김명규 | 청소년보호책임자 : 최지희 | 발행소 : 서울시 마포구 월드컵로8길 45-8 1층 | 발행일자 : 매일



