
Gallery Katachi
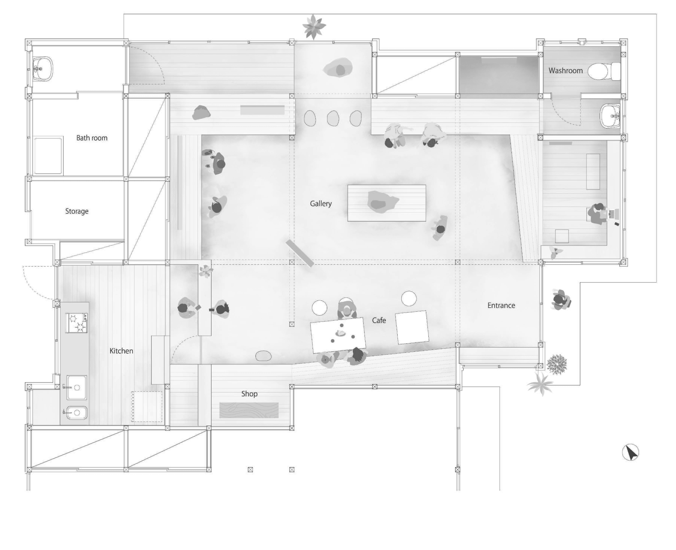
이 프로젝트는 지역 도시의 역사적 거리 풍경 속에 자리한 130년 된 전통 가옥의 리노베이션이다. 클라이언트는 이 공간을 상점이자 갤러리로 사용할 예정이다. 대상지는 기류시의 전통적 건축물군 보존지구 내에 위치하고 있으며, 거리 풍경 보존 조례에 따라 외관을 변경할 수 없고 내부만 개조할 수 있었다. 이러한 제한 속에서 자유롭고 개방적인 전시 공간을 어떻게 구성할 것인가가 과제였다.



우리는 오래된 민가의 잠재력을 믿으며, 건축 고유의 구조를 드러내고 유연하게 활용 가능한 공간으로 탈바꿈시켰다. 내부의 문틀과 칸막이를 걷어내면서 넓은 전시 공간이 생겨났고, 지붕의 강한 목구조는 오래된 가옥 특유의 세월의 깊이를 전달한다. 이미 충분히 매력적인 공간이었기에 불필요한 손을 대기보다는, 뒤틀린 천장과 낡은 다다미 바닥을 철거하는 것만으로 대부분의 계획을 실현할 수 있었다.



철거 후의 바닥은 노출 콘크리트 흙바닥으로 마감되며, 골목길에서부터 내부까지가 자연스럽게 이어지는 열린 접근성을 확보한다. 기존의 나무 마루에는 안쪽을 향하는 엔가와를 덧대어 흙바닥을 감싸는 구성으로 계획했으며, 실내 공간은 마치 도시 속의 작은 광장 혹은 큰 정자처럼 많은 사람들이 모일 수 있는 장소가 된다. 전시 공간은 예술가에게 자유롭게 위임되며, 프로젝트마다 다른 공간이 나타난다. 방문객은 작품과 공간이 어우러지는 독특한 분위기를 매번 새롭게 경험할 수 있다. 엔가와에 앉아 차를 마시며 작품을 감상하는 시간은 예술과 공간이 만나는 순간을 더욱 깊게 만들어준다.

건축가 네기시 켄치쿠 스튜디오(Negishi Kenchiku Studio)
위치 일본, 군마, 키류, 혼초
연면적 58㎡
준공 2022
대표건축가 Akira Negishi
시공 Okamurakengyo
사진작가 Shinsuke Hayakawa
'Interior Project > Exhibition' 카테고리의 다른 글
| 공동체의 초상, 공간으로 확장된 아모아코 보아포의 세계 / 드로슈 프로젝트 (0) | 2025.09.15 |
|---|---|
| 몰입형 우주 체험이 가능한 관람공간 / 콜콜 (0) | 2025.07.17 |
| 헬스케어 브랜드의 미래적인 감각을 느낄 수 있는 곳 / 더블유유유엑스 아키텍처 디자인 스튜디오 (0) | 2025.03.17 |
| 위즈덤 게이트 도시 문화 살롱 / 지엔 디자인 (0) | 2025.03.07 |
| Sustainable Intelligent Exhibition Hall for BMW in Changsha (0) | 2024.02.06 |
마실와이드 | 등록번호 : 서울, 아03630 | 등록일자 : 2015년 03월 11일 | 마실와이드 | 발행ㆍ편집인 : 김명규 | 청소년보호책임자 : 최지희 | 발행소 : 서울시 마포구 월드컵로8길 45-8 1층 | 발행일자 : 매일



