
Hangzhou Empathy Museum
항저우 엠퍼시 미술관은 미완성 상태로 남아 있던 건축물을 리모델링한 미술관이다.
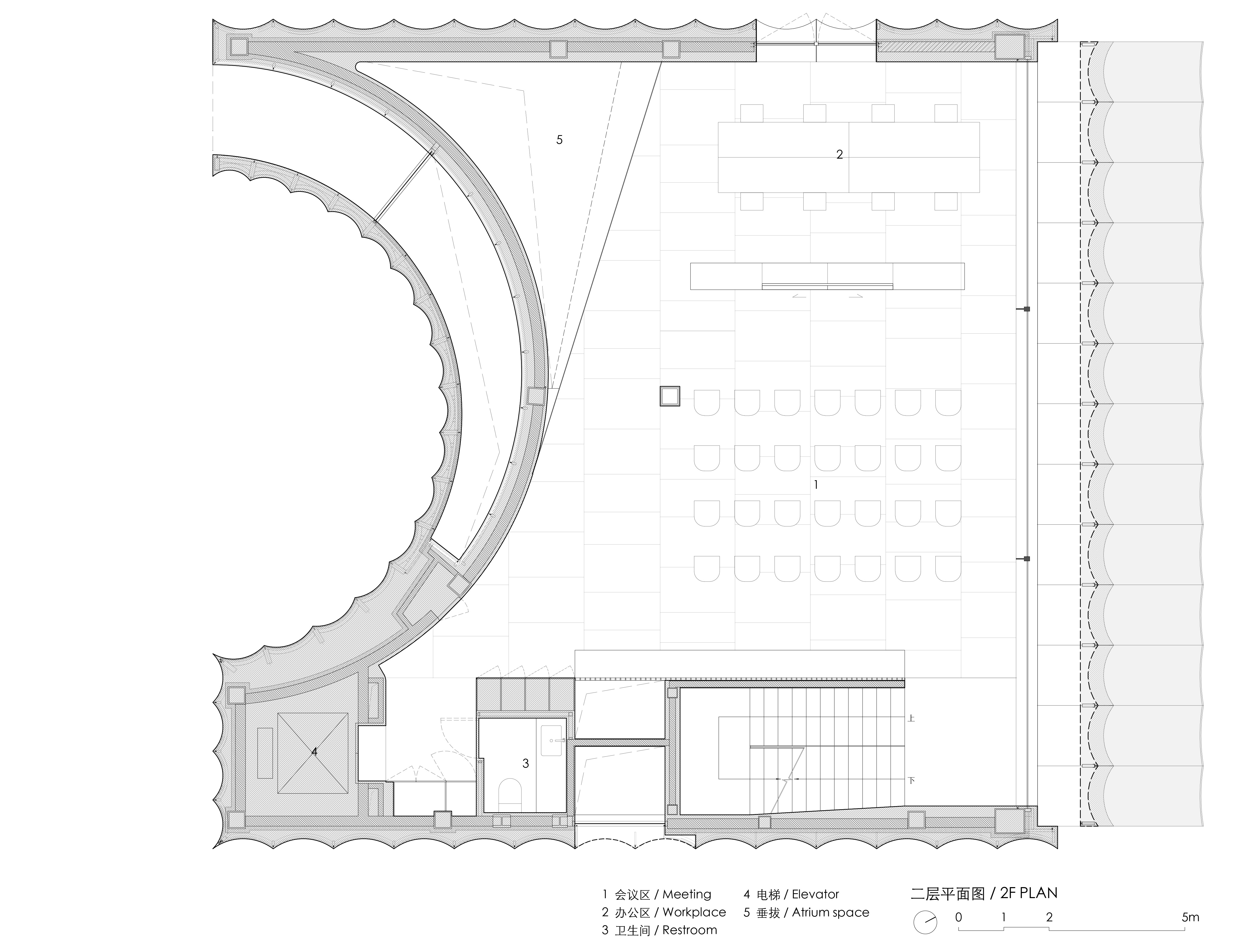
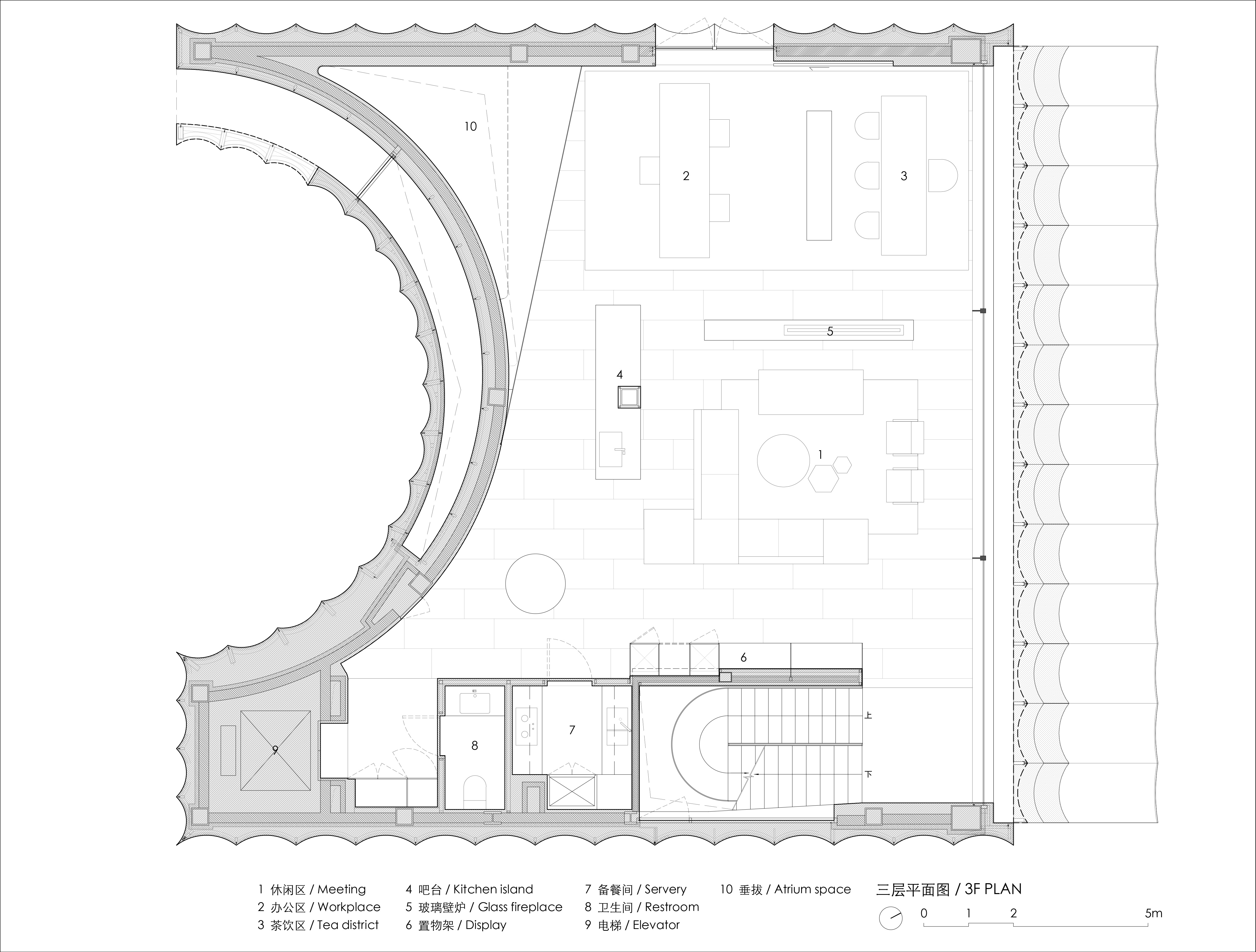
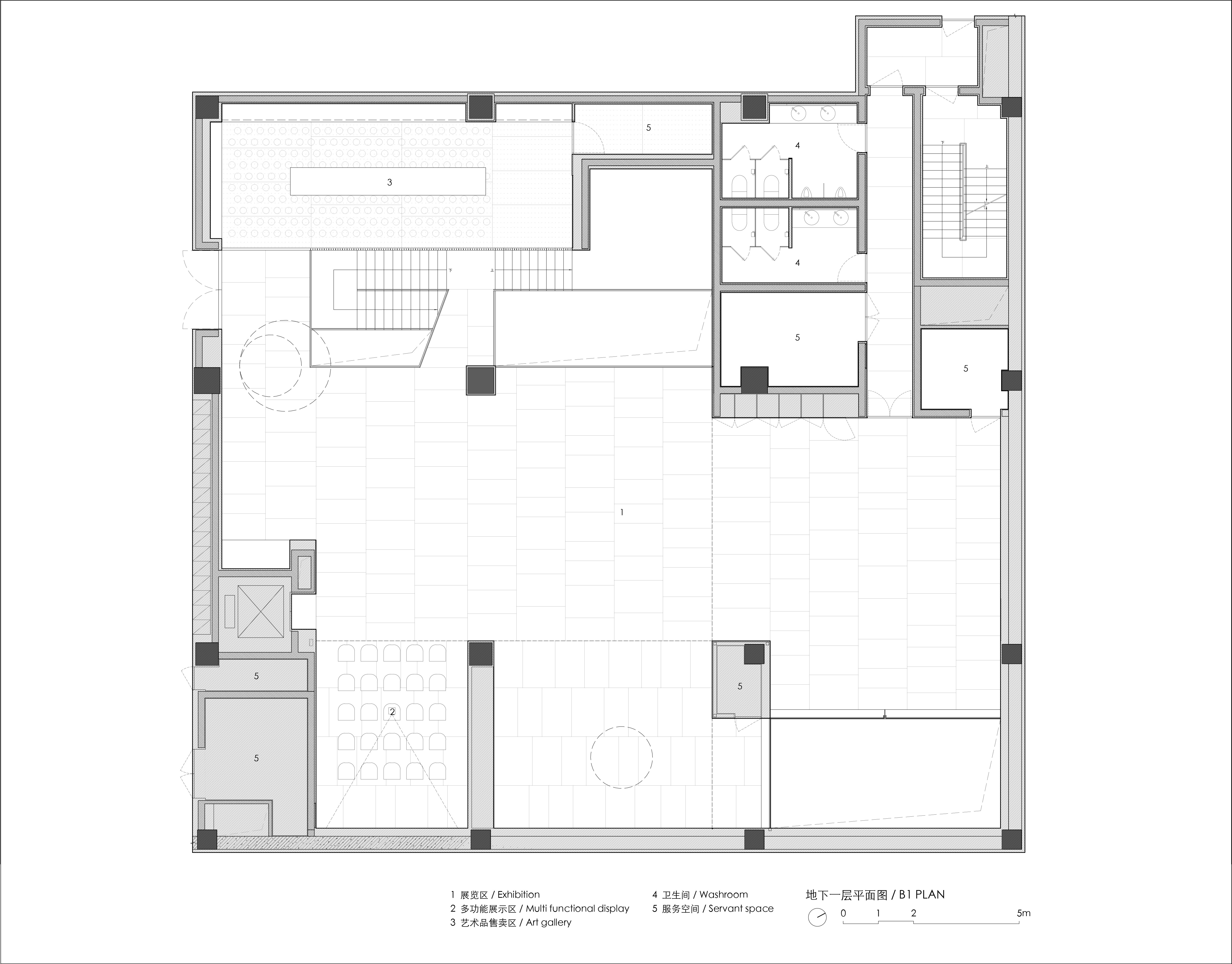
기존에는 지하 주차장이 이미 완성되어 있었고, 지상에는 3층 규모의 건축물이 들어설 계획이었다. 건축가는 미술관의 기능을 공간에 담기 위해 지하 공간 일부를 전시 공간으로 변경하고, 지상 공간과 유기적으로 연결하였다.
이 프로젝트는 ‘inside-out’ 방식의 설계 프로젝트다. 내부 프로그램의 변화가 기존 구조와 입면을 재편하며 완전히 새로운 건축으로 변모하였으며, 동시에 기존 건축물의 계획 조건과 지하 구조의 제약을 그대로 수용하였다.
건물은 하천을 마주하고 도시의 주요 간선도로와 인접한 위치에 놓여 있다. 도시를 향한 입면은 껍질이 벗겨지듯 열려 독립성과 개방성을 동시에 지닌 것 처럼 보인다. 외장은 곡면 스테인리스 패널로 구성되며, 재료 자체의 장력을 활용해 내부 보강재 없이 순수한 리듬감을 만들어낸다.
빛이 곡면 금속에 반사되며 건축은 조형적인 부드러움을 만들어내기도한다. 북측 입면의 타공 패널은 빛을 여과하며, 내부에서는 도시 풍경이 흐릿하게 스며든다. 2층 입면은 특정 각도로 들어 올려져 1층 캐노피의 구조적 지지 역할을 하며, 중국 전통 건축의 처마와 비슷한 느낌을 낸다.
건축물 상부에 3개 층을 관통하는 천창을 만들어 빛이 1층까지 들 수 있도록 했는데, 이 모습이 마치 '빛의 협곡'을 연상시킨다. 이는 방문자가 일상에서 예술 공간으로의 전환을 경험할 수 있도록 유도하는 역할을 한다. 이 공간은 과장된 기념성 대신 인간의 신체 감각에 집중한 스케일을 드러낸다. 1층은 북측으로 열리며 캔틸레버와 결합해 건물과 도시의 경계를 흐린다. 건물의 코너에는 수직 보이드가 형성되어 세 개의 지상층을 연결하며, 예각으로 만들어진 공간에 개방성을 부여한다. 동시에 상부에서 내려오는 빛이 상징적인 분위기를 만들기도 한다.
계단은 벽면을 따라 오르내릴 수 있도록 되어있는데, 계단의 일부가 타공 패널과 맞닿아 있어 이용자들의 움직임과 건물 내부의 역동성을 파사드를 통해 도시로 전달할 수 있다.
지하 전시 공간과 지상 공간의 연결을 위해 구조 슬래브 일부를 제거하고, 자연광과 조경을 지하로 끌어들였다. 이를 통해 지상과 지하 공간은 하나의 연속적이고 유동적인 흐름으로 통합된다. 이 건축물은 예술이 한 곳에 머무르지 않고 일상의 일부가 되어야 한다는 태도를 바탕으로, 현대 도시의 밀도 속에 고요한 정신적 공간을 만들어낸다.

















































건축가 티에이오에이 (TAOA)
위치중국, 항저우, 샤오산구
용도 뮤지엄, 미술관
건축면적 570㎡
연면적 1,628㎡
설계기간 2022 – 2024
준공 2025
대표건축가 Tao Lei
프로젝트건축가 Tao Lei
디자인팀 Tao Lei, Chen Zhen, Cui Xiang, Tao Ye, Meng Xiangrui, Wang Shuchen, He Xiaotian
인테리어 티에이오에이 (TAOA)
구조엔지니어 Zhejiang Institute of Architectural Design and Research
시공 Hangzhou Jingyi Decoration Engineering Co., Ltd.
발주자 Empathy Culture Communication Co., Ltd.
사진작가 Tao Lei
'Interior Project > Exhibition' 카테고리의 다른 글
| 산업 유산 위에 삽입된 콘크리트 코어, 슈안 갤러리1 / 진 치우예 스튜디오 (0) | 2025.12.16 |
|---|---|
| 공중의 계단과 금빛 레진, 라틴 감성을 담은 구조적 서사 / 20–20–아르키테크티 (0) | 2025.10.30 |
| 공간 안의 집, 사물을 위한 그릇 / 더블유제이 스튜디오 (0) | 2025.10.29 |
| 공동체의 초상, 공간으로 확장된 아모아코 보아포의 세계 / 드로슈 프로젝트 (0) | 2025.09.15 |
| 몰입형 우주 체험이 가능한 관람공간 / 콜콜 (0) | 2025.07.17 |
마실와이드 | 등록번호 : 서울, 아03630 | 등록일자 : 2015년 03월 11일 | 마실와이드 | 발행ㆍ편집인 : 김명규 | 청소년보호책임자 : 최지희 | 발행소 : 서울시 마포구 월드컵로8길 45-8 1층 | 발행일자 : 매일



