
Borová Lada Cottage
보헤미안 숲의 깊숙한 곳으로 이어지는 길을 따라가면, 마을을 지나 언덕 위에 자리한 19세기 말 코티지가 나타난다. 이번 프로젝트는 세월의 변화에도 자리를 지켜온 이 집의 ‘살아 있음’ 자체에서 기쁨을 발견하고, 주변 환경과 조화롭게 머무는 조용한 이웃으로 다시 태어나게 하는 데 목적을 두었다.
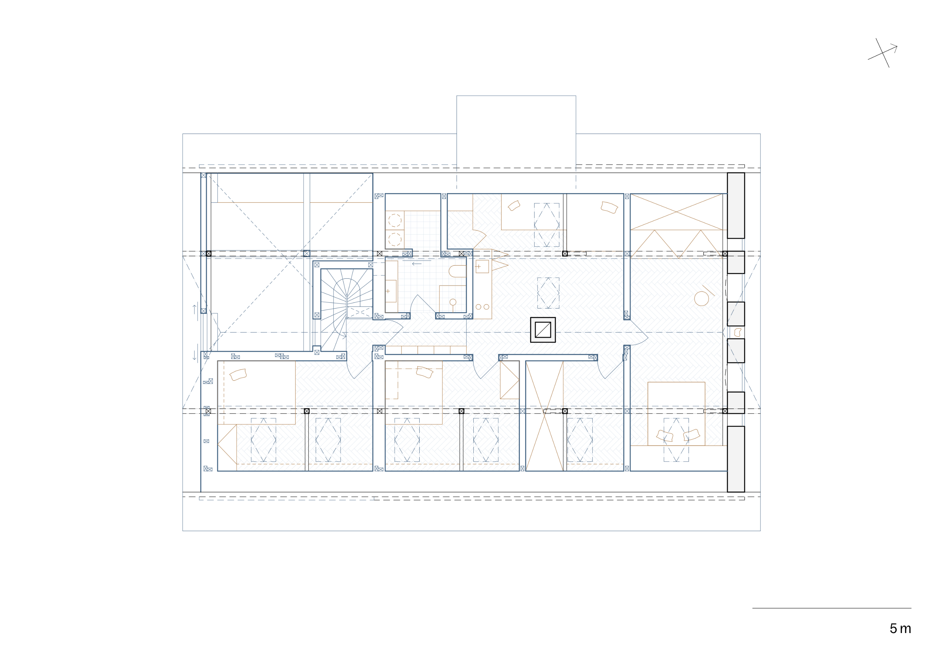
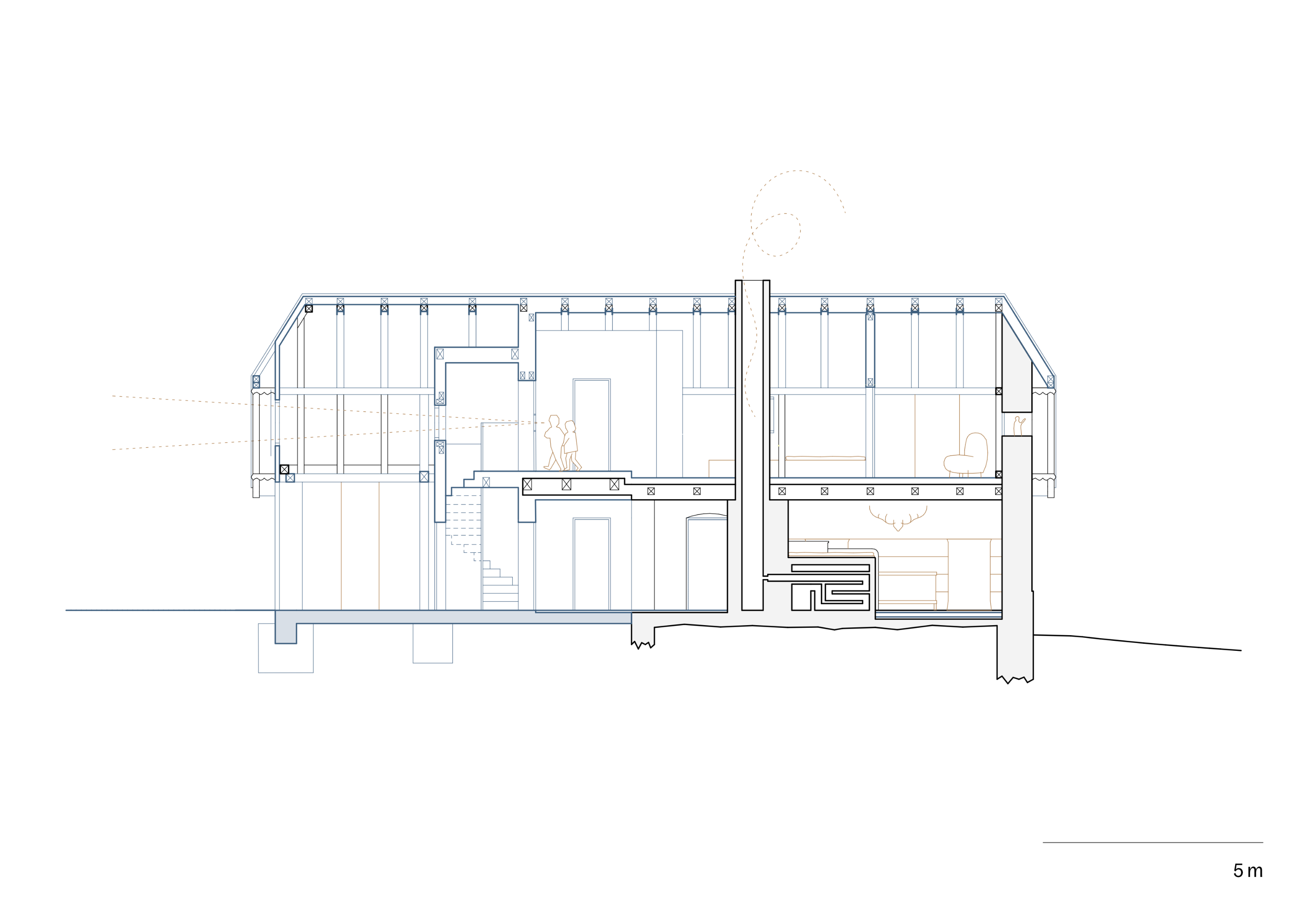
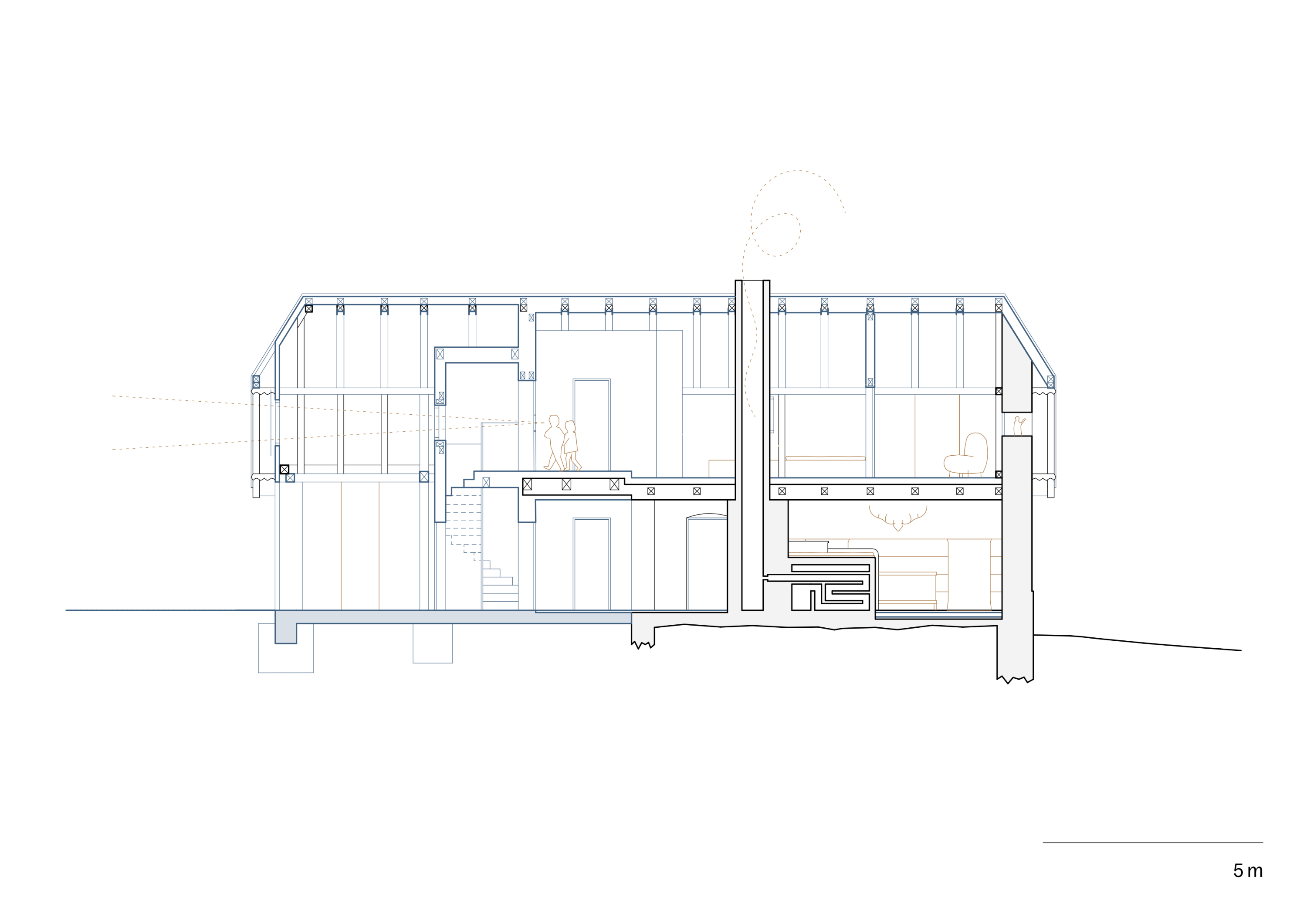
리노베이션은 건물의 물리적·역사적 층위를 존중하는 방식으로 이루어졌다. 기존 건물에는 수십 년간 잘못된 개보수로 인해 구조적 훼손이 남아 있었지만, 우리는 이 결함을 새로운 공간적 기회로 전환했다. 과거 손상되었던 부분은 이제 집의 중심이 되는 거실이 되었고, 이 공간은 정원과 기존 부에 위치한 주방을 자연스럽게 이어주는 ‘심장부’로 재탄생했다. 헛간은 수직 증축을 통해 간단한 작업 공간 또는 내부와 외부, 온기와 냉기 사이에 놓인 가을 모임 공간으로 쓰일 수 있도록 열려 있다. 새롭게 구성된 평면은 세대 간 공동 사용을 가능하게 하고, 두 개의 유닛과 공유 공간은 중앙 계단을 중심으로 연결된다.
집의 실루엣은 원형을 그대로 유지했다. 대신 대형 개구부를 도입해 실내가 풍부한 자연광과 주변 풍경을 품도록 했으며, 필요한 경우 외부 시선과 악천후를 차단하는 큰 셔터가 외면을 단정하게 감싸도록 했다. 셔터 레일과 노출 콘크리트는 가리지 않고 남겨 두어, 역사적 풍경 속에서도 이번 리노베이션이 더한 새로운 층위가 분명하게 드러나도록 했다.
새 보강 구조는 세 개의 거대한 철근콘크리트 기둥으로 구성되며, 이것은 80~90년대에 잘못된 보수로 인해 다시 시공해야 했던 헛간의 새 기초와 함께 타설되었다. 기존 지붕 트러스는 최대한 보존했고, 무거운 콘크리트 기와를 알루미늄 기와로 교체했으며 일부 서까래는 노출 철골 보로 보강했다. 이 보강 덕분에 새 생활 공간을 마련할 수 있었고, 지붕 단열도 가능해졌다.
새로 삽입된 매스는 다락과 옛 마구간 자리에 ‘나사로 박아 넣은 듯한’ 구조로 자리하며, 현대식 목구조에 섬유 시멘트 보드와 합판으로 마감했다. 이 삽입 구조는 위생 공간 등을 수용하며 기존 구조와 분리해 습기 침투를 억제하면서도, 역사적 외피의 투습성을 유지하도록 설계했다. 1층에서는 기존 목재 바닥 일부와 타일 난로를 보존했다. 난로는 매력적이지만 일상 난방은 공기열원 히트펌프가 담당하며, 스마트홈 시스템을 통해 전기 설비 및 모터 구동 외부 셔터와 함께 제어된다.
새 구조와 기존 집의 성격 사이의 균형은 맞춤 제작된 가구 시리즈 ‘베드르지흐(Bedřich)’로도 이어진다. 접이식 식탁, 침대, 벤치를 포함한 이 오크 가구는 보존된 공간 속 기존 가구들과 조화를 이루며, 정교한 디테일이 목공의 솜씨를 드러낸다.
여러 난관에도 불구하고, 이번 프로젝트는 ‘별장 문화’라는 현상을 다시 돌아보게 한다. 만약 이런 문화가 없었다면, 이 코티지는 오늘날까지 버텨내지 못했을지도 모른다. 단열된 지붕 디테일 역시 세대를 이어온 체코산 니트 모자 ‘즈미요프카(zmijovka)’의 가장자리를 연상시키며, 이 집을 오랫동안 지켜온 생활의 기억에 경의를 표한다.















































건축가 스튜디오 플리시 (Studio Plyš)
위치 체코, 보로바라다
용도 단독주택
건축면적 190㎡
연면적 333㎡
규모 지상 2층
준공 2024
시공 Rynostav
사진작가 Tomáš Slavík
'Architecture Project > Single Family' 카테고리의 다른 글
| 수평의 풍경, 수직의 나무, 오크나무를 품은 주택 증축 프로젝트 / 파이바 아르키테크티 (0) | 2025.11.13 |
|---|---|
| 3D 프린팅이 만든 협소주택의 새로운 모델/ 오디에이 아키텍츠 (0) | 2025.11.12 |
| 기억을 재구축한 구조, 농가의 현대적 해석/ 페파 디아스 아르키텍타 (0) | 2025.11.10 |
| 자연과 건축이 맞물린 공간의 주름 / 카바예로 콜론 (0) | 2025.11.05 |
| 빛과 식물이 자라는 목구조 주택 / 헤! 아키텍튀르 (0) | 2025.11.04 |
마실와이드 | 등록번호 : 서울, 아03630 | 등록일자 : 2015년 03월 11일 | 마실와이드 | 발행ㆍ편집인 : 김명규 | 청소년보호책임자 : 최지희 | 발행소 : 서울시 마포구 월드컵로8길 45-8 1층 | 발행일자 : 매일



