
Lyco house
브뤼셀에서 30km 떨어진 벨기에 페핑언의 녹지 풍경 속에 자리한 이 프로젝트는 기존 매스를 과감히 절제해 만든 삼각형 중정을 핵심 제스처로 삼는다. 이 중정은 오래된 헛간 내부로 자연광을 깊게 끌어들이며 실내와 외부 풍경을 부드럽게 잇는 새로운 전환 공간이 된다.
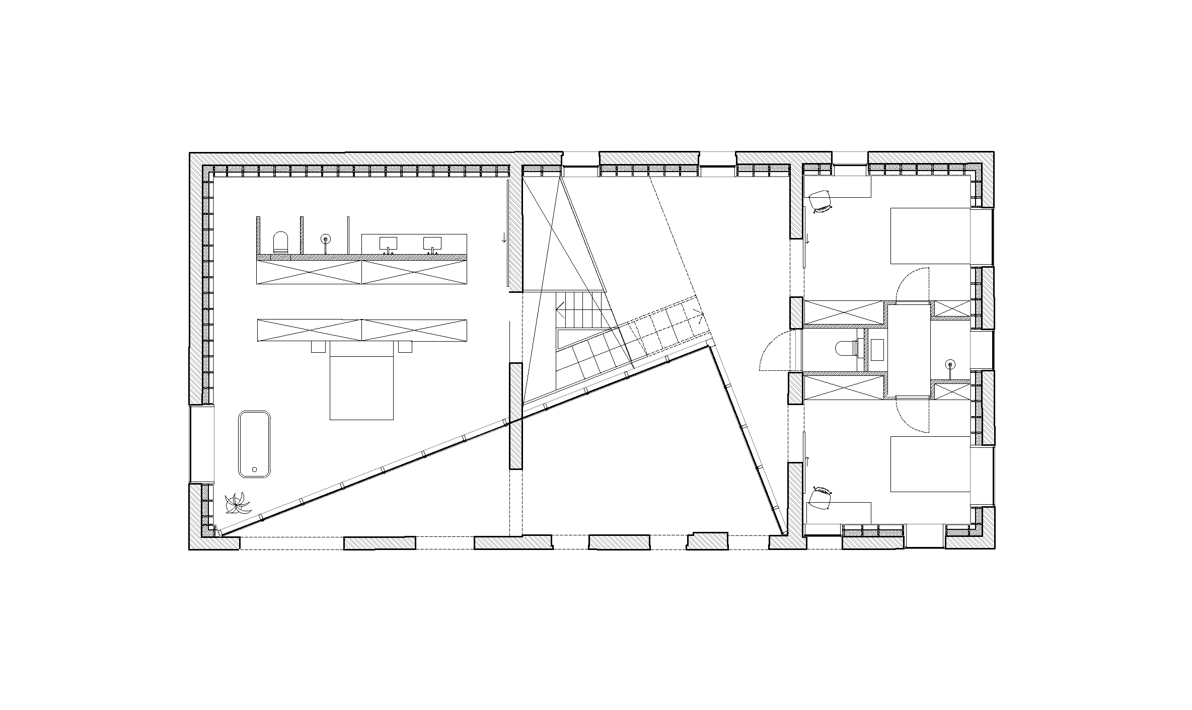
이번 프로젝트의 가장 큰 과제는 기존 외벽을 보존한 채 내부를 완전히 재구성하는 일이었다. 건축가는 일부 볼륨을 덜어내는 전략적 개입을 통해 오래된 헛간이 지녔던 어둡고 폐쇄적인 인상을 걷어내고, 중심 중정을 기준으로 다양한 레벨과 동선이 교차하는 밝은 공간으로 탈바꿈시켰다. 거리에서 보이는 정면은 여전히 전통적인 헛간의 표정을 유지하지만, 반대쪽 파사드는 완전히 새로운 공간감을 드러내며 예상 밖의 변화를 만든다.
오와이오 아키텍츠는 “안정감 있는 실내 분위기를 확보하되, 기존과 새로 만든 창을 통해 풍경의 시선을 최대한 간결하고 힘 있게 끌어들이는 것”을 목표로 삼았다고 설명한다.
실내는 복층, 중층, 이중고을 조합한 입체적 구성으로 조직되며, 이들을 잇는 기하학적 형태의 녹색 스틸 계단이 공간의 조형적 중심을 이룬다. 주방과 거실, 테라스, 정원은 레벨 변화를 통해 자연스럽게 연결되어 실내·외 경계가 흐려지는 독특한 공간감을 만든다.
생활의 중심은 주방이며, 연어빛의 대형 아일랜드가 시선을 사로잡는다. 밝은 파인우드 천장과 폴리시드 시멘트 바닥, 짙은 목재의 맞춤 가구가 조화를 이루며, 녹색과 테라코타 컬러 포인트가 더해져 부드러우면서도 온화한 분위기를 완성한다.
건축가는 오래된 석면 지붕을 철거하고 단열 및 친환경 재료를 보강하는 등 에너지 효율을 극대화하는 순환적 재료 전략을 도입했다. 더불어 태양광 패널 등 친환경 기술을 적용하여 지속 가능한 주택의 모델을 보여준다.
조경가 데니스 뒤자르댕은 지역 식생을 기반으로 한 조경을 통해 건축과 풍경을 조화롭게 연결했다. 추가로, 부지의 강우를 자연 연못으로 유도해 정화·침투시키는 절제된 수문 계획도 더해졌다.
Lyco House는 기존 헛간의 정서를 존중하면서도, 현대 주거 환경이 요구하는 공간성·에너지 전략·조경적 연속성을 모두 아우르는 오와이오 아키텍츠의 대표적 접근을 보여준다. ‘과거와 미래가 공존하는 농가 주택의 새로운 모델’이라 할 수 있다.
































건축가 오와이오 아키텍츠 (OYO Architects)
위치 벨기에, 페핑헨
용도 단독주택
건축면적 312㎡
규모 지상 3층
설계기간 2019
시공기간 2022 - 2024
준공 2024
디자인팀 Eddy Soete, Eva Delrue, Xander Denduyver, Thomas Cotton
구조엔지니어 De Roover Structureel Ontwerp
조경 Denis Dujardin
사진작가 Karen Van der Biest
'Architecture Project > Single Family' 카테고리의 다른 글
| 내부와 외부가 서로를 비추는 집 / 미모사 아키텍츠 (0) | 2025.11.24 |
|---|---|
| 사라진 입면과 열린 경계, 자연과 공존하는 코스타리카의 스튜디오 하우스 / 포르마파탈 (Formafatal) (0) | 2025.11.21 |
| 하늘창과 하이사이드 조명으로 구성한 식물 애호가의 주택 / 후지와라무로 아키텍츠 (0) | 2025.11.18 |
| 기존 목구조와 신설 철근콘크리트 코어의 공존을 통한 전통 코티지 리노베이션 / 스튜디오 플리시 (0) | 2025.11.13 |
| 수평의 풍경, 수직의 나무, 오크나무를 품은 주택 증축 프로젝트 / 파이바 아르키테크티 (0) | 2025.11.13 |
마실와이드 | 등록번호 : 서울, 아03630 | 등록일자 : 2015년 03월 11일 | 마실와이드 | 발행ㆍ편집인 : 김명규 | 청소년보호책임자 : 최지희 | 발행소 : 서울시 마포구 월드컵로8길 45-8 1층 | 발행일자 : 매일



