
Family House in Mature Garden
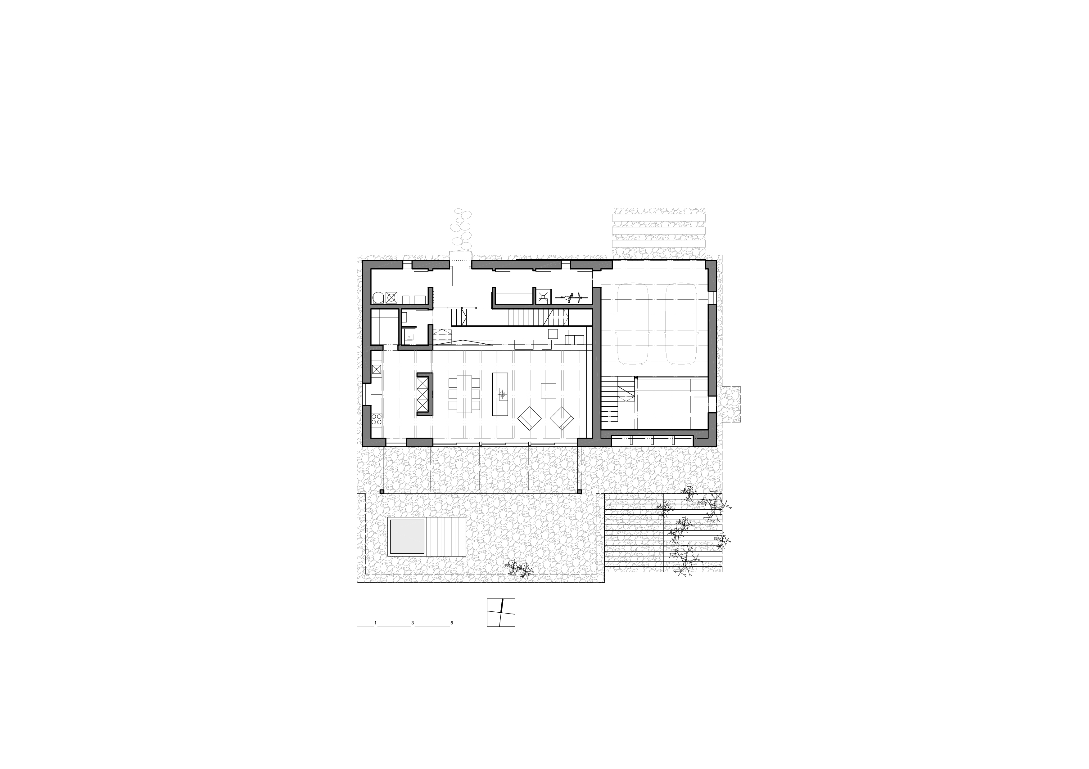
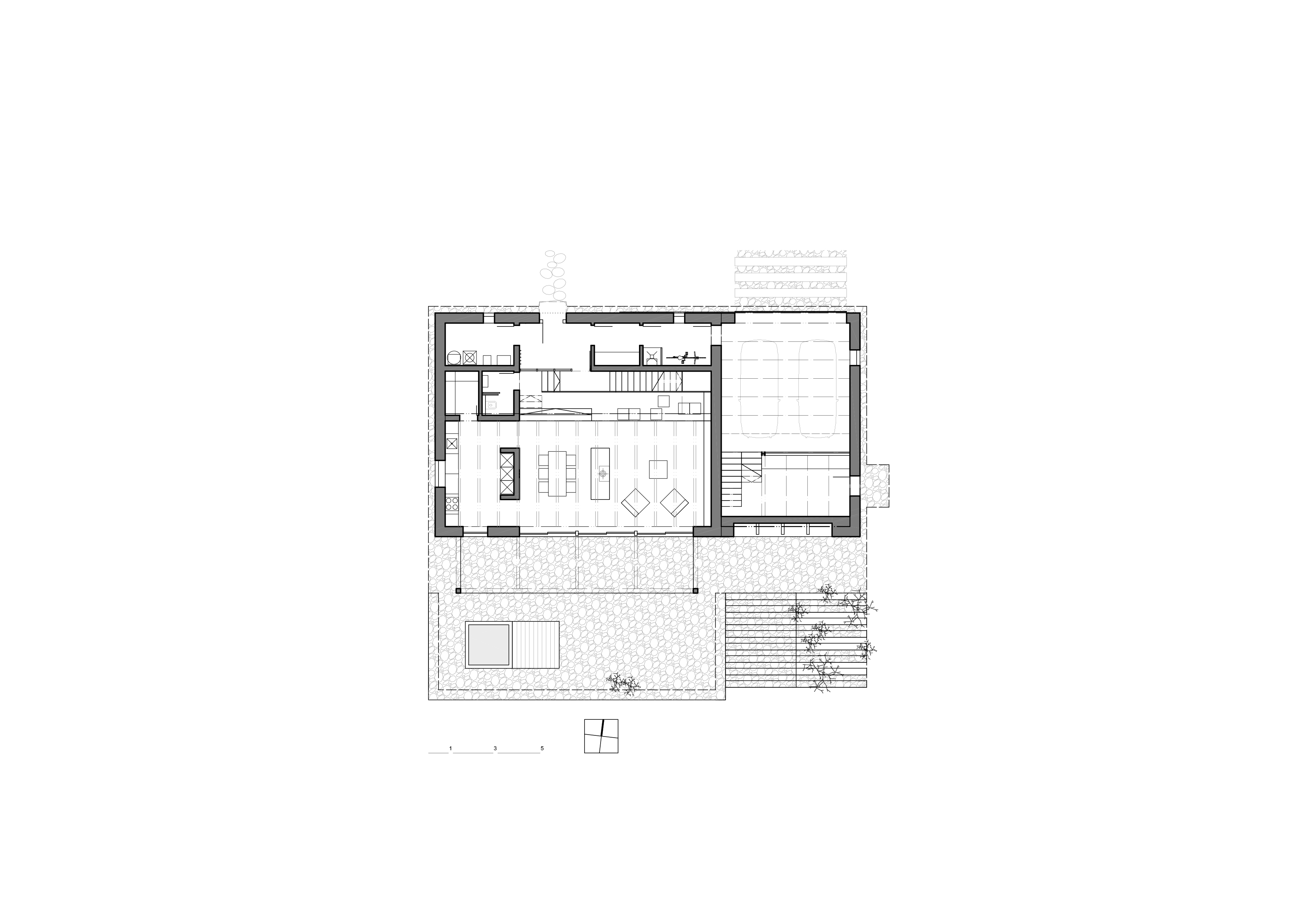
브라니(Vraný)에 자리한 이 주택은 이웃집 박공지붕 사이를 흐르듯 내려가는 야생 정원 속에 담겨 있다. 남쪽으로 완만하게 떨어지는 경사지 덕분에 집은 정원과 주변 풍경을 향해 자연스럽게 열리고, 내부 공간은 지형의 기울기와 정원의 깊이, 각 실의 비례에 따라 정교하게 구성되었다. 중심에는 다섯 개 층위를 잇는 넓은 홀을 두었고, 가장 아래층은 정원과 직접 연결되는 생활 공간으로 테라스를 통해 외부로 자연스럽게 확장된다. 가장 높은 층에는 지붕선까지 이어지는 서재가 자리한다.
외관은 단순한 시골집의 표정을 하고 있지만, 비정형적으로 배치된 창문들이 내부의 입체적 구성을 은근히 드러낸다. 재료 선택 역시 내부와 외부를 유기적으로 연결한다. 외부에는 거칠게 제재된 무가공 목재를, 내부에는 오일 처리한 목재를 사용했고, 지역에서 채석한 돌과 검은 금속을 더해 자연스러운 질감을 유지했다.
정원은 원래 상태를 가능한 한 그대로 유지해 그 고유한 성격을 살렸다. 집은 외부에서는 나무와 관목 사이에 조용히 스며들고, 내부에서는 예상치 못한 시선과 다양한 장면을 만들어내며 반대로 정원을 하나의 풍경처럼 끌어들인다. 정원 곳곳에 자연스럽게 형성된 반외부적 공간들은 이 집의 생활 경험에 깊이와 친밀감을 더한다.





























건축가 미모사 아키텍츠 (Mimosa Architects)
위치 체코, 브라니
용도 단독주택
대지면적 1,770㎡
건축면적 190㎡
규모 지상 2층
설계기간 2012
준공 2023
사진작가 Petr Polák
'Architecture Project > Single Family' 카테고리의 다른 글
| 두 개의 매스로 완성한 전원 주택의 재구성 / 이카 아르키텍티 (0) | 2025.11.24 |
|---|---|
| 지형을 읽는 건축, 경사와 숲을 품은 목구조 단독주택 / 3에이이 (0) | 2025.11.24 |
| 사라진 입면과 열린 경계, 자연과 공존하는 코스타리카의 스튜디오 하우스 / 포르마파탈 (Formafatal) (0) | 2025.11.21 |
| 삼각형 중정으로 재구성된 헛간 주택, 공간 재탄생 / 오와이오 아키텍츠 (0) | 2025.11.18 |
| 하늘창과 하이사이드 조명으로 구성한 식물 애호가의 주택 / 후지와라무로 아키텍츠 (0) | 2025.11.18 |
마실와이드 | 등록번호 : 서울, 아03630 | 등록일자 : 2015년 03월 11일 | 마실와이드 | 발행ㆍ편집인 : 김명규 | 청소년보호책임자 : 최지희 | 발행소 : 서울시 마포구 월드컵로8길 45-8 1층 | 발행일자 : 매일



