
이 주택은 20세기 초, 사자바(Sázava) 강 위의 암반 경사면 가장자리에 지어졌다. 2010년에는 주요 리노베이션과 정원 방향의 돌출부 확장이 이루어졌으나, 시간이 지나며 주택의 규모가 더 이상 가족의 생활에 충분하지 않다는 점이 드러났다. 클라이언트는 창작 활동을 위한 밝고 개방적인 스튜디오 공간, 그리고 욕실과 화장실을 갖춘 독립된 침실 영역을 원했다.
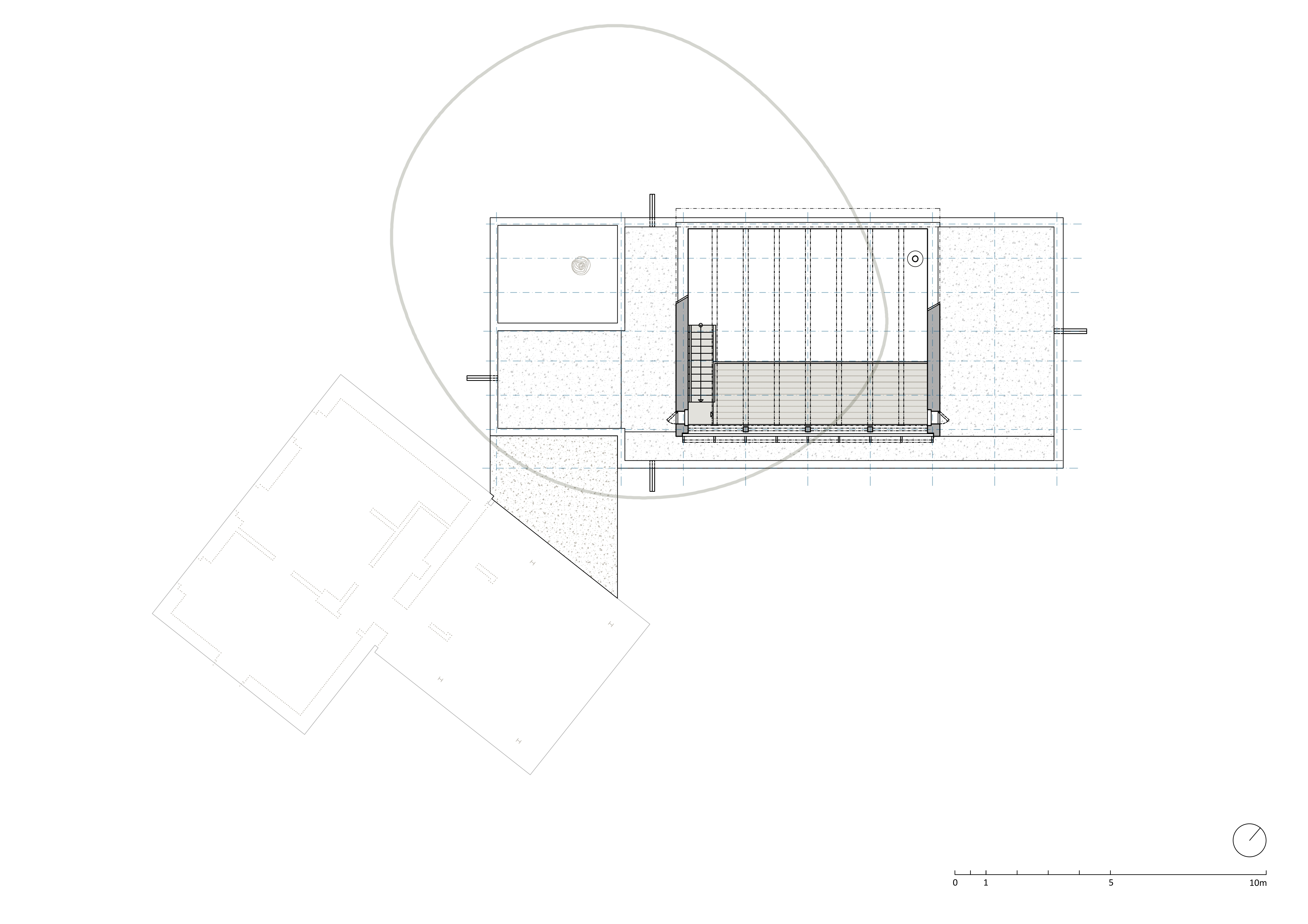
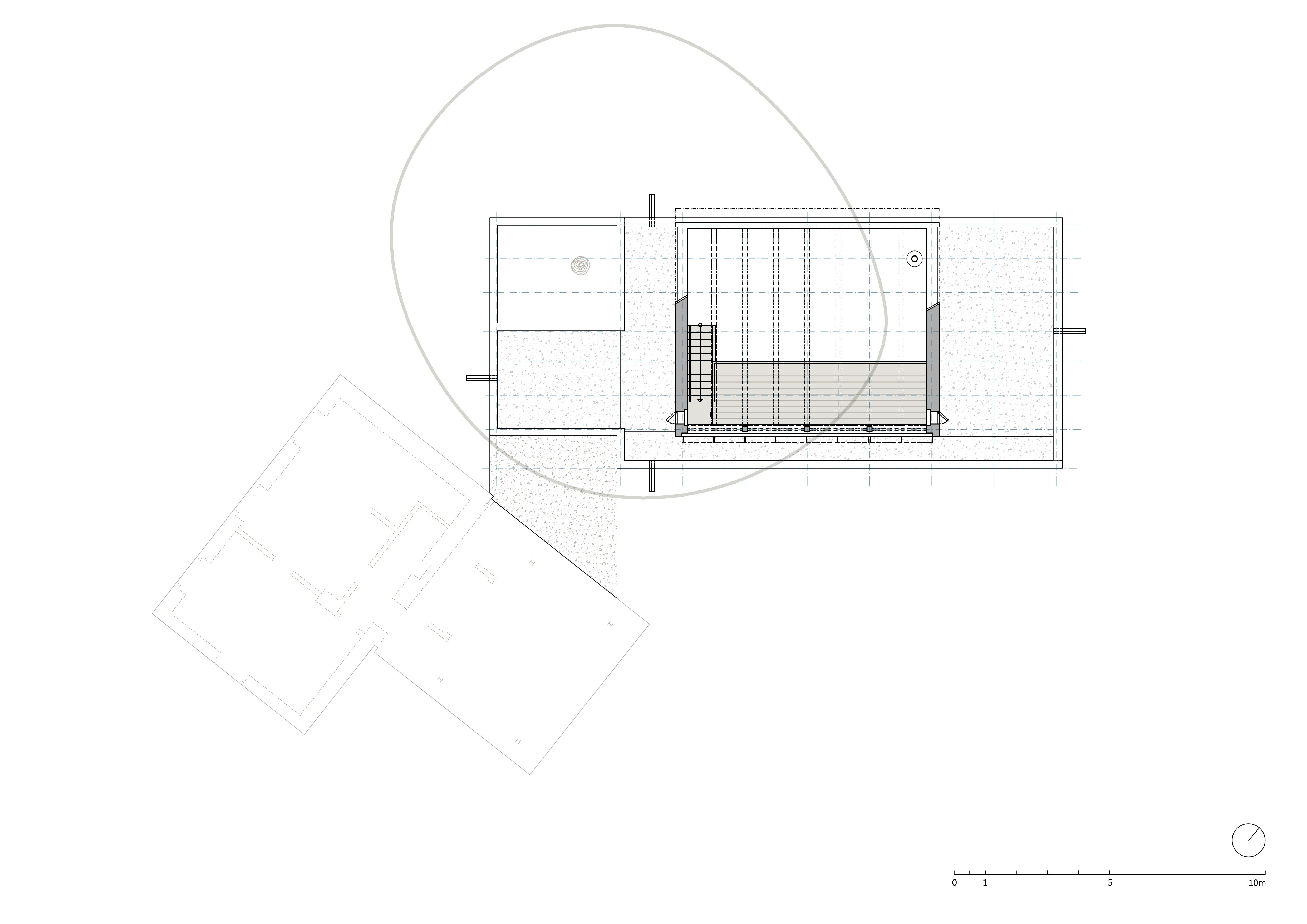
부지의 형태와 지형, 자라난 나무들을 고려한 결과, 정원에서 바라보는 사자바 계곡과 메드니크산 정상의 조망을 유지하는 것이 중요했다. 이에 증축부는 숲과 정원의 경계에 별동 형태로 배치되었으며, 기존 주택과는 성숙한 참나무 한 그루를 품은 지붕이 있는 테라스로 연결되었다. 정원 방향으로는 덮개가 있는 보행 통로가 계획되었고, 건물은 미닫이창을 통해 테라스와 계곡 쪽으로 열리며, 반대편 모서리는 기존 건물과 맞닿도록 닫힌 형태로 배치되었다. 스튜디오 내부에는 단순한 매달린 갤러리가 삽입되어 있다. 증축부의 형태적 언어는 기존 주택의 맥락을 따르고 있다.
구조적 해결 방식은 클라이언트가 직접 시공에 참여할 수 있도록 계획되었다 외장은 탄화 낙엽송 판재로 마감되었으며, 내부는 스프러스 바이오보드로 마감해 가구와 수납을 일체화했다.
이 프로젝트는 ‘셀프 빌드'와 ‘자연과의 공존’을 결합한 사례로, 기존 건축의 맥락을 존중하면서 새로운 창작 공간을 더한 확장형 주택이다.














































건축가 파이바 아르키테크티 (päivä architekti)
위치 체코, 이일로베 우 프라하, 루카 포드 메드니켐
용도 단독주택
대지면적 1,618㎡
건축면적 159㎡
연면적 87㎡
규모 지상 1층
설계기간 2020 - 2023
준공 2024
디자인팀 Klára Jeníková
사진작가 Radek Úlehla
'Architecture Project > Single Family' 카테고리의 다른 글
| 3D 프린팅이 만든 협소주택의 새로운 모델/ 오디에이 아키텍츠 (0) | 2025.11.12 |
|---|---|
| 기억을 재구축한 구조, 농가의 현대적 해석/ 페파 디아스 아르키텍타 (0) | 2025.11.10 |
| 자연과 건축이 맞물린 공간의 주름 / 카바예로 콜론 (0) | 2025.11.05 |
| 빛과 식물이 자라는 목구조 주택 / 헤! 아키텍튀르 (0) | 2025.11.04 |
| 빛과 바람이 흐르는 노출 콘크리트 주택 / 후지와라무로 아키텍츠 (0) | 2025.11.03 |
마실와이드 | 등록번호 : 서울, 아03630 | 등록일자 : 2015년 03월 11일 | 마실와이드 | 발행ㆍ편집인 : 김명규 | 청소년보호책임자 : 최지희 | 발행소 : 서울시 마포구 월드컵로8길 45-8 1층 | 발행일자 : 매일



