
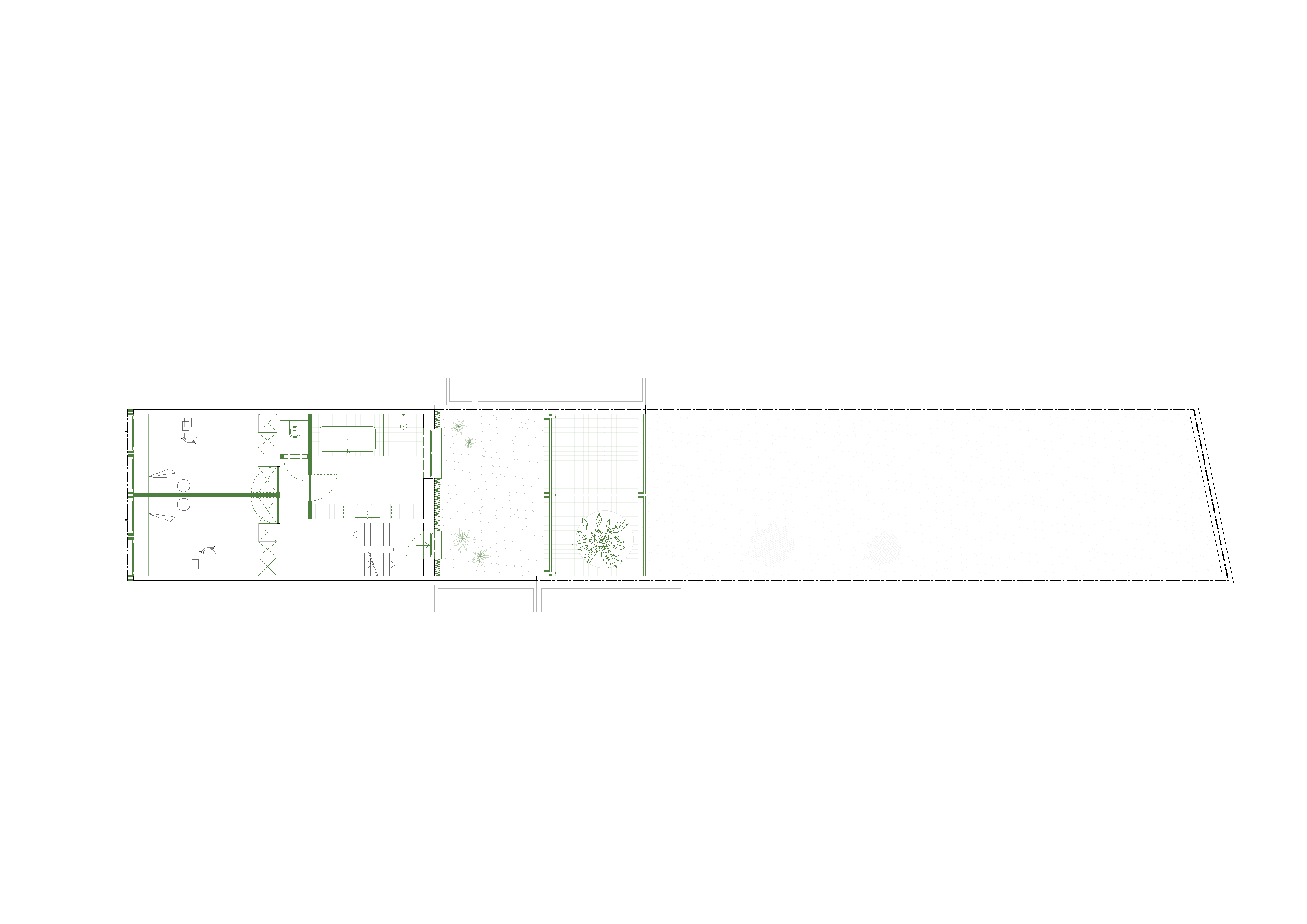
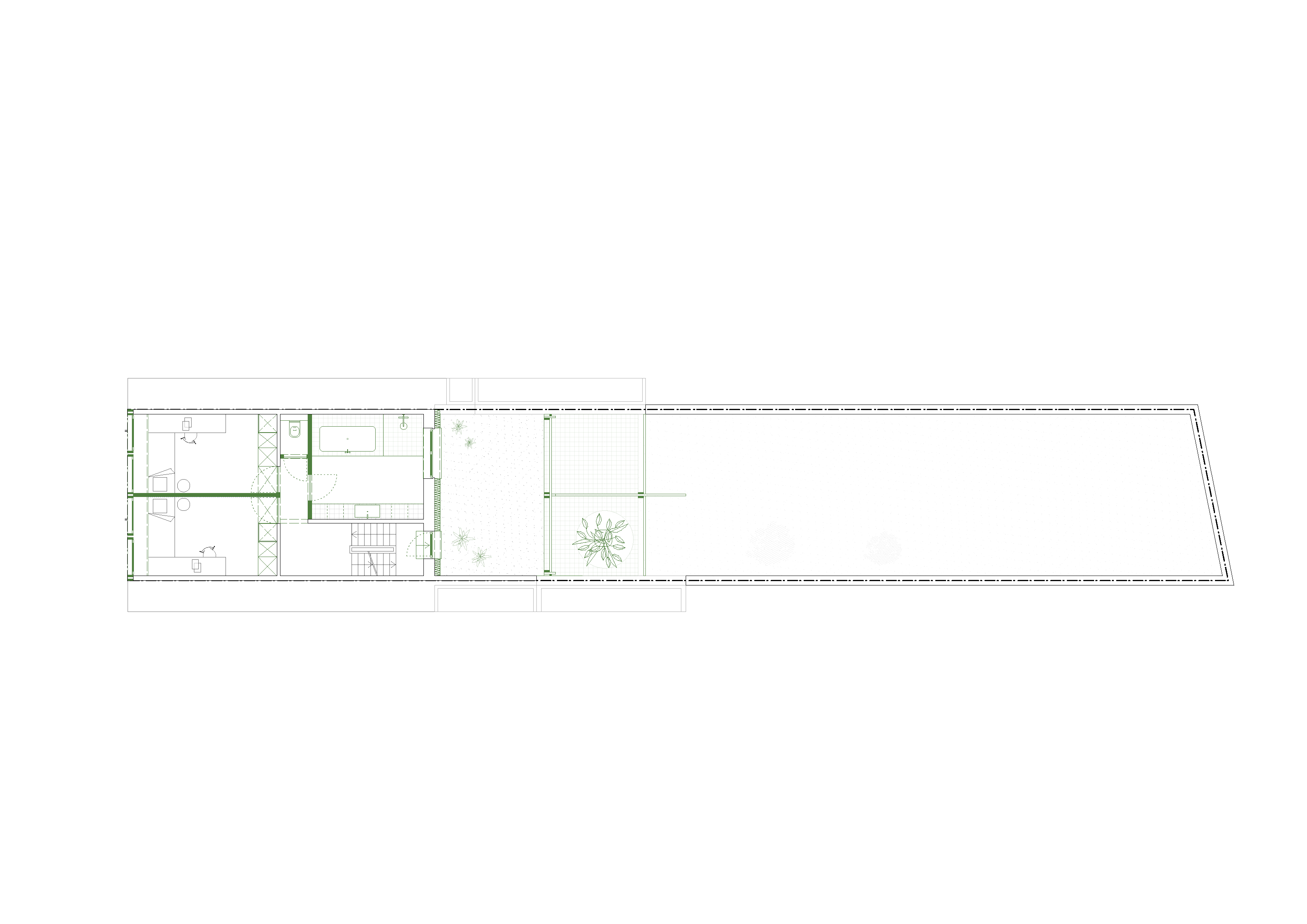
벨기에의 건축 스튜디오 헤!(Hé!)는 거주자와 함께 성장하고 변화할 수 있는 유연한 주택을 설계했다. 이 집의 주인인 프레데릭(Frederik), 엘스(Els), 그리고 두 딸은 기존 주택 뒤편에 덧붙여져 있던 별채(후면 증축부)를 철거하고 그 자리에 컴팩트하면서도 높고 개방적인 목구조 확장부를 새롭게 추가하기로 했다.
이 새로운 확장부는 집 안 깊숙이 풍부한 자연광을 끌어들이고, 내부와 정원을 자연스럽게 연결한다. 구조는 볼트 체결식의 분해 가능한 목구조로 설계되어, 향후 변화나 확장이 용이하도록 했다. 이 구조는 후면 입면에서도 드러나며, 예전 별채 벽을 타고 자라던 등나무를 다시 지지한다. 헤!는 이 식물을 보존하는 것을 중요하게 여겼고, 지금은 그것이 작은 야외 방의 경계를 만들어낸다.
새로운 확장부의 높이와 리듬은 기존 계단의 흐름을 따르고 있다. 그 결과, 확장부 1층은 지상층 주방과 위층 거실 사이의 반층으로 구성되며, 큰 유리 벽과 오픈 계단이 있는 복층 높이의 보이드가 세 층을 시각적·공간적으로 연결한다.
전면 입면과 새로운 내부 유리벽 사이에는 자전거, 유모차, 외투, 신발을 위한 실용적인 현관 공간이 생겼고, 전면 입면의 미묘한 상승은 새로운 확장부의 형태를 암시하며, 아토미움(Atomium)이 보이는 두 아이의 침실 공간을 만들어냈다. 이 집은 구조적 유연성과 감성적 연결을 동시에 갖춘 주거로, 거주자의 생활 변화에 맞춰 유기적으로 진화할 수 있는 집을 보여준다.

















건축가 헤! 아키텍튀르 (hé! architectuur) 
위치 벨기에, 간스호렌 
용도 단독주택
연면적 256㎡ 
규모 지상 4층
준공 2024
대표건축가 Hanne, Renée
디자인팀 hé! architectuur
'Architecture Project > Single Family' 카테고리의 다른 글
| 빛과 바람이 흐르는 노출 콘크리트 주택 / 후지와라무로 아키텍츠 (0) | 2025.11.03 | 
|---|---|
| 빛과 구조 사이, 수평적 주거 실험 / 프란 실베스트레 아르키텍토스 (0) | 2025.10.24 | 
| 아치와 빛으로 짜여진 해변의 집 / 엔토포스 아키텍츠 (0) | 2025.10.24 | 
| 계곡 위의 휴식, 코스타리카의 플로팅 하우스 / 스튜디오 삭스 (0) | 2025.10.21 | 
| 자연과 함께 호흡하는 원의 집, 무언가 / 스노우에이드 (0) | 2025.10.20 | 
마실와이드 | 등록번호 : 서울, 아03630 | 등록일자 : 2015년 03월 11일 | 마실와이드 | 발행ㆍ편집인 : 김명규 | 청소년보호책임자 : 최지희 | 발행소 : 서울시 마포구 월드컵로8길 45-8 1층 | 발행일자 : 매일



