
House and Office in Hokusetsu
대지는 넓은 도로와 마주하며, 가로수가 만들어내는 풍경이 배경이 되는 장소였다. 클라이언트는 가족이 이 풍경을 즐길 수 있는 집을 원했고, 노출 콘크리트를 주요 재료로 사용할 것을 제안했다.
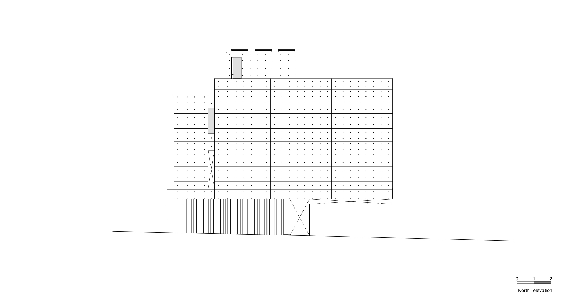
일반적으로 노출 콘크리트 건물은 외부 혹은 내부 한쪽 면에 단열층을 덧대기 때문에, 콘크리트 자체가 양쪽 모두 드러나는 경우는 드물다. 이 프로젝트에서는 주거 공간을 콘크리트 튜브 구조 안에 삽입해, 콘크리트의 내부와 외부가 동시에 드러나도록 계획했다.
이 콘크리트 튜브는 전면의 가로수 풍경으로 바로 열려 있으며, 튜브가 프레임이 되어 외부 풍경을 건축적으로 끌어들인다.
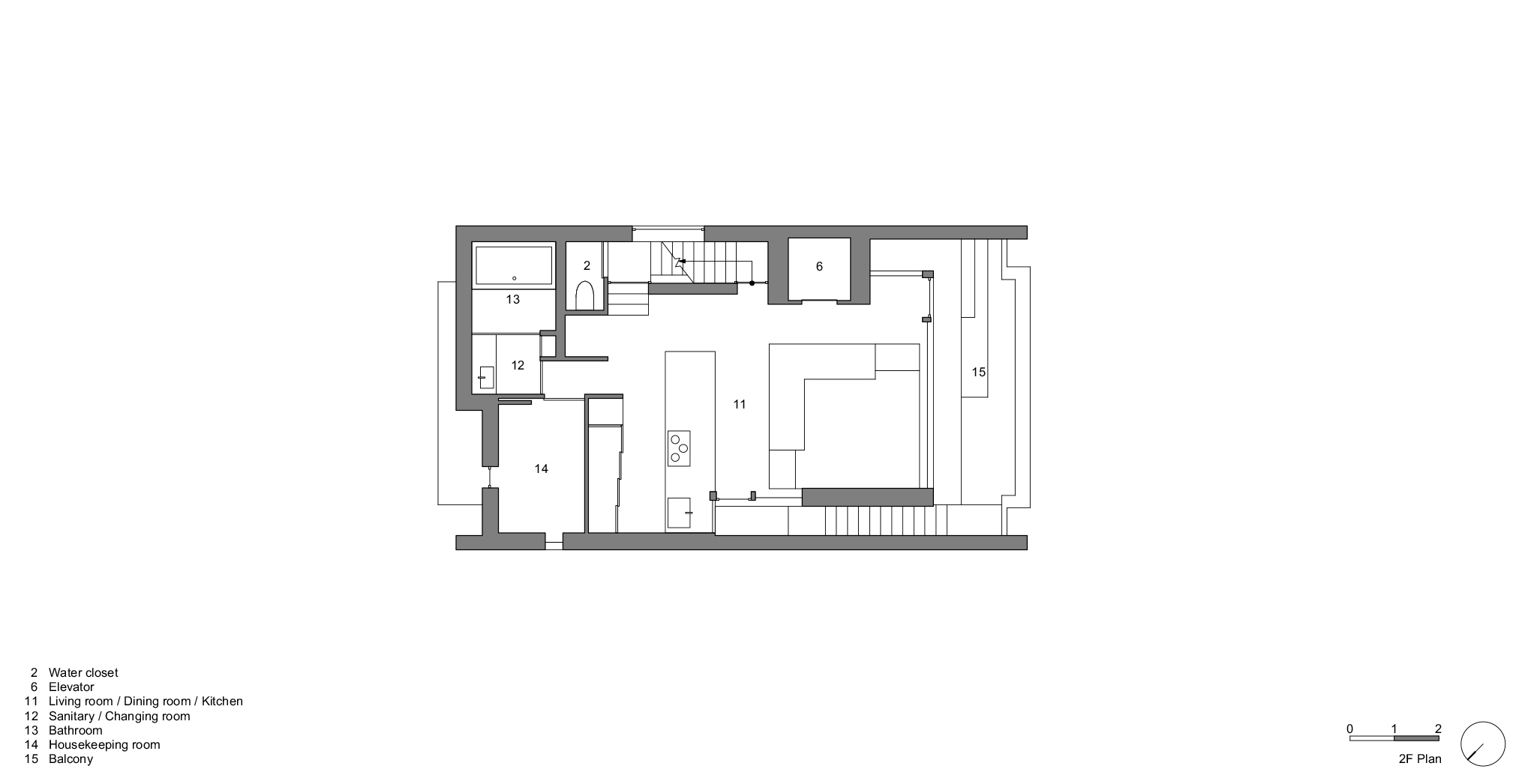
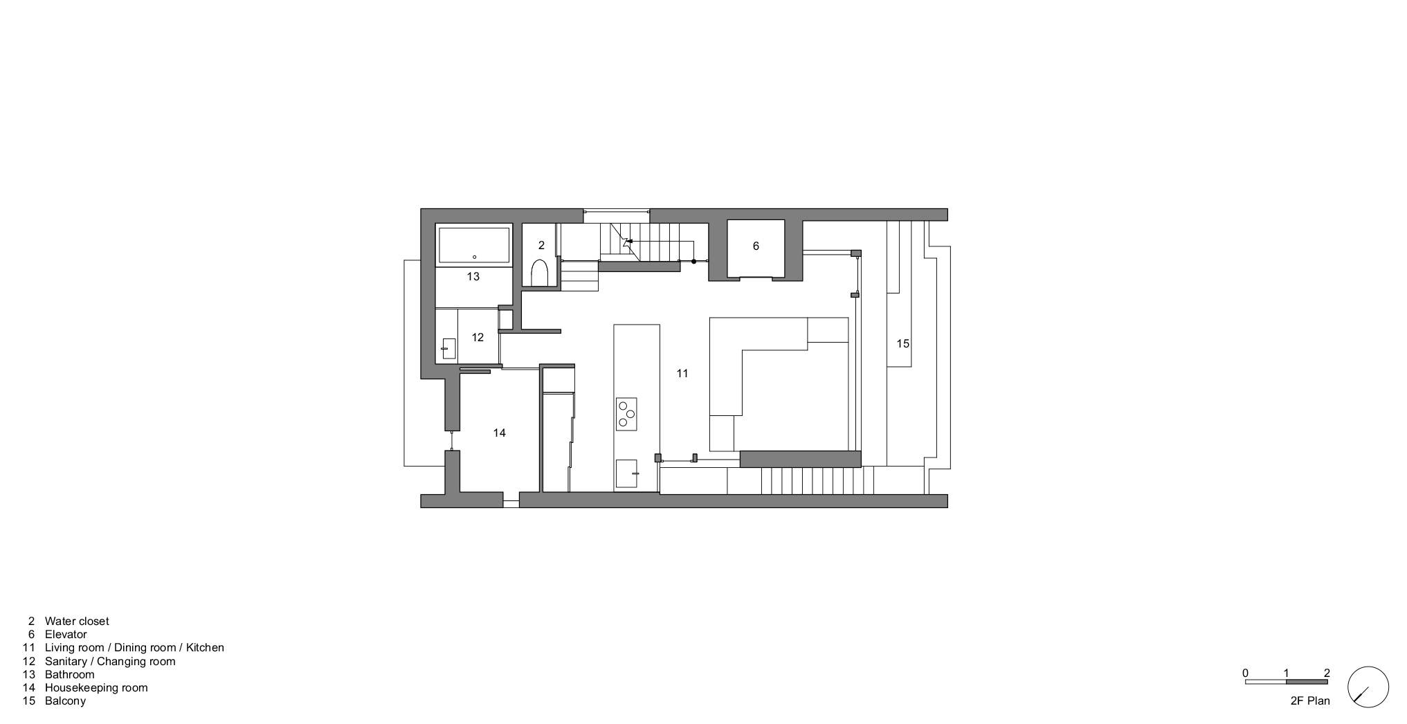
2층의 LDK(거실·식당·주방)는 콘크리트 튜브로 감싸진 공간으로, 개구부 너머의 풍경을 향해 열린 구조를 가진다. 튜브와 1층의 프라이빗룸 사이에는 빛과 바람이 흐를 수 있는 완충층(layer)을 두었으며, 이를 통해 내부의 프라이버시를 유지하면서도 개방감을 확보했다.
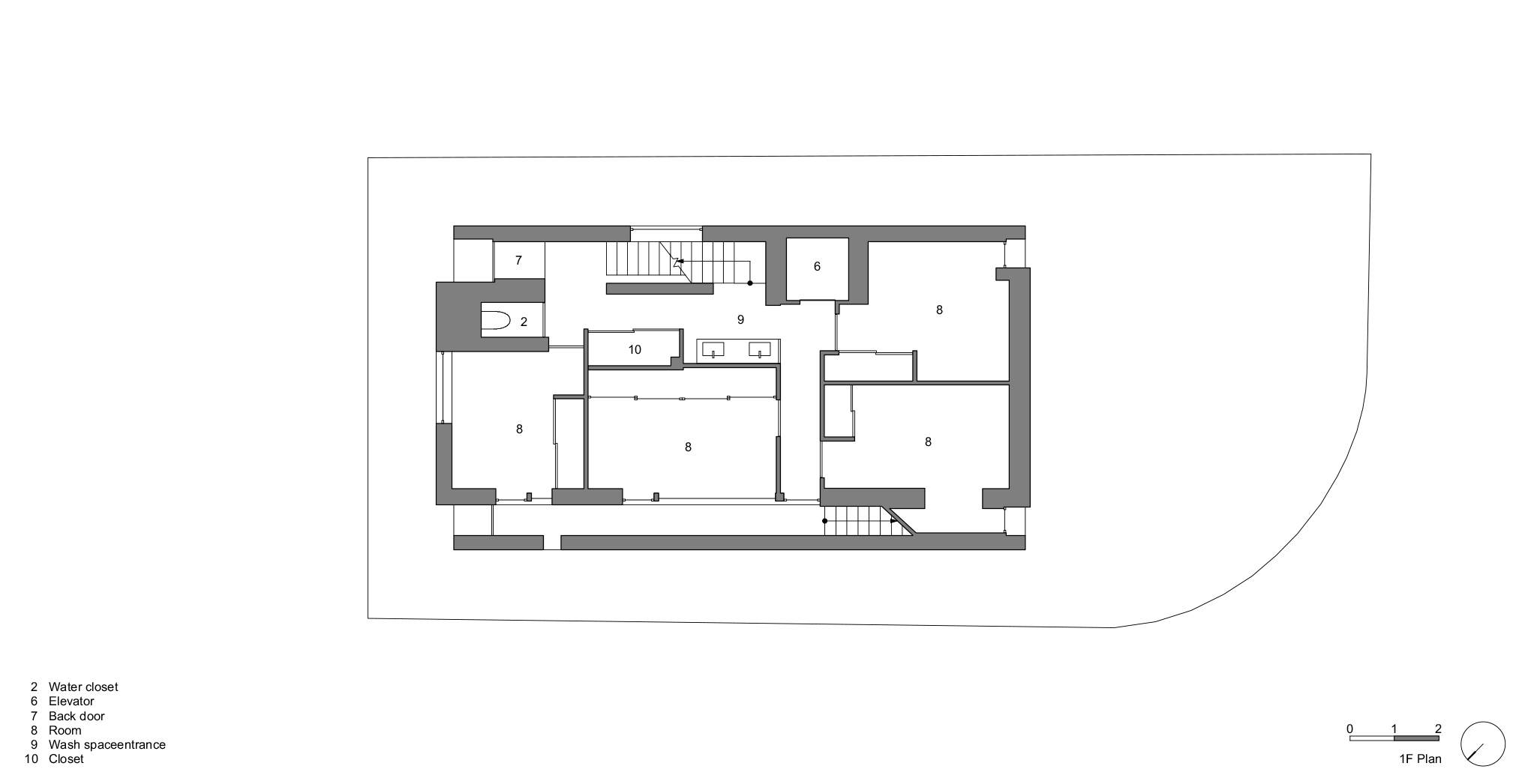
1층에는 각각의 창이 다른 방향을 향한 네 개의 개인실이 있다. 두 개의 방은 가로수를 향해 열려 있고, 나머지 두 개의 방은 콘크리트 튜브와의 사이 공간을 향한다. 그 창문 너머로는 노출 콘크리트의 질감이 그대로 드러나, 외부와 내부가 시각적으로 맞닿는 경험을 만든다.
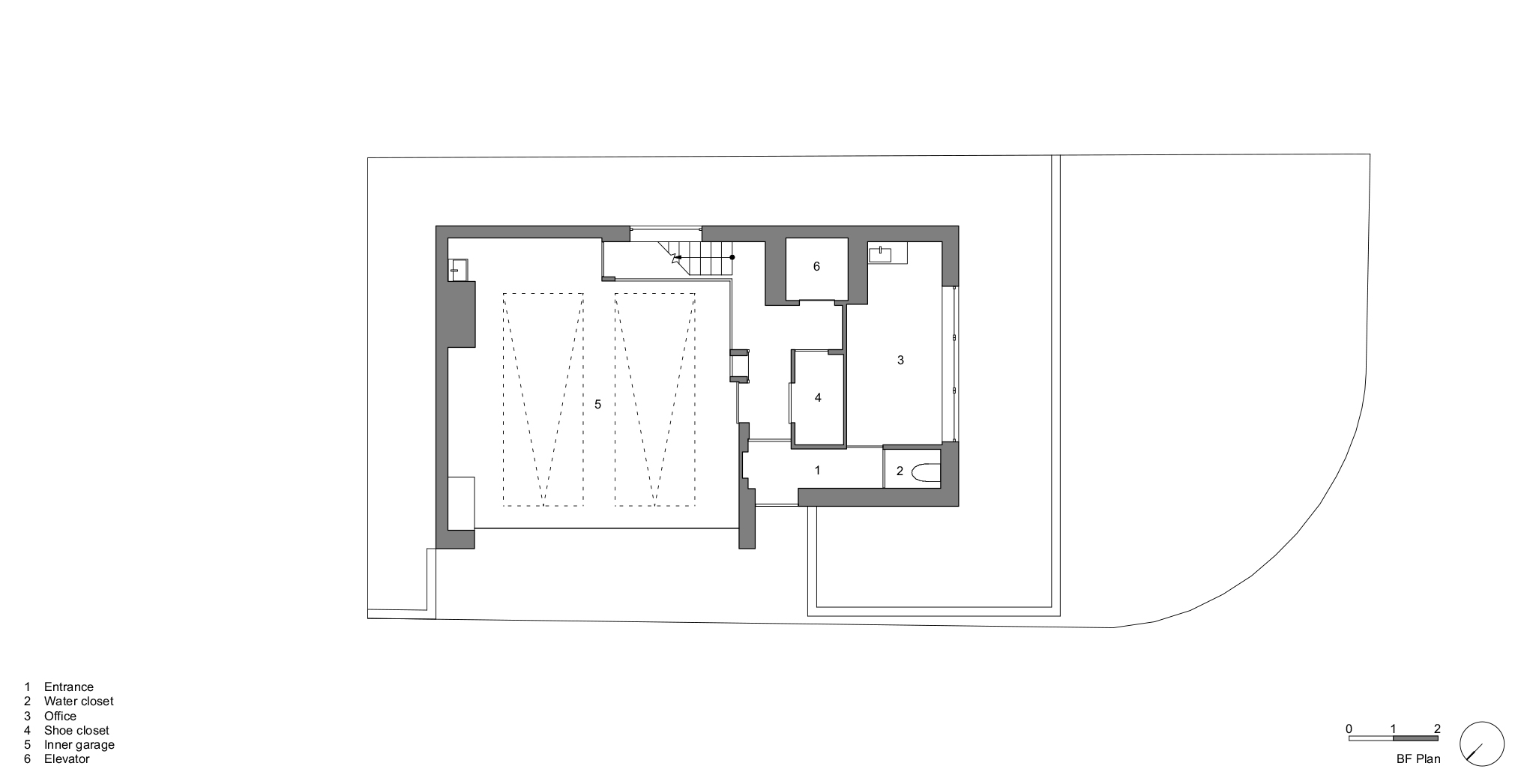
대지는 도로보다 약 2m 높았기 때문에, 기존 옹벽의 일부를 절개해 지하 레벨에 차고와 사무공간을 배치했다. 건축적으로는 콘크리트 튜브를 지면에서 띄워 부유하듯 가볍게 보이도록 했으며, 하부 구조에는 알루미늄 패널을 사용해 재질적 대비를 주었다.
이 주거는 콘크리트의 두께와 틈새, 개구부의 방향을 섬세하게 조정함으로써, 여름의 열기와 겨울의 냉기를 완화하고, 자연광과 바람을 들이면서도 도로 쪽 시선으로부터 거주자의 일상을 보호한다.



































건축가 후지와라무로 아키텍츠 (FujiwaraMuro Architects)
위치 일본, 오사카
용도 단독주택, 업무시설
연면적 91㎡
규모 지하 1층, 지상 2층
준공 2024
대표건축가 Shintaro Fujiwara, Yoshio Muro
사진작가 Katsuya. Taira (studioREM)
'Architecture Project > Single Family' 카테고리의 다른 글
| 빛과 구조 사이, 수평적 주거 실험 / 프란 실베스트레 아르키텍토스 (0) | 2025.10.24 |
|---|---|
| 아치와 빛으로 짜여진 해변의 집 / 엔토포스 아키텍츠 (0) | 2025.10.24 |
| 계곡 위의 휴식, 코스타리카의 플로팅 하우스 / 스튜디오 삭스 (0) | 2025.10.21 |
| 자연과 함께 호흡하는 원의 집, 무언가 / 스노우에이드 (0) | 2025.10.20 |
| 자연을 관조하는 모듈 하우스, 레이크 생장 더 캐시 / 들로르디네르 아키텍츠, 애니 실뱅 아키텍츠 (0) | 2025.10.16 |
마실와이드 | 등록번호 : 서울, 아03630 | 등록일자 : 2015년 03월 11일 | 마실와이드 | 발행ㆍ편집인 : 김명규 | 청소년보호책임자 : 최지희 | 발행소 : 서울시 마포구 월드컵로8길 45-8 1층 | 발행일자 : 매일



