
골목에서 가장 낡은 주택이었던 이 구옥은 오랜 세월의 가치를 지닌 동시에, 노후화된 외관 속에 가능성을 품고 있었다. 기초공사와 외벽 정리를 진행하며, 디자이너는 정돈되지 않은 지붕과 외관 라인을 다듬고 불필요한 굴뚝을 철거해 오래된 구옥의 이미지를 벗겨내고자 했다.



담장은 외부에서는 내부가 보이지 않으면서도 마당에서는 적당히 개방된 높이로 설계했으며, 패브릭 접합 유리의 프라이빗한 시스루 창을 길게 계획했다. 또한, 키가 큰 대나무 조경을 배치해 시선 차단 효과를 주었다. 외관은 밝은 카키색 외벽과 고동색 담장의 조화를 통해 현대적이면서 차분한 분위기를 연출했으며, 기존의 철제 대문은 현대적 감성이 가미된 간살 디자인의 삼나무 사용해 동양적인 미감을 강조했다. 대청마루의 높은 턱을 허물고 계단을 조성해 테라스와 실내가 자연스럽게 이어지도록 했다.


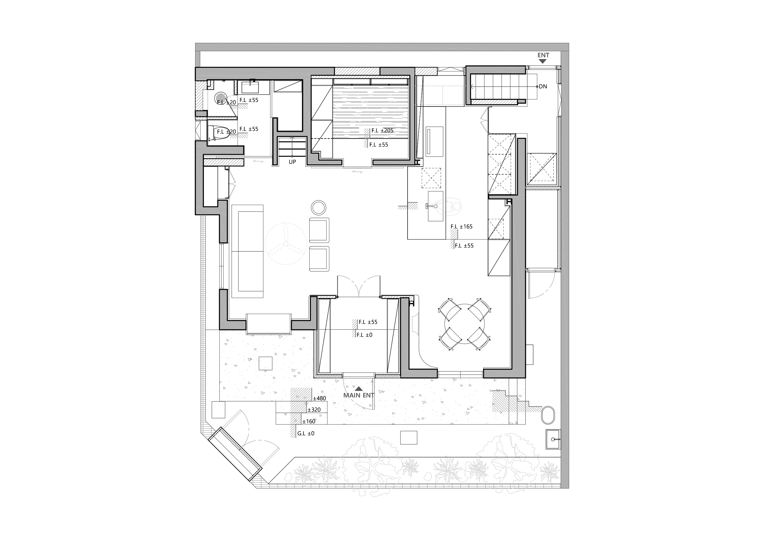
현관에는 클리어한 유리 중문을 프레임 삼아 계획해, 티룸이 가지는 아름다움을 온전히 담아냈다. 거실의 윈도우 시트는 걸터앉을 수 있는 넉넉한 깊이에 입체적인 우드 포인트를 주어 가족과 함께하는 공간이 되기도, 혼자 사색하는 공간이 되기도 한다.




주방 공간은 우드 천정과 벽체에 검은색 석재로 된 아일랜드와 스톤 소재의 싱크볼을 배치해 자연적인 감성을 연출했다. 격자무늬의 우드 선반으로 된 미드웨이장은 모던하고 군더더기 없는 쇼케이스 느낌으로 연출해, 클라이언트의 취향이 담긴 소품 보관 공간이 되었다.


기존의 천장 구조물은 하나의 단차로 정리하기에 제약이 있었다. 따라서 다이닝 공간, 주방, 거실 세 구역을 나누어 단차를 구성해 공간을 구분하고, 간접 조명을 활용해 부드럽게 연결했다. 거실에서 다이닝 공간으로 이어지는 벽면의 곡선은 공간 간의 유려한 흐름을 형성했으며, 우드 선반 양 끝의 볼륨감 있는 벽면과 원탁 테이블, 한지 팬던트 조명이 어우러져 곡선의 미학을 보여준다.



동양적 정서와 현대적인 감각이 절묘하게 어우러진 티룸은 문을 여는 순간 시선을 머무르게 한다. 전통 가옥에서 영감을 얻은 간살 원목 도어와 격자 프레임, 다다미 공간, 한지 바리솔 조명이 동양의 정취를 떠올리게 하고 있다. 한지 바리솔은 디밍 기능을 적용해 조도 변화를 통한 빛의 아름다움을 극대화한다. 또한, 바리솔 조명과 원목 도어의 간살 사이로 퍼지는 은은한 조명이 동양적 미감을 더 부각한다. 맞춤 제작된 붙박이장 도어에는 한지의 질감과 닮은 자연스러운 원단을 사용했으며, 이처럼 다양한 동양적 소재들이 조화롭게 어우러져 고유한 개성을 가진 공간으로 완성됐다. 네 가족의 독립적인 라이프스타일을 고려해 설계한 2층은 20평 남짓의 한정된 면적을 효율적으로 활용하기 위해 거실, 아이들 방, 안방, 파우더룸까지 세심한 공간 레이아웃을 계획했다. 또한 시각적으로 개방감을 표현하고자 다양한 요소들을 적용했다.



자연광으로 공간을 가득 채우기 위해, 통창과 바람에 따라 살랑거리는 패널형 패브릭 커튼을 설치했다. 확장성을 위해 맞은편 아이 방에는 히든도어와 패브릭 접합 유리의 원형 타공 벽을 적용해 포인트를 주었다. 안방의 입구는 동양적 감성의 격자무늬 양개형 미닫이 도어로 계획했으며, 침실에는 짙은 카키색의 침대 헤드와 우드의 조화를 통해 차분한 무드를 연출했다.



지하실에는 패션업에 종사하는 클라이언트를 위한 드레스룸을 구성했다. 넓은 거울과 세련된 가방장을 배치해 쇼룸 느낌으로 연출했으며, 간접 조명과 4,000K 천장 조명을 사용해 깨끗한 분위기를 조성했다.



디자이너 디자인스튜디오모노(Design Studio MONO)
위치 대한민국, 서울시, 성북구, 보문동
용도 단독주택
대지면적 142㎡
건축면적 76.9㎡
연면적 152㎡
규모 지하 1층, 지상 2층
준공 2024
디자인팀 오수현, 박혜인, 신지수
사진작가 박세은
'Interior Project > Residential' 카테고리의 다른 글
| 골목의 깊이를 담은 숙소, 교토 마치야의 재해석 / 스튜디오 알루크 (0) | 2025.10.15 |
|---|---|
| 볕이 깊이 오래 머무르는 집, 하온재 / 디자인 스튜디오 모노 (0) | 2025.07.25 |
| 빅토리아풍 단독주택 리모델링 / 이언 무어 아키텍츠 (0) | 2025.06.09 |
| 곡선 천장으로 분위기를 아우르는 아파트 리모델링 / 케이씨 디자인 스튜디오 (0) | 2025.05.27 |
| 정원 위를 부유하는 단독주택 리모델링 / 알에이디+에이알 (0) | 2025.05.19 |
마실와이드 | 등록번호 : 서울, 아03630 | 등록일자 : 2015년 03월 11일 | 마실와이드 | 발행ㆍ편집인 : 김명규 | 청소년보호책임자 : 최지희 | 발행소 : 서울시 마포구 월드컵로8길 45-8 1층 | 발행일자 : 매일



