
‘따뜻한 온기와 아늑함이 머무는 곳’이라는 뜻의 하온재(蝦溫齋)는 테라스를 포함한 4층 규모의 단독주택이다. 좁은 골목 끝자락, 두 그루의 큰 나무와 쉼터를 마주한 대지 위에 자리한 이 집은 번잡한 일상에서 벗어나 조용하고 여유로운 삶을 누릴 수 있도록 기획했다.




높은 천장고로 수직적인 공간감을 확보한 이 주택은, 그 특징을 강조하기 위해 자연 채광을 극대화할 수 있는 대형 창문을 계획하여 실내 곳곳에 밝고 따뜻한 빛이 머물도록 했다. 또한 의도적인 여백과 절제된 색채 구성으로 일상의 소란에서 벗어난 고요하고 평온한 분위기를 완성했다.
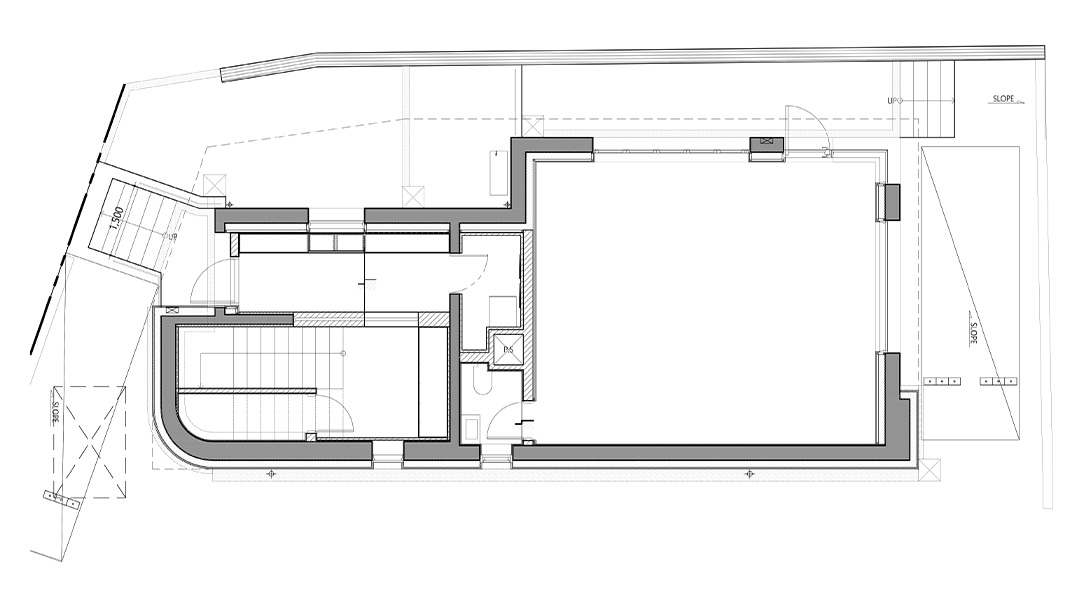
1층은 실용성과 공간 활용에 중점을 두고, 현관에는 우드벤치를 두었으며 계단 옆에는 수납공간을 구성했다. 계단은 따뜻한 질감의 마루 바닥재로 마감하고, 솔리드 화이트 난간에 높이 75cm의 핸드레일을 설치하여 안전성과 심미성을 동시에 갖추었다. 벽면에는 트림리스 조명을 정교하게 매립하여 조명 프레임이 드러나지 않는 깔끔한 미관을 연출했다.




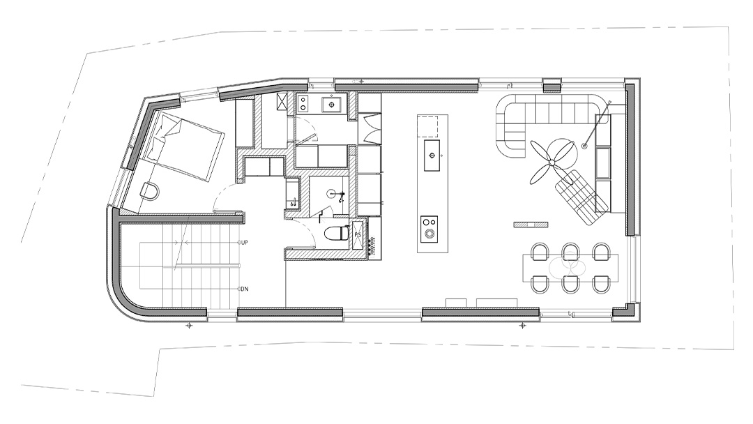
2층은 가족과 손님이 함께 머물 수 있는 공용 공간으로, 주방과 거실이 자연스럽게 연결된 LDK 구조로 설계하였습니다. 이를 통해 공간의 확장감을 극대화하였고, 바닥 마감재를 마루에서 타일로 전환하여 공간의 흐름을 강조했습니다. 또한 길이 4m의 대형 트래버틴 아일랜드와 오픈 키친은 공간의 중심이 됩니다. 3층 천장까지 확장된 오픈 천장의 매력을 향유할 수 있도록 다이닝 공간을 마련하였으며, 오픈 천장을 따라 이어지는 대형 채광창과 레이어링된 조지 넬슨 조명, 그리고 감각적인 타공 파티션이 어우러져 갤러리와 같은 예술적인 분위기를 연출하였습니다.


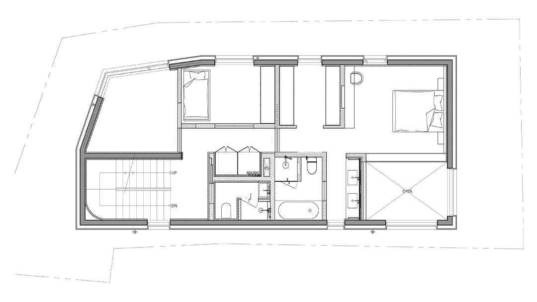
3층은 아이와 부모를 위한 두 개의 프라이빗 존으로 나뉘며, 놀이방, 침실, 욕실이 포함된 키즈존과 드레스룸, 파우더룸, 침실과 욕실이 이어진 마스터존으로 구성했다. 아이의 욕실에는 컬러풀한 테라조 타일과 귀여운 패턴 타일을 활용해 경쾌한 감성을 더했다.
특히 마스터 침실은 2층 다이닝 공간을 내려다보는 보이드 구조로 설계해 공간 간의 연결감을 부여했다. 또한, 투명한 유리벽과 행잉 미러로 구성한 트래버틴 파우더룸을 통해 유리 너머 시선을 2층까지 자연스럽게 이끌고자 했다. 맑은 유리와 트래버틴의 푸른 패턴이 조화를 이루며 세련된 분위기를 완성했다.


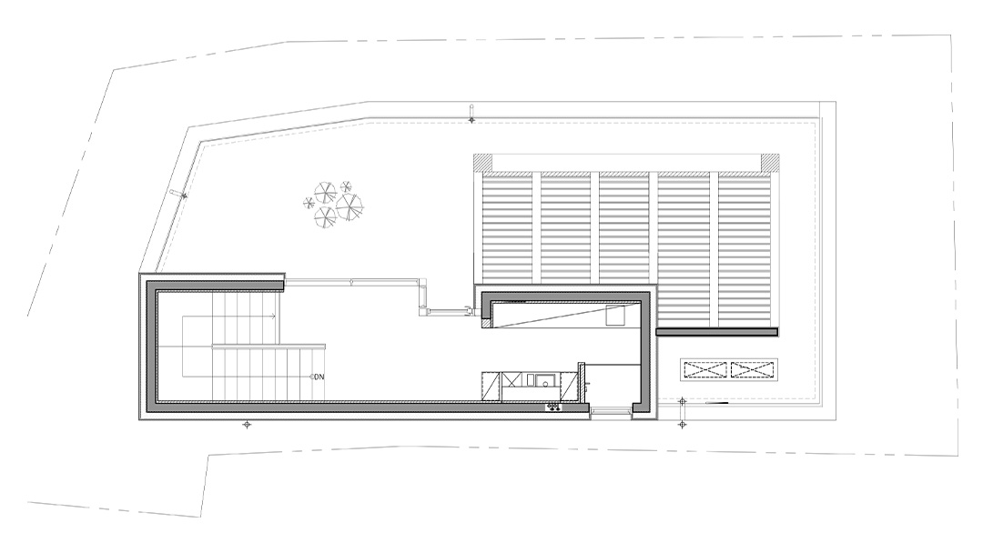
옥상은 테라스와 루프탑으로 구성했으며, 햇빛과 그늘을 조절할 수 있는 루버 천장과 아웃도어용 싱크대, 반려견 전용 욕실 등을 마련해 다양한 라이프스타일을 수용할 수 있도록 했다.




디자이너 디자인스튜디오 모노(Design Studio Mono)
위치 대한민국, 서울시, 중구
용도 단독주택
대지면적 195㎡
건축면적 99㎡
연면적 303㎡
규모 지상 4층
준공 2025
디자인팀 오수현,강예은,박혜인
시공 SPOA 건축사사무소
사진작가 박세은
'Interior Project > Residential' 카테고리의 다른 글
| 시간을 거슬러 되살린 도우루 언덕의 집 / 코레이아라가치 아키텍투로스 (0) | 2025.10.16 |
|---|---|
| 골목의 깊이를 담은 숙소, 교토 마치야의 재해석 / 스튜디오 알루크 (0) | 2025.10.15 |
| 동양의 아름다움으로 일상을 담은 집, 민우재 / 디자인스튜디오모노 (0) | 2025.07.14 |
| 빅토리아풍 단독주택 리모델링 / 이언 무어 아키텍츠 (0) | 2025.06.09 |
| 곡선 천장으로 분위기를 아우르는 아파트 리모델링 / 케이씨 디자인 스튜디오 (0) | 2025.05.27 |
마실와이드 | 등록번호 : 서울, 아03630 | 등록일자 : 2015년 03월 11일 | 마실와이드 | 발행ㆍ편집인 : 김명규 | 청소년보호책임자 : 최지희 | 발행소 : 서울시 마포구 월드컵로8길 45-8 1층 | 발행일자 : 매일



