
Hugo’s House
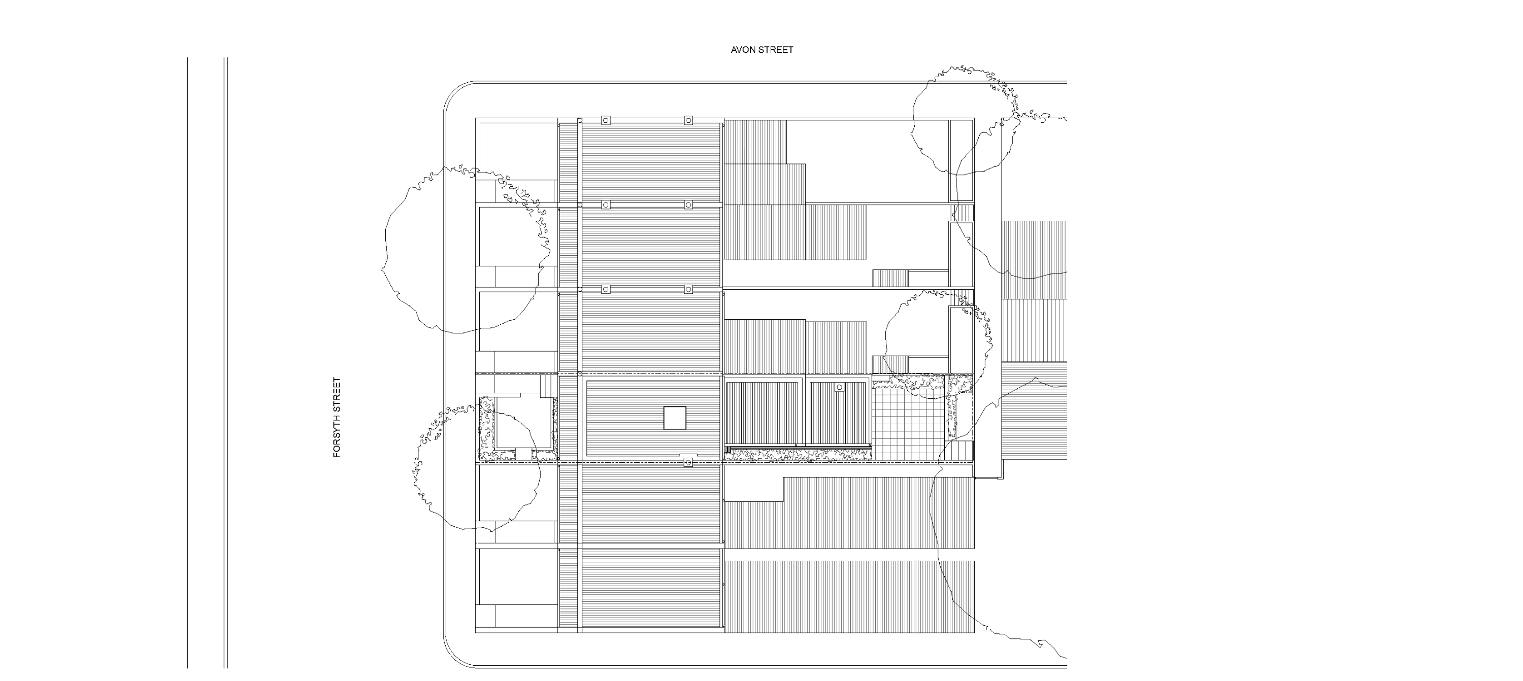
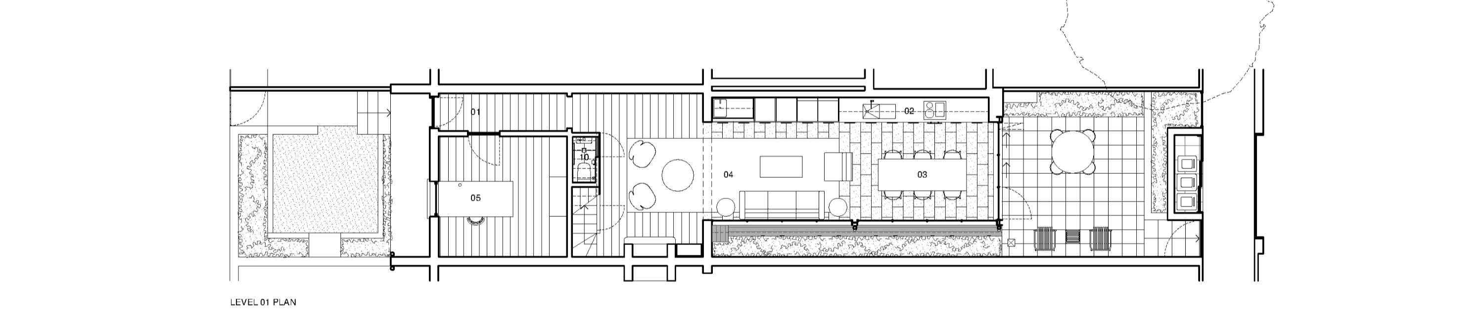
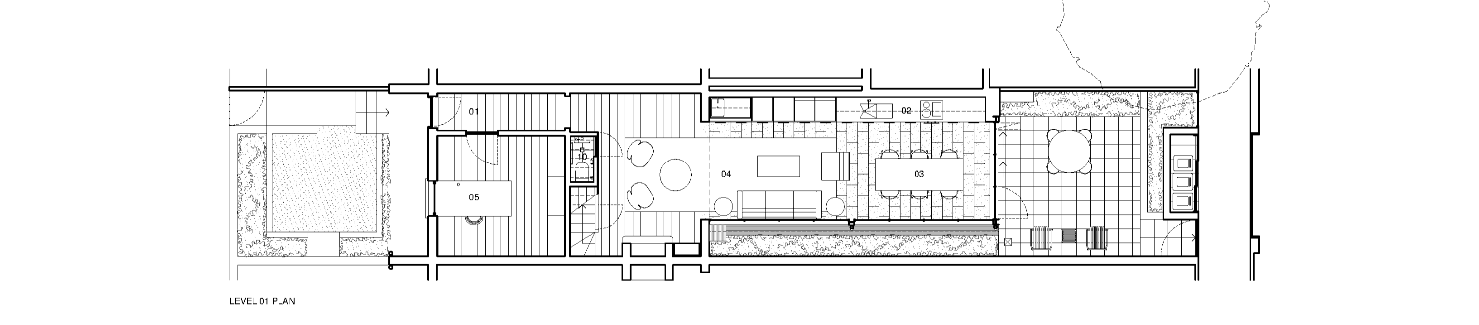
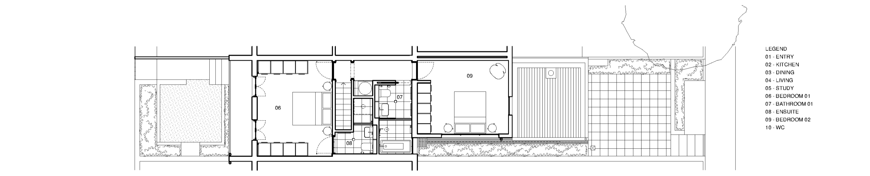
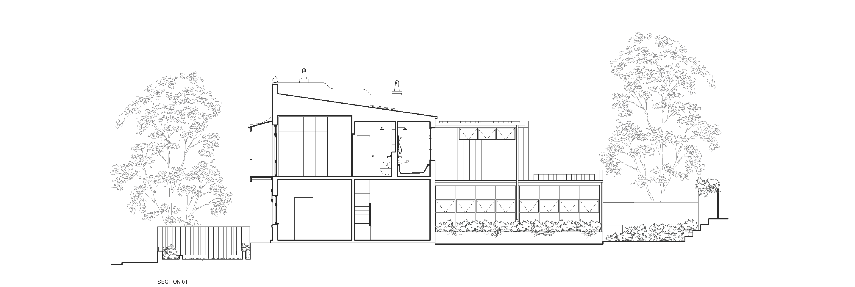
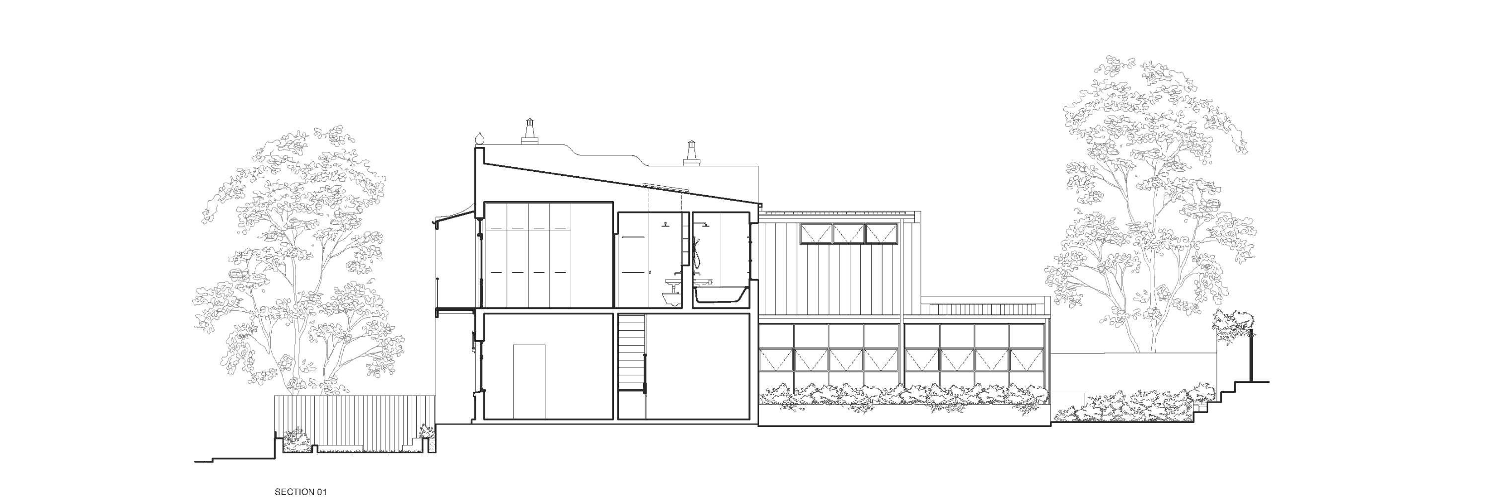
이 프로젝트는 6채의 동일한 빅토리아풍 테라스 하우스 중 한 채를 리모델링하고 증축한 작업이다. 상부에는 두 개의 원래 침실 사이를 가로지르는 계단이 있어, 하층의 전면 두 방을 열어 거실과 식당으로 통합하기 어려웠다. 따라서 거실 공간을 새로 확장하는 대신, 뒷부분에 증축을 통해 새로운 생활 공간을 확보하기로 했다. 기존에 부엌과 세탁실이 있던 후면 증축부는 마당과의 연결이 부족해 철거되었고, 그 자리에 2층에 침실이 포함된 새로운 증축부가 세워졌다.




이 건물은 문화유산보존구역에 위치하고 있어, 지자체는 신축 부분이 기존 건물과 명확히 구분되도록 요구했다. 이에 따라 신축부는 기존의 회벽 벽돌 건물과 대조되도록 경량 철골 구조와 철제 외장재로 마감했으며, 철제 프레임 창과 문을 통해 후면과 측면 마당과의 개방감을 확보했다. 측면 마당에는 경계벽 하부의 콘크리트 기초 때문에 굴착이 불가능해 전 길이에 걸쳐 회색 알루미늄 화분이 배치되었다.



2층의 기존 뒷방은 두 개의 욕실로 리모델링 되었다. 그중 하나는 메인 침실의 욕실로, 천창을 통해 자연광을 들여 창문이 없는 공간을 밝히고 있다. 1층 신축부에는 코르크 바닥재를 사용해 기존 건물의 목재 바닥색과 시각적으로 연결되도록 했고, 주방 가구는 철제 프레임 문과 조화를 이루는 연한 회색으로 마감했으며, 측면 마당의 녹지를 반사하는 거울 백스플래시를 적용했다. 욕실에는 테라조 타일과 일본산 핑거 타일이 사용되었고, 테라조 타일은 후면 마당 바닥에도 활용되었다.







건축가 이언 무어 아키텍츠(Ian Moore Architects)
위치 오스트레일리, 시드니, 글리브, 포사이스 20
용도 단독주택
대지면적 134㎡
연면적 115㎡
규모 지상 2층
준공 2024. 3. 28.
대표건축가 Ian Moore
디자인팀 Jessica Van-Young
구조엔지니어 Cantilever Consulting Engineers
조경 Outdoor Establishments
사진작가 Clinton Weaver
'Interior Project > Residential' 카테고리의 다른 글
| 볕이 깊이 오래 머무르는 집, 하온재 / 디자인 스튜디오 모노 (0) | 2025.07.25 |
|---|---|
| 동양의 아름다움으로 일상을 담은 집, 민우재 / 디자인스튜디오모노 (0) | 2025.07.14 |
| 곡선 천장으로 분위기를 아우르는 아파트 리모델링 / 케이씨 디자인 스튜디오 (0) | 2025.05.27 |
| 정원 위를 부유하는 단독주택 리모델링 / 알에이디+에이알 (0) | 2025.05.19 |
| 와이-하우스 / 디자인스튜디오모노 (0) | 2025.05.15 |
마실와이드 | 등록번호 : 서울, 아03630 | 등록일자 : 2015년 03월 11일 | 마실와이드 | 발행ㆍ편집인 : 김명규 | 청소년보호책임자 : 최지희 | 발행소 : 서울시 마포구 월드컵로8길 45-8 1층 | 발행일자 : 매일



