
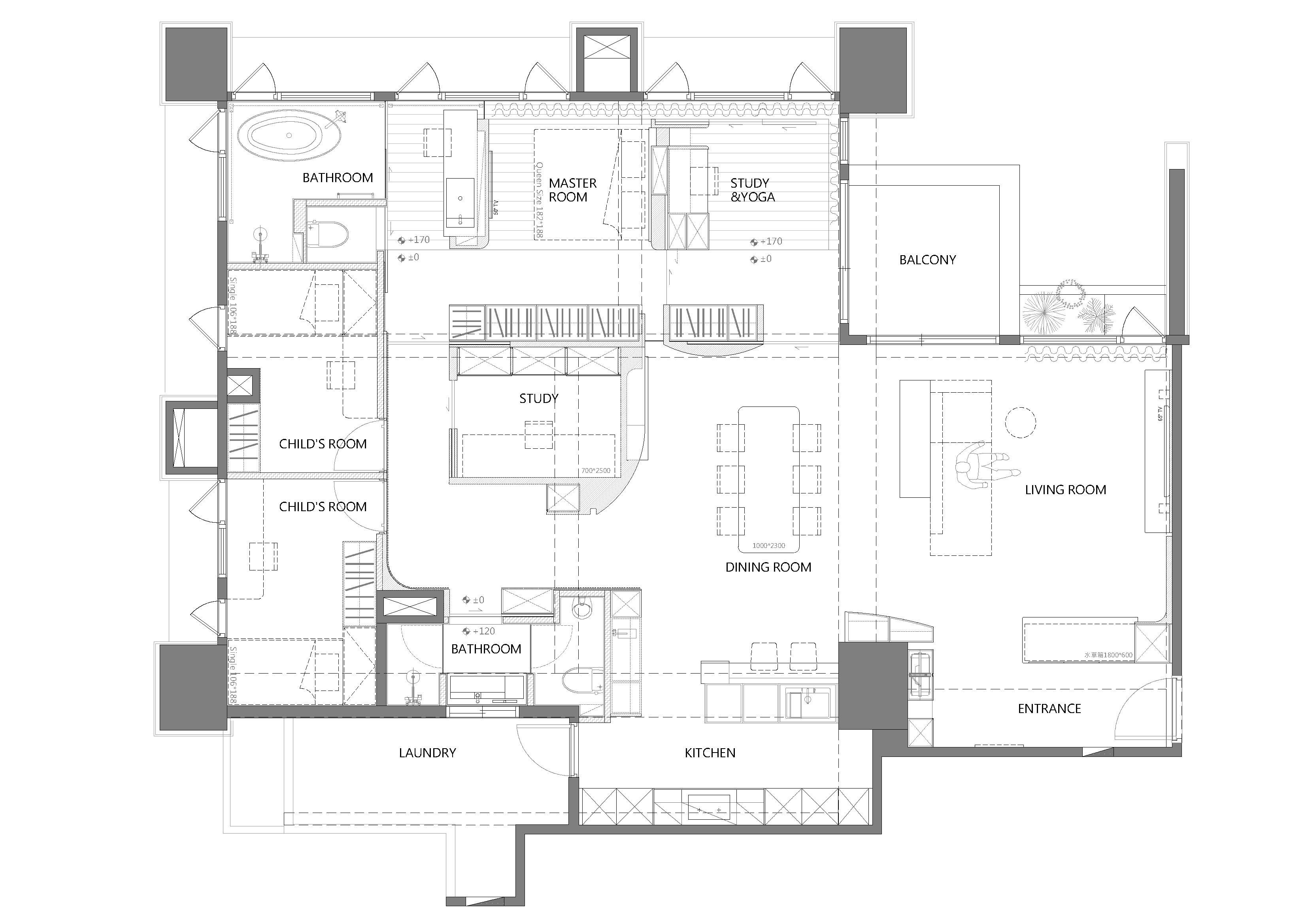
이 프로젝트는 기존 3개 실로 구성된 평면을 4개 공간으로 재구성한 주거 리모델링이다.


공간이 제한적인 조건 속에서 낮은 기둥 구조를 해결하고, 전반적인 기능성과 쾌적함을 유지하는 것이 주요 과제로 설정되었다. 천장과 벽면에는 직선 대신 다양한 곡선을 도입하여, 시선을 자연스럽게 유도하고 공간감을 확장하는 효과를 주었다. 곡선은 구조를 부드럽게 연결하는 동시에 전체 공간 분위기를 아우르는 주요 요소로 작용한다.




공간 구성 면에서는 서재를 중심에 두고 순환형 동선을 형성해 다른 기능 공간과 연결했다. 안방은 바닥을 단차로 높이고 복도를 직선으로 배치하여 기능 분리를 강화했으며, 동시에 시각적 개방감을 유지했다. 전체 공간은 부드러운 곡선과 따뜻한 색조를 중심으로 구성되었고, 다양한 색상의 조합을 통해 층위를 형성하며 정돈된 분위기를 조성했다.

디자이너 케이씨 디자인 스튜디오(KC design studio)
위치 대만, 타오위안
용도 공동주택
프로젝트면적 158.72㎡
준공 2024
디자인팀 Kuan-Huan Liu, Chun-Ta Tsao, Lin-Jo,Yu
사진작가 Yi-Hsien Lee
'Interior Project > Residential' 카테고리의 다른 글
| 동양의 아름다움으로 일상을 담은 집, 민우재 / 디자인스튜디오모노 (0) | 2025.07.14 |
|---|---|
| 빅토리아풍 단독주택 리모델링 / 이언 무어 아키텍츠 (0) | 2025.06.09 |
| 정원 위를 부유하는 단독주택 리모델링 / 알에이디+에이알 (0) | 2025.05.19 |
| 와이-하우스 / 디자인스튜디오모노 (0) | 2025.05.15 |
| 집에서 산으로 확장되는 공간, 하우스 인 가마쿠라 / 플랫 클래스 아키텍츠 (0) | 2025.05.14 |
마실와이드 | 등록번호 : 서울, 아03630 | 등록일자 : 2015년 03월 11일 | 마실와이드 | 발행ㆍ편집인 : 김명규 | 청소년보호책임자 : 최지희 | 발행소 : 서울시 마포구 월드컵로8길 45-8 1층 | 발행일자 : 매일



