
Attic Above Garden House
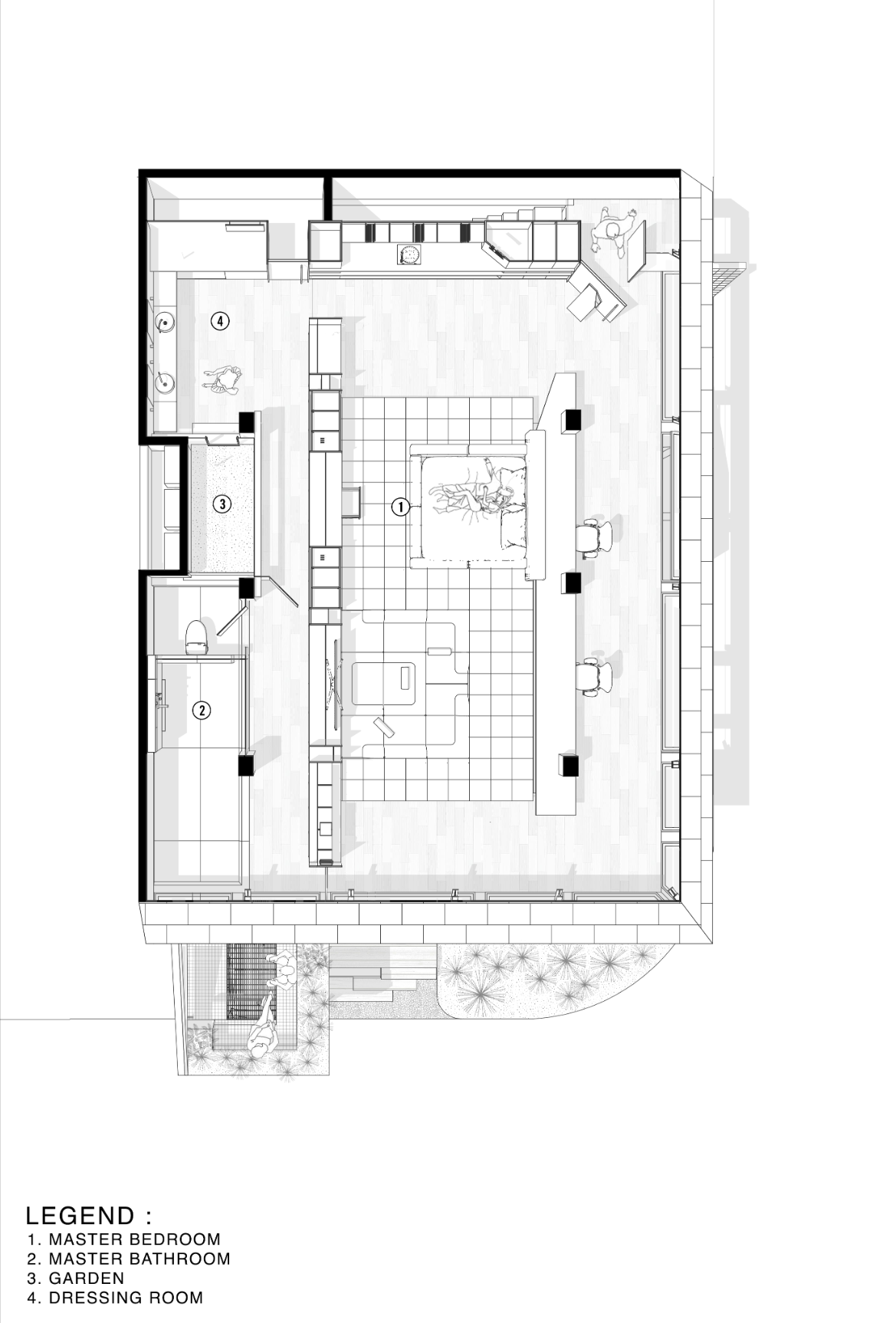
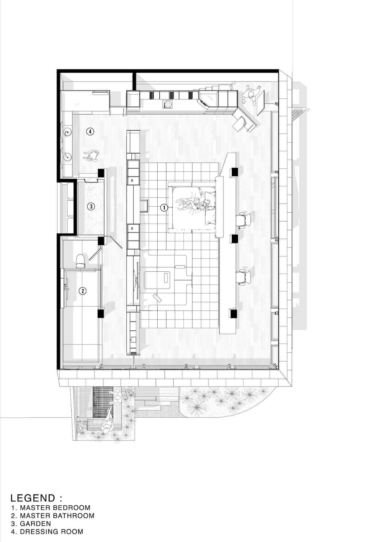
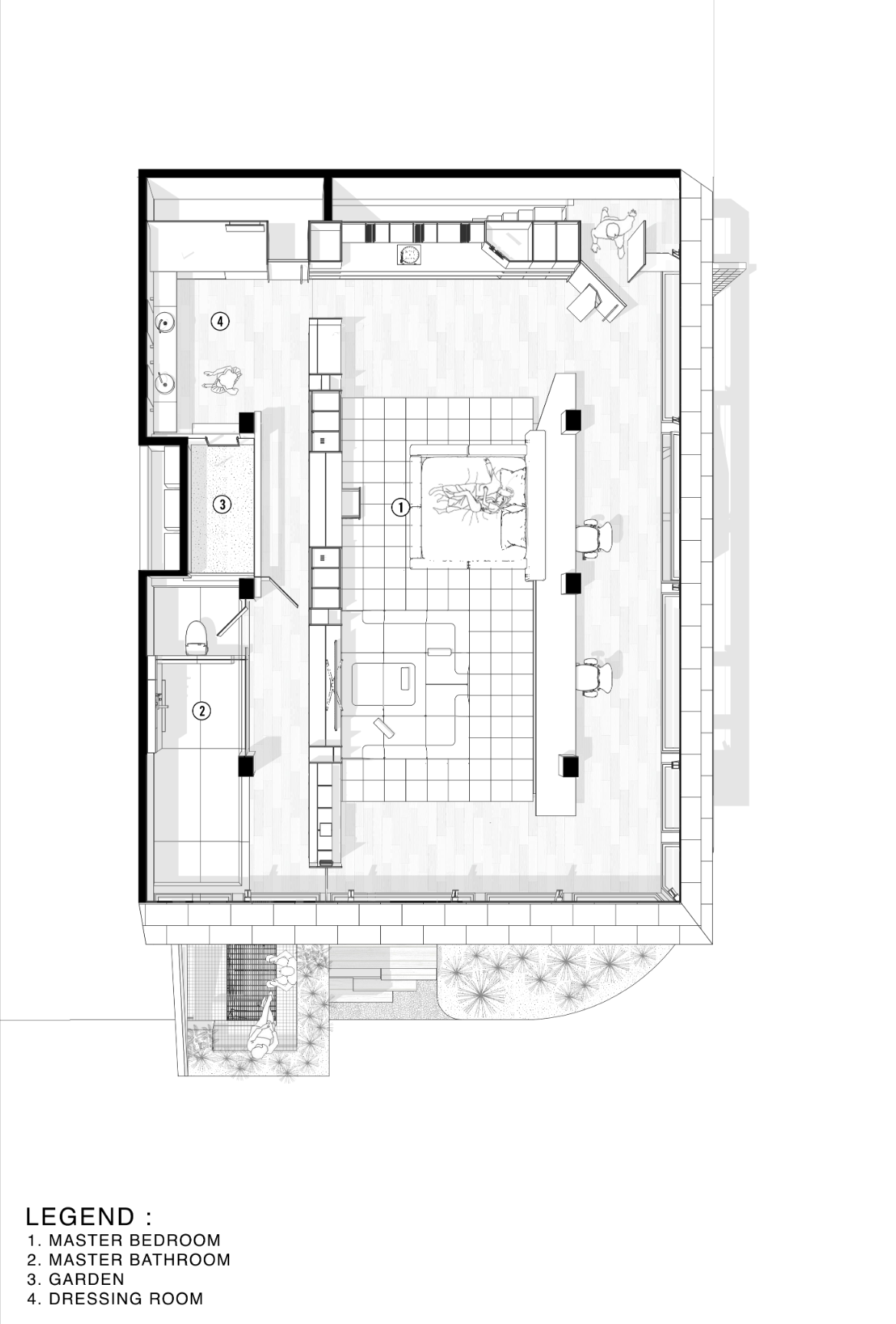
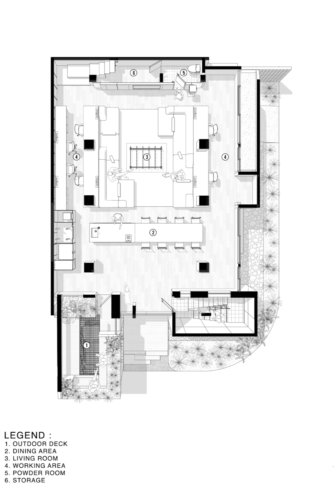
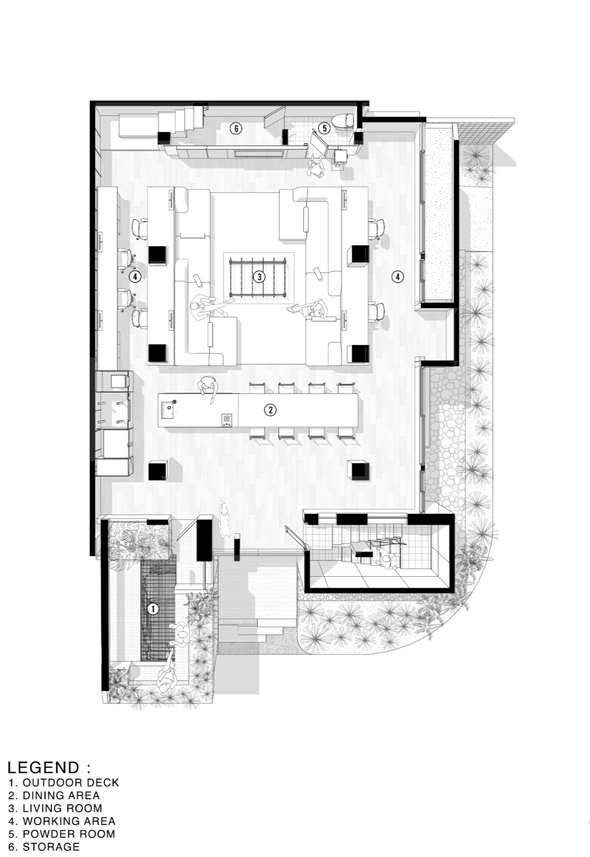
이 프로젝트는 정원 위에 떠 있는 네 개의 매스가 모두 안쪽을 향해 열려있는 리노베이션 주택으로, 다락과 지붕의 구조가 집의 입면과 정체성을 구성한다. 건축가는 기존 구조를 최대한 존중하며, 지상층을 개방형 평면으로 재구성해 벽과 복도를 제거하고 공간의 흐름을 자연스럽게 만들었다.



동선을 방해하는 요소를 최소화하고, 가구 배치를 통해 구조와 자연, 빛과 그림자의 관계가 유기적으로 연결되도록 했다. 재료는 자작나무 합판과 전통적인 마감재를 사용하였으며, 주방 공간만 스테인리스로 처리되어 명확한 대비를 이룬다.



다락은 연한 갈색 톤으로 마감해 자연과 시각적으로 조화를 이루며, 내부는 밝은 표면과 어두운 계단이 대비를 이루도록 설계되었다. 욕실에는 강렬한 색을 사용해 의외성을 부여했다.





공간은 기하학적 형태와 목재 요소를 활용해 유연하고 모호한 성격을 띠며, 사용자의 변화에 따라 점차 채워질 수 있도록 여지를 남겼다. 이 집은 건축가 부부를 위한 사적인 안식처이자, 자연광과 풍경을 품은 조용한 거주 공간으로 완성되었다.






건축가 알에이디+에이알(RAD+ar)
용도 단독주택
연면적 450㎡
준공 2025
대표건축가 Melanie Regina Hutany, Antonius Richard Rusli
사진작가 Ernest Theofilus
'Interior Project > Residential' 카테고리의 다른 글
| 빅토리아풍 단독주택 리모델링 / 이언 무어 아키텍츠 (0) | 2025.06.09 |
|---|---|
| 곡선 천장으로 분위기를 아우르는 아파트 리모델링 / 케이씨 디자인 스튜디오 (0) | 2025.05.27 |
| 와이-하우스 / 디자인스튜디오모노 (0) | 2025.05.15 |
| 집에서 산으로 확장되는 공간, 하우스 인 가마쿠라 / 플랫 클래스 아키텍츠 (0) | 2025.05.14 |
| 퓨어 어보드 / 씨.디디 (0) | 2025.04.04 |
마실와이드 | 등록번호 : 서울, 아03630 | 등록일자 : 2015년 03월 11일 | 마실와이드 | 발행ㆍ편집인 : 김명규 | 청소년보호책임자 : 최지희 | 발행소 : 서울시 마포구 월드컵로8길 45-8 1층 | 발행일자 : 매일



