
이 프로젝트는 자연광이 내부로 부드럽게 스며들고, 하루 종일 빛이 춤추듯 흐르도록 설계되었다. 지속 가능한 삶의 방식과 ‘주택은 거주자에게 안식처가 되어야 한다’는 개념을 바탕으로 설계된 이 건물은 절제된 디자인과 명확한 철학을 바탕으로 대지 위에 자리 잡는다. 자연의 요소를 적극적으로 받아들이며, 밝고 가벼운 공간감 속에서도 견고한 재료들이 균형을 이룬다.

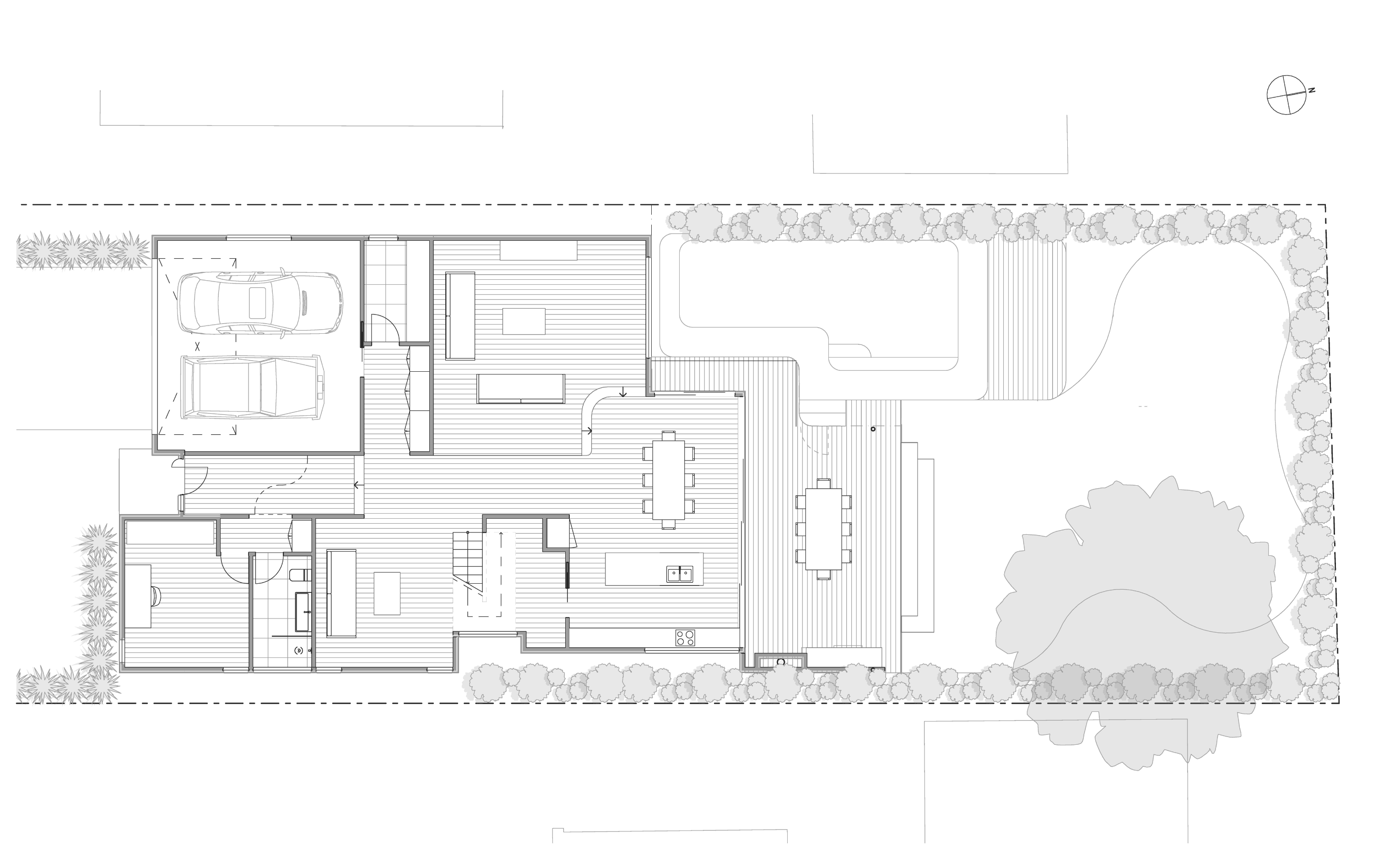
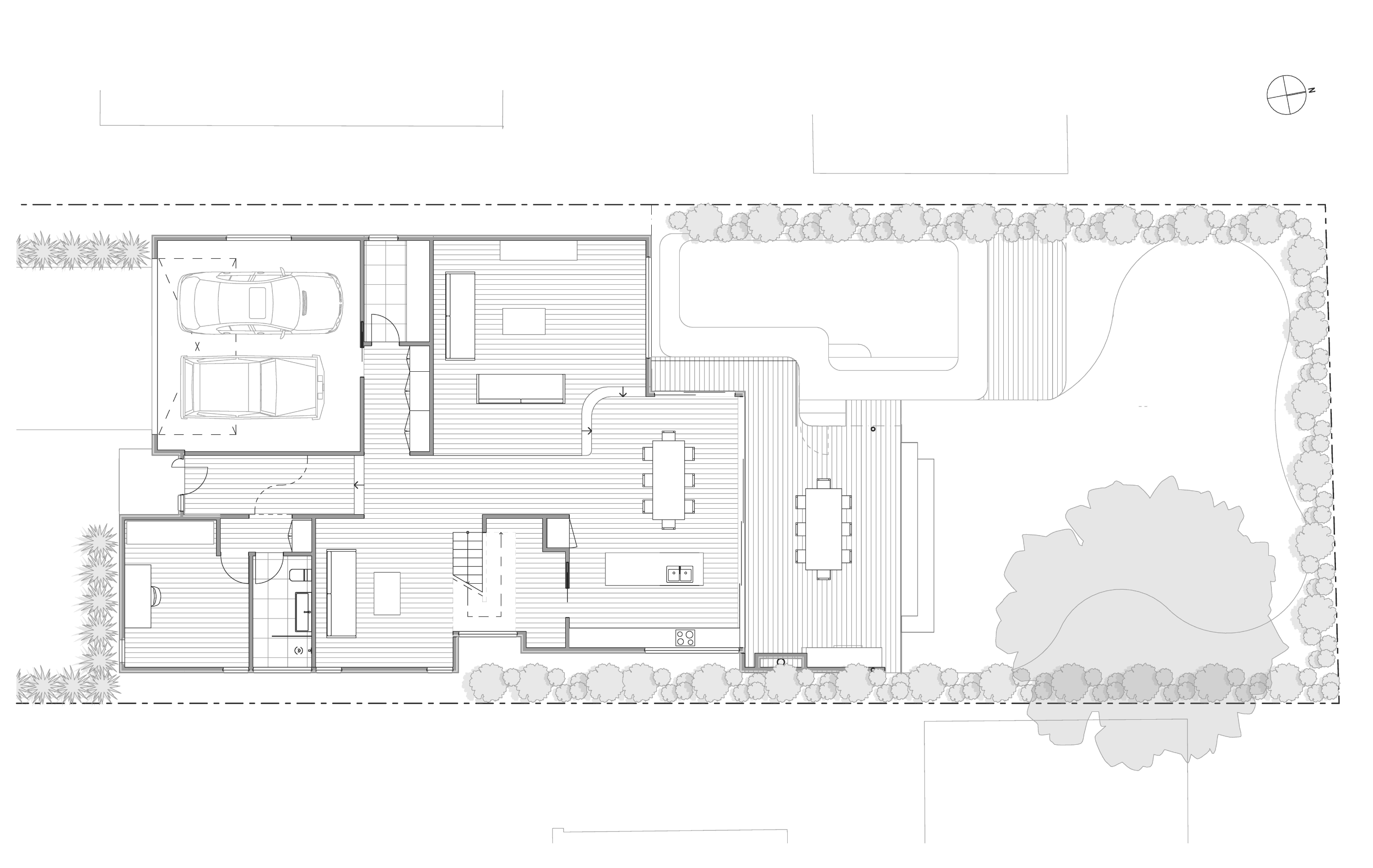
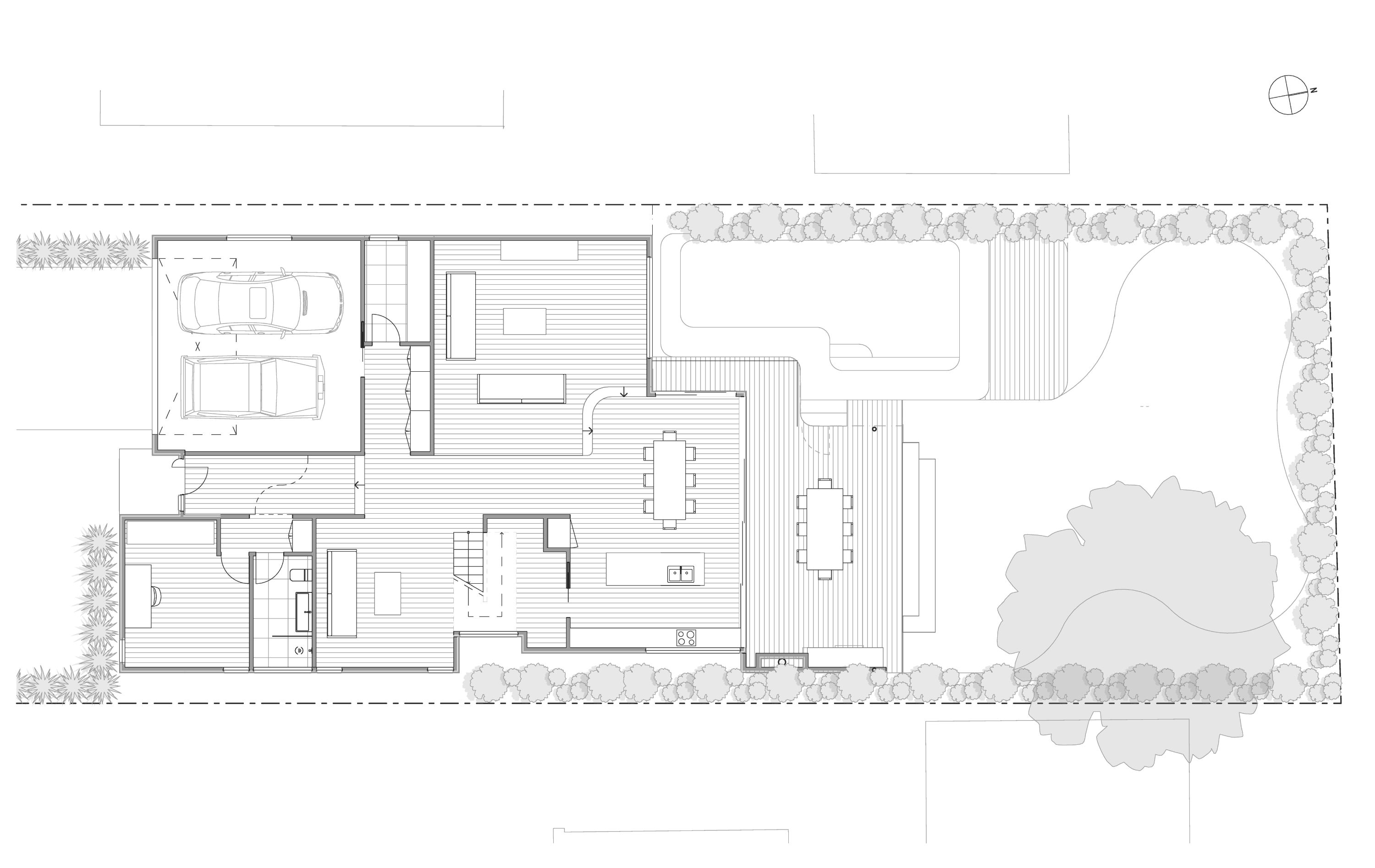
곡선형 입구 공간은 부드러운 동선으로 손님을 맞이하며, 이를 따라 내려가면 맞춤 제작된 콘크리트 계단과 자연스럽게 연결되는 선큰 리빙 공간이 펼쳐진다. 이곳에서는 개구부를 통해 자연광이 풍부하게 유입되며, 개구부는 바깥 풍경을 내부로 들여오는 프레임 역할을 한다. 패시브 냉각 기법과 콘크리트 기초의 높은 열용량이 결합되어 실내 온도를 안정적으로 유지한다.





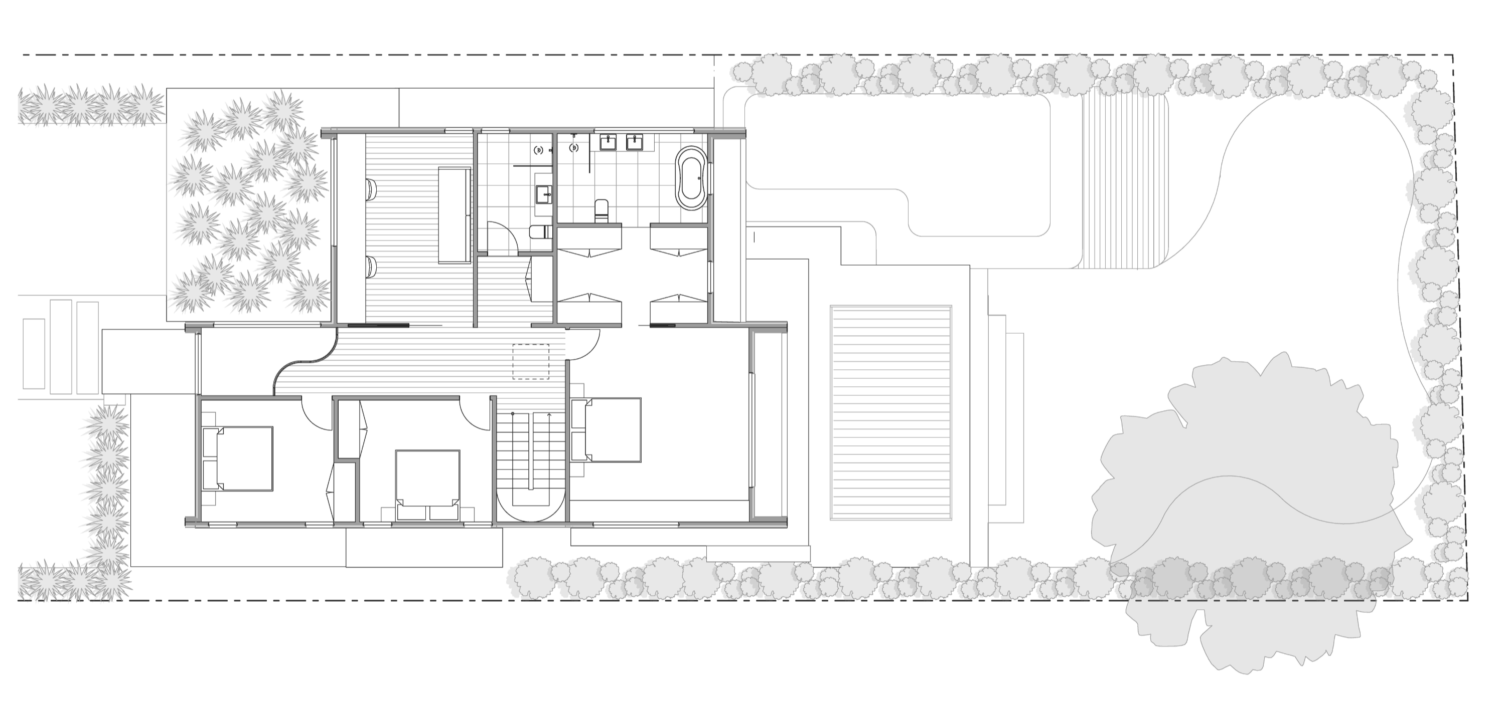
거실은 외부와 자연스럽게 연결되며, 정원과 엔터테인먼트 공간은 실내의 연장선처럼 활용된다. 야외 공간은 세심하게 조율된 캔버스처럼 다양한 활용 가능성을 고려해 설계되었으며, 가족 구성원들이 함께 또는 따로 시간을 보낼 수 있도록 유연한 구성이 특징이다. 둥근 모서리를 가진 수영장은 실내 콘크리트 구조의 곡선을 반영하며, 정원의 중심 요소로 자리 잡는다. 건축과 식물이 유기적으로 연결된 이 공간에서, 수영장은 휴식과 성찰의 장소가 되어 자연과 한층 더 가까워질 수 있도록 돕는다.

과거와 현재가 교차하고, 강물이 흐르듯 자연과 어우러지는 이 공간은 풍경과 조화를 이루는 건축물이다. 정교한 건축적 선(linework)과 지속 가능한 설계를 통해 자연에 대한 경외심과 해안 지역의 삶을 존중하는 태도를 담아냈다. 전통적인 해안 건축 양식의 요소들이 곳곳에 스며들어 있으며, 팜 스프링스(Palm Springs)의 기후에서 영감을 얻은 조경 디자인과 식물이 공간을 완성한다.


건축가 샌드박스 스튜디오 (Sandbox Studio)
위치 호주, 뉴사우스웨일스, 컬컬
용도 단독주택
엔지니어 E2 Civil and Structural Design
조경 Contour Landscape Architecture
시공 Real Constructions
사진작가 Katherine Lu
'Architecture Project > Single Family' 카테고리의 다른 글
| 흙의 질감을 느낄 수 있는 집 / 후지와라무로 아키텍츠 (0) | 2025.03.14 |
|---|---|
| 밝은 색 옷을 입은 베트남 리모델링 주택 / 투브 스튜디오 (0) | 2025.03.10 |
| 광활한 풍경으로 만나는 집 / 캄포스 스튜디오 (0) | 2025.03.05 |
| 시간을 매듭지어 연결하는 공간 / COLLAGE DESIGN STUDIO (0) | 2025.02.26 |
| 하늘을 담는 주택 / 엘리나 자밀 아키텍트 (0) | 2025.02.25 |
마실와이드 | 등록번호 : 서울, 아03630 | 등록일자 : 2015년 03월 11일 | 마실와이드 | 발행ㆍ편집인 : 김명규 | 청소년보호책임자 : 최지희 | 발행소 : 서울시 마포구 월드컵로8길 45-8 1층 | 발행일자 : 매일



