
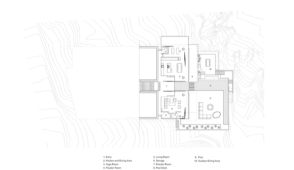
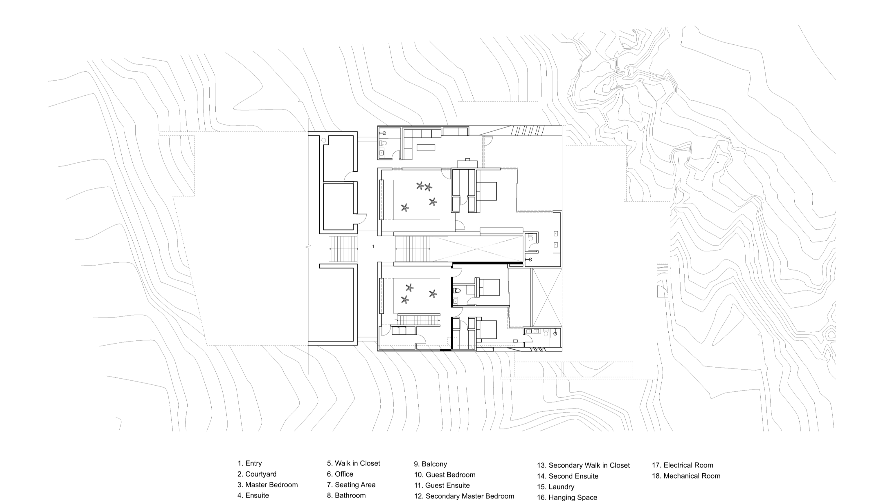
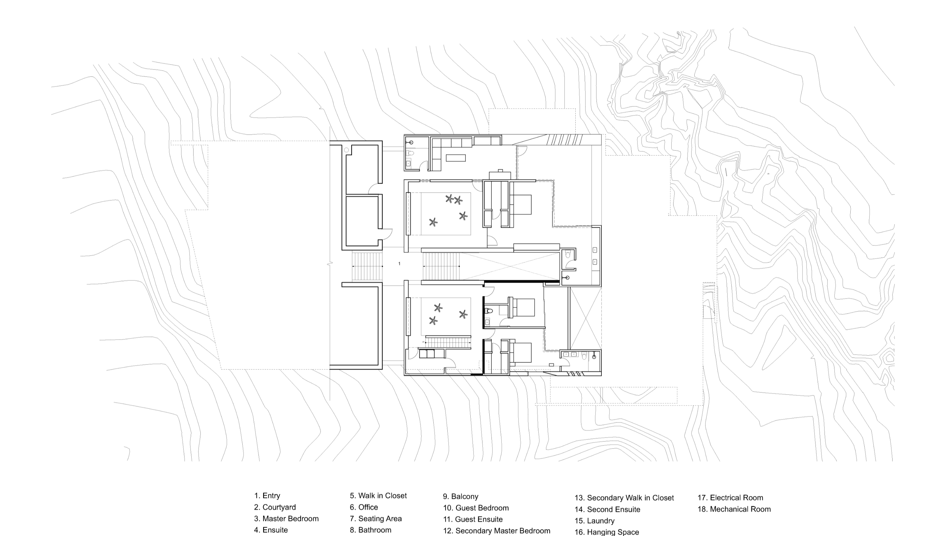
멕시코 바하 칼리포르니아 해안, 사막과 바다, 하늘이 맞닿는 로스 자카티토스 지역에 캄포스 스튜디오는 새로운 프로젝트를 완성했다. 이곳은 전력망과 연결되지 않은 오프 그리드 모더니스트 주거지 시리즈의 일부로, 뜨겁고 건조한 기후 특징을 가지고 있기 때문에 최소한의 건축 접근 방식을 고려했다. 캄포스 스튜디오는 단순한 형태를 통해 사막 환경에서의 생활을 실험하며, 자연을 적극적으로 활용하는 수동적 건축 전략을 건물의 본질적인 요소로 통합하는 것을 목표로 한다. 이러한 전략들은 눈에 띄지 않게 건축의 일부로 녹아 들어 있다.

수평선을 따라 설계된 이 플랫폼은 끊임없이 변화하는 바다의 소리와 향기, 광활한 하늘을 온전히 경험할 수 있는 공간이다.



동쪽을 향한 플랫폼은 일출을 마주하며, 해가 떠오를수록 침실 공간의 매스가 자연스럽게 그늘을 형성해 점점 더 시원한 구역으로 이동할 수 있다. 이 공간은 강렬한 햇빛이 내리쬐는 외부 데크와 내부 공간을 연결하는 완충 지대로, 건물은 경사진 지형을 따라 땅속으로 스며들며 지열을 활용한 자연 냉각 효과를 통해 실내 온도를 조절한다. 이 부지는 선인장과 사막 관목이 자라는 곳에서 시작해 바위와 모래를 지나 결국 바다로 이어진다. 건물의 중심을 가로지르는 순환 동선이 이러한 풍경을 하나로 연결한다. 이 통로를 따라 걸으며 사막을 뒤로하고 바다로 향하는 과정은 하나의 여정과 같다. 계단을 따라 주요 거실 공간으로 내려가면서, 하늘과 바다는 각각 수직적, 수평적으로 구획된 틀 속에서 분리되었다가, 마지막에는 하나의 광활한 풍경으로 다시 만나게 된다.



위치 맥시코, 바하 칼리포르니아 수르, 로스 사카티토스
대지면적 1,784㎡
건축면적 438㎡
연면적 4,714㎡
건폐율 57%
용적률 75%
설계기간 2016 - 2018
시공기간 2018 - 2020
대표건축가
디자인팀 Javier campos, Jan Strelzig
시공 Proyect Construction, BCS, MX
발주자 Withheld
사진작가 Ema Peter
'Architecture Project > Single Family' 카테고리의 다른 글
| 밝은 색 옷을 입은 베트남 리모델링 주택 / 투브 스튜디오 (0) | 2025.03.10 |
|---|---|
| 물결 모양 모서리가 있는 단독주택 / 샌드박스 스튜디오 (0) | 2025.03.07 |
| 시간을 매듭지어 연결하는 공간 / COLLAGE DESIGN STUDIO (0) | 2025.02.26 |
| 하늘을 담는 주택 / 엘리나 자밀 아키텍트 (0) | 2025.02.25 |
| 네모네 / 레이어드 건축사사무소 (0) | 2025.02.25 |
마실와이드 | 등록번호 : 서울, 아03630 | 등록일자 : 2015년 03월 11일 | 마실와이드 | 발행ㆍ편집인 : 김명규 | 청소년보호책임자 : 최지희 | 발행소 : 서울시 마포구 월드컵로8길 45-8 1층 | 발행일자 : 매일



