
Long Bien House
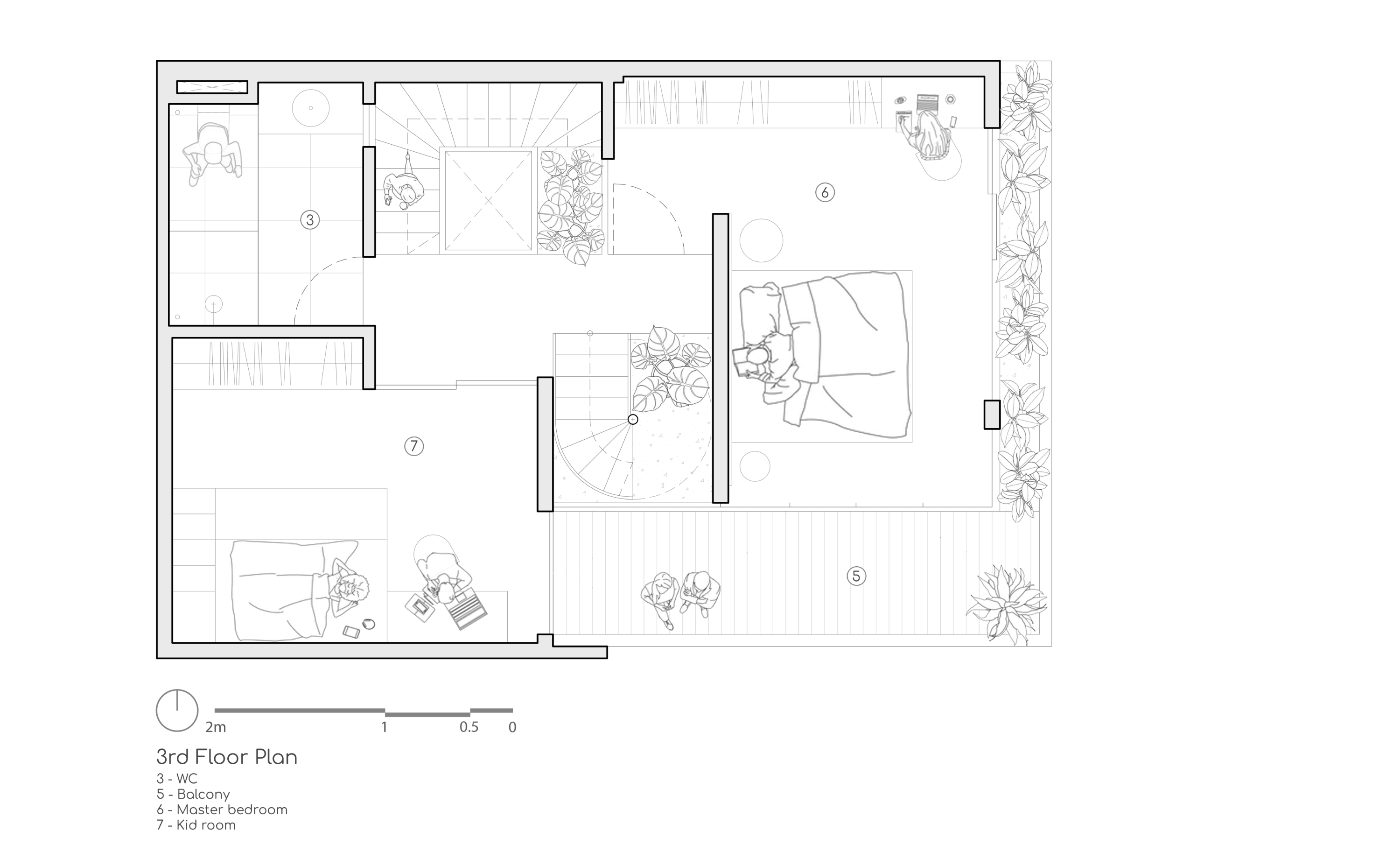
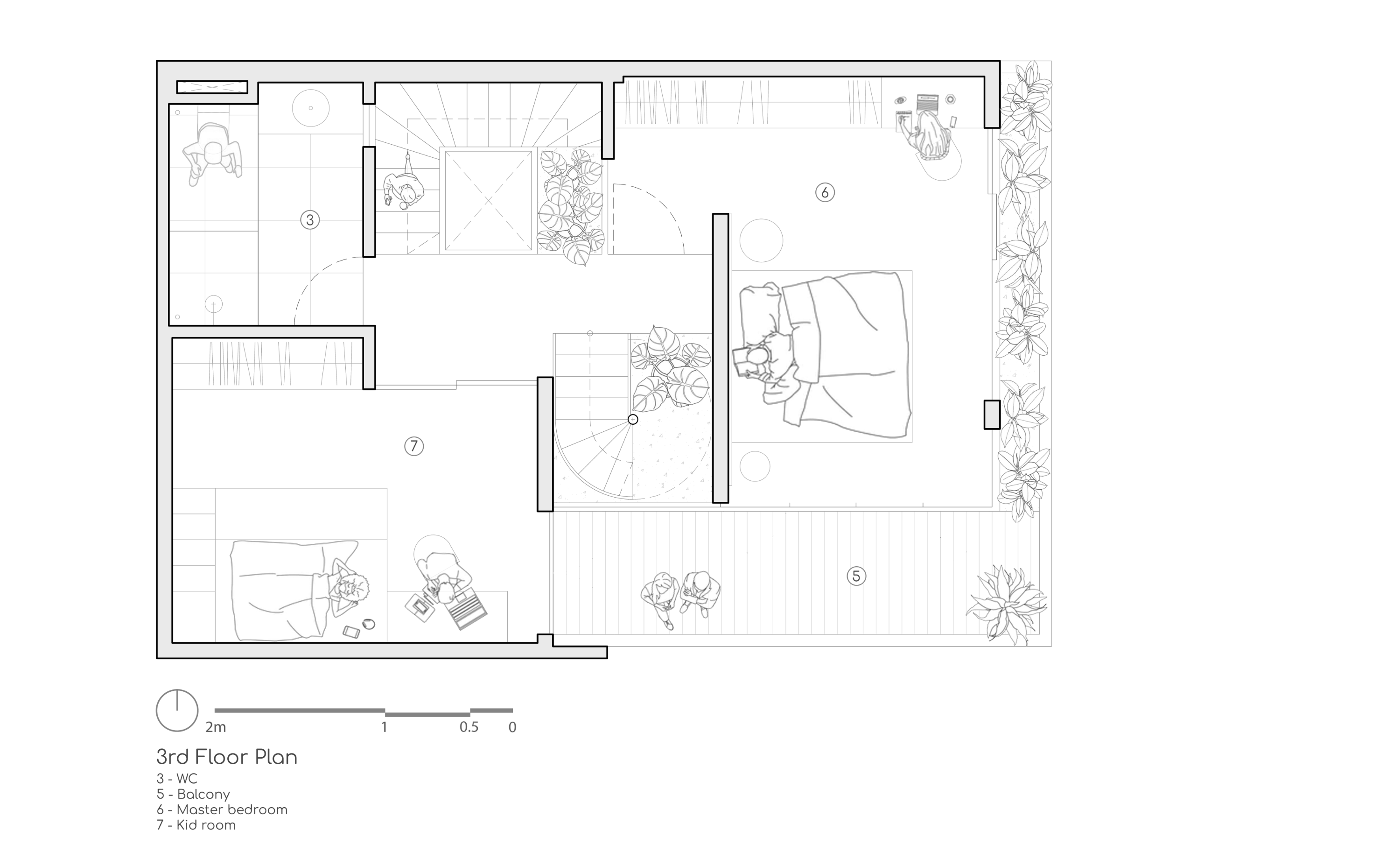
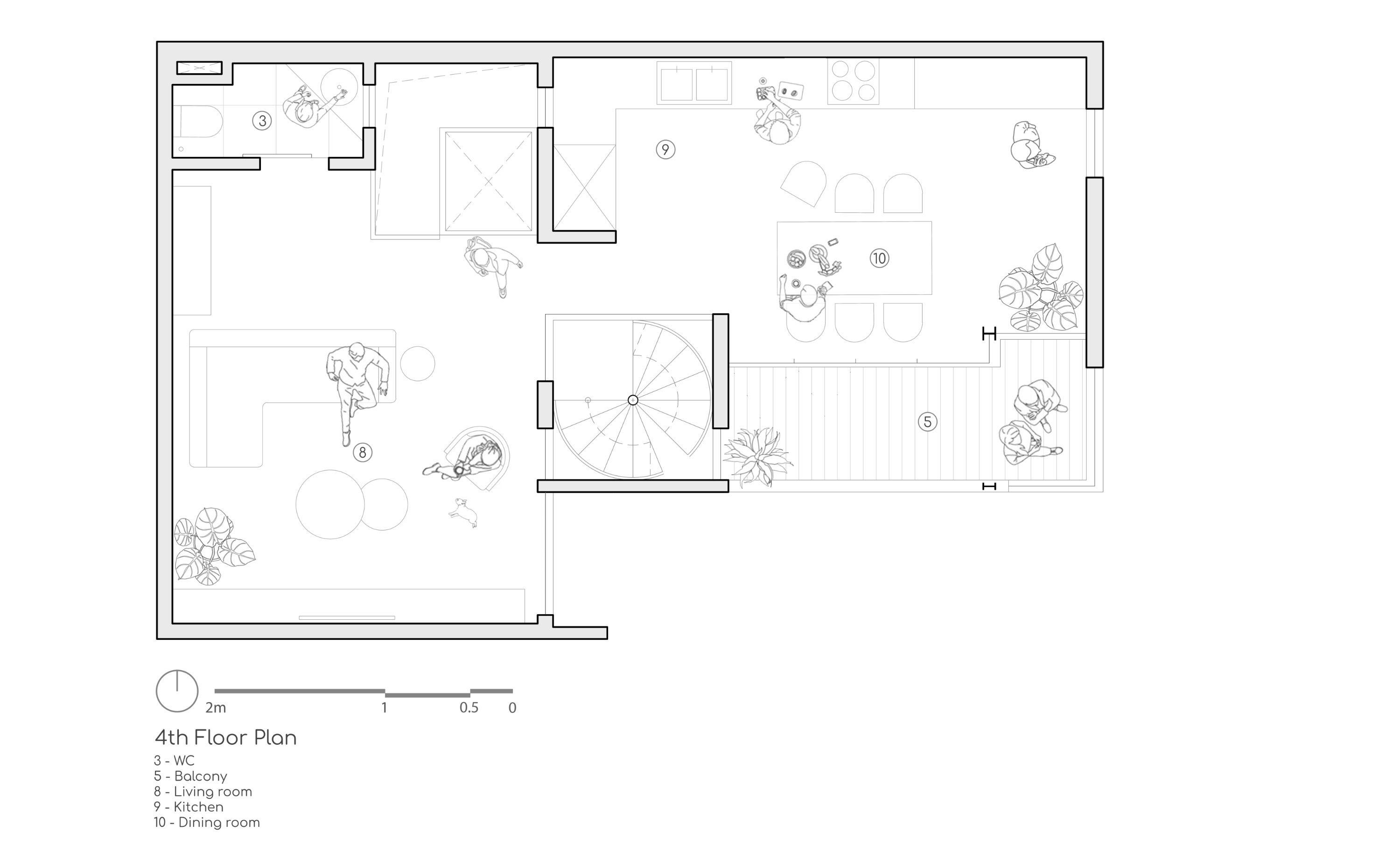
기존 건축물은 지어진 지 20년이 넘은 2.5층짜리 연립주택이다. 기존 건물의 개방적인 구조를 활용하여 주요 골조를 유지하고, 최소한의 보강 작업만 진행하는 방식을 택했다. 이를 통해 다기능적인 공간을 창출하면서도 비용과 공사 기간을 크게 줄일 수 있었다.

외관을 감싸는 생동감 넘치는 색채 또한 디자인의 핵심 요소 중 하나다. 신선하고 밝은 색감을 활용해 경쾌한 분위기를 연출했으며, 이는 주변 이웃들에게도 긍정적인 영향을 미쳤다. 실제로, 새로운 주택 소유자를 따뜻하게 맞이하는 이웃들의 반응을 통해 이 공간이 단순한 건축물이 아니라, 지역 사회와 자연스럽게 소통하는 장소로 자리 잡고 있음을 확인할 수 있었다.










위치 베트남, 하노이, 롱비엔
프로젝트면적 90㎡
준공 2024
사진작가 Triệu Chiến
'Architecture Project > Single Family' 카테고리의 다른 글
| 작소비가 / 건축사사무소 공백 (0) | 2025.03.19 |
|---|---|
| 흙의 질감을 느낄 수 있는 집 / 후지와라무로 아키텍츠 (0) | 2025.03.14 |
| 물결 모양 모서리가 있는 단독주택 / 샌드박스 스튜디오 (0) | 2025.03.07 |
| 광활한 풍경으로 만나는 집 / 캄포스 스튜디오 (0) | 2025.03.05 |
| 시간을 매듭지어 연결하는 공간 / COLLAGE DESIGN STUDIO (0) | 2025.02.26 |
마실와이드 | 등록번호 : 서울, 아03630 | 등록일자 : 2015년 03월 11일 | 마실와이드 | 발행ㆍ편집인 : 김명규 | 청소년보호책임자 : 최지희 | 발행소 : 서울시 마포구 월드컵로8길 45-8 1층 | 발행일자 : 매일



