
House Renovation in Suita
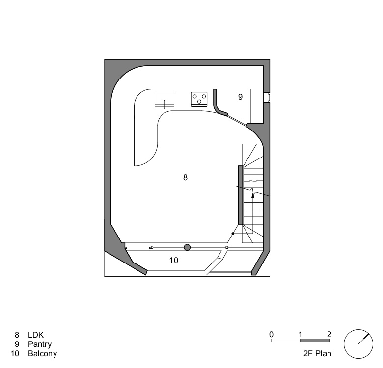
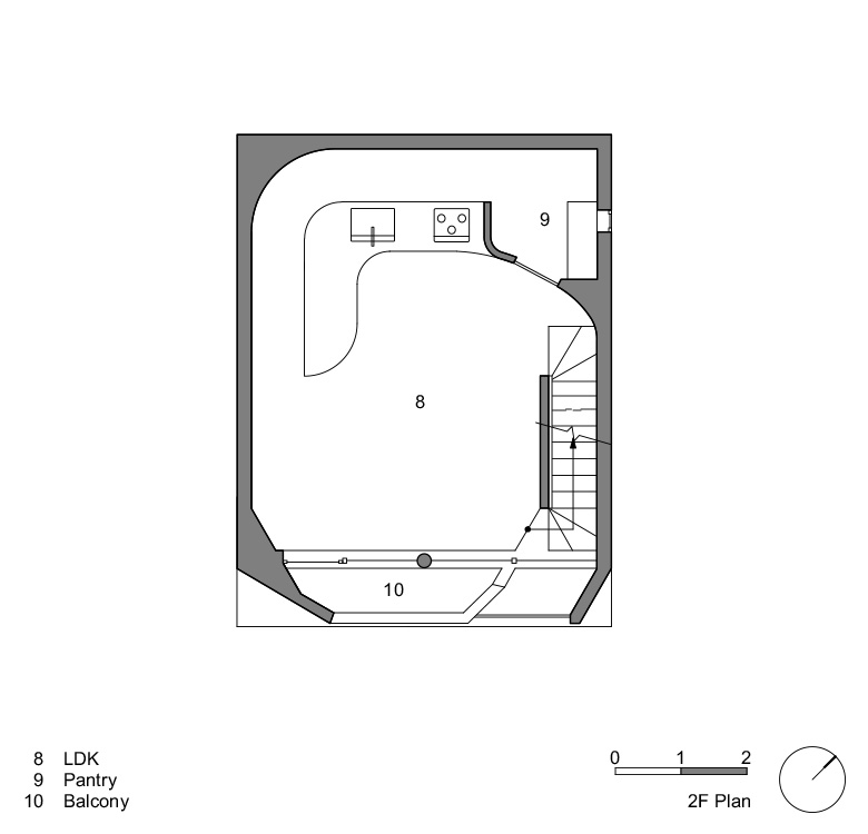
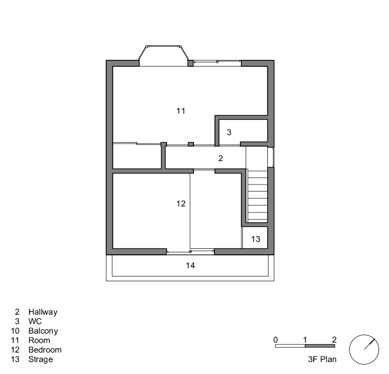
이 프로젝트는 건축주가 태어나고 자란 집을 전면 리모델링하는 작업이었다. 이 주택이 위치한 지역은 비슷한 형태의 기성주택들이 줄지어 있는 곳으로, 설계 과정에서 이웃 주택들과의 시선 관계를 고려해야 했다. 건축주는 리모델링을 통해 집이 흙의 질감으로 감싸인 듯한 공간이 되기를 원했다. 이를 반영하여 2층의 LDK(거실, 다이닝, 주방)를 흙의 질감을 강조한 디자인으로 구성하고, 실내뿐만 아니라 외부에서도 존재감을 드러낼 수 있도록 설계했다. 기존 건물의 구조적 틀을 유지하면서도 1층에는 욕실과 수납공간, 2층에는 개방적인 LDK 공간을, 3층에는 사적 공간을 마련하여 기능적인 균형을 맞췄다.



특히 2층 LDK 공간은 주방, 다이닝 테이블, 바닥, 벽, 천장까지 동일한 질감으로 마감하여 일체감을 극대화했다. 무게를 고려해 바닥은 PVC 소재를 사용하고, 벽체는 페인트 도장으로 마감했다.

또한, 2층 공간이 실내에서뿐만 아니라 외관에서도 조화를 이루도록 기존 외벽과 발코니를 철거하고 외벽을 새로 구축했다. 1층과 3층은 기존 구조를 최대한 유지하면서도 기능성을 높이는 방향으로 심플하게 리모델링했다. 반면, 2층은 실내와 외부가 유기적으로 연결된 과감한 디자인을 통해 집 전체의 인상을 결정짓는 핵심 공간으로 탈바꿈했다.






건축가 후지와라무로 아키텍츠(FujiwaraMuro Architects)
위치 일본, 오사카, 스이타
용도 단독주택
대지면적 58㎡
연면적 96㎡
규모 지상 3층
준공 2024. 3.
사진작가 studioREM
'Architecture Project > Single Family' 카테고리의 다른 글
| 플럭스 하우스 / 에스유피건축사사무소 (0) | 2025.03.19 |
|---|---|
| 작소비가 / 건축사사무소 공백 (0) | 2025.03.19 |
| 밝은 색 옷을 입은 베트남 리모델링 주택 / 투브 스튜디오 (0) | 2025.03.10 |
| 물결 모양 모서리가 있는 단독주택 / 샌드박스 스튜디오 (0) | 2025.03.07 |
| 광활한 풍경으로 만나는 집 / 캄포스 스튜디오 (0) | 2025.03.05 |
마실와이드 | 등록번호 : 서울, 아03630 | 등록일자 : 2015년 03월 11일 | 마실와이드 | 발행ㆍ편집인 : 김명규 | 청소년보호책임자 : 최지희 | 발행소 : 서울시 마포구 월드컵로8길 45-8 1층 | 발행일자 : 매일



