
방콕 라트프라오 1번 골목 15번지에 위치한 200평 규모의 오래된 집은 50년이 넘은 세월을 지나면서 방치된 채로 있었고, 주인은 이 집을 리모델링하여 새롭게 변형시키기로 결심했다.


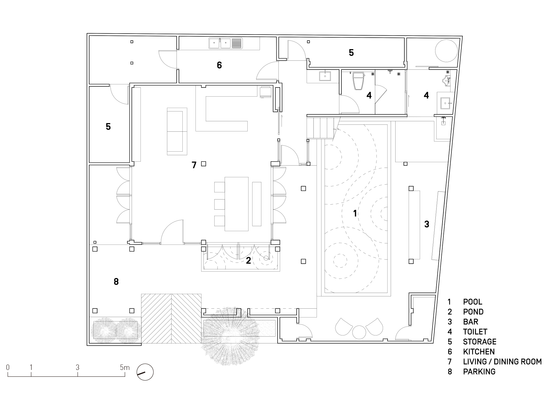
건축가는 이 건축물을 수영장과 외부 바를 포함해 모임을 위한 공간으로 변화시켰다. 원래 남아있는 목재 틀을 보존하고 새로운 요소를 결합시켰다. 과거 아버지의 사무실을 수영장으로 재구성하고, 철근 콘크리트 기둥과 빔은 보존했다.

디자인은 기존 구조를 존중하면서도 현대적인 요소를 더해 프라이버시를 보호하는 'S'자 형태의 섬유 시멘트 패널 벽을 추가했다. 이 벽은 공간을 나누면서도 자연스럽게 연결되며, 전통과 현대의 융합을 보여준다.


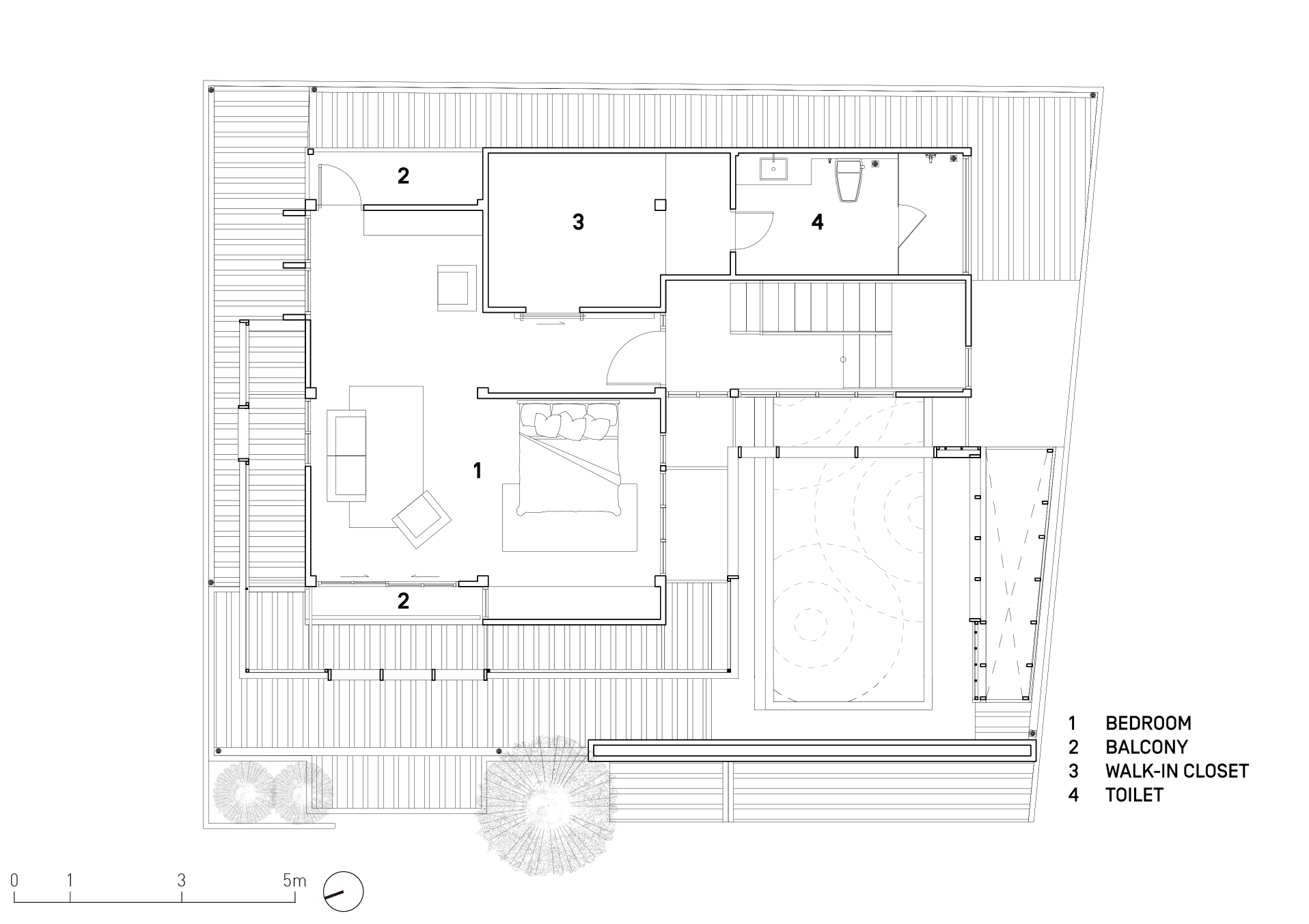
아래층 거실은 실내외 공간을 원활하게 연결하기 위해 오래된 벽을 철거하고 자연광이 들어올 수 있게 구성해 개방감 넘치는 거실로 바꿨다. 이는 태눈(태국 전통 가옥의 아래층처럼 열린 공간)과 유사하다. 위층의 안방은, 새로운 벽 재료들이 기존 구조와 결합되어, 전통과 현대 디자인 개념의 조화를 이뤘다. 계단은 밝고 환한 공간으로 탈바꿈하여 두 층을 연결하고 실내외의 경계를 넘나드는 중요한 역할을 했다.




건축가 콜라주 디자인 스튜디오(COLLAGE DESIGN STUDIO)
위치 태국, 짜뚜짝
프로그램면적 308㎡
규모 지상 2층
준공 2024
프로젝트건축가 Cherdsak Soisuwan, Puttichart Wanichtat
디자인팀 Saichon Junjang, Kanyarat Khanthaworn
사진작가 Witsawarut Kekina
'Architecture Project > Single Family' 카테고리의 다른 글
| 물결 모양 모서리가 있는 단독주택 / 샌드박스 스튜디오 (0) | 2025.03.07 |
|---|---|
| 광활한 풍경으로 만나는 집 / 캄포스 스튜디오 (0) | 2025.03.05 |
| 하늘을 담는 주택 / 엘리나 자밀 아키텍트 (0) | 2025.02.25 |
| 네모네 / 레이어드 건축사사무소 (0) | 2025.02.25 |
| 지디 하우스 / 아다르크 - 안드레 다비드 아르키텍투 (0) | 2025.02.24 |
마실와이드 | 등록번호 : 서울, 아03630 | 등록일자 : 2015년 03월 11일 | 마실와이드 | 발행ㆍ편집인 : 김명규 | 청소년보호책임자 : 최지희 | 발행소 : 서울시 마포구 월드컵로8길 45-8 1층 | 발행일자 : 매일



