
이 프로젝트는 1970~80년대에 개발된 페탈링자야시의 오래된 주거 지역인 타만 바다에 위치한 2층 테라스 하우스의 리모델링이다. 이 집은 건축주가 어린 시절을 보낸 집으로, 오랜 기간 임대되었다가, 자신의 가정을 이룬 건축주가 다시 거주하기로 결정하면서 새롭게 리모델링 했다.




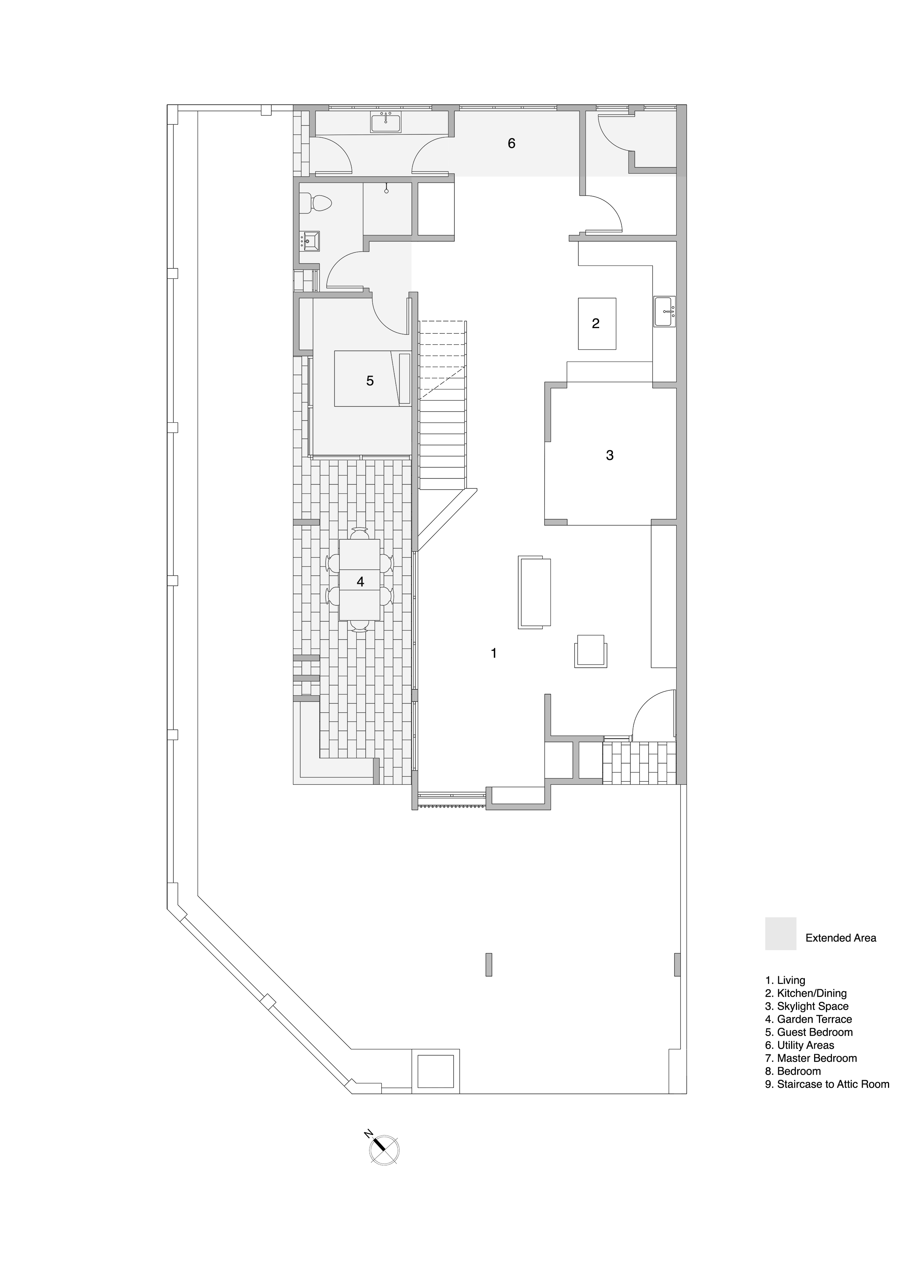
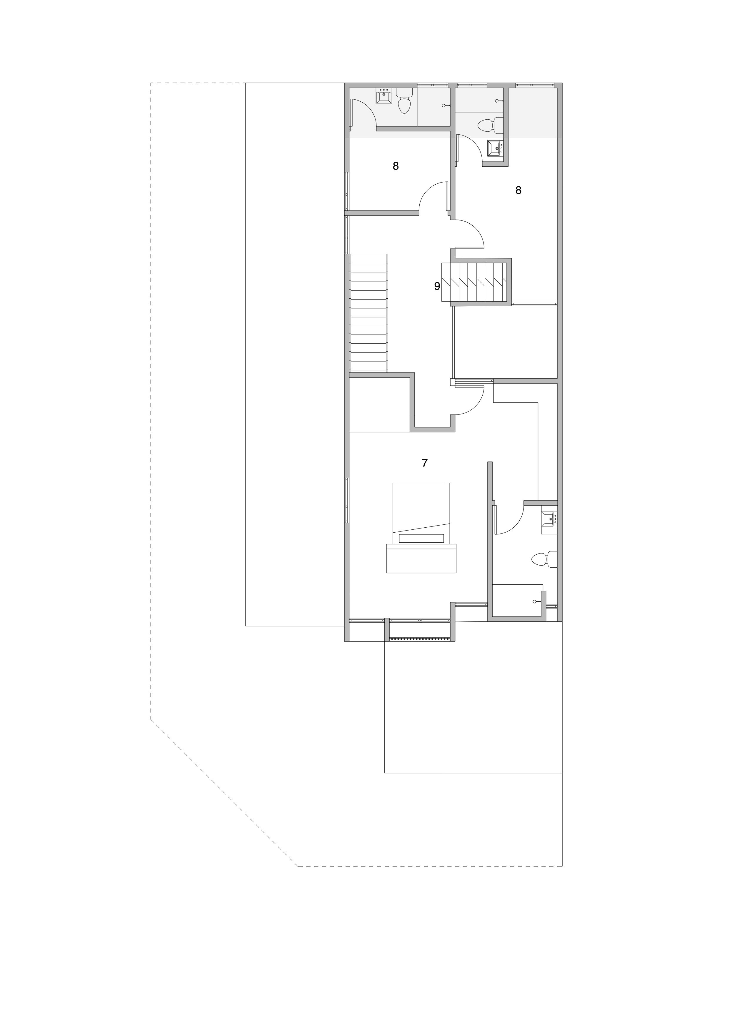
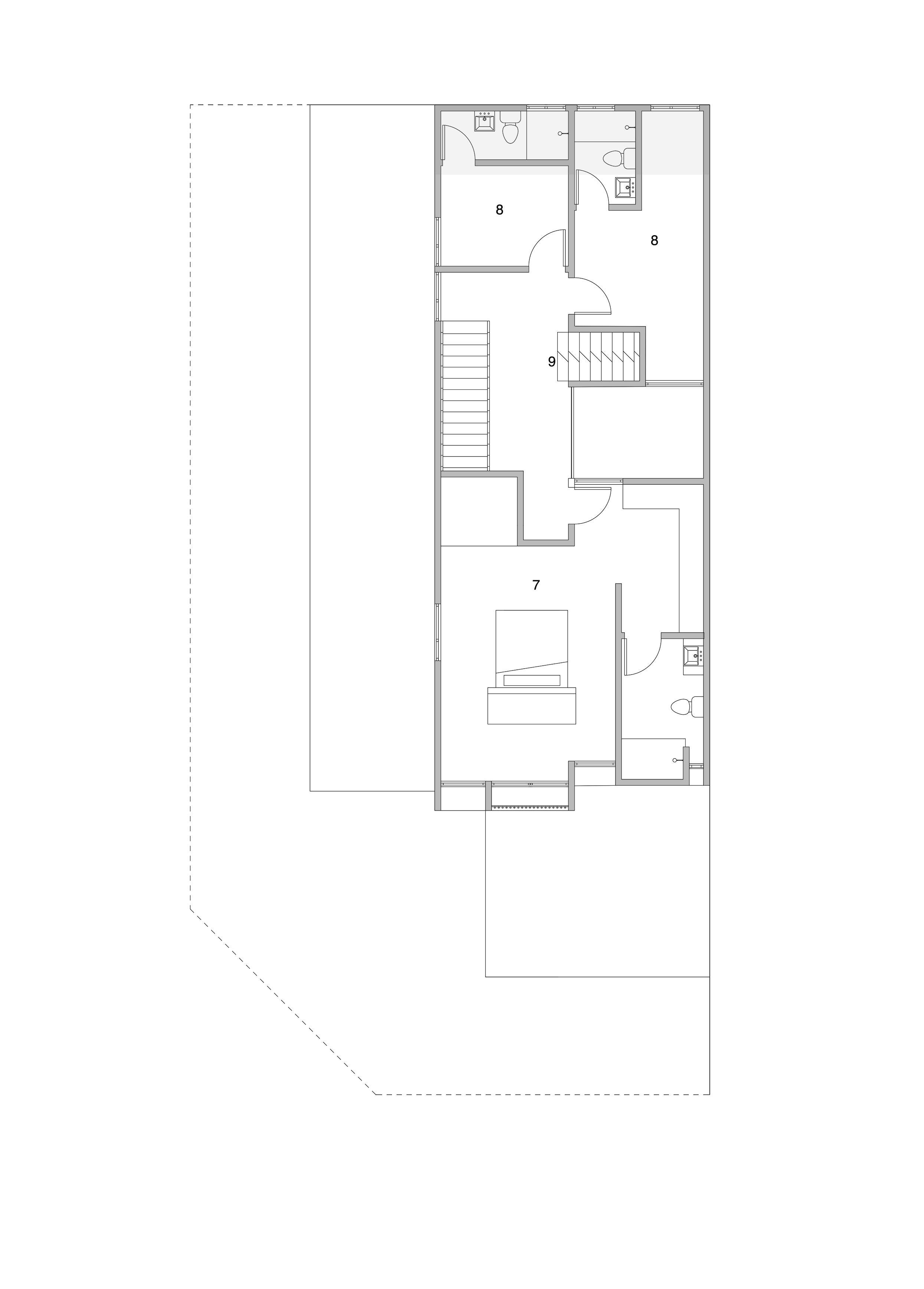
리모델링의 목표는 기존 구조의 허용 범위 내에서 현대적인 공간을 구현하고 채광과 환기를 개선하는 것이었다. 건축주는 자녀가 크면서 사용 할 공간도 필요로 했다. 이에 따라 1층은 정원과 건물 뒤쪽 방향으로 확장되어 그늘진 테라스, 게스트룸, 유틸리티 공간을 추가로 계획했다. 다락은 작은 방으로 리모델링 되었으며, 좁고 낮은 공간의 제약을 극복하기 위해 교차 계단을 설치했다.

중앙부에 위치한 더블 높이 공간에 천창을 설치해 실내로 부드럽고 변화무쌍한 자연광이 들어오도록 했다. 리모델링된 밝고 개방적인 거실 공간은 가족이 함께 요리하고 생활하며 즐기는 새로운 장소로 건축주를 만족시켰다.

외부 디자인에서는 따뜻한 분위기가 느껴지는 테라코타색 흙 벽돌과 지역에서 나온 목재를 활용했다. 슬림한 비율의 흙 벽돌 기둥과 현장 타설된 콘크리트 벤치는 테라스의 경계를 정의한다. 발라우 목재로 만든 세로형 필리그리 형태의 섬세한 목재 스크린은 큰 유리창을 가리며 프라이버시를 확보할 수 있고 그늘을 만든다.


건축가 엘리나 자밀 아키텍트 (Eleena Jamil Architect)
위치 말레이시아, 셀랑고르, 페탈링자야
프로젝트면적 230㎡
준공 2024
디자인팀 Eleena Jamil, Yow Pei San, Adam Aziz Marzuki, Kirrthana Nanthini
사진작가 David Yeow Photography
'Architecture Project > Single Family' 카테고리의 다른 글
| 광활한 풍경으로 만나는 집 / 캄포스 스튜디오 (0) | 2025.03.05 |
|---|---|
| 시간을 매듭지어 연결하는 공간 / COLLAGE DESIGN STUDIO (0) | 2025.02.26 |
| 네모네 / 레이어드 건축사사무소 (0) | 2025.02.25 |
| 지디 하우스 / 아다르크 - 안드레 다비드 아르키텍투 (0) | 2025.02.24 |
| 물 위를 유영하는 집 / 레오폴드 반키니 (0) | 2025.02.20 |
마실와이드 | 등록번호 : 서울, 아03630 | 등록일자 : 2015년 03월 11일 | 마실와이드 | 발행ㆍ편집인 : 김명규 | 청소년보호책임자 : 최지희 | 발행소 : 서울시 마포구 월드컵로8길 45-8 1층 | 발행일자 : 매일



