
이 프로젝트는 레만 호수 옆에 자리 잡아 알프스를 바라보고 있다. 주변 환경과 조화를 고려하여 건축물은 단순하게 디자인되었다.



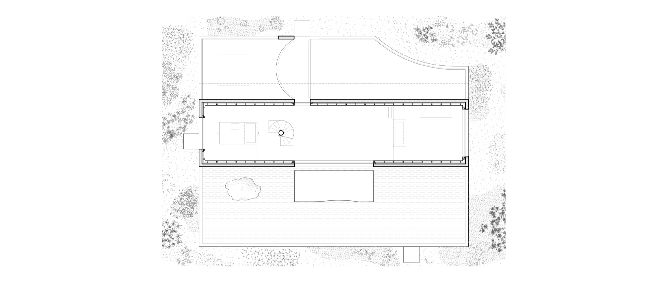
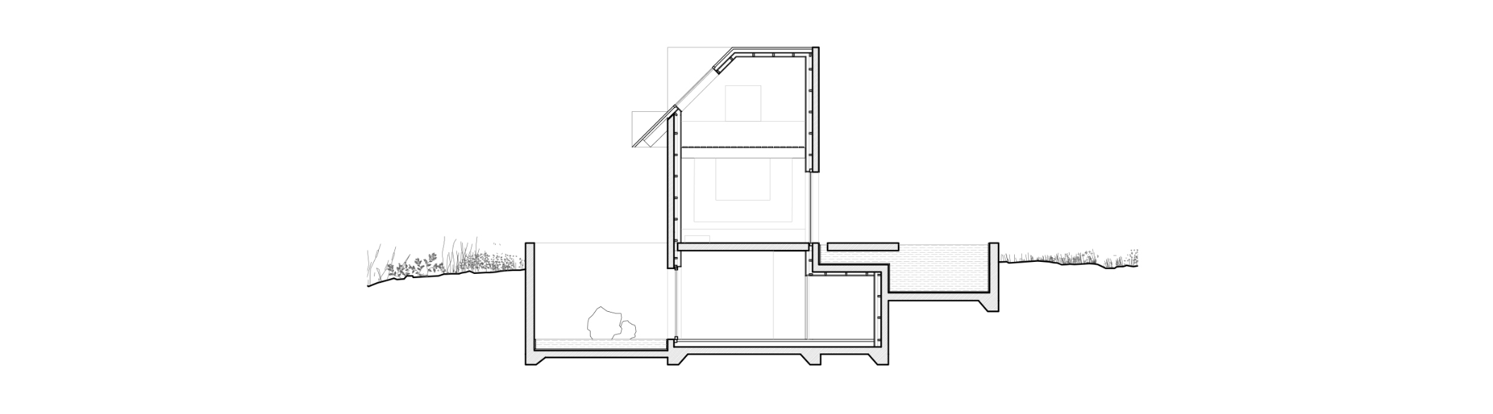
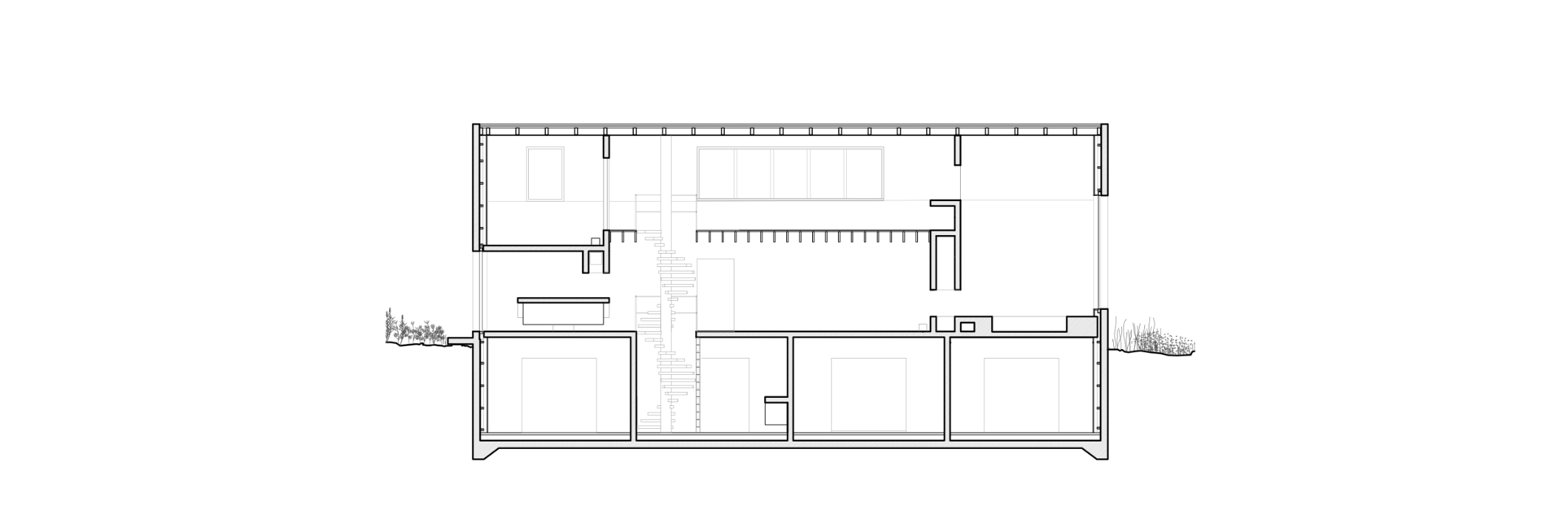
길고 단순한 파사드는 같은 길이의 수면에 반사되어 마치 빈 캔버스처럼 보인다. 긴 창문 하나가 같은 크기의 떠 있는 테라스로 이어진다. 주택은 긴 직사각형의 평면으로, 세 개의 층으로 구성된다. 지상층의 거실 공간은 외부 환경에 활짝 열려 있지만, 지하 침실은 외부에서 접근이 불가능하도록 중정과 가까이 있다.

이 중정은 지붕에서 빗물을 모아 채웠다. 중정의 수면에 반사된 빛은 집 안으로 들어와 나무 벽과 천장에 춤추는 듯한 형태를 남긴다.




건축가 레오폴드 반키니(Leopold Banchini)
위치 스위스, 미스
프로젝트기간 2022 - 2024
사진작가 Rory Gardiner
'Architecture Project > Single Family' 카테고리의 다른 글
| 네모네 / 레이어드 건축사사무소 (0) | 2025.02.25 |
|---|---|
| 지디 하우스 / 아다르크 - 안드레 다비드 아르키텍투 (0) | 2025.02.24 |
| 빛을 따라 움직이는 집 / 마테리아 + 구스타보 카모나 (0) | 2025.02.18 |
| 더 프레임 하우스 / 레이어드 건축사사무소 (0) | 2025.02.17 |
| 작가의 생각을 들여다보는 공간 / 비루타 랩 (0) | 2025.02.17 |
마실와이드 | 등록번호 : 서울, 아03630 | 등록일자 : 2015년 03월 11일 | 마실와이드 | 발행ㆍ편집인 : 김명규 | 청소년보호책임자 : 최지희 | 발행소 : 서울시 마포구 월드컵로8길 45-8 1층 | 발행일자 : 매일



