
HOUSE OF LIGHT
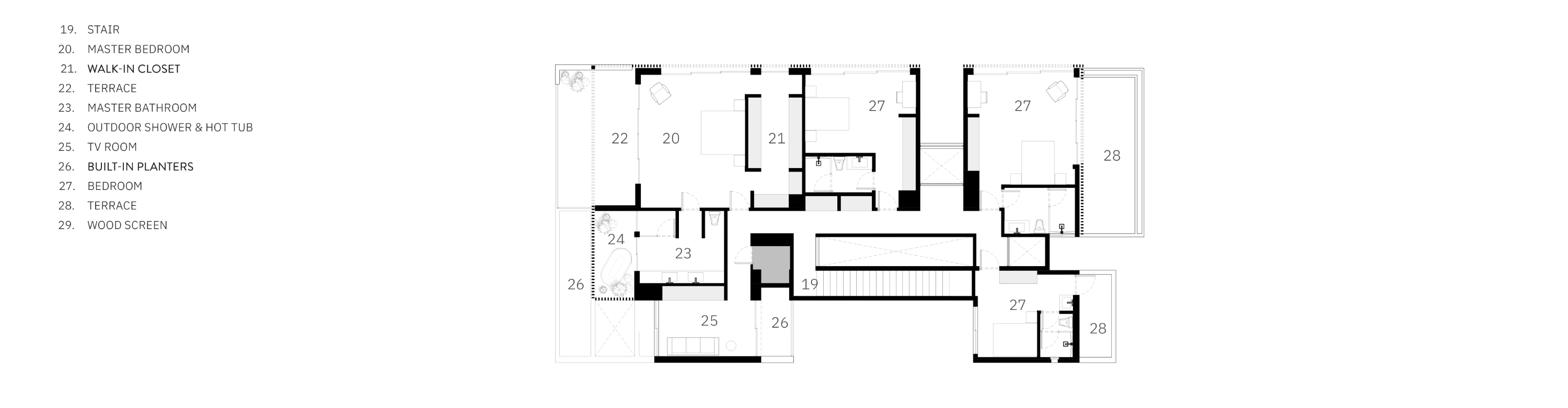
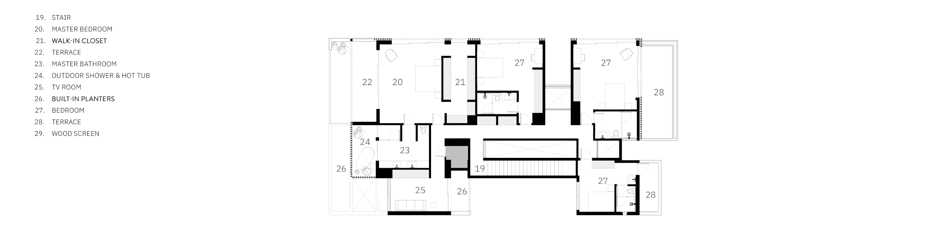
디자인은 특정 스타일에 얽매이는 대신 대지에 대한 이해와 공간 속에서 감각적 경험을 통해 프라이버시 수준을 설정하는 방식에 초점을 맞추었다. 프로그램 공간들은 외부에 대해 얼마나 개방적이어야 하는지를 기준으로 배치되었으며, 그 결과 주요 동선 축이 구성되고 공간들을 옆으로 밀어내며 사이에 빈 공간을 만들어 북쪽 정원을 향한 의도적인 프레임 뷰를 만들었다. 이로 인해 집은 고체 볼륨들이 결합되어 입구를 감싸는 형태가 되었다.


입구 정원은 경사진 잔디밭에 놓여진 디딤석을 따라 가면 현관으로 갈 수 있는 차양을 만날 수 있다. 차양을 통과하면 동선이 전환되며 빛이 조각해낸 일련의 공간들을 발견할 수 있다. 이러한 공간은 북쪽 정원을 향한 프레임 뷰를 제공하며 공용 공간으로 이어진다. 공용공간에는 정원과 그 너머의 골프 코스를 향한 테라스가 있다. 1층 동선은 침실로 이어지는 계단으로 연결되며, 이 과정에서 2층 높이의 공간을 경험하게 된다.

목재 스크린은 나무 그림자와 함께 벽면에 그림자를 드리워 하루 종일 표면이 끊임없이 변화하도록 만들었다. 내부는 대리석과 목재로 마감하여 공간에 따뜻한 분위기를 더했다.



건축가 마테리아 + 구스타보 카모나(MATERIA + Gustavo Carmona)
위치 미국, 마이애미 해변
대지면적 1,160㎡
연면적 740㎡
대표건축가 Gustavo Carmona
사진작가 Jaime Navarro
'Architecture Project > Single Family' 카테고리의 다른 글
| 지디 하우스 / 아다르크 - 안드레 다비드 아르키텍투 (0) | 2025.02.24 |
|---|---|
| 물 위를 유영하는 집 / 레오폴드 반키니 (0) | 2025.02.20 |
| 더 프레임 하우스 / 레이어드 건축사사무소 (0) | 2025.02.17 |
| 작가의 생각을 들여다보는 공간 / 비루타 랩 (0) | 2025.02.17 |
| 덜어낼수록 명확해지는 집 / 알브이디엠 아르키텍투스 (0) | 2025.02.17 |
마실와이드 | 등록번호 : 서울, 아03630 | 등록일자 : 2015년 03월 11일 | 마실와이드 | 발행ㆍ편집인 : 김명규 | 청소년보호책임자 : 최지희 | 발행소 : 서울시 마포구 월드컵로8길 45-8 1층 | 발행일자 : 매일



