
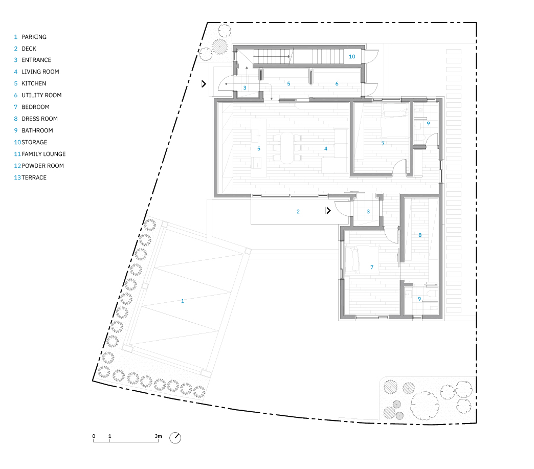
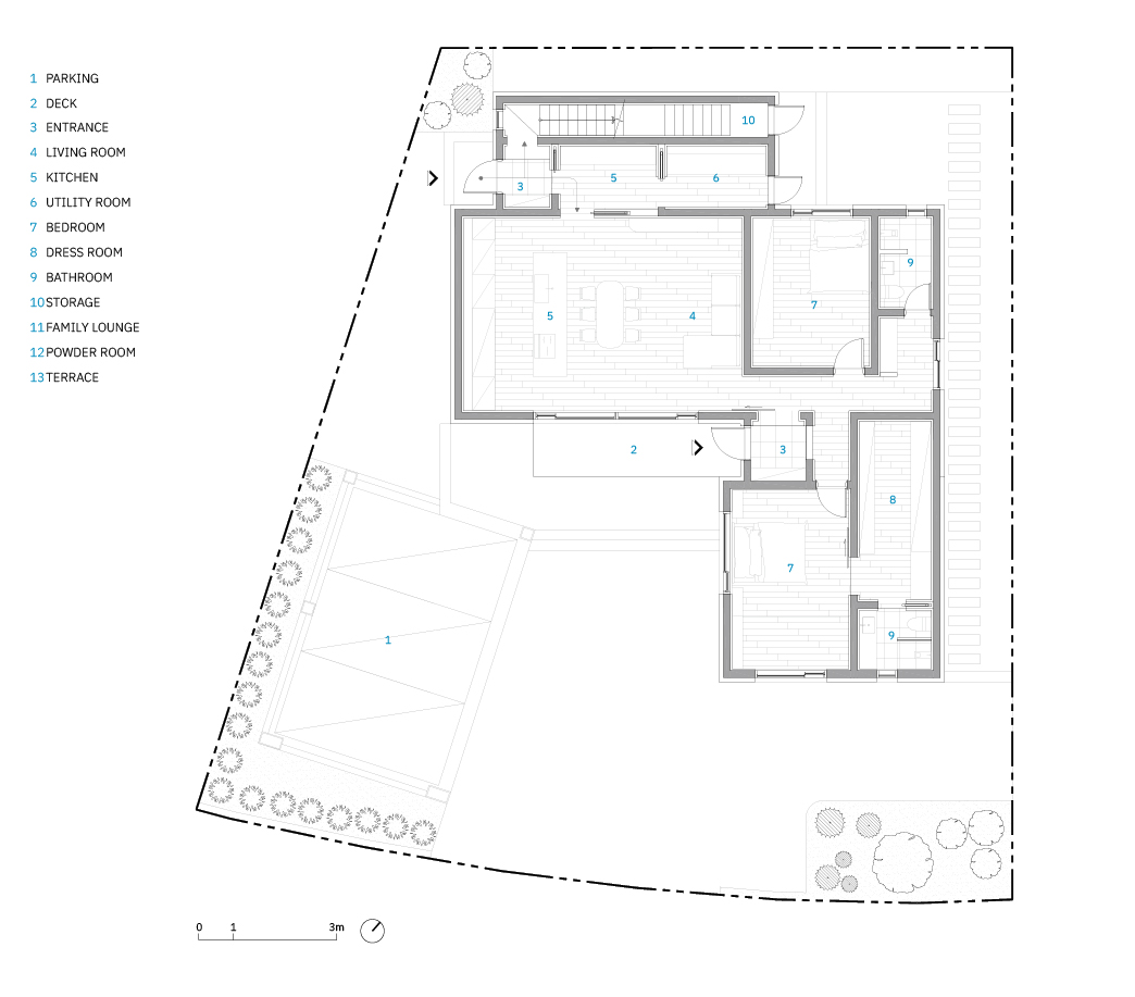
더 프레임 하우스는 비정형 모양의 대지에 지어진 단독주택이다. 대상지의 전면은 유선형 도로와 접해 있고 도로 건너편으로 소하천이 흐른다. 대지는 두 개의 축을 가지고 있는데, 이 축을 따라 메인 주거동과 주차동으로 나뉜다. 메인 주거동은 서로 직각을 이루는 북서측과 북동측의 축을 따라, 주차동은 도로에서의 진입을 고려해 남서측의 축을 따라 배치됐다.

메인 주거동에는 두 개의 출입구가 마련되어 있다. 주 출입구는 마당에서 바로 진입할 수 있는 중앙에 배치되었으며, 부 출입구는 자녀가 주로 이용하는 동선으로 대지 안쪽에 배치하여 2층으로 바로 올라갈 수 있다. 부 출입구 현관은 메인 주방과 인접한 보조 주방으로 연결되어, 내부에서는 1층과 2층을 유기적으로 연결하는 공간이 된다. 거실은 대면형 주방, 식당과 통합적으로 연결되어 있고 큰 창을 통해 마당을 바라볼 수 있다.



2층의 가족실은 미니 홈 바와 테라스를 연계하여 활용도를 높였다. 1층의 면적 차이에 의해 생긴 2층의 공간은 야외 테라스가 되었다. 건축주의 프라이버시를 보장하기 위해 마당 대신 2층에 넓은 테라스를 마련했는데, 지구단위계획 지침상 경사 지붕 면적이 필요하여 평지붕인 테라스에 사선 지붕을 씌우는 방안을 고안했다. 2층 테라스의 지붕은 실내로 조망을 최대한 끌어들이면서 바깥으로 열린 형태로 계획되어 풍경을 담는 프레임 역할을 한다.




건축가 레이어드 건축사사무소(LAYERED ARCHITECTS)
위치 경상남도 창원시 성산구 대방동
용도 단독주택
대지면적 491.00㎡
건축면적 197.03㎡
연면적 338.66㎡
규모 지상 2층
건폐율 40.13%
용적률 60.18%
설계기간 2021. 7. - 11.
시공기간 2022. 2. - 2023. 2.
준공 2023. 2.
프로젝트건축가 김선용
구조엔지니어 와이구조
기계엔지니어 월드기술단
전기엔지니어 월드기술단
시공 (주)공간기록
사진작가 김봉수
해당 프로젝트는 건축문화 2025년 2월호(Vol. 525)에 게재되었습니다.
The project was published in the November, 2025 recent projects of the magazine(Vol. 525).
February 2025 : vol. 525
Contents : COMPETITION : BOOKS : RECENT PROJECT Y22007 PJ_012 / BSN ARCHI.연남동 리모델링 프로젝트 / 비에스엔 건축사사무소 GD House / Adarq - André David Arquitecto지디 하우스 / 아다르크 - 안드레 다비
anc.masilwide.com
'Architecture Project > Single Family' 카테고리의 다른 글
| 물 위를 유영하는 집 / 레오폴드 반키니 (0) | 2025.02.20 |
|---|---|
| 빛을 따라 움직이는 집 / 마테리아 + 구스타보 카모나 (0) | 2025.02.18 |
| 작가의 생각을 들여다보는 공간 / 비루타 랩 (0) | 2025.02.17 |
| 덜어낼수록 명확해지는 집 / 알브이디엠 아르키텍투스 (0) | 2025.02.17 |
| 날개를 펼친 집 / 스튜디오 브이에이알에이 (0) | 2025.02.12 |
마실와이드 | 등록번호 : 서울, 아03630 | 등록일자 : 2015년 03월 11일 | 마실와이드 | 발행ㆍ편집인 : 김명규 | 청소년보호책임자 : 최지희 | 발행소 : 서울시 마포구 월드컵로8길 45-8 1층 | 발행일자 : 매일



