
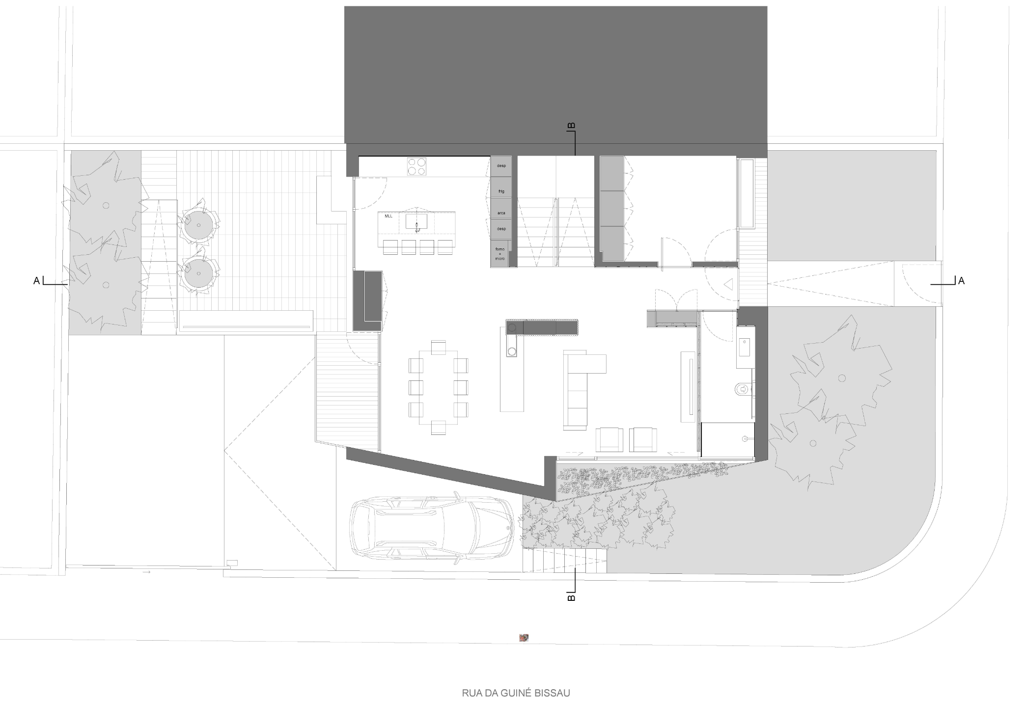
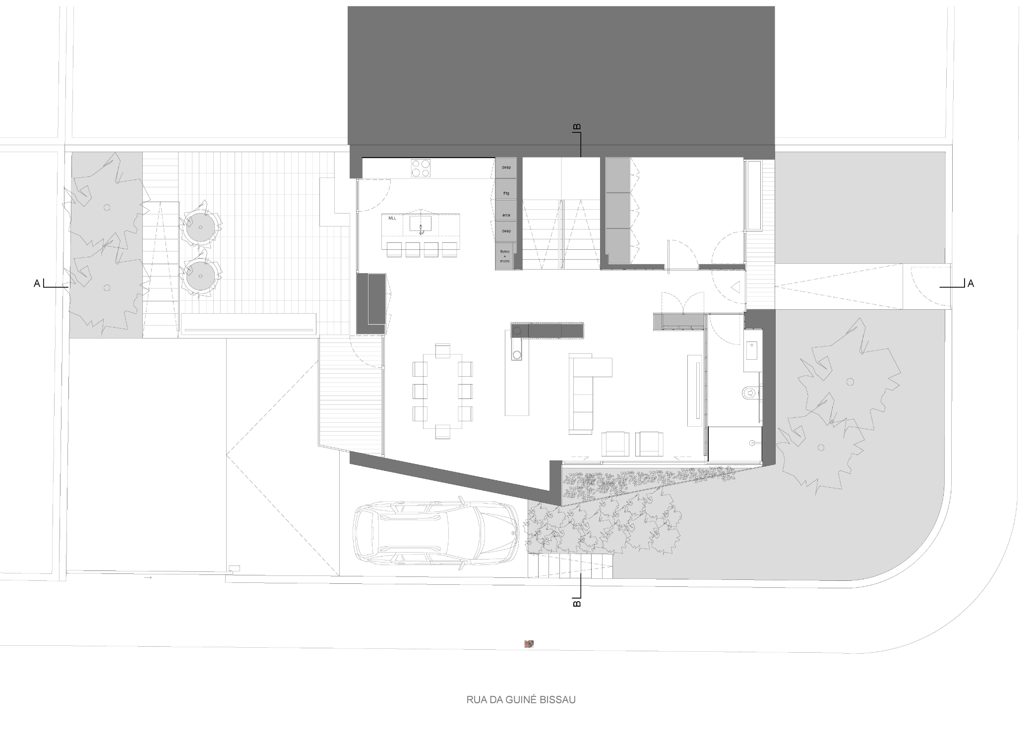
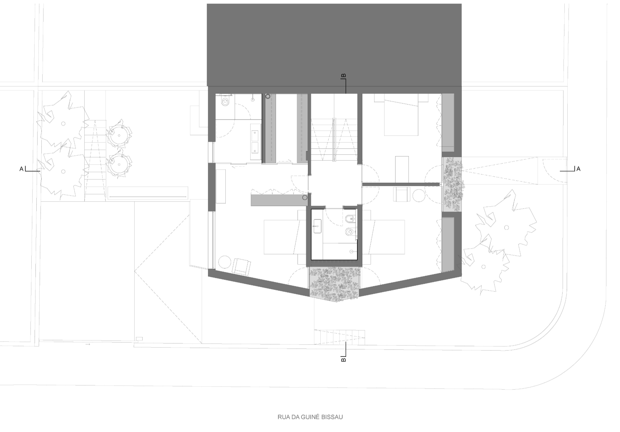
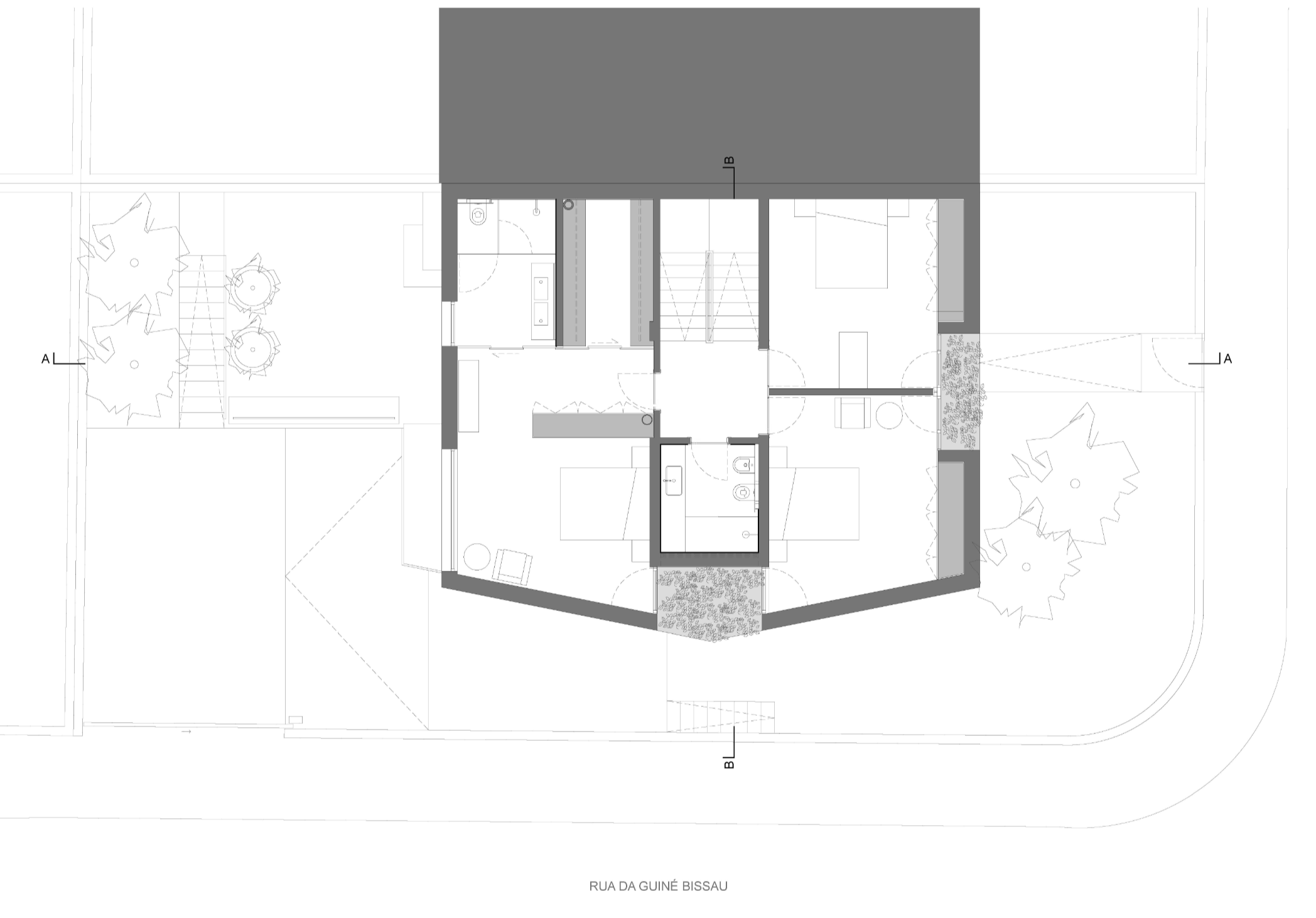
포르카-보우가, 아베이루에 있는 이 집은 3미터의 경사를 따라 3개 층과 다락으로 이루어져 있다.



상부 구조는 흰색 모노리스(단일 구조물)처럼 작동하며 내부에 목재가 드러나도록 일부가 파내어진 형태다. 경사진 대지에 반 쯤 묻힌 지하공간이 지상층의 매스를 받치고 있다. 대지 위에 떠 있는 듯한 이 집은 주변에 지어진 다른 집들과 연결되는 것 처럼 보인다. 내부는 1층에 공용 공간이 확장되어 동선이 최소화되면서 자연스럽게 공간이 흐르는 느낌을 준다. 서쪽으로는 테라스가 연장되어 외부 공간을 확장한다. 지하는 건축물 덩어리가 파내어진 것 같은 형태로, 상부 구조를 지지하면서 차량의 회전 공간을 확보했다.






건축가 알브이디엠 아르키텍투스 (RVDM Arquitectos)
위치 포르투갈, 아베이루, 후아 다 기네 비사우
연면적 367㎡
준공 2024
대표건축가 Ricardo Vieira de Melo
엔지니어링 DaVinci, Lda
사진작가 Ivo Tavares Studio
'Architecture Project > Single Family' 카테고리의 다른 글
| 더 프레임 하우스 / 레이어드 건축사사무소 (0) | 2025.02.17 |
|---|---|
| 작가의 생각을 들여다보는 공간 / 비루타 랩 (0) | 2025.02.17 |
| 날개를 펼친 집 / 스튜디오 브이에이알에이 (0) | 2025.02.12 |
| 언커먼 / 레이어드 건축사사무소 (0) | 2025.02.12 |
| 생각을 담는 별장 / 씨엘비 아키텍츠 (0) | 2025.02.07 |
마실와이드 | 등록번호 : 서울, 아03630 | 등록일자 : 2015년 03월 11일 | 마실와이드 | 발행ㆍ편집인 : 김명규 | 청소년보호책임자 : 최지희 | 발행소 : 서울시 마포구 월드컵로8길 45-8 1층 | 발행일자 : 매일



