
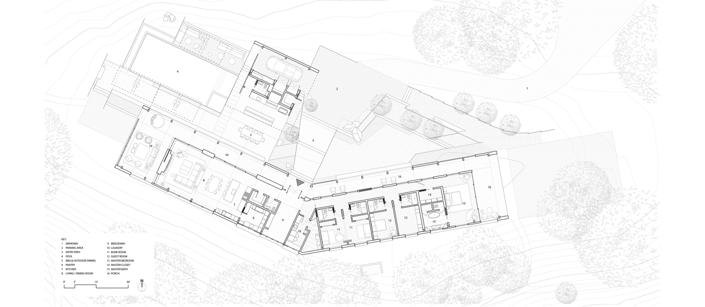
이 프로젝트는 구릉지 능선을 따라 자리 잡았으며, 넓은 현관이 실내와 실외의 경계를 흐릿하게 만든다. 루버는 필요한 그늘을 만들고 창문은 경이로운 풍경을 프레임처럼 담아낸다.



노출된 목재 빔이 특징인 거실은 넓고 웅장한 분위기를 연출한다. 주방은 대형 아일랜드 테이블을 중심에 배치하여 손님을 맞이하기에 적합하다. 침실은 주 동에서 돌출되어 지붕이 덮인 외부 복도로 연결된다. 이러한 배치는 침실의 프라이버시를 확보할 수 있고, 공간에서 평온함을 느낄 수 있다.


건축가 스튜디오 브이에이알에이(Studio VARA)
위치 미국, 캘리포니아, 힐즈버
용도 단독주택
대지면적 63,090㎡
건축면적 1,614ft2
디자인팀 Chris Roach, Maura Abernethy, Andy Drake, Nick Brown, Luis Tilano
인테리어 Studio VARA (Maura Abernethy, Zoe Hsu, Jacqueline Lytle, Yennifer Pedraza, Gail Avila)
구조엔지니어 Strandberg Engineering
기계엔지니어 Monterey Energy Group
조명디자인 Tucci Lighting
조경 Studio VARA
사진작가 Matthew Millman
'Architecture Project > Single Family' 카테고리의 다른 글
| 작가의 생각을 들여다보는 공간 / 비루타 랩 (0) | 2025.02.17 |
|---|---|
| 덜어낼수록 명확해지는 집 / 알브이디엠 아르키텍투스 (0) | 2025.02.17 |
| 언커먼 / 레이어드 건축사사무소 (0) | 2025.02.12 |
| 생각을 담는 별장 / 씨엘비 아키텍츠 (0) | 2025.02.07 |
| 바다의 수평선을 담은 집 / 페페 히네르 아르키텍토스 (0) | 2025.02.04 |
마실와이드 | 등록번호 : 서울, 아03630 | 등록일자 : 2015년 03월 11일 | 마실와이드 | 발행ㆍ편집인 : 김명규 | 청소년보호책임자 : 최지희 | 발행소 : 서울시 마포구 월드컵로8길 45-8 1층 | 발행일자 : 매일



