
이 주택은 하베아의 포티촐 만을 향해 남동쪽으로 내려가는 가파른 경사지에 있다. 북쪽으로는 포티촐 섬이, 남쪽으로는 푼타 델 캡 네그레 전망대로 둘러싸인 아름다운 특권적 위치다. 이 프로젝트는 부지의 기하학적 형태에 적응하고자 했다. 프로젝트의 볼륨감은 부지의 방향, 기하학, 경사에 맞춰서 다지안 되었다. 험난한 지형으로 인해 처음에는 단점으로 보였던 것이 결국 프로젝트의 건축적 형태를 만들었다.

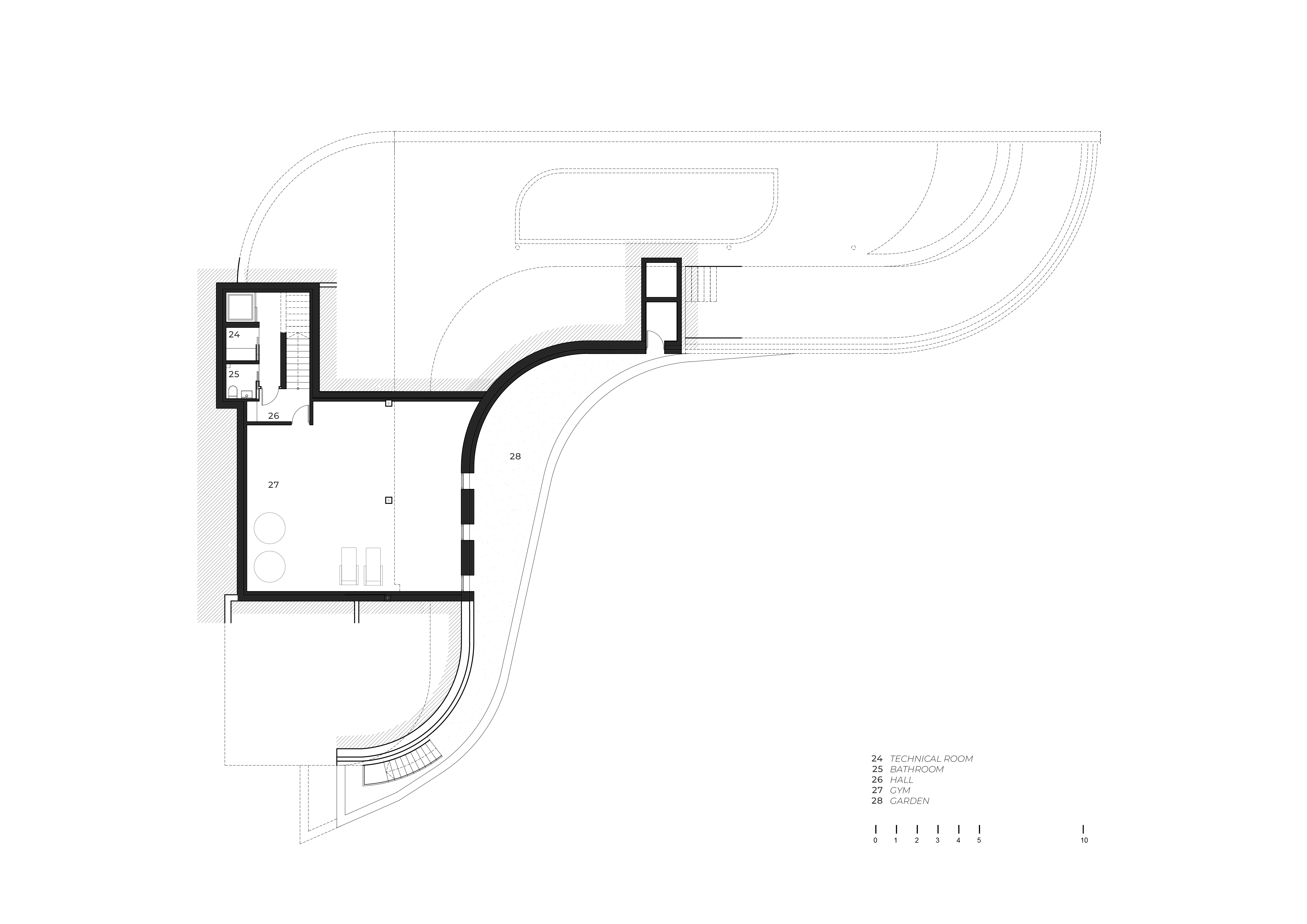
이 주택은 서로 미끄러지듯 겹쳐지는 구불구불한 플랫폼들의 집합으로 구상됐다. 남동쪽 외관은 수평성을 포함한 플랫폼들의 구불구불하고 자유로운 돌출로 이루어져 있으며, 특별한 풍경을 배경으로 무게 없이 떠있는 듯 보인다. 각 층에서 테라스는 실외와 실내 공간의 경계를 모호하게 하기 위해 입면을 유리로 둘러쌌다. 지상층에서는 플랫폼이 중앙 영역에서 넓어져 큰 테라스를 만들고, 끝부분에서는 주변 환경 조건에 맞춰 좁아진다.


테라스는 직접적인 환경과 분리되어 시각적으로 수평선과 하나인 듯 보이며, 구불구불한 수영장으로 그 경계가 모호해진다. 또한 테라스는 주택 건축의 연장선으로 구상된 지중해식 정원을 품고 있다. 사이프러스 나무들은 또 다른 건축 요소로 계획되어 플랫폼의 구멍을 통과하도록 배치됐으며, 주택의 수평성을 강조한다.

수평 요소들을 지지하는 구조는 지형을 고정하고 담는 건식 석벽과 가는 금속 기둥을 통해 해결됐으며, 이는 플랫폼의 수평성과 대비되는 이중성을 만들어낸다.

상층부에는 현관 홀과 각각의 테라스가 있는 3개의 침실이 있으며, 바다를 향한 전망대처럼 열려있다. 주택으로의 진입은 수직 동선 코어를 포함하는 이중 높이 공간 옆에서 이루어진다. 검은 마르키나 대리석으로 만든 조각적인 계단은 공간을 구획하며 집안의 다양한 공간에서 다양한 뷰를 제공하기도 한다.





건축가 페페 히네르 아르키텍토스 (Pepe Giner Arquitectos)
위치 스페인, 하베아
프로젝트면적 740㎡
대표건축가 Pepe Giner Ivars
인테리어 Sabrina Soria
사진작가 Diego Opazo
'Architecture Project > Single Family' 카테고리의 다른 글
| 언커먼 / 레이어드 건축사사무소 (0) | 2025.02.12 |
|---|---|
| 생각을 담는 별장 / 씨엘비 아키텍츠 (0) | 2025.02.07 |
| 나무와 함께 사는 집 / 스튜디오 비웰 (0) | 2025.02.03 |
| 가볍지만 강하게 연결되는 곳 / 3도르 콘셉츠 (0) | 2025.01.23 |
| 풍경을 담는 건축 / 톨로로 우가르테 (0) | 2025.01.21 |
마실와이드 | 등록번호 : 서울, 아03630 | 등록일자 : 2015년 03월 11일 | 마실와이드 | 발행ㆍ편집인 : 김명규 | 청소년보호책임자 : 최지희 | 발행소 : 서울시 마포구 월드컵로8길 45-8 1층 | 발행일자 : 매일



