
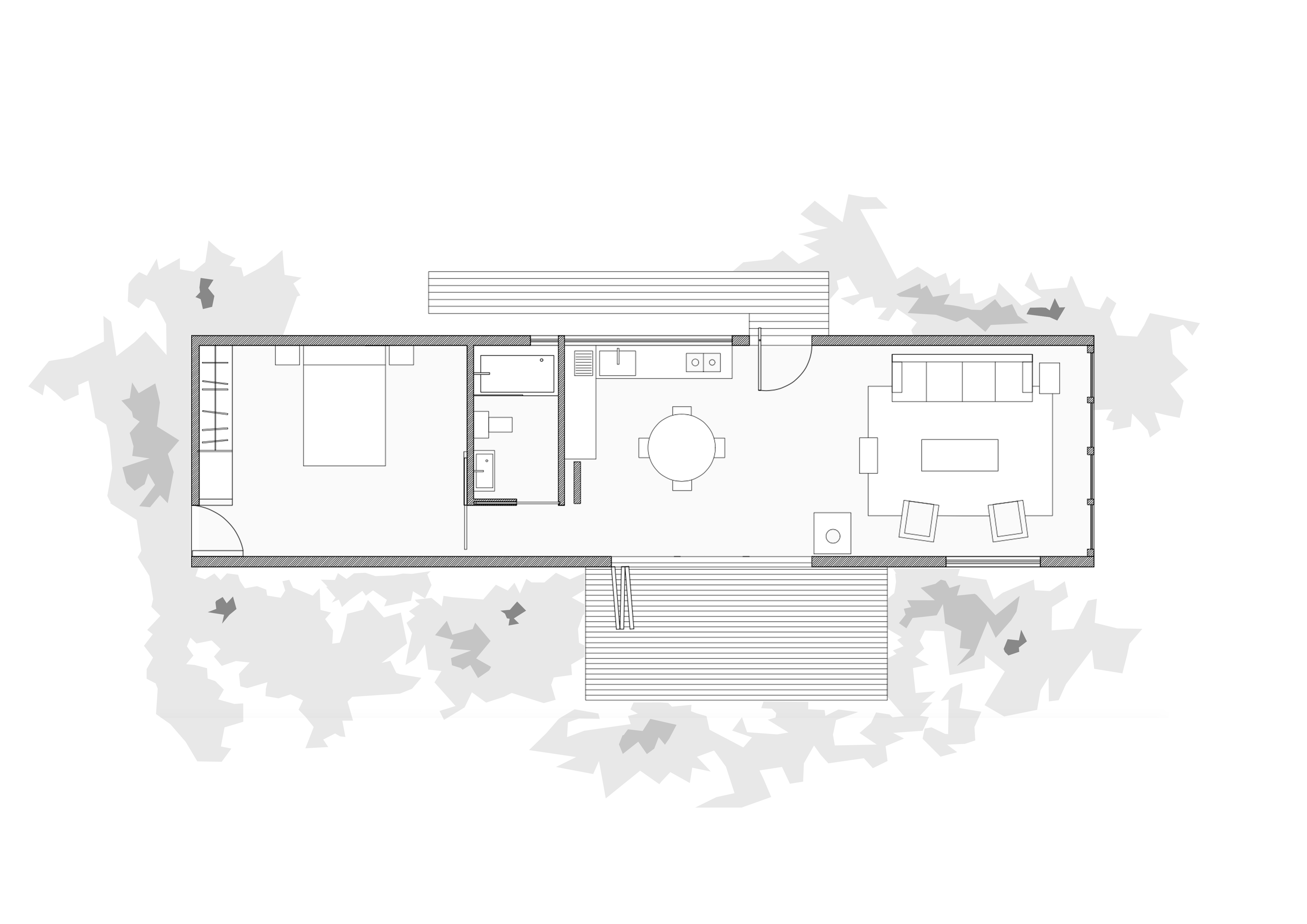
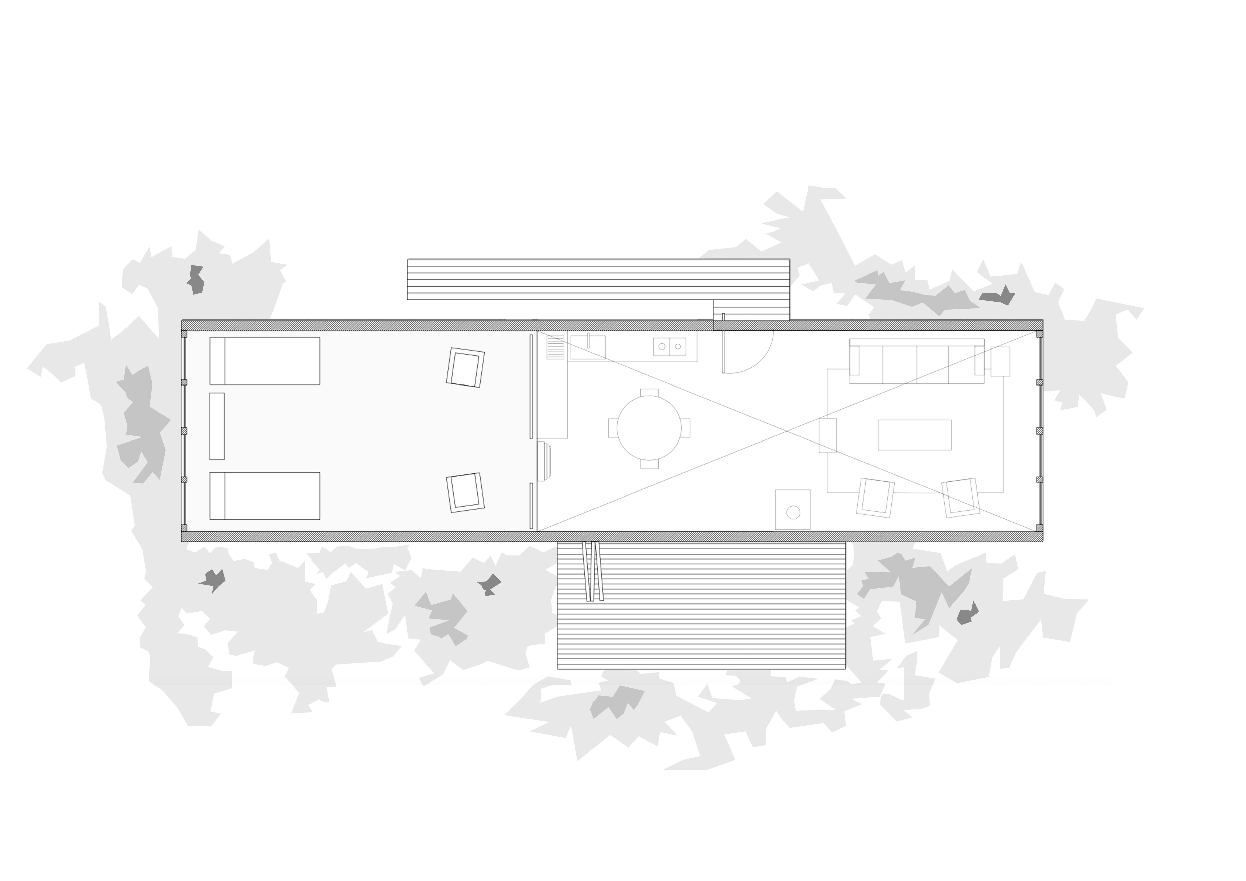
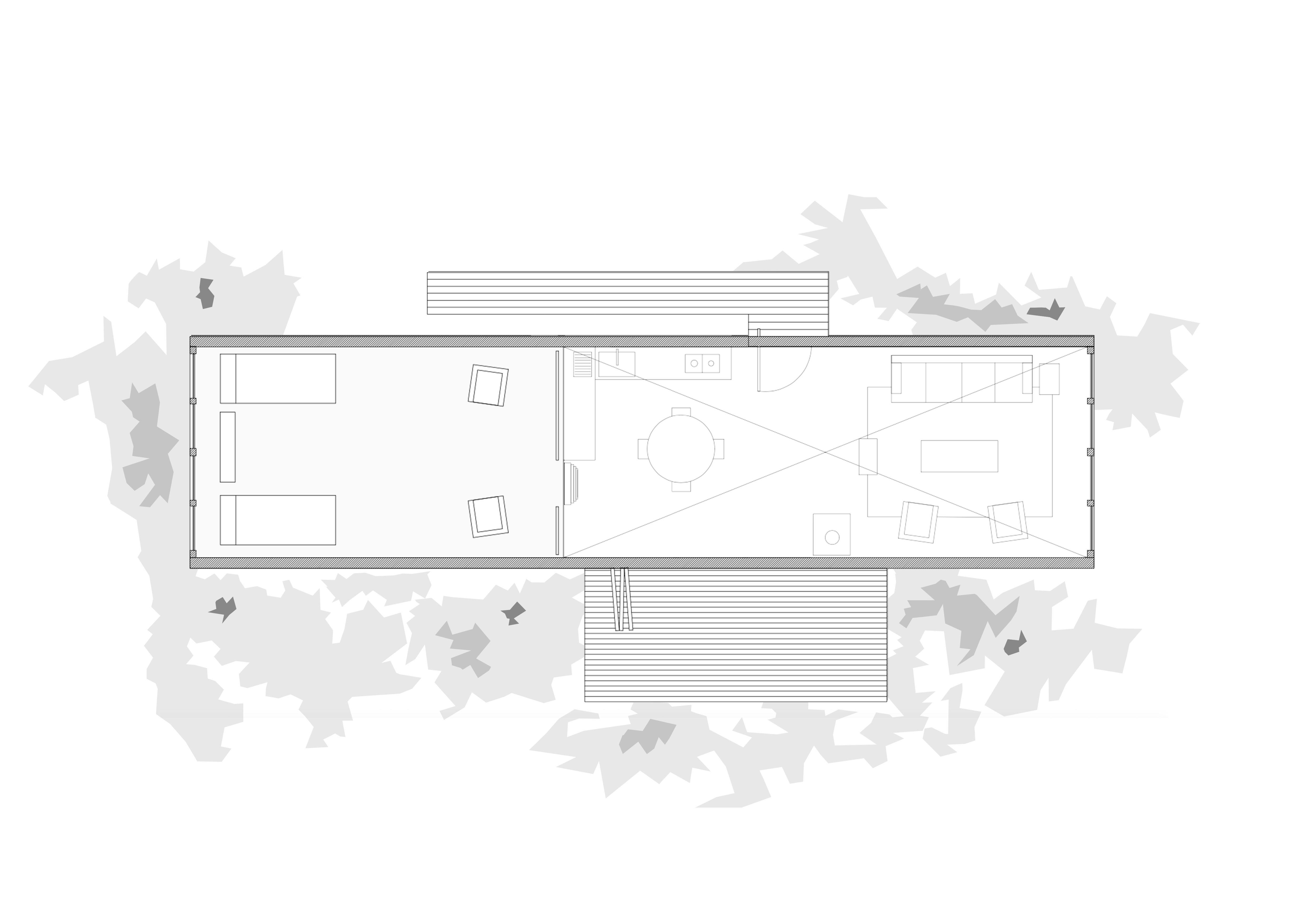
이 건축물은 맥락에서 나온 건축 작품이다. 이 땅을 처음 접했을 때 인상깊었던 부분이 있었다. 이 곳은 300년 이상 된 네 그루의 나무들로 이루어진 일종의 오아시스였다. 나머지 땅은 매우 비옥한 땅으로, 계절에 따라 민감하게 변화한다. 여름에는 사막과 비슷한 풍경이지만, 겨울과 봄에는 수 미터의 '잡초'라고 불리는 식물들이 땅에서 자라나며 집을 둘러싸고, 이 식물들이 집을 공중에 떠 있는 것처럼 보이게 만든다. 대지의 식물이 주는 불규칙하고 예상치 못한 변화가 또 다른 풍경을 만들어낸다.


우선 집을 땅 위로 올려놓아야 한다고 생각했다. 이렇게 하면 풀들이 집 아래에서 자라며 초록색 표면을 만들고, 이는 마치 식물로 둘러싸인 수중 호수처럼 집을 떠 있는 것 처럼 보이게 만든다. 또한, 처음의 관심을 끌었던 300년 된 나무들도 주목 했다. 이 나무들은 나머지 식물들과 달리 하나의 풍경을 만들고 있었다. 그래서 건축물을 이 나무들을 향해 배치하기로 했으며, 적당한 거리를 두어 두 개 층의 높이와 아치형 천장을 통해 숲을 100% 담아내어 내부 공간으로 끌어들였다.


결론적으로, 이 프로젝트는 단순한 거주 공간이 아니라 인간과 자연 사이의 상호작용에 대한 성찰을 유도하는 건축 실험이다. 풍경을 집 안으로 끌어들임으로써, 끊임없는 대화를 유도한다. 공간은 변화하는 풍경을 정의하는 프레임이 되며, 창문은 자연 환경을 집중하고 확대하는 렌즈 역할을 한다. 이 것들은 자신이 거주하는 장소에 대한 인식을 개선하는 역할을 한다.


사진작가 Mauricio Duarte Arratia
'Architecture Project > Single Family' 카테고리의 다른 글
| 나무와 함께 사는 집 / 스튜디오 비웰 (0) | 2025.02.03 |
|---|---|
| 가볍지만 강하게 연결되는 곳 / 3도르 콘셉츠 (0) | 2025.01.23 |
| 달이 만드는 파노라마 / 파비안 탄 아키텍트 (0) | 2025.01.13 |
| 감출수록 안락함이 만들어지는 곳 / 후지와라무로 아키텍츠 (0) | 2025.01.09 |
| 안에서 펼쳐지는 바깥에 머물며 / 슈와르츠 앤드 아키텍처 (0) | 2025.01.07 |
마실와이드 | 등록번호 : 서울, 아03630 | 등록일자 : 2015년 03월 11일 | 마실와이드 | 발행ㆍ편집인 : 김명규 | 청소년보호책임자 : 최지희 | 발행소 : 서울시 마포구 월드컵로8길 45-8 1층 | 발행일자 : 매일




