
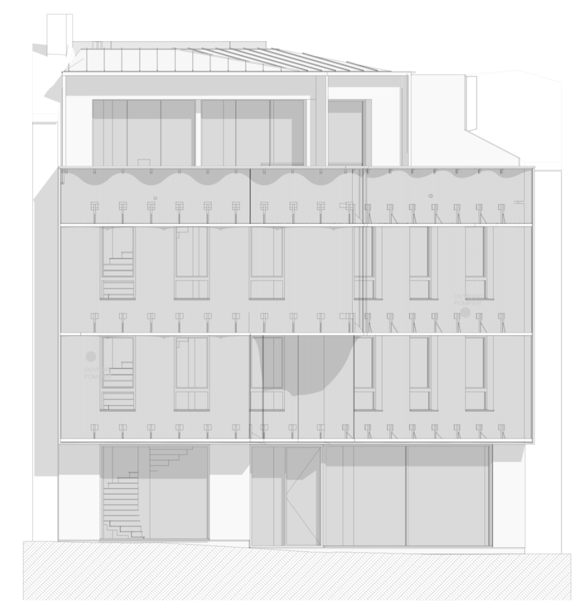
This project involves the heavy restructuring of a corner building located at the junction of rue Thiers and rue Carnot, in the heart of the historic center of the city of Vannes. The existing building, R+2 plus attic, was a bank that we transformed into offices for Groupe Giboire. The aim is to set up a new commercial and real estate development agency. The location of the project is remarkable, close to the port, it is backed by the city walls dating from the 4th century. The original structure of the building has been preserved, except for the attic which has been given a new style. The first floor "catches up" with an alignment on the street, large openings are created to allow the reading of the ramparts located in the court. It is clad with a stainless steel cladding that is also found on the attic. The original configuration in angle (providing a real response to the articulation of the two streets), and the complexity of the structure of the existing facade, the bias was to choose the sobriety and finesse of the materiality. For this reason, the mineral facade was highlighted by a second curved glass skin located at the two intermediate levels. The combination of glass and stainless steel envelops the building and delicately slides it into the historic heart of the city. The redesigned facade plays with the reflections of the city as well as those of the sky, which vary according to the time of day. The glass panels, which make up this pleated structure, are supported by stainless steel rails. An anodized aluminum frame allows the natural ventilation of this double skin. The upper part of this frame, which constitutes the acroterion, is made up of removable panels which make its maintenance possible. The interior design was guided by the idea of transparency and luminosity. The attic of the building hosts a large meeting room that gives access to a terrace with a view on the city and the port.

이 프로젝트는 반(Vannes) 시의 역사적 중심지에 있는 티에르(rue Thiers)와 까르노(rue Carnot)의 교차점에 위치한 모퉁이 건물의 대대적인 구조적인 변화를 만들어 내는 것이다. 은행으로 사용되던 기존 R+2 plus attic 건물은 Groupe Giboire의 사무실로 탈바꿈했다. 이번 프로젝트의 목적은 새로운 상업 시설 및 부동산 개발 기관을 짓는 것이었다. 프로젝트의 위치는 항구와 가깝고 4세기에 지어진 성벽이 있는 놀라운 곳이었다. 새로운 스타일이 가미된 다락을 제외하고 건물은 기존 구조 그대로 보존되어 있다. 1층은 거리를 따라 일직선으로 있으면서 법원의 성벽을 읽어 나갈 수 있도록 커다란 창이 나있다. 또한, 다락방에서도 볼 수 있는 스테인리스 스틸 클래딩으로 덮여 있다. 앵글의 기존 구성과 기존 정면 구조의 복잡함 그리고 바이어스는 물질성의 절제와 기교를 선택해야 했다. 이러한 이유에서 외관은 두 개의 중간 층에 위치한 두번째 곡선의 유리 스킨을 이용해 강조하게 되었다. 유리와 스테인리스 스틸로 감싸져 있는 건물은 도시의 역사적인 중심부로 섬세하게 들어와 있다. 재설계된 파사드는 하루 시간대에 따라 달라지는 도시와 하늘 모습과도 잘 어울린다. 주름진 구조를 이루는 유리 패널은 스테인리스 스틸 레일로 지지하도록 되어있다. 양극산화 처리된 알루미늄 프레임은 자연스럽게 이중 표면의 환기를 가능하도록 해준다. 프레임의 상부는 유지 보수가 가능하도록 만들어진 패널로 되어있다. 내부 인테리어 디자인은 투명도와 광도라는 아이디어에 근거하여 이루어졌다. 건물의 다락방에는 대형 회의실이 마련되어 있으며 회의실의 테라스에서는 도시와 항구의 전경이 한 눈에 들어온다.























Architects a/LTA le trionnaire - le chapelain
Location Vannes, France
Project architect Fanny Larhantec, Kevin Keenan
Completion 2021
Consultants LEAD INGENIERIE, THALEM, ARES CONCEPT, SOCOTEC
Client Groupe Giboire
Photographer Stephane Chalmeau
'Architecture Project > Office' 카테고리의 다른 글
| PROGETTO ITALIA (0) | 2022.09.14 |
|---|---|
| WAVE ONE (0) | 2022.09.13 |
| PRIVATE OFFICE (0) | 2022.09.06 |
| WELL LIVING LAB (0) | 2022.09.05 |
| BOŘISLAVKA CENTER (0) | 2022.08.03 |
마실와이드 | 등록번호 : 서울, 아03630 | 등록일자 : 2015년 03월 11일 | 마실와이드 | 발행ㆍ편집인 : 김명규 | 청소년보호책임자 : 최지희 | 발행소 : 서울시 마포구 월드컵로8길 45-8 1층 | 발행일자 : 매일



