
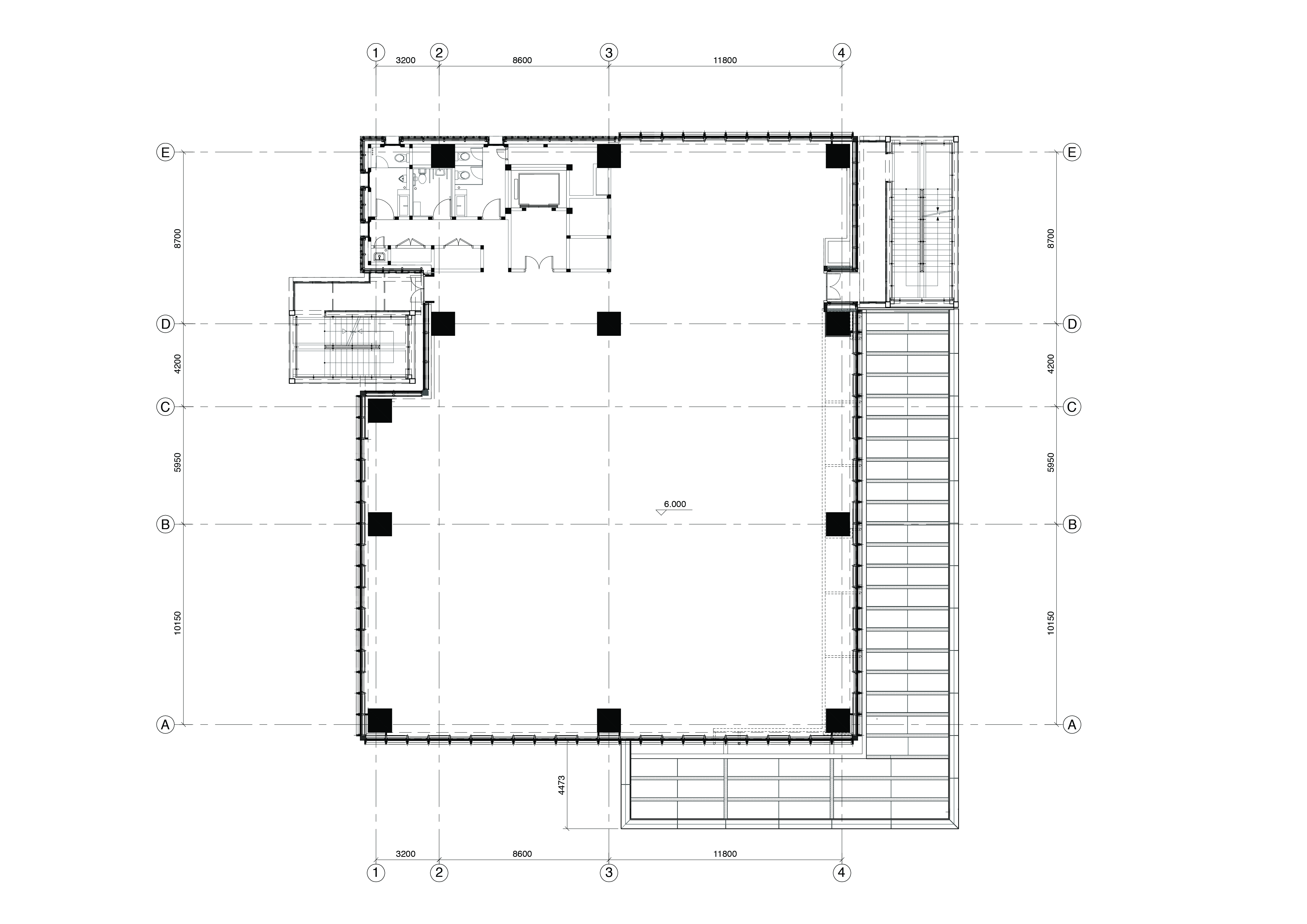
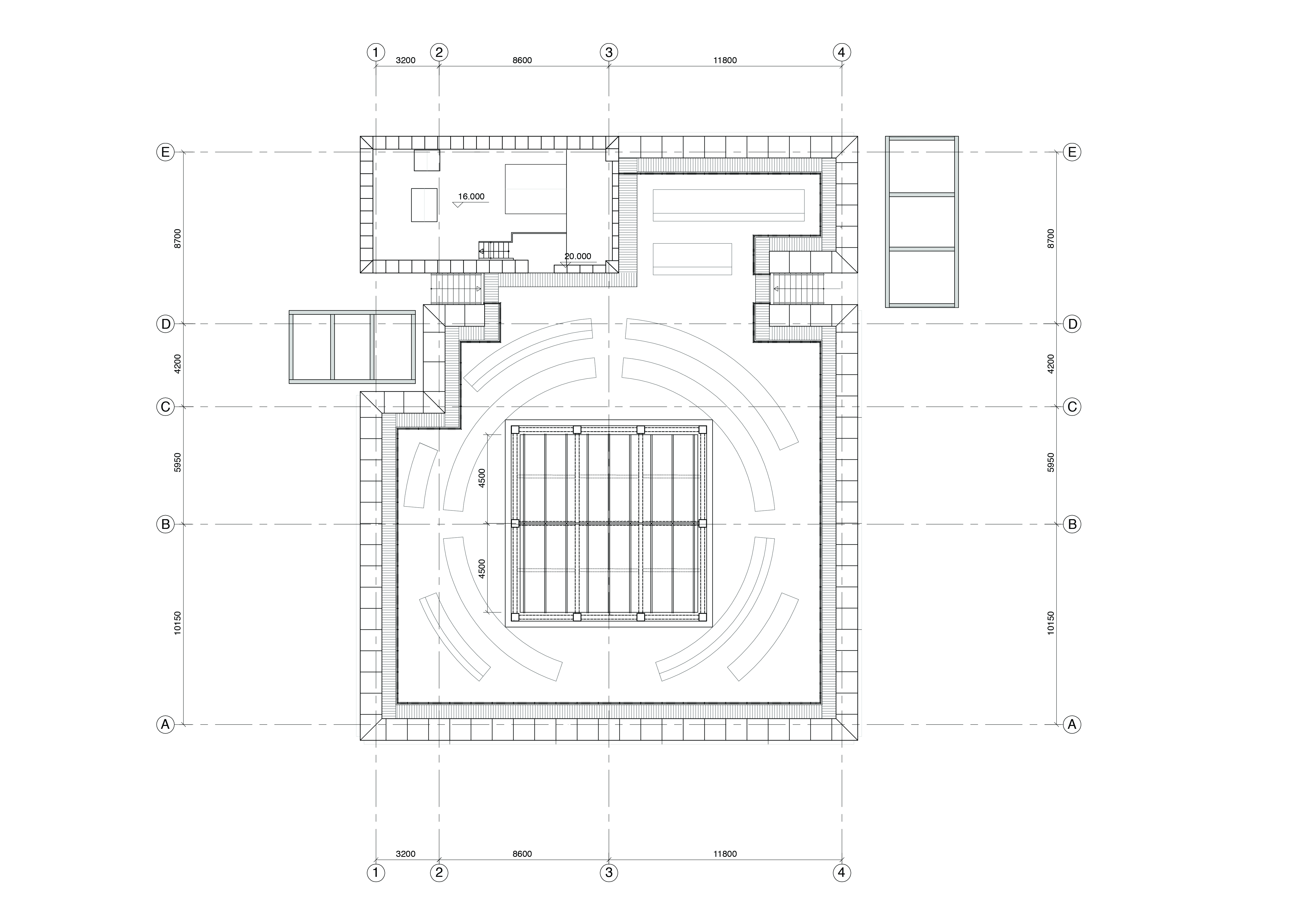
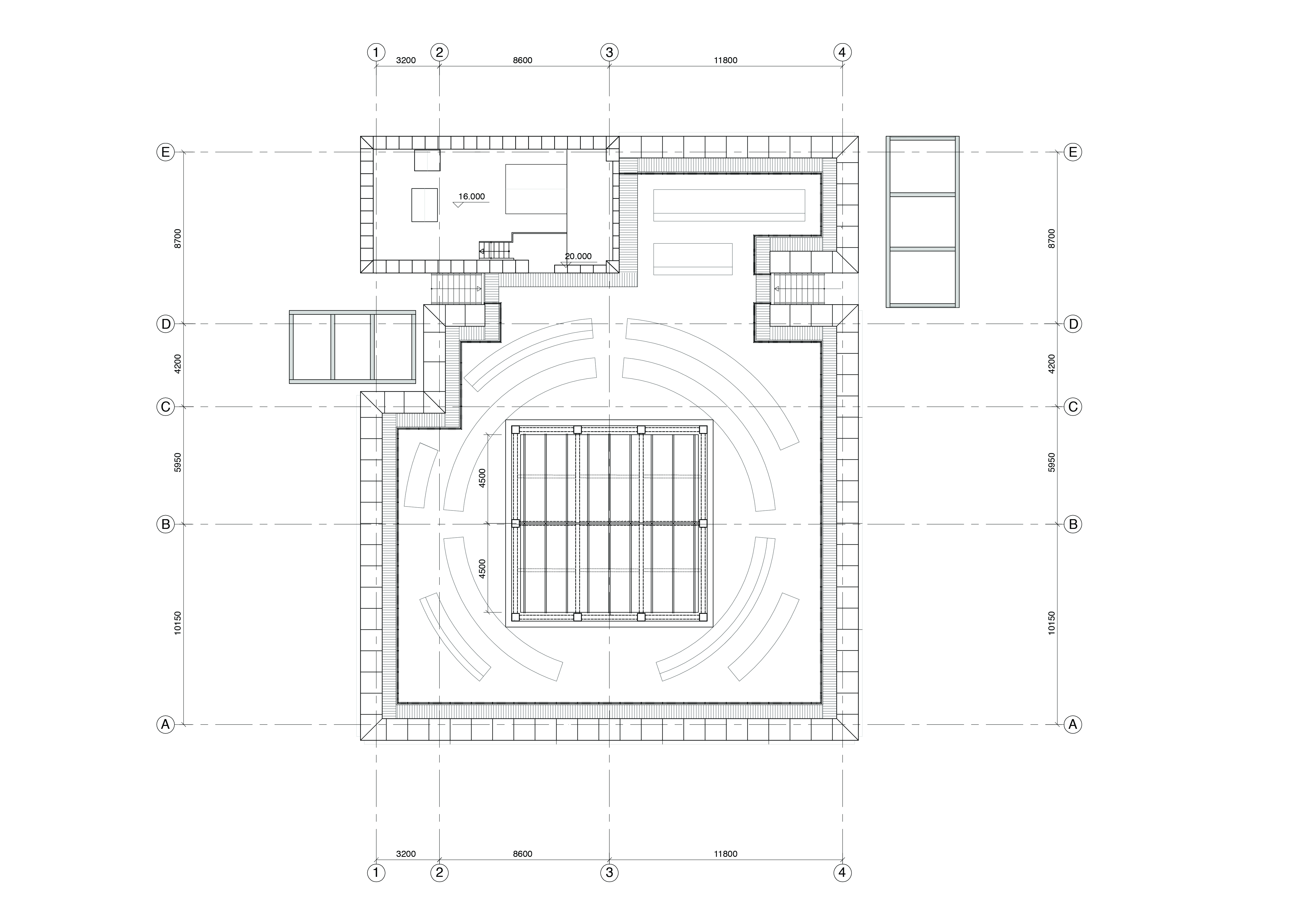
Superimpose designs adaptable Lab for human-centered research.
The Well Living Lab in Beijing is a Sino-American collaboration between Delos, Mayo Clinic and Sino Ocean Group, bringing together building science, behavioural science and health science. The Laboratory will provide controlled and simulated indoor environments that mimic indoor office environments and residential living spaces to conduct innovative human-centered research. The goal is to improve the impact that indoor environments have on human health, wellness, comfort, and performance. Superimpose’s responsibility was creating a WELL and LEED certified building and to use low-tech solutions to create a flexible and optimised environment to facilitate and conduct research.

인간 중심 연구를 위한 두름성 있는 랩을 디자인하다.
베이징의 Well Living Lab은 Delos, Mayo Clinic과 Sino Ocean Group의 중미 합작으로 건축 과학, 행동 과학 그리고 건강 과학을 모두 결합한 것이다. 연구소는 인간 중심의 혁신적인 연구를 위해 실내 사무실 환경과 주거 생활 공간을 제어할 수 있는 시뮬레이션된 실내 환경을 제공해준다. 이 프로젝트의 목표는 실내 환경이 인간의 건강과 편안함과 수행능력에 미치는 영향을 향상시켜주는 것이다. 건축가는 WELL & LEED 인증 건물을 만들고 저차원적 기술 솔루션을 사용하여 연구를 촉진함과 동시해 수행할 수 있는 유연하면서도 최적화된 환경을 만들어 내고자 했다.















Architects Superimpose Architecture
Location Shunyi, Beijing, China
Program Laboratory, Office
Site area 26,123㎡
Building area 2,400㎡
Completed 2021
Design team Carolyn Leung, Ben de Lange, Ruben Bergambagt, Xuan Wang, Huimin Xie, Pablo Gonzalez Gonzalez, Xiaoyu Xu, Casper Kraai
Certification LEED BD+C Core and Shell Gold, WELL HSR, WELL Platinum, WELL Performance Verification
LDI BIAD (Beijing Institute of Architectural Design)
Client Sino Ocean Group
Photographer CreatAR, Valentín Račko
'Architecture Project > Office' 카테고리의 다른 글
| AGENCY GIBOIRE MORBIHAN OFFICES (0) | 2022.09.07 |
|---|---|
| PRIVATE OFFICE (0) | 2022.09.06 |
| BOŘISLAVKA CENTER (0) | 2022.08.03 |
| BEEAH HEADQUARTERS (0) | 2022.08.01 |
| IN-CLOUD ROOF (0) | 2022.07.05 |
마실와이드 | 등록번호 : 서울, 아03630 | 등록일자 : 2015년 03월 11일 | 마실와이드 | 발행ㆍ편집인 : 김명규 | 청소년보호책임자 : 최지희 | 발행소 : 서울시 마포구 월드컵로8길 45-8 1층 | 발행일자 : 매일



