
Suspended between the clouds, but firmly rooted in their surroundings, the executive offices designed by Rome-based architectural firm Alvisi Kirimoto occupy the entire 32nd floor of a newly built skyscraper in the lively ex-industrial district of West Loop, Chicago. The project, designed to accommodate the client's headquarters and showcase part of his art collection, fills an area of 2,600㎡, within a 224m high building located in the heart of the city, on the bank of the homonymous river.
The main entrance to the building is located in its structural core, which encompasses all services and facilities. Two opposing rooms are immediately visible upon entry: on one side, the reception area and on the other, the playroom, both characterized by a large window that connects the visitor with the two faces of Chicago: the urban and the territorial. From a planimetric point of view, the South side hosts the most representative and aggregative functions such as the reception area, the meeting room, the Winter Garden, the exhibition routes and the restaurant area, while the North-facing side houses the private offices and some common areas.
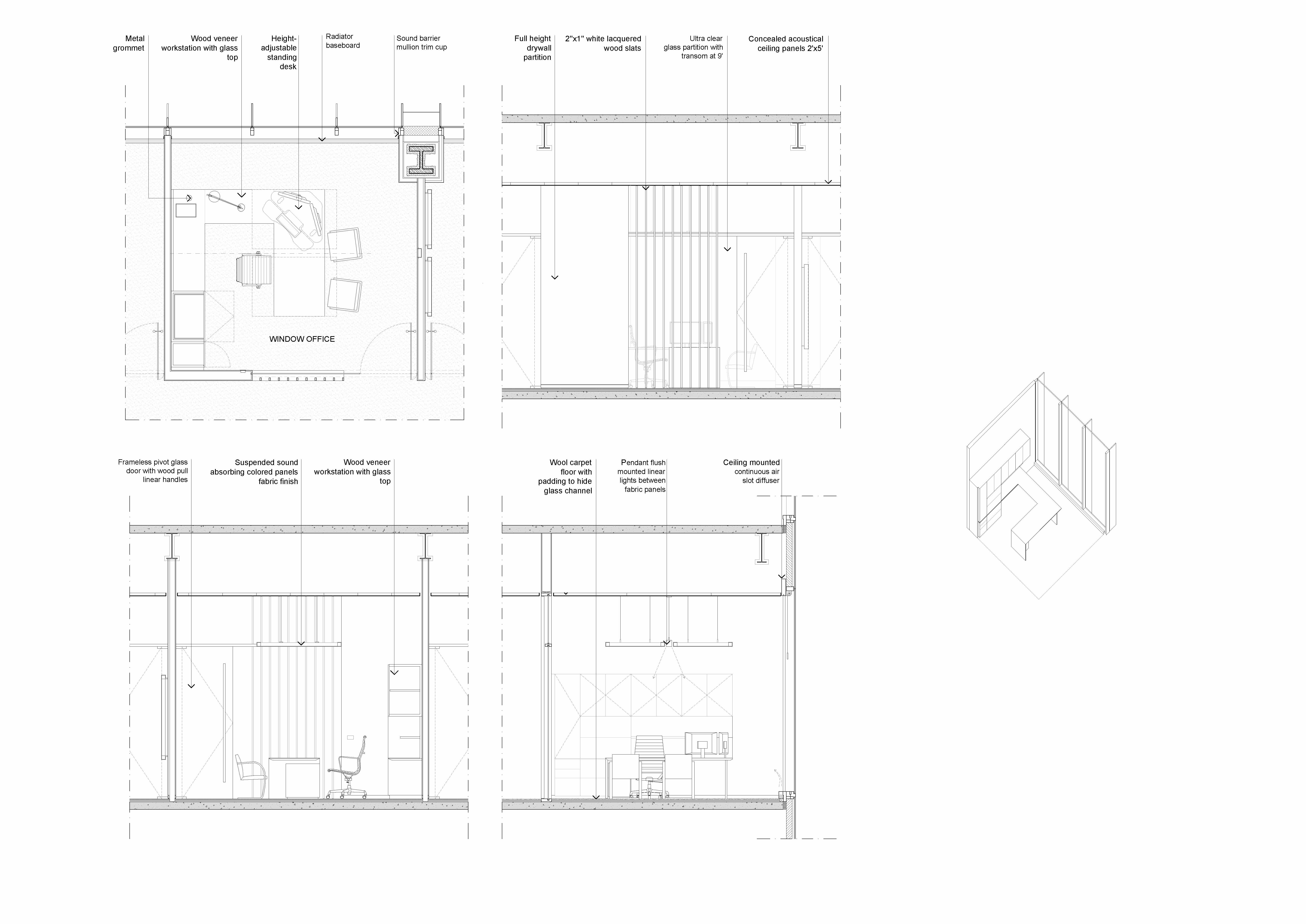
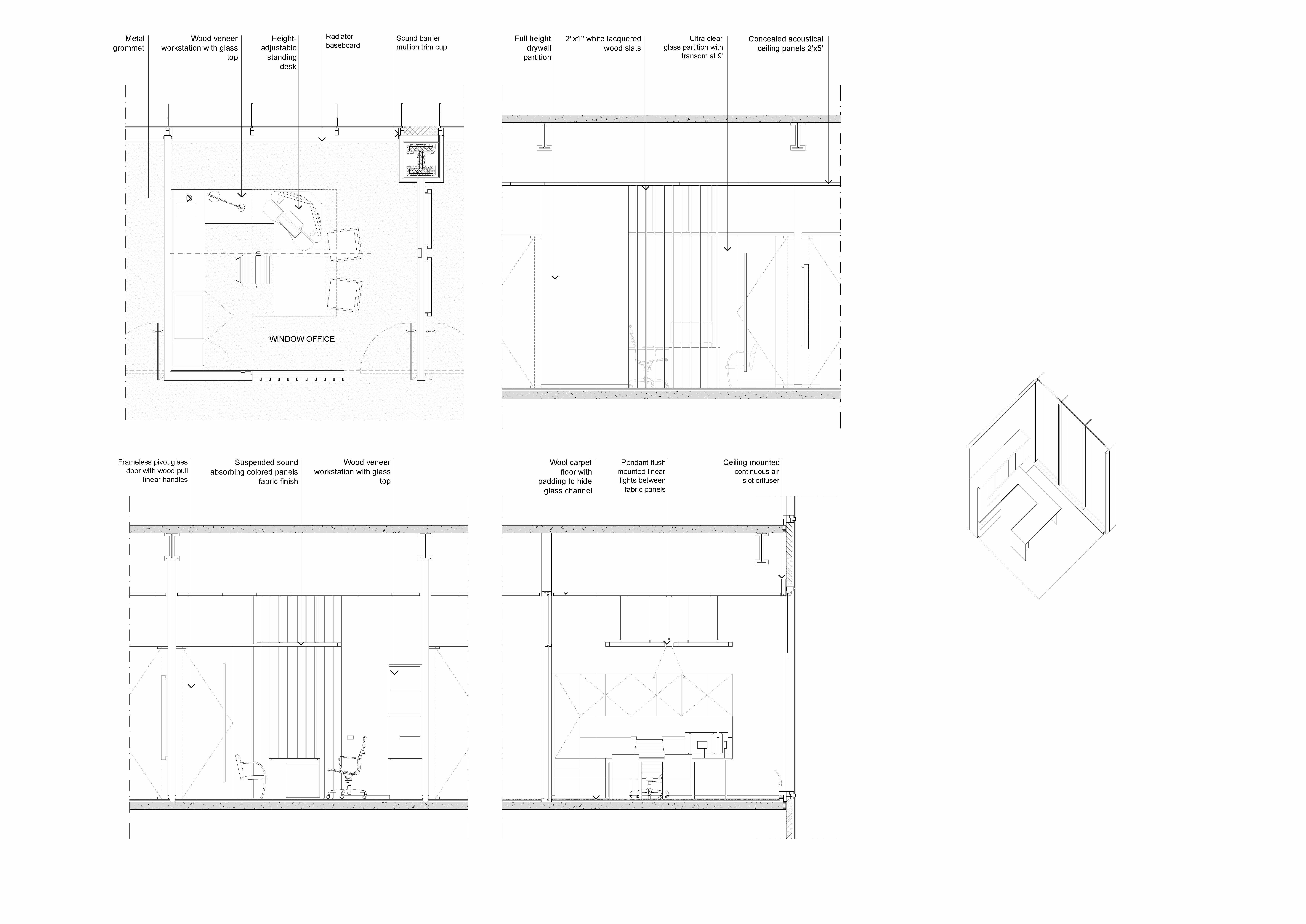
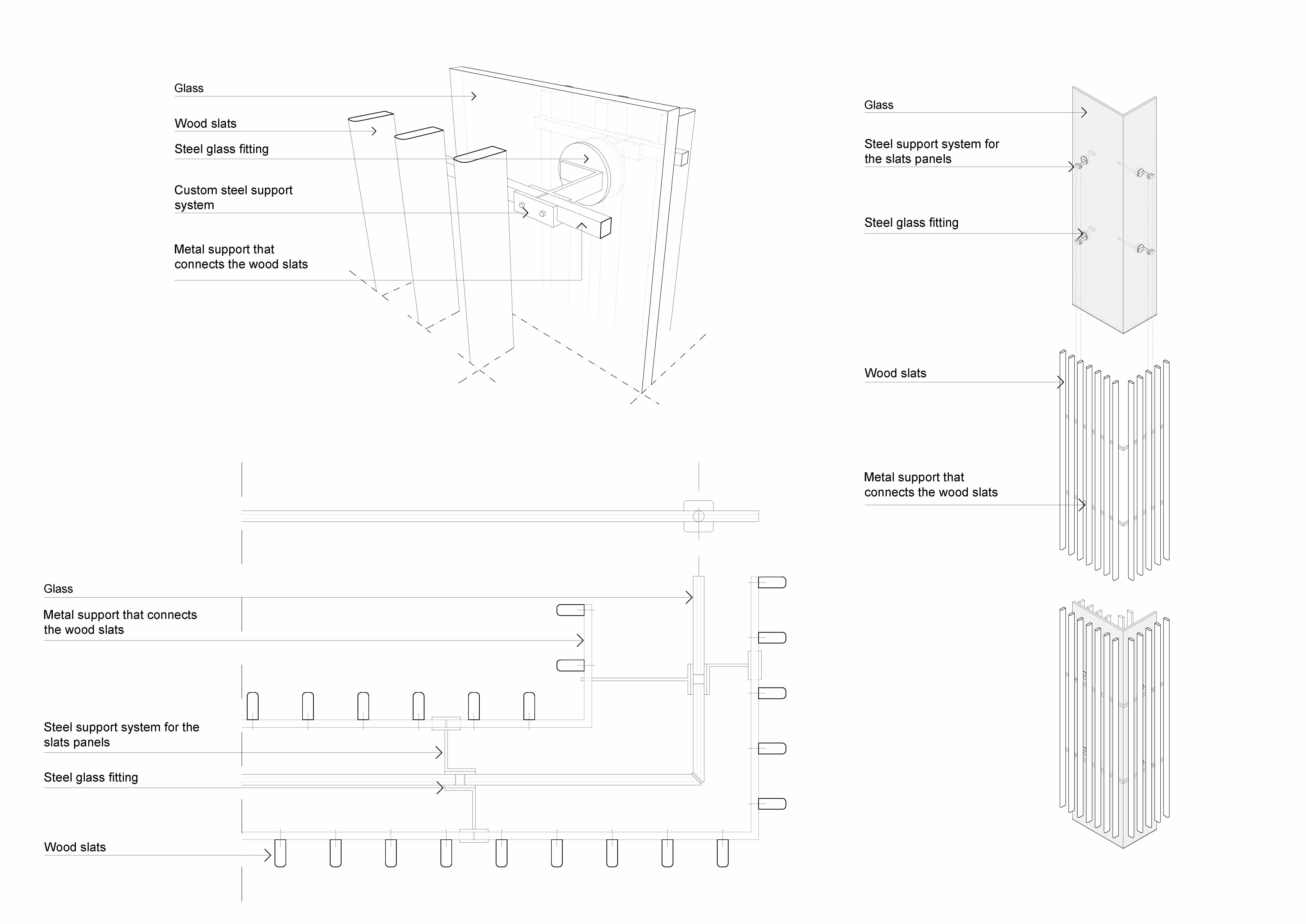
The interiors feature floor-to-ceiling natural wood walls, glass partitions and suspended panels, which, depending on the combinations, outline the different work areas. Great flexibility and transparency of the elements allows visitors and employees to enjoy breathtaking views even in the most private areas, which are delimited by opaque surfaces. Wooden walls, which are dematerialized in vertical slats to calibrate the degree of privacy and brightness, characterize the main lines of the project. These constitute the leitmotiv that accompanies the visitor through to the discovery of the Winter Garden, a multi-functional double-height environment that represents the beating heart of the project.
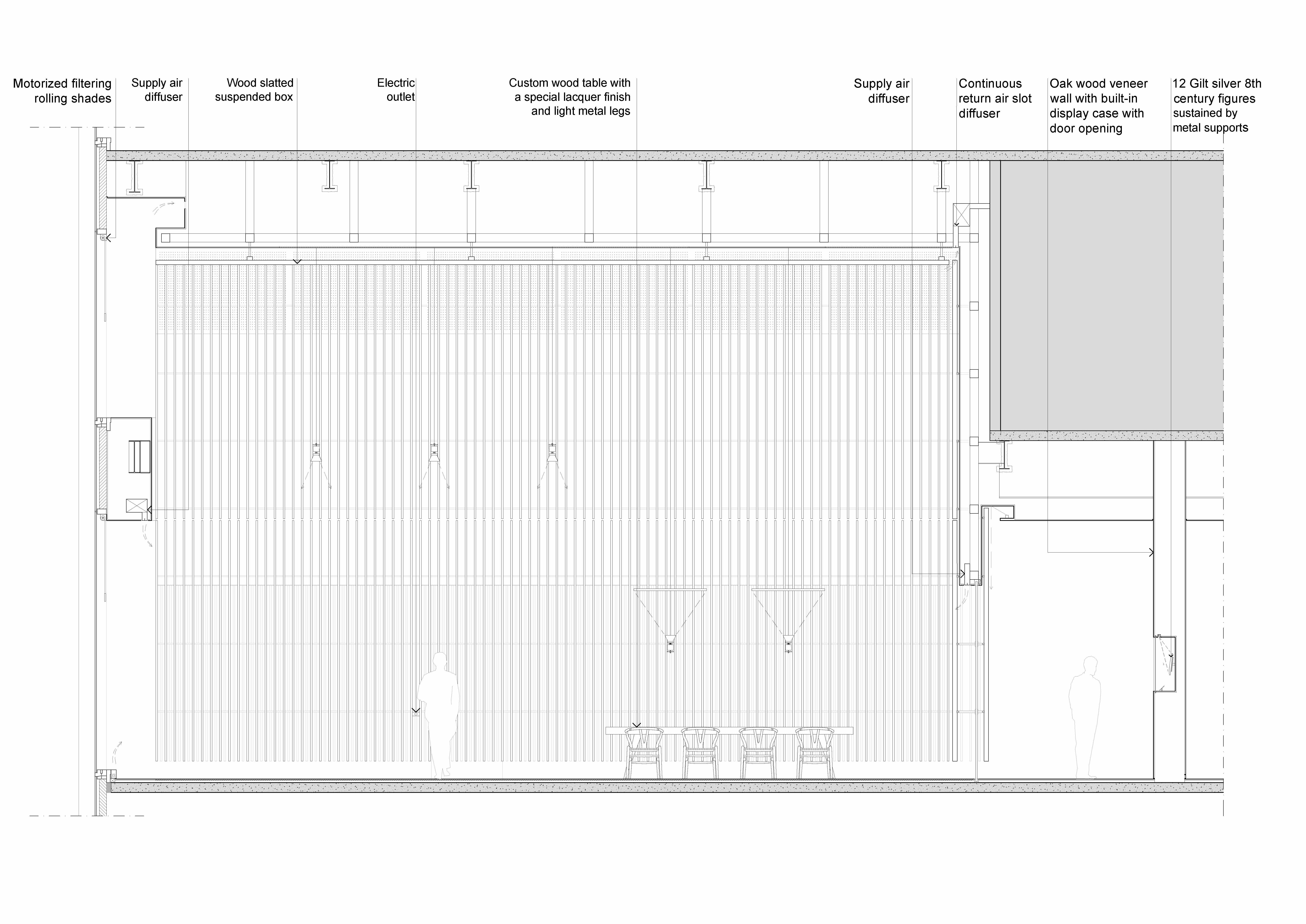
Depending on the point of view, the skin of the Winter Garden, composed of two rows of suspended wooden slats that do not align with each other, frame a central transparent glass partition, which, dissolves or becomes opaque, generating multiple perspectives and igniting an interesting game of lights and shadows. Similar to a light box, the environment allows the light to be directed through a system of double darkening and filtering curtains, and to diffuse the adjacent spaces with the wooden slats.
All aspects of the project have been carefully tailored and harmonized, from custom-designed furniture, such as the workstations and tables of the cafeteria, to the arrangement and choice of gradation of the lights. The use of color is weighted: at times it gives serenity, at others it draws space or defines a function. Colors range from the bright orange of the playroom ceiling and the suspended panels in the offices, to the intense red of the panels in contrast with the gray walls of the restaurant area, from the soothing rust of Japanese wallpaper at the entrance, to the regenerating white of the open workstation space. Last but not least, art plays a definitive role: the offices host a holistic exhibition path of over 1,000㎡ dedicated to some of the client's collection pieces, in a succession of spaces that interpenetrate, overlapping with the city and generating unexpected and unconventional points of view.

프라이베이트 오피스는 시카고 웨스트 루프에 있는 옛 공업지구에 새로 지은 초고층 빌딩 32층 전체층을 말한다. 의뢰인의 요청에 따라 사무실 공간을 조성하며, 그의 미술품 수집품 일부를 전시하기 위한 공간이다. 32층의 프라이베이트 오피스로 진입하는 부분은 해당 층의 가장 중심부에 있다. 하여 건축가는 두 개의 대조되는 실들을 입장하는 부분에 배치하여, 한 쪽에는 리셉션 영역 그리고 다른 쪽에는 플레이 공간을 만들었다. 시카고의 업무 공간에서 만나는 이 두 얼굴의 공간은 방문자들을 거대한 유리벽을 따라 이어진다. 사무실 남쪽으로는 회의실, 윈터 가든, 전시실, 식당가 등 집합적인 기능들이 곳곳에 배치되어 있으며, 북쪽은 개인 사무실과 일부 공용 업무 시설 등이 배치되어 있다. 바닥에서 천장까지 이어진 자연 목재 벽, 유리 파티션은 여러 업무 영역들을 구분하고, 투명한 유리벽은 방문자와 직원들이 개인적인 공간에서 시카고의 숨막히는 전경을 즐길 수 만든다. 목재 패널로 이어지는 곳에는 비현실적인 공간인 윈터 가든이 나타나며 공간의 전환을 일으킨다.
관점에 따라, 서로 정렬되지 않고 천장에 매달린 두 개 열의 목재 패널은 윈터 가든으로 빛과 그림자의 흥미로운 연출로 독특한 분위기를 만들어 낸다. 공간의 모든 부분은 세심하게 조절되어 조화를 이루고 있다. 작업책상, 식당의 식탁은 모두 맞춤 제작된 가구이며, 조명의 배치와 조도까지 미세하게 조절되어 있다. 이러한 빛과 가구로 정밀하게 조성된 내부의 색감은 때로는 고요함을, 때로는 그 자체의 기능을 정의한다. 플레이룸의 천장과 사무실 천장에 매달린 패널은 밝은 오렌지색이며, 식당가의 회색 벽은 강렬한 붉은색 벽과 대비된다. 입구 부분의 일본 풍의 벽지와 탁 트인 업무 공간의 백색까지 다양한 색감이 전체적으로 조화를 이루고 있다. 마지막으로, 공간 곳곳에 자리잡은 예술품은 공간의 결정적인 분위기 연출을 책임지고 있다. 사무 공간에서 자연스럽게 이어지는 동선을 따라 전시 공간에 들어서면 도시의 전경과 중첩되면서 예상하지 못한 곳이 나타나게 된다.
























Architects Alvisi Kirimoto
Location Chicago, Illinois, USA
Program office
Gross floor area 2,570㎡
Completion 2018
Project architect Alvisi Kirimoto / CannonDesign
Design team (Alvisi Kirimoto) Massimo Alvisi, Junko Kirimoto, Carolina Ossandon Avetikian, Alessio Montanari, Donato Labella, Silvia Rinalduzzi / (CannonDesign) Mark Hirons, Meg Osman, David Pugh, Angela Furman, Taofik Lasisi
Structural, MEP, lighting engineer CannonDesign
Interior design Alvisi Kirimoto
Construction Executive Construction Inc.
Project Management ConopCo Project Management
Photographer Nic Lehoux
May 2022 : vol. 492
Contents : RECORDS THE STORY OF THE CITY THAT PUBLISHERS DREAMED OF, RELEASED 꿈꾸던 도시가 들려주는 이야기, <위대한 계약: 파주, 책, 도시> 개봉 : NEWS / COMPETITION / BOOKS : SK..
anc.masilwide.com
'Architecture Project > Office' 카테고리의 다른 글
| WAVE ONE (0) | 2022.09.13 |
|---|---|
| AGENCY GIBOIRE MORBIHAN OFFICES (0) | 2022.09.07 |
| WELL LIVING LAB (0) | 2022.09.05 |
| BOŘISLAVKA CENTER (0) | 2022.08.03 |
| BEEAH HEADQUARTERS (0) | 2022.08.01 |
마실와이드 | 등록번호 : 서울, 아03630 | 등록일자 : 2015년 03월 11일 | 마실와이드 | 발행ㆍ편집인 : 김명규 | 청소년보호책임자 : 최지희 | 발행소 : 서울시 마포구 월드컵로8길 45-8 1층 | 발행일자 : 매일



