
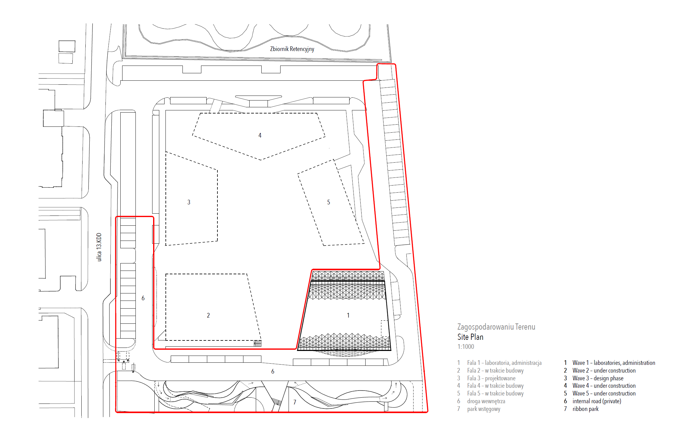
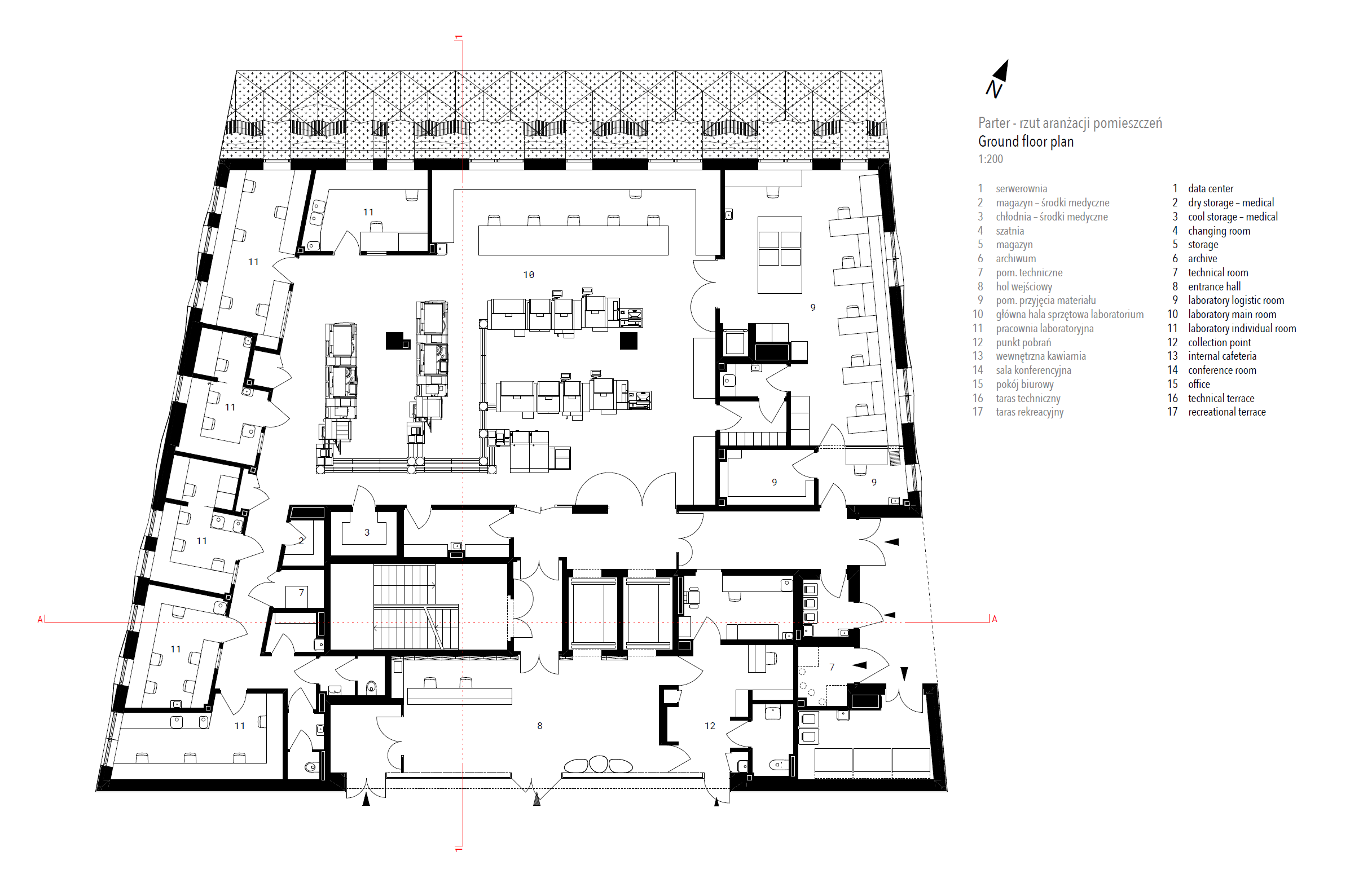
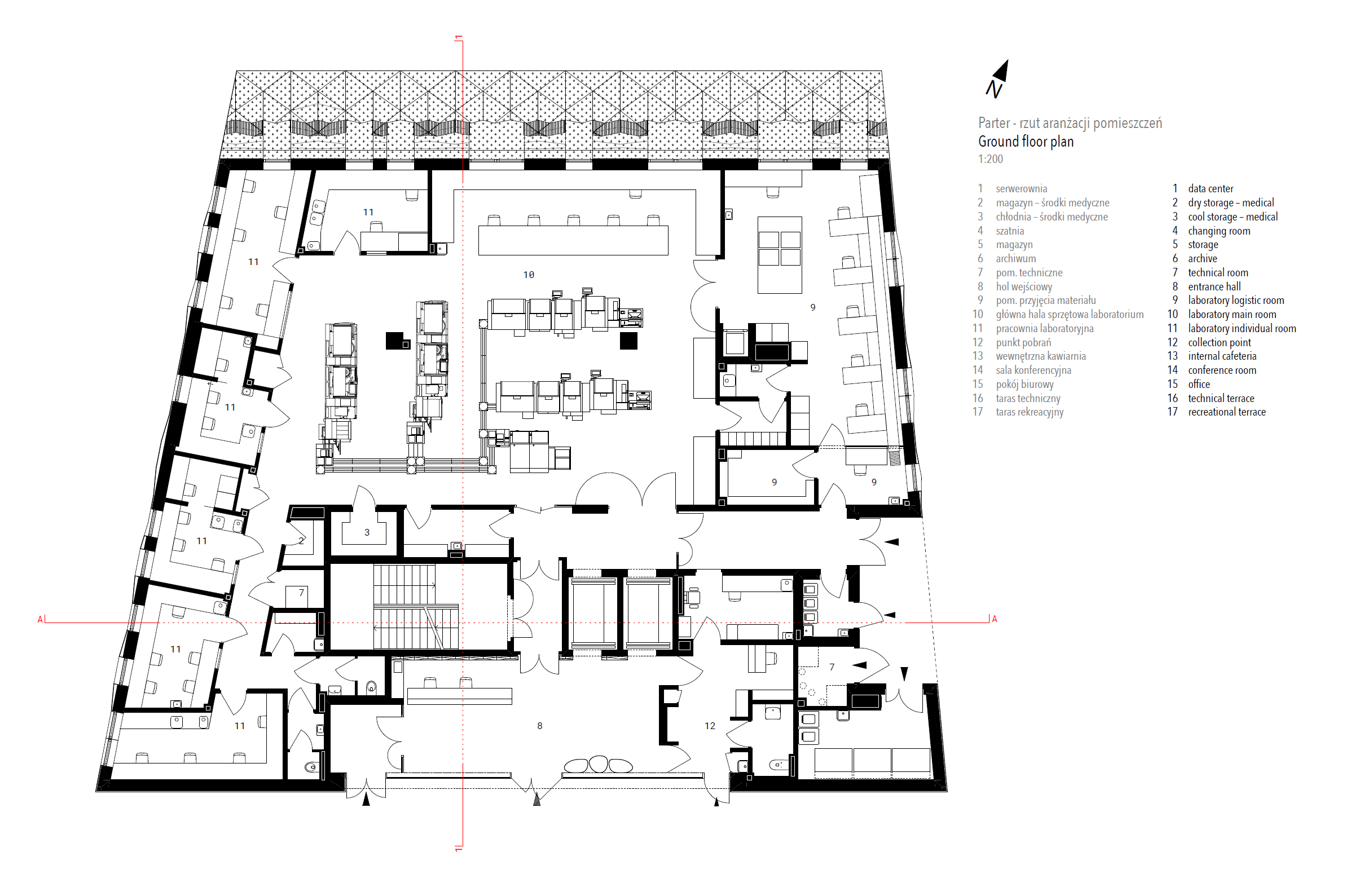
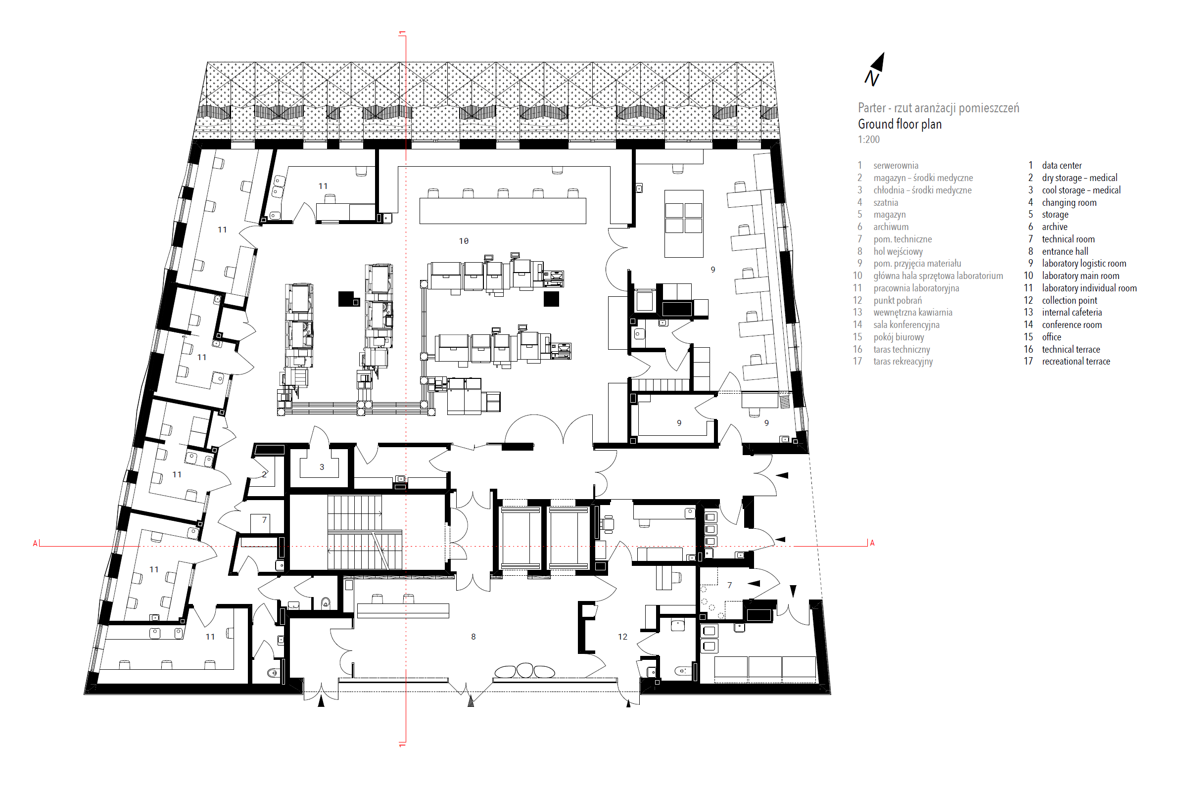
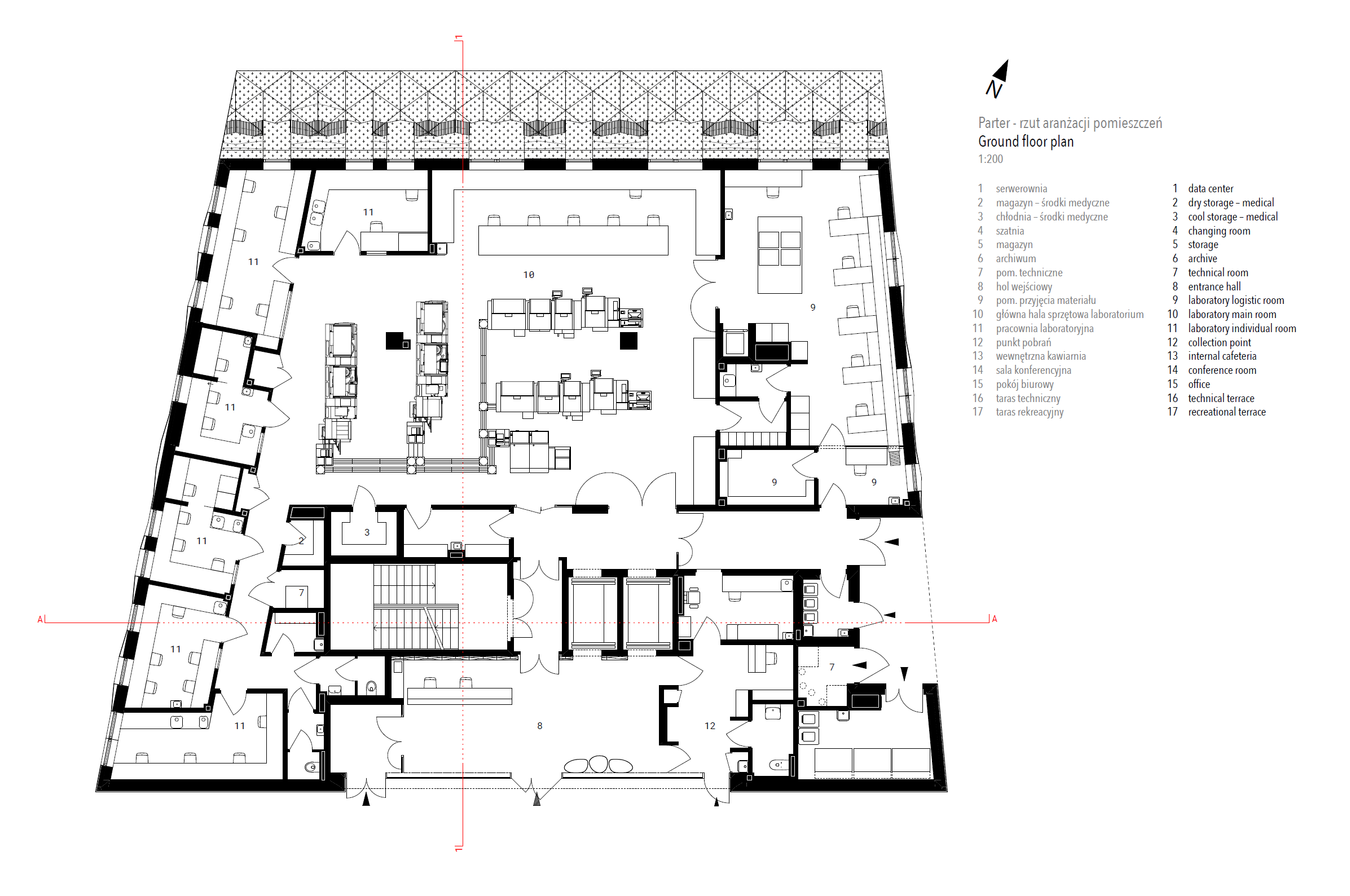
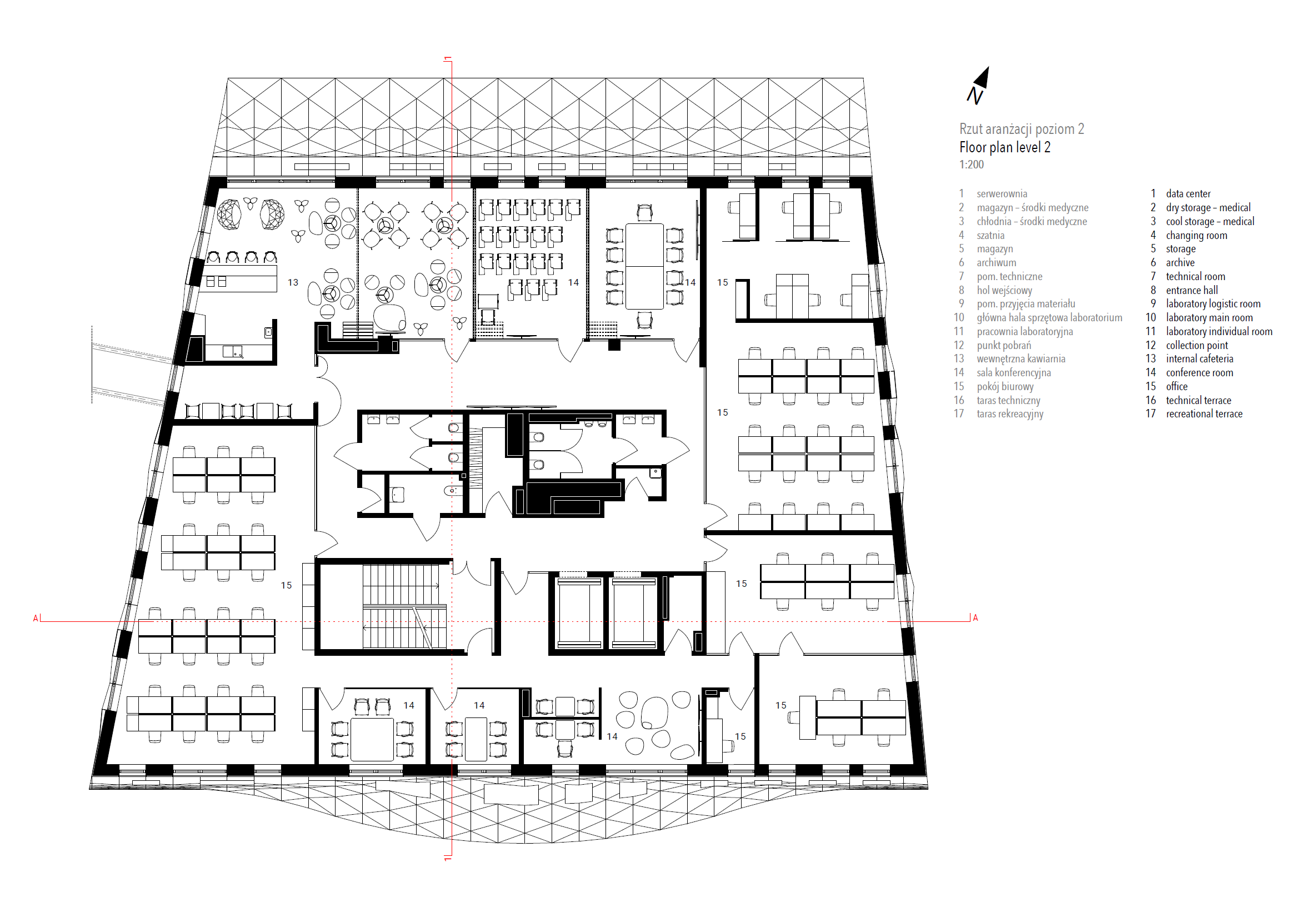
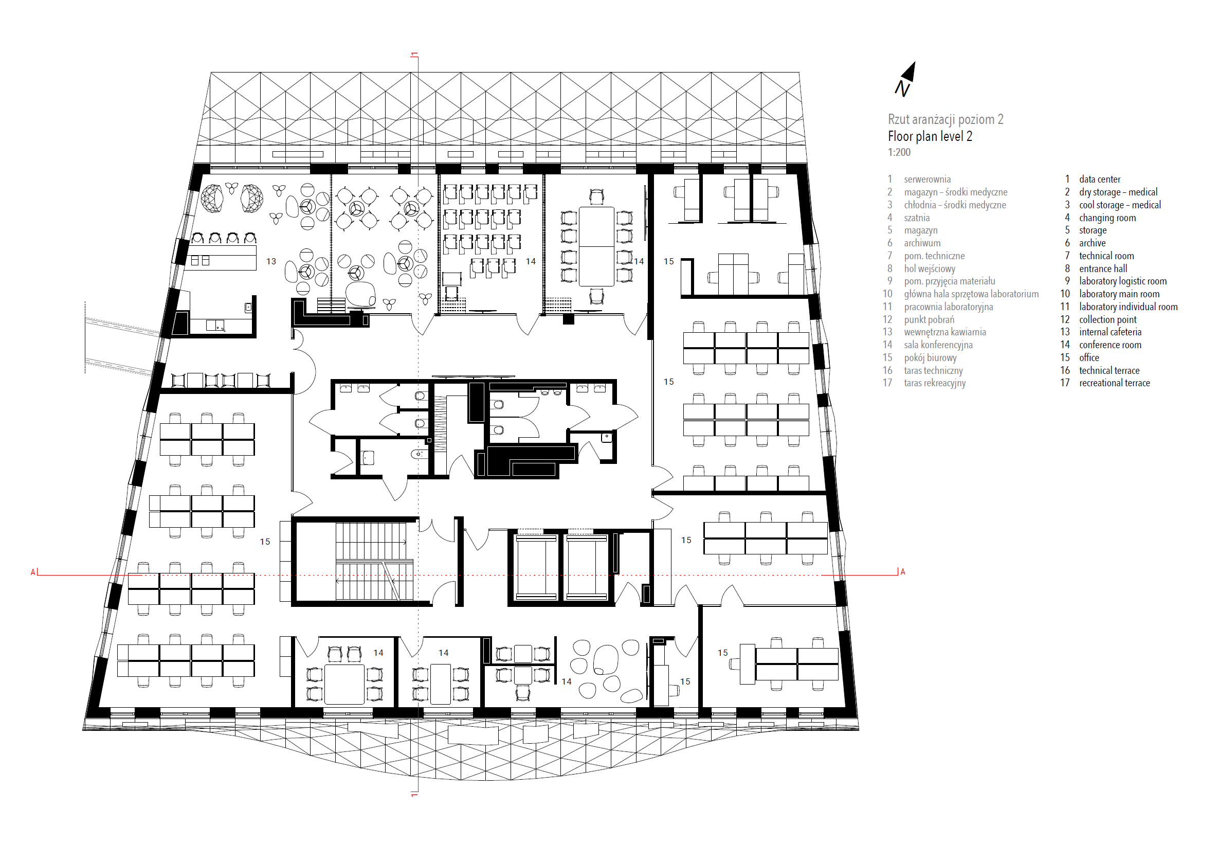
Wave One, of the European Center for Families, is located 400m from the Baltic Sea in what is historically known as a health resort town. The concept derives from the complexity of sea waves and the local vernacular of carved ornamental detailing on facade elements. Wave One, the first to be built after a lengthy design and construction process, encompasses specialized medical laboratories including SARS-CoV-2 testing labs, a research & development center and administration spaces. The white perforated facade, enfolding Wave One, was partly inspired by a series of photographs by Pierre Carreau, titled AquaViva. The architects analyzed the geometric complexity of the sea waves, captured by the photographer. The arched 3D forms, frozen in time, were translated into an architectural language that shaped the building’s final form. With 1,362 perforated triangular panels, the facade, just like a wave, bends at its crest, the top of the building. The panels perforations are a symbolic gesture in reference to the local tradition of placing ornamental details carved in wood on buildings’ facade. It made it possible to bring about an airiness and dissipation of the building in space, particularly visible in the upper realm of the facade. The East/west elevations take on 3D form with triangular panels of sintered white ceramics, skewing and refiecting sunlight onto the pavement. They create a transient detail, enlivening the immediate surroundings of the building. Equally, curvature - a reference to the concavity of a sea wave - inspired the shape of the building mass. In a facility with such a high saturation of technological equipment, many of which have to work 24 hours a day, it is very important to protect the rooms from overheating. In order to avoid such threats and at the same time to prevent enlarging the cooling systems, a number of passive solutions were used. For instance, the architects resigned from large glass surfaces. Instead, the surface area of the designed windows, provides the optimal natural lighting conditions for the laboratory rooms. The largest room, in which the technological line, generating the greatest amounts of heat was placed, is located on the North side. Further, the building facade is built of two layers. The outer layer of the facade acts as a continuous protective barrier over the building, shielding the exterior wall from heating up and the interior rooms from overheating. This barrier also has a positive effect on the surroundings. It prevents the urban heat island phenomenon.

역사적인 휴양지로 유명한 발트해에서 400m 떨어진 곳, 폴란드 소포트. 이곳에 새롭게 들어선 소프트 유전학연구소 웨이브원은 코로나바이러스감염증-19(SARS-CoV-2) 검사실을 포함한 전문 의료 연구실, 연구 개발 센터 및 관리 공간이다. 건물을 보자마자 가장 눈에 띄는 것은 흰 색의 천공 입면과 독특한 선을 가진 건축물의 형태다. 사진작가 피에르 카로(Pierre Carreau)의 작품인 덮쳐오는 파도를 포착한 아쿠아비바(AquaViva)라는 사진에서 영감을 얻어 디자인된 이 독특한 건축물은 파도가 가지고 있는 기하학적 구조를 공간으로 구현한 것이다. 밀려오는 파도의 시간을 마치 멈춘 것처럼 건물은 입체적인 아치형입구를 가지고 있다. 입면은 파도처럼 건물의 꼭대기인 마루에서부터 흐르듯이 휘어진다. 이 입면을 만드는 삼각형의 패널은 1,362개의 구멍이 뚫려 있는데, 이는 건물의 정면에 나무로 조각된 장식적인 디테일을 배치하는 지역 전통이 현대적으로 구현된 것이다. 건물 정면부에서부터 흐르듯이 내려오는 건물은 도시 경관에 경쾌함을 가져다 준다. 동쪽과 서쪽의 입면은 흰색 세라믹의 삼각형 패널로 정면과는 다른 입체적 형태를 취하면서 햇빛을 반사해낸다. 이것은 24시간 가동해야 하는 기술 장비가 많은 시설에서 실이 과열되지 않도록 보호하는 것이 매우 중요하기 때문이다. 입면은 이러한 과열을 방지하고, 동시에 대공간을 확보하면서 냉각 시스템을 다룰 수 있도록 설계되어 있다. 또한, 건축물을 겉에서 보면 큰 유리창이 없는데. 대신, 창의 표면적이 실험실에 최적의 자연 채광을 이용할 수 있도록 공간이 배치, 구성되어 됐다. 가장 많은 양의 열을 발생시키는 기술 라인이 배치된 가장 큰 실은 북쪽에 위치해 있으며, 건물 정면은 두 개의 층이 뚫린 형태로 큰 공기 흐름을 만들어내는 공간으로 벽과 내부 공간이 과열되는 것을 방지한다. 뿐만 아니라 이 천공 입면은 도시열섬현상을 방지하는 효과도 있다.
















Architects FAAB
Location Sopot, Poland
Program Laboratories, Offices
Site area 11,180㎡
Building area 3,160㎡
Gross floor area 4,230㎡
Building scope B1, 4F
Construction period 2019. 4 - 2021. 9
Completion 2021. 9
Principal architect FAAB
Project architect Adam Białobrzeski, Adam Figurski, Maria Messina, Anna Miłosz, Mikołaj Szewczyk
Structural engineer PF Projekt
Concrete structure engineer Kappa Projekt
Electrical engineer Profen
Construction project manager Tomasz Olkowski
Construction manager Michał Buturla
Photographer Maciej Lulko
해당 프로젝트는 건축문화 2022년 6월호(Vol. 494)에 게재되었습니다.
The project was published in the July, 2022 recent projects of the magazine(Vol. 494).
July 2022 : vol. 494
Contents : RECORDS I LIVE ALONE AND TOGETHER 나 혼자, 그리고 같이 산다 “SPACE COORDINATOR”, AN EXPERIMENTAL AND INNOVATIVE DISCOURSE THAT REVOLUTIONIZES THE CITY 도시를 새롭게..
anc.masilwide.com
'Architecture Project > Office' 카테고리의 다른 글
| EXTENSION OF THE CONSTITUTIONAL COURT OF KOREA (0) | 2022.09.16 |
|---|---|
| PROGETTO ITALIA (0) | 2022.09.14 |
| AGENCY GIBOIRE MORBIHAN OFFICES (0) | 2022.09.07 |
| PRIVATE OFFICE (0) | 2022.09.06 |
| WELL LIVING LAB (0) | 2022.09.05 |
마실와이드 | 등록번호 : 서울, 아03630 | 등록일자 : 2015년 03월 11일 | 마실와이드 | 발행ㆍ편집인 : 김명규 | 청소년보호책임자 : 최지희 | 발행소 : 서울시 마포구 월드컵로8길 45-8 1층 | 발행일자 : 매일



