
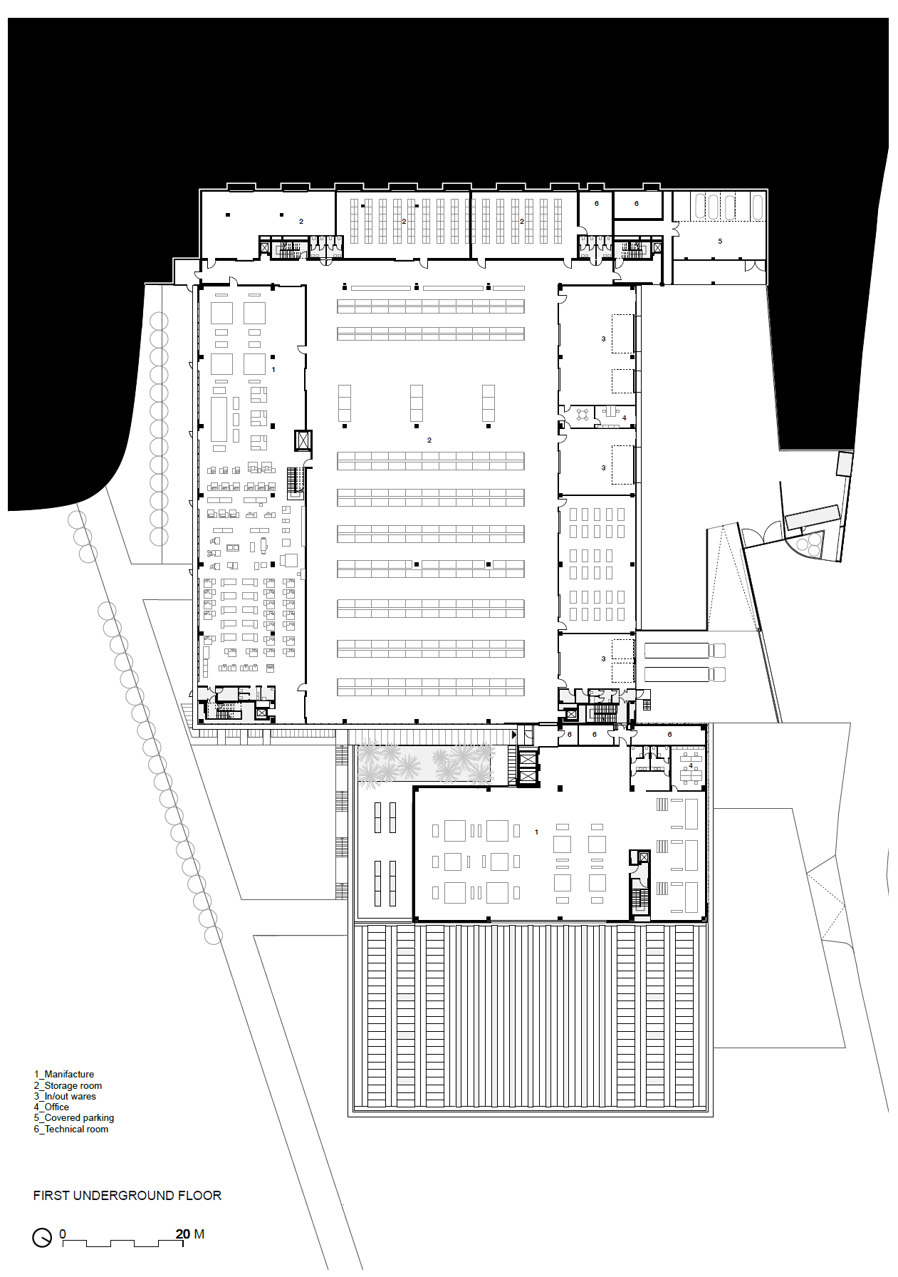
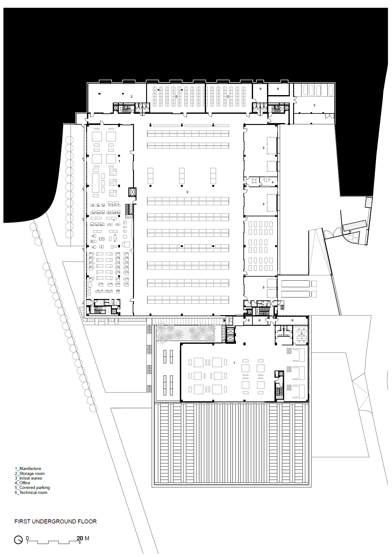
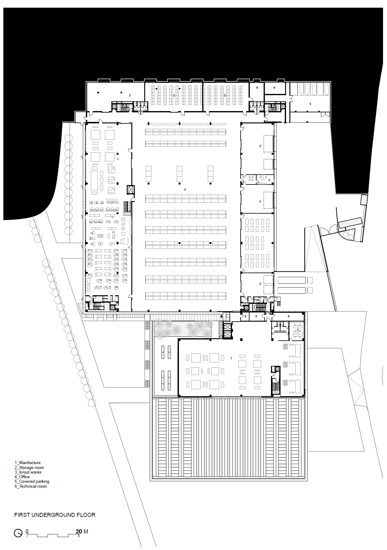
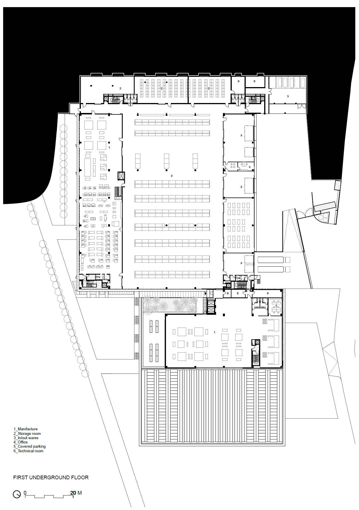
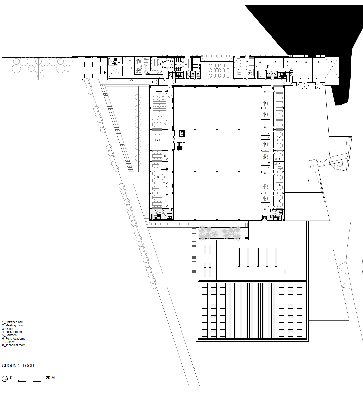
The new Furla Headquarters are located in Tavarnelle Val di Pesa, in the province of Florence, immersed in the Chianti area. The project highlights a paramount theme: the integration of the industrial architecture into the Italian landscape, providing an opportunity to rethink the quality of the workspace. Architecture and nature are perfectly blended along all directions to create a unique element where the design and the Chianti landscape (defined by hills, heritage, and agricultural areas) communicate harmoniously. The Furla factory covers 42,000 sq m of soil - 18,300 sq m built - and has three main volumes (one for offices, two for labs and logistics) designed to be harmoniously integrated into the surrounding landscape, without too much contrast. Architecture and nature coexist in a functional balance.
The morphology of the land is truly taken into consideration and is enhanced through three fundamental elements – the driveway, the terraces, and Piazza Furla – which define clear areas around the building volumes. Thanks to a system of patios and green roofs overlooking the wooded area, nature crosses the boundaries between inside and outside. The main entrance recalls the archetype of Tuscan villa access: a linear row of cypresses welcoming visitors and showing the way through. This rhythm is replicated on the facade of the buildings with sunscreen filtering blades. The entrance to the offices, with the double-height reception and the large open-air hall, becomes the point where the boundaries between architecture and landscape merge. The interiors have been designed in such a way as to have real layout flexibility. The orderly sequence of offices is punctuated by green patios, or relationship spaces. Nature is a prominent element, not just because of its beauty (Chianti hills), but also because it creates a pleasant environment once blended into the building: patios, green coverings, and natural light contribute to a more sustainable working habitat, where people can also relax and enjoy contact with nature. Finally, sustainability plays a key role in this project, which has been designed to comply with green energy best practices.

새로운 Furla 본사는 이탈리아 피렌체 지역의 키안티, 타바르넬레 발 디 페사에 위치해있다. 이 프로젝트는 가장 중요한 테마를 강조한다. 산업 건축을 이탈리아 풍경으로 통합함으로써 작업 공간의 품질을 재고할 수 있는 기회를 제공한다. 건축과 자연이 사방팔방으로 완벽하게 어우러져 디자인과 키안티의 풍경(언덕, 유산, 농경지로 정의)이 조화롭게 소통하는 독특한 요소를 만든다. Furla 공장은 42,000㎡의 흙을 덮고 있으며, 크게 대조되지 않고 주변 경관과 조화롭게 통합되도록 설계된 3개의 주요 볼륨(사무실용 1개, 실험실용 2개, 물류용 2개)을 갖추고 있다. 건축과 자연은 기능적 균형 속에서 공존한다.
토지의 형태는 진정으로 고려되었고, 건물 부피 주변의 명확한 영역을 정의하는 진입로, 테라스와 푸를라 광장의 세 가지 기본 요소를 통해 강화된다. 숲이 우거진 지역을 내려다보는 테라스와 녹색 지붕의 시스템 덕분에, 자연은 내부와 외부의 경계를 넘나든다. 주요 입구는 토스카나 빌라 접근의 원형인 방문객을 환영하고 통과하는 길을 보여주는 편백나무의 선형 줄을 떠올리게 한다. 이 리듬은 자외선을 차단해 주는 필터링 블레이드가 있는 건물의 입면으로 이어진다. 2층 높이의 리셉션과 넓은 야외 홀이 있는 사무실 입구는 건축과 조경의 경계가 합쳐지는 지점이 된다. 내부는 실제 유연성을 갖도록 배치되었다. 사무실의 질서 정연한 순서는 녹색 테라스 또는 릴레이션쉽 공간으로 강조된다. 자연은 단지 그것의 아름다움(키안티 힐스) 때문만이 아니라, 한때 건물 안에 섞였던 쾌적한 환경을 조성하기 때문에 눈에 띄는 요소이다: 파티오, 녹색 덮개, 그리고 자연 빛은 사람들이 휴식을 취하고 자연과의 접촉을 즐길 수 있는 더 지속 가능한 작업 서식지에 기여한다. 마지막으로, 지속가능성은 녹색 에너지 모범 사례를 준수하도록 설계된 이 프로젝트에서 핵심적인 역할을 한다.





















Architects GEZA Architettura
Location Florence, Italy
Area of intervention 42,000㎡
Building area 11,000㎡
Gross floor area 18,300㎡
Production 15,500㎡
Offices 2,800㎡
Terraces and green roofs 1,200㎡
Freight area and outdoor parking 7,700㎡
Green area 23,000㎡
Design period 2017-2018
Construction 2018-2021
Architecture design and Creative direction GEZA Architettura
Structural design and Supervision of Works Biagini Studio di Ingegneria
Landscape design LAND Italia
Structural plan Consilium Servizi d’Ingegneria
Client Furla FC Immobiliare spa
Photographer Fernando Guerra
'Architecture Project > Office' 카테고리의 다른 글
| PARTENORD HABITAT HEADQUARTERS (0) | 2022.09.26 |
|---|---|
| EXTENSION OF THE CONSTITUTIONAL COURT OF KOREA (0) | 2022.09.16 |
| WAVE ONE (0) | 2022.09.13 |
| AGENCY GIBOIRE MORBIHAN OFFICES (0) | 2022.09.07 |
| PRIVATE OFFICE (0) | 2022.09.06 |
마실와이드 | 등록번호 : 서울, 아03630 | 등록일자 : 2015년 03월 11일 | 마실와이드 | 발행ㆍ편집인 : 김명규 | 청소년보호책임자 : 최지희 | 발행소 : 서울시 마포구 월드컵로8길 45-8 1층 | 발행일자 : 매일



