
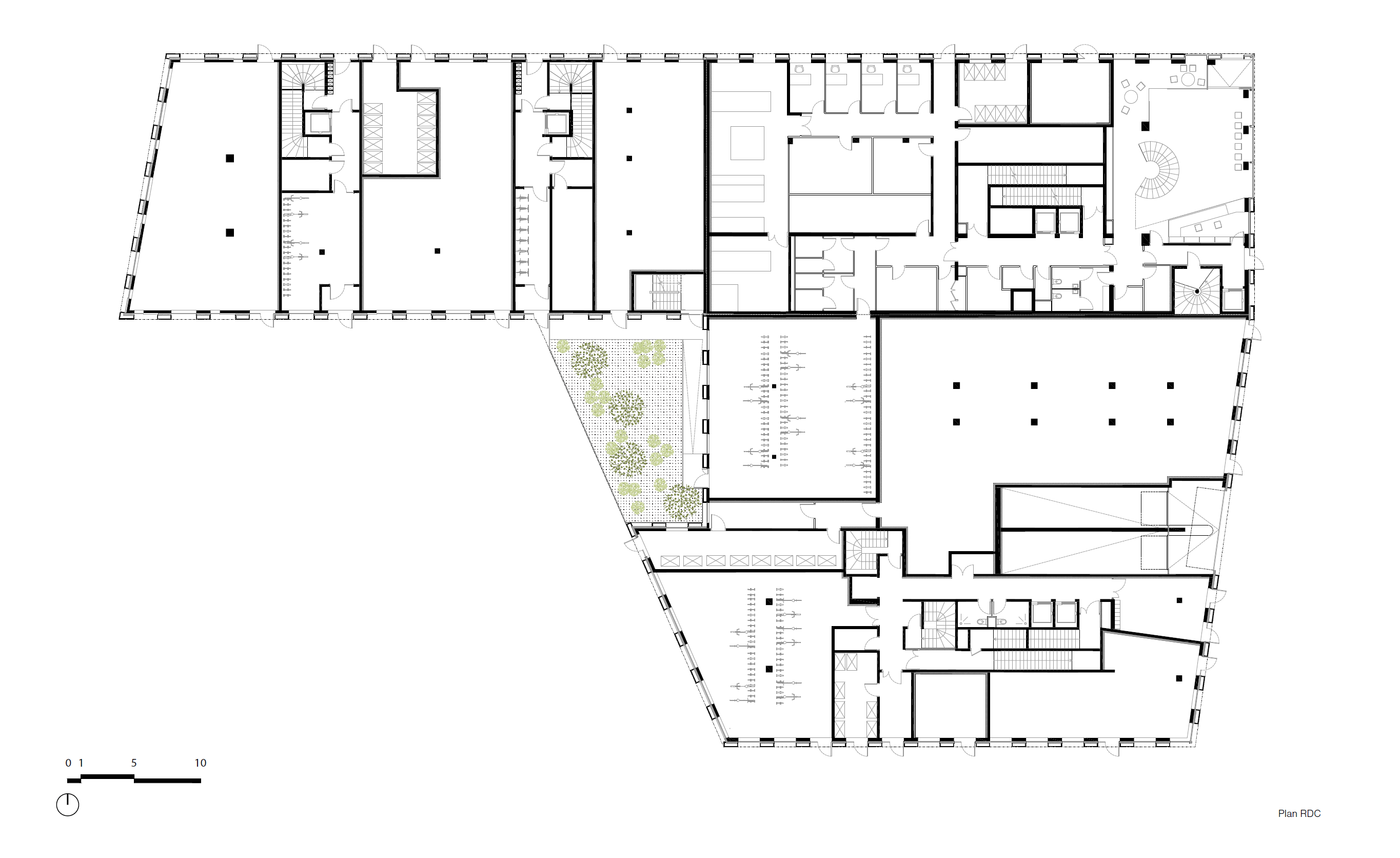
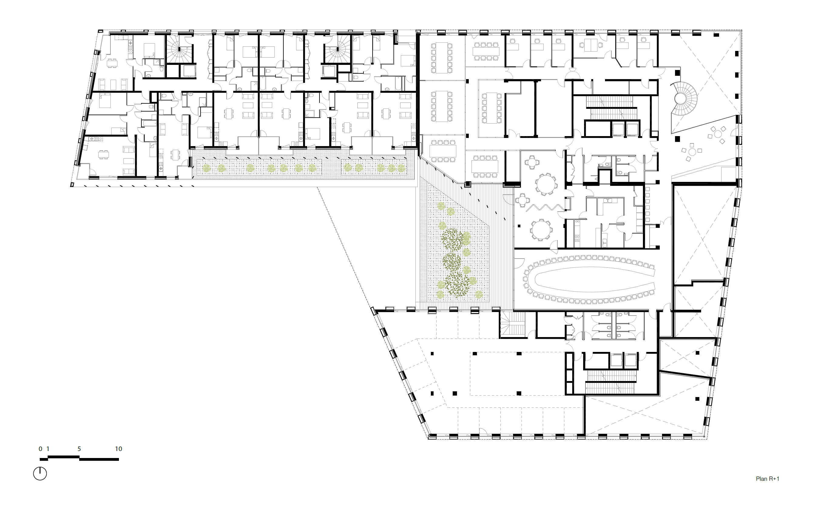
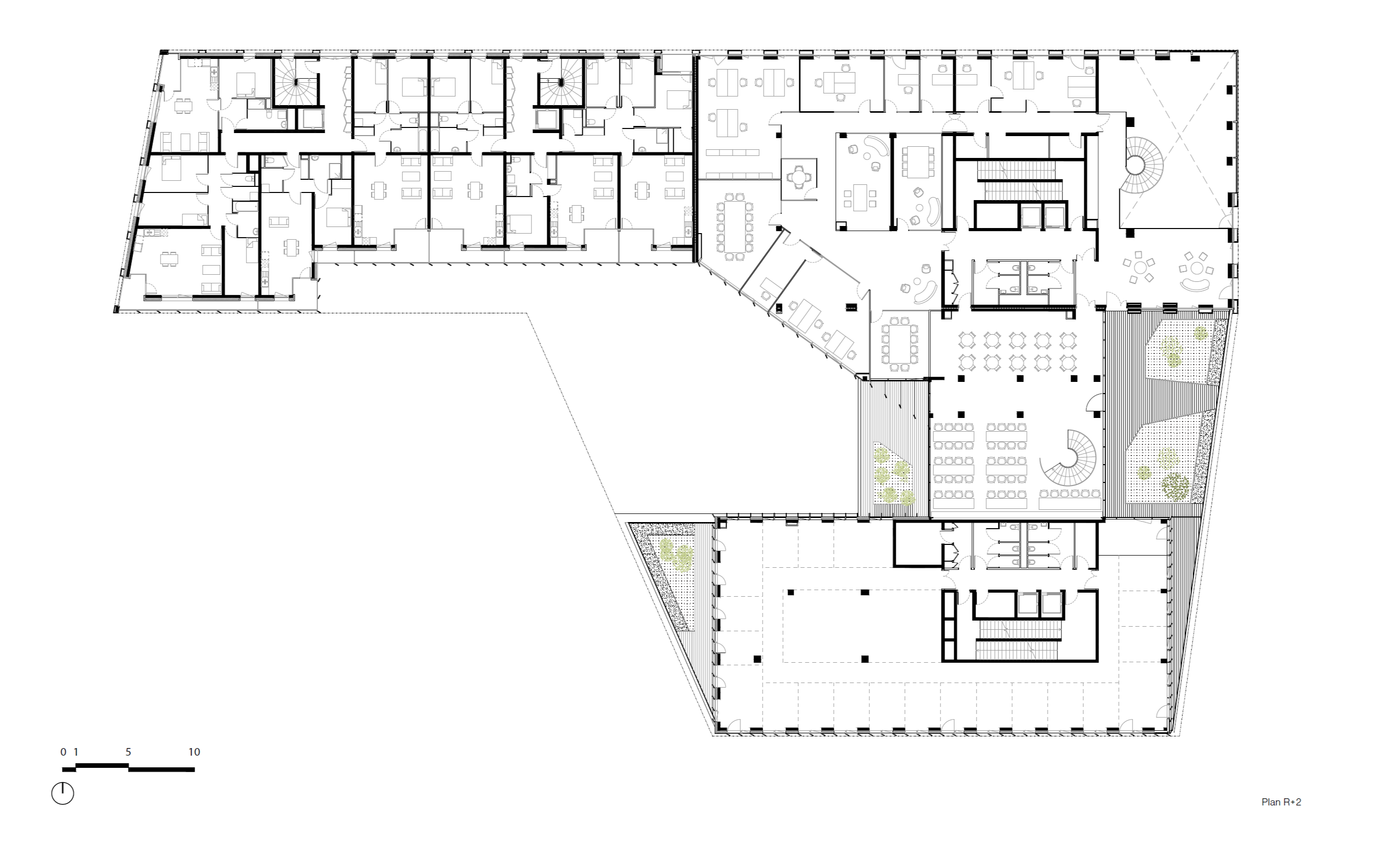
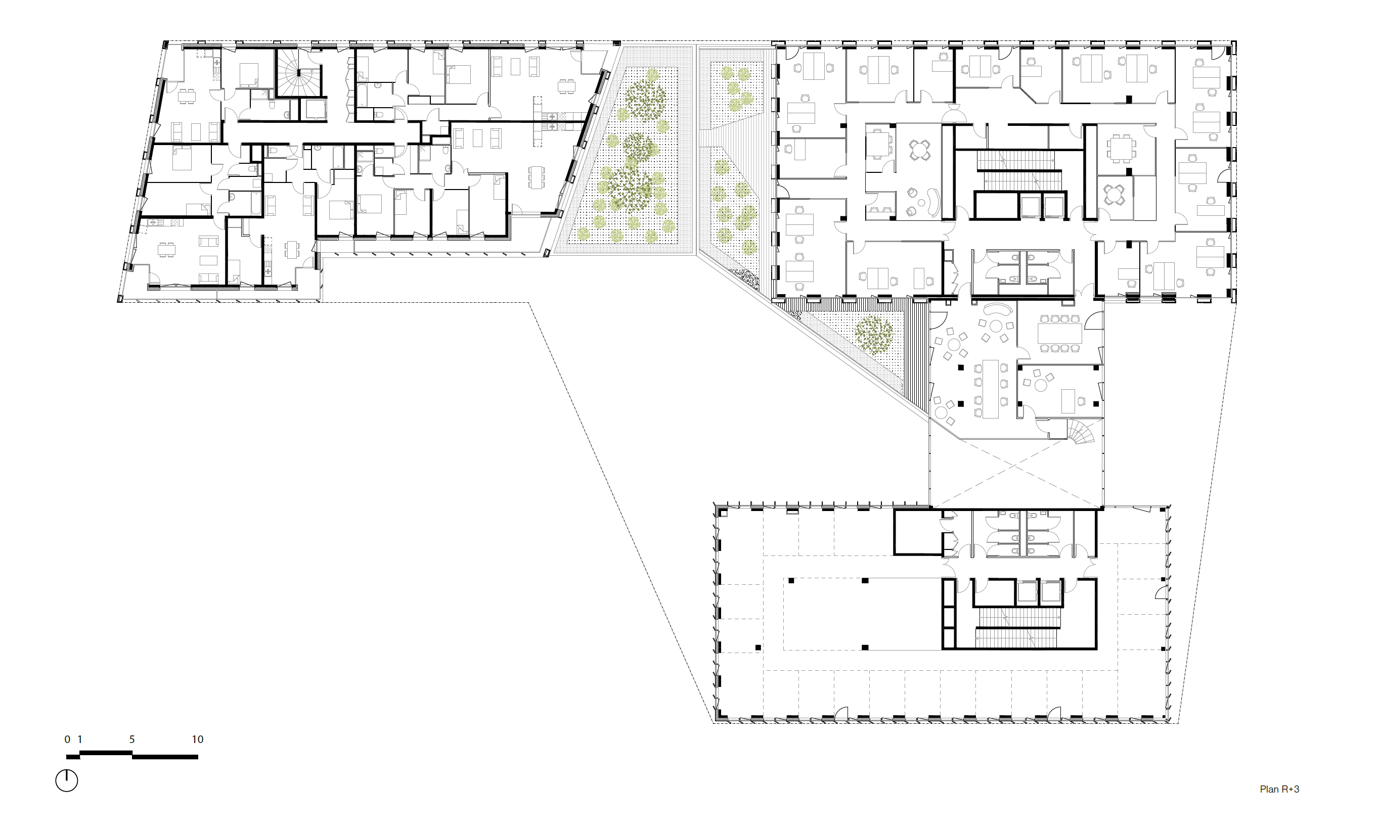
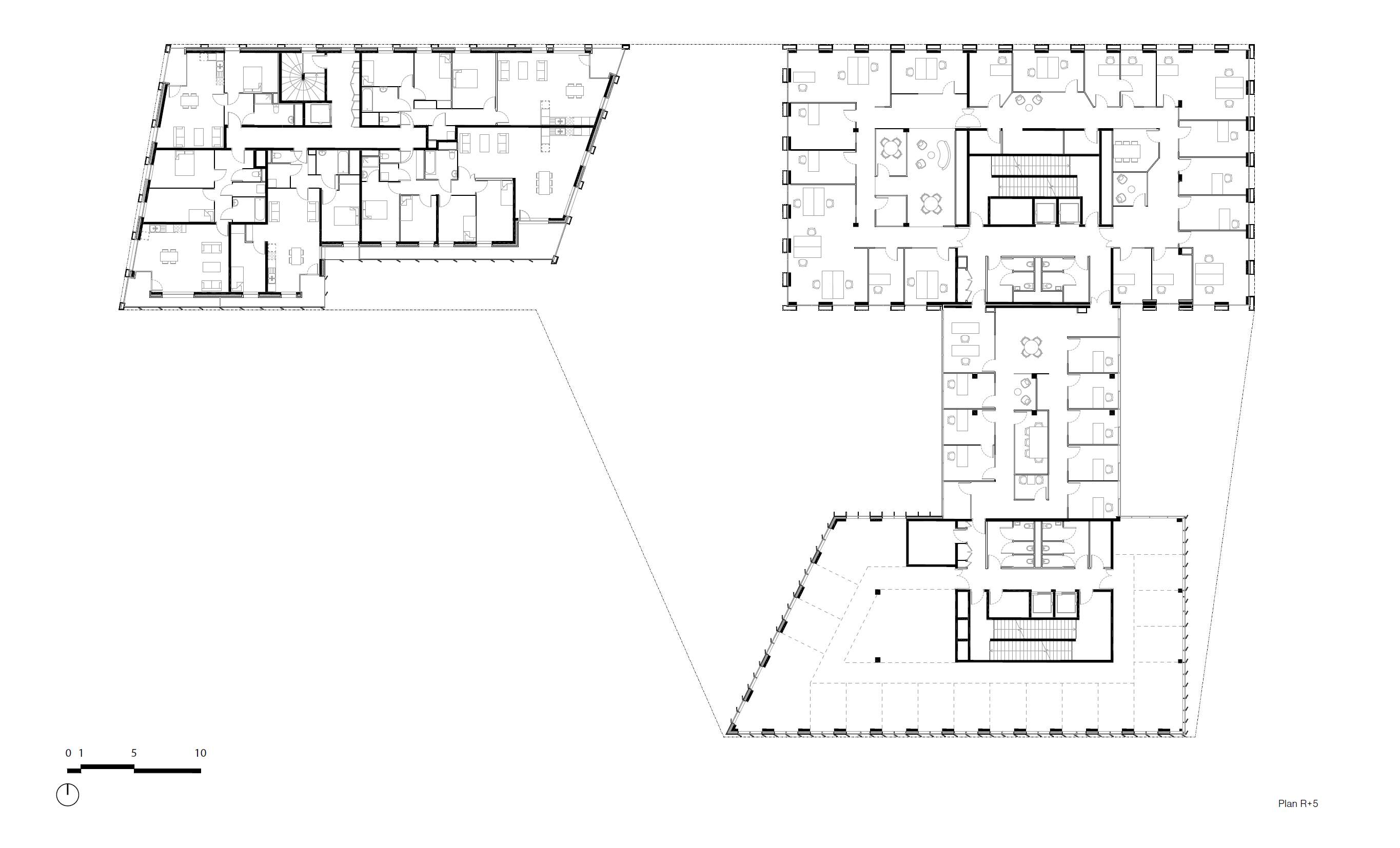
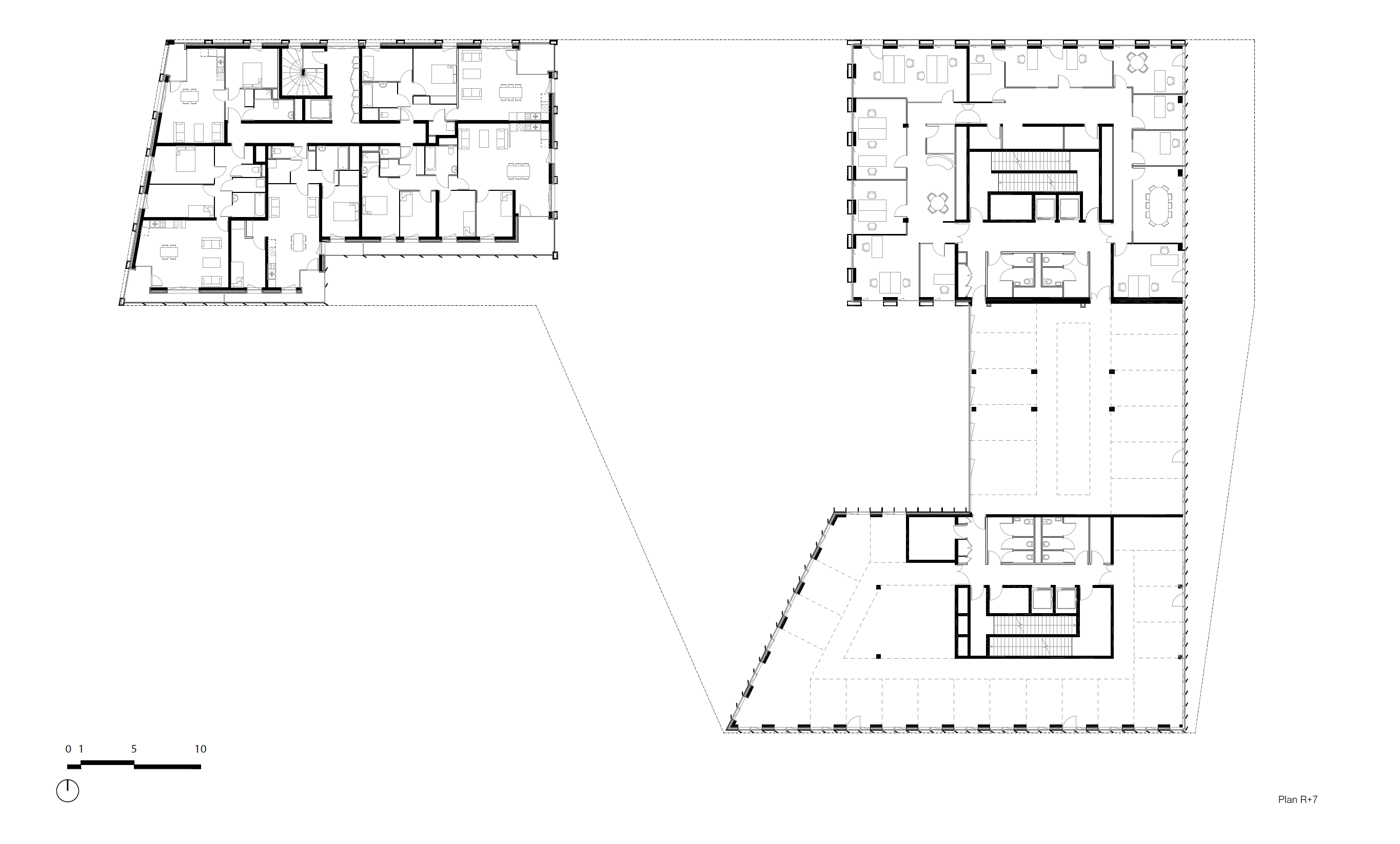
The project is situated on a plot in a strategic location at the entrance to the city of Lille, at the corner of Rue de Cambrai and Boulevard de Belfort. The building emerges from the ground along both of these roads in three distinct sections: the offices, the headquarters, and the housing, all tied together with a shared foundation. The Partenord headquarters are situated at the corner of the plot, shining like a beacon over the metropolitan area and ensuring its visibility throughout the Lille region. The project offers a duality between the bold urban façades and the centre of the block, which is sheltered from the city's hustle and bustle and is an ideal place for users to relax. The multiple balanced outdoor spaces offer pleasant settings for users, tenants, employees, and retailers, looking out onto an environment of biodiversity. The building is adorned with various sizes and styles of terracotta cladding. A feature is created along Boulevard de Belfort, like an urban window with three sides of reflective glass. This mirror onto the city amplifies the comings and goings of local residents. More than just architectural touches, the systems put in place offer functional qualities tailored to each project. The simple urban façade establishes structural and functional integrity to meet project requirements in the clearest possible way.

이 프로젝트는 Rue de Cambrai와 Boulevard de Belfort의 모퉁이에 있는 Lille 시 입구의 전략적 위치에 있다. 건물은 이 두 도로를 따라 3개의 별개 섹션(본사 건물, 사무실, 주거공간)으로 나뉘어져 있으며 모두 공유 기반으로 연결되어 있다. Partenord 본사는 플롯의 모퉁이에 위치하여 대도시 지역을 비추는 등대처럼 빛나고 Lille 지역 전체에 가시성을 보장한다. 이 프로젝트는 도시의 혼잡으로부터 보호되고 이용자들이 휴식을 취하기에 이상적인 장소인 대담한 도시 정면과 블록의 중심 사이의 이중성을 제공한다. 균형 잡힌 여러 개의 야외 공간은 생물 다양성의 환경을 바라보는 사용자, 세입자, 직원, 소매업자들에게 쾌적한 환경을 제공한다. 건물은 다양한 크기와 스타일의 테라코타 클래딩으로 장식되어 있다. 벨포트(Belfort)대로를 따라 3면의 반사 유리가 있는 도시 창문과 같은 특징이 만들어진다. 도시에 비친 이 거울은 지역 주민들의 왕래를 증폭시킨다. 단순한 건축적 터치 이상으로 배치된 시스템은 각 프로젝트에 맞는 기능적 특성을 제공한다. 단순한 도시 외관은 가장 명확한 방법으로 프로젝트 요구사항을 충족하기 위해 구조적 및 기능적 무결성을 확립한다.

























Architects Coldefy
Location Lille, France
Gross floor area 14,650m²
Completion 2020. 09
Partner architects TAG Architectes, Paindavoine Parmentier Architectes
Design offices TPF.I Engineering, VS-A Envelope design and engineering
Landscape BASE Paysagistes
Construction Nord France Constructions Fayat
Client Partenord Habitat
Photographer Julien Lanoo
'Architecture Project > Office' 카테고리의 다른 글
| HEUNGKUK TOWER BUSAN (0) | 2022.10.20 |
|---|---|
| WOLBAE MG COMMUNITY CREDIT COOPERATIVES (0) | 2022.10.20 |
| EXTENSION OF THE CONSTITUTIONAL COURT OF KOREA (0) | 2022.09.16 |
| PROGETTO ITALIA (0) | 2022.09.14 |
| WAVE ONE (0) | 2022.09.13 |
마실와이드 | 등록번호 : 서울, 아03630 | 등록일자 : 2015년 03월 11일 | 마실와이드 | 발행ㆍ편집인 : 김명규 | 청소년보호책임자 : 최지희 | 발행소 : 서울시 마포구 월드컵로8길 45-8 1층 | 발행일자 : 매일



