
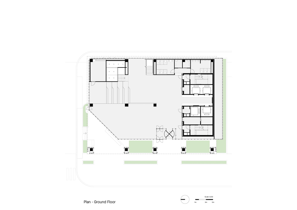
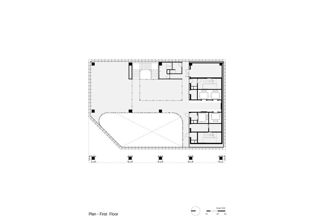
Located in South Korea’s second most populous city Busan, the Heungkuk Tower serves as an office building and sits adjacent to the coastline and close to the city’s high speed rail network. The building’s distinguishing feature is its stark black and fuchsia facade of various linear patterns. The role of the frame extends beyond decoration, continuously creating different atmospheres, filtering incoming light and making shadows across the interior spaces.
Maximising the land allocation, the building sits elegantly in a densely built up area of the city.
The relationship between the building and its surroundings reflects the passing of time, changing from day to night. As the building glows from within, its characteristic facade pattern is revealed to the surroundings. Employees and visitors of the companies housed in the building can make use of the roof garden as an area to retreat and an environment offering views into the port and surrounding district.

초량동에 들어선 흥국생명의 부산사옥은 KTX역과 가까이에 있다. 기존의 사옥 건물을 활용하여 새로운 공간으로 재탄생됐는데, 특히 입면의 검은색과 분홍색의 선형 패턴이 특징이다. 흥국생명의 상징인 분홍색이 사용된 파사드 패턴은 건물 안으로 들어오는 빛을 필터링하면서 건물 내부에 규칙적인 그림자를 만들어 낸다. 면적을 최대로 활용하여 빽빽하게 늘어선 도시 건물 속에서 흥국생명 타워는 특유의 우아함을 자아내며, 낮에서 밤으로 시간의 흐름에 따라 나타나는 주변 환경의 변화 속 녹아든다. 건물 내부에서 나오는 빛에 의해서 건물만의 특징적인 파사드 패턴이 주변에 드리워진다. 건물의 회사원들과 방문객들은 옥상 정원에서 항구가 있는 주변 경관을 한눈에 내려다 보며 휴식을 취할 수 있다.









ⓒKyungsub Shin




Location Jungang-daero, Choryang-dong, Dong-gu, Busan, Republic of Korea
Program OFFICE BUILDING
Gross floor area 20,000㎡
Building scope 14F
Construction period 2017 - 2021
Completion 2021
Principal architect Mecanoo
Design team Mecanoo
Client Heungkuk Life Insurance Co
Photographer Kyungsub Shin
해당 프로젝트는 건축문화 2022년 7월호(Vol. 494)에 게재되었습니다.
The project was published in the July, 2022 recent projects of the magazine(Vol. 494).
July 2022 : vol. 494
Contents : RECORDS I LIVE ALONE AND TOGETHER 나 혼자, 그리고 같이 산다 “SPACE COORDINATOR”, AN EXPERIMENTAL AND INNOVATIVE DISCOURSE THAT REVOLUTIONIZES THE CITY 도시를 새롭게..
anc.masilwide.com
'Architecture Project > Office' 카테고리의 다른 글
| THE WRITER’S CABIN (0) | 2022.12.21 |
|---|---|
| GYEONG-BUK PROVINCIALGOVERNMENT TOWN DGB OFFICE BUILDING (0) | 2022.11.10 |
| WOLBAE MG COMMUNITY CREDIT COOPERATIVES (0) | 2022.10.20 |
| PARTENORD HABITAT HEADQUARTERS (0) | 2022.09.26 |
| EXTENSION OF THE CONSTITUTIONAL COURT OF KOREA (0) | 2022.09.16 |
마실와이드 | 등록번호 : 서울, 아03630 | 등록일자 : 2015년 03월 11일 | 마실와이드 | 발행ㆍ편집인 : 김명규 | 청소년보호책임자 : 최지희 | 발행소 : 서울시 마포구 월드컵로8길 45-8 1층 | 발행일자 : 매일



