
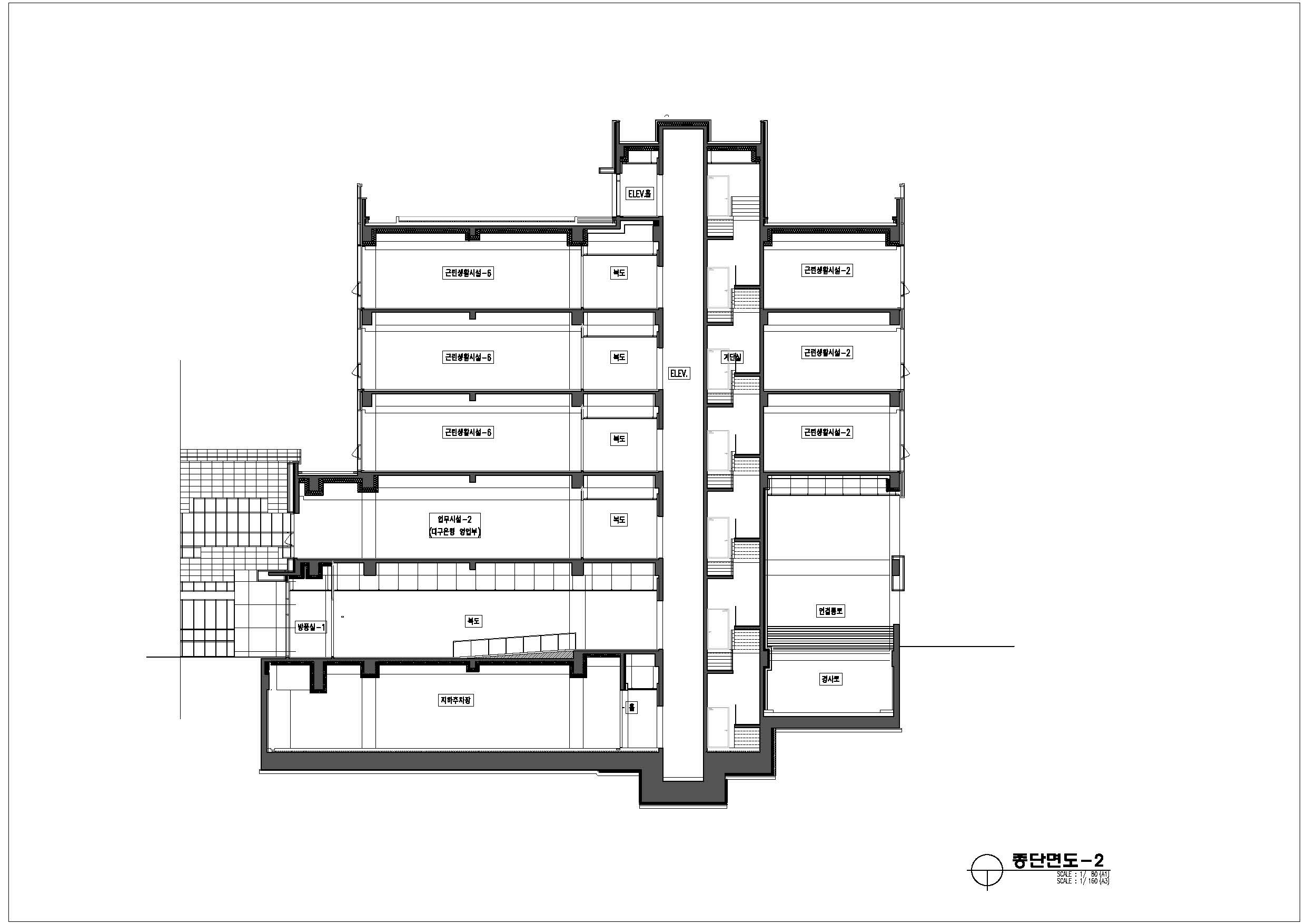
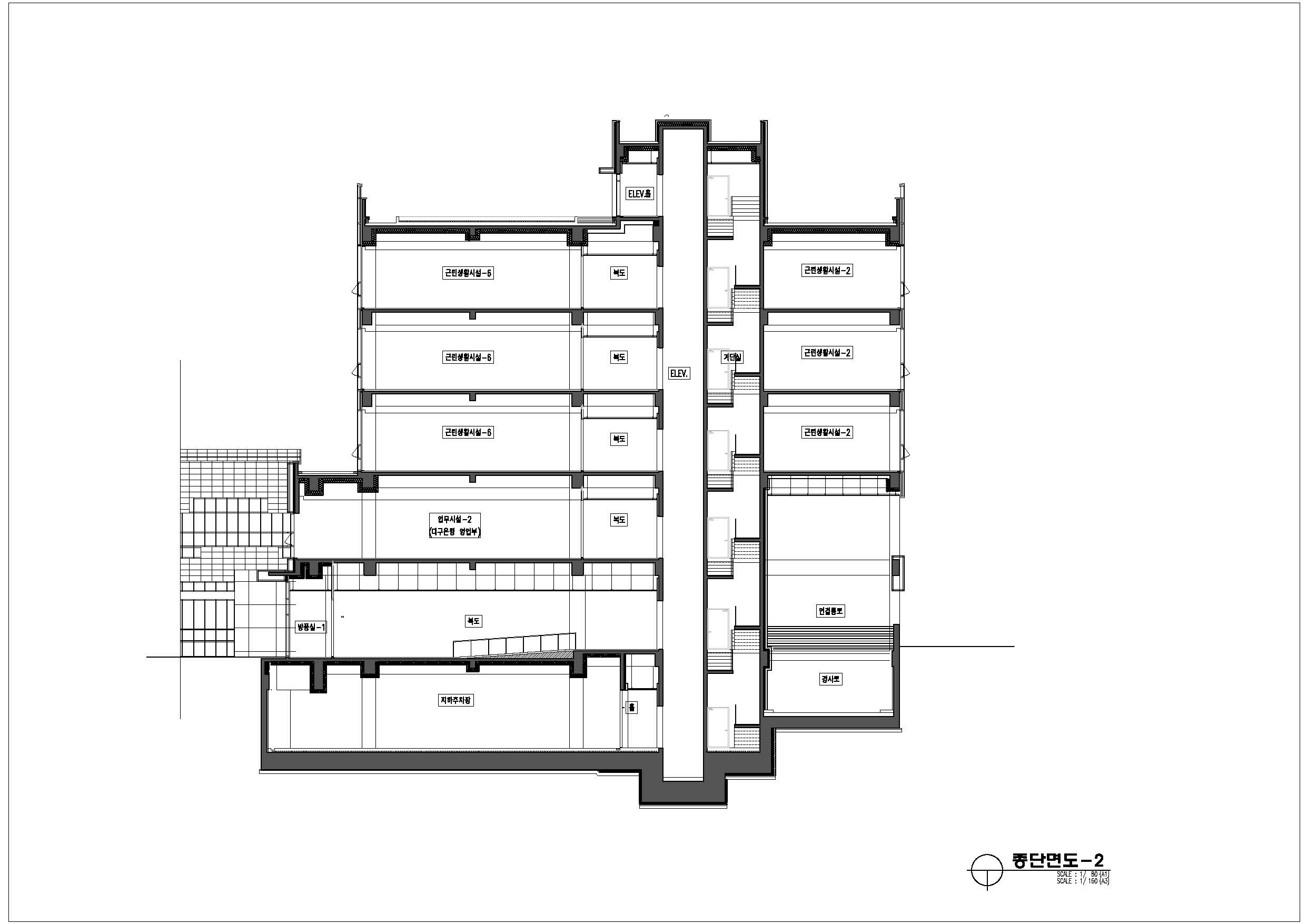
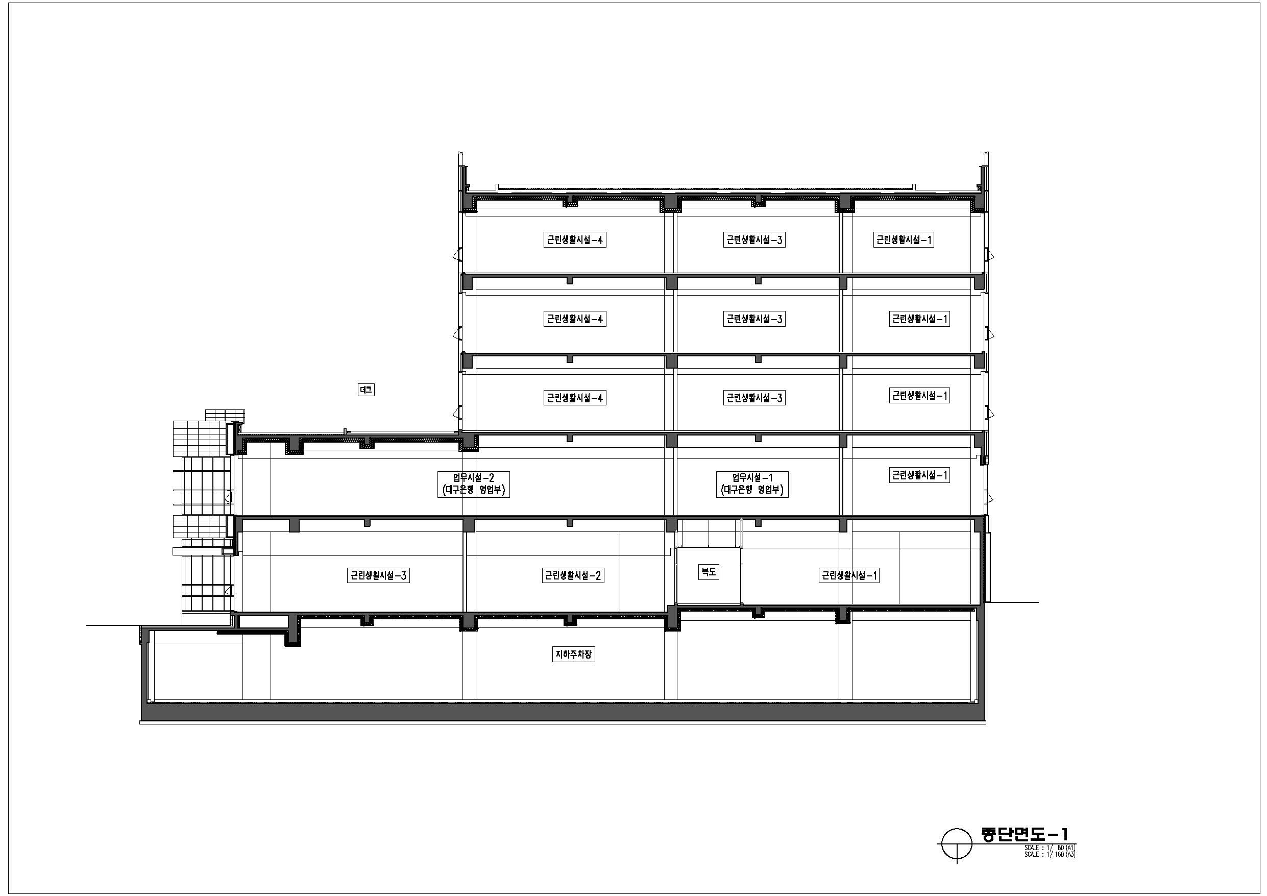
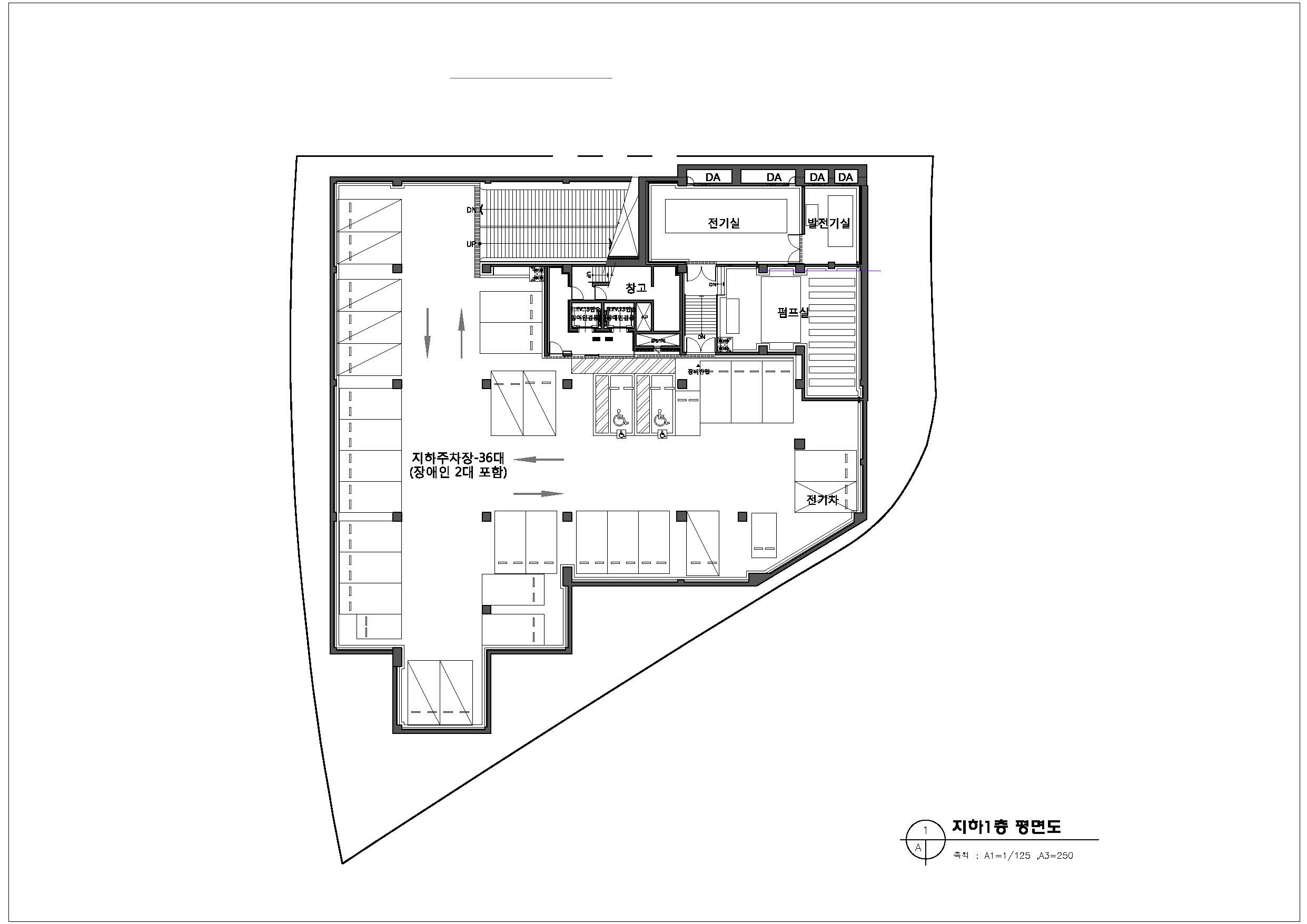
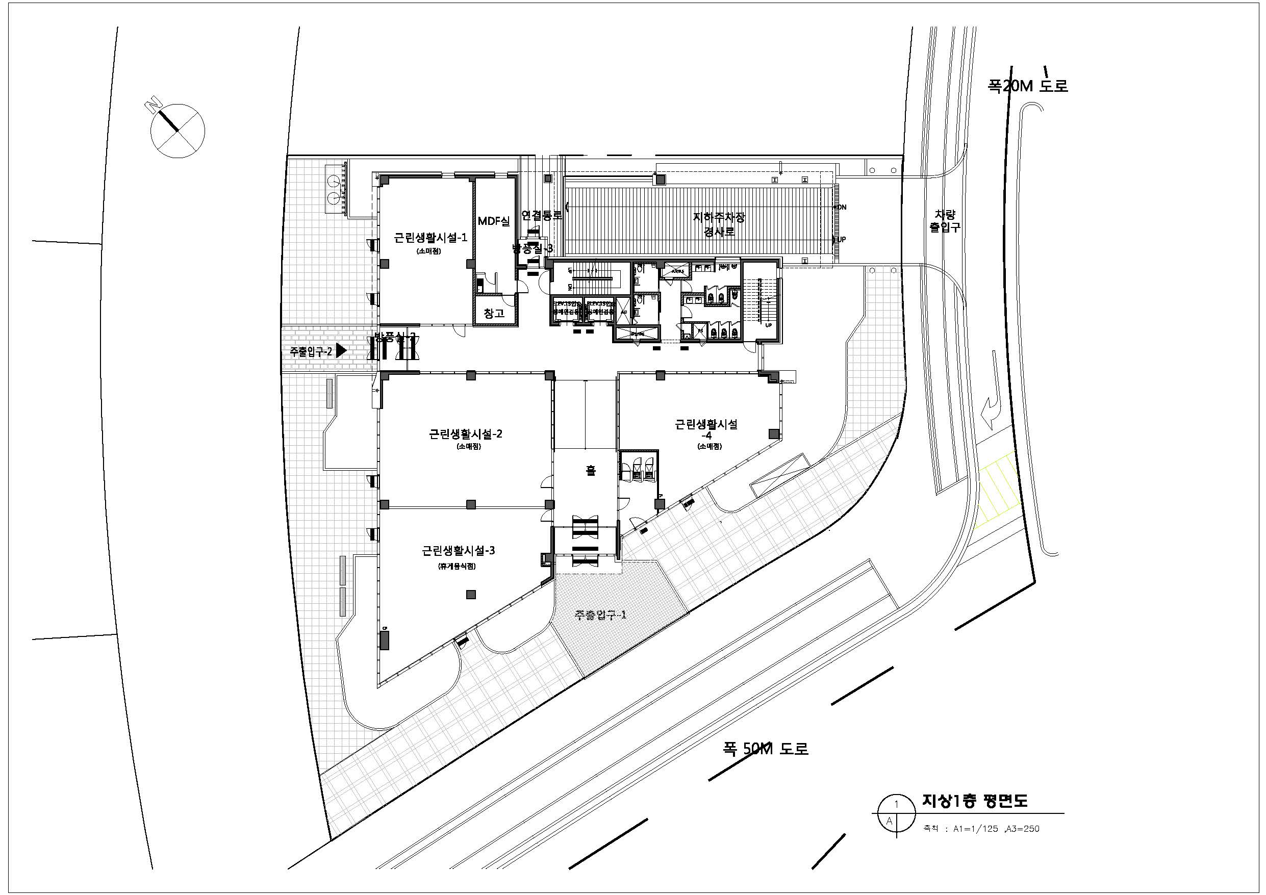
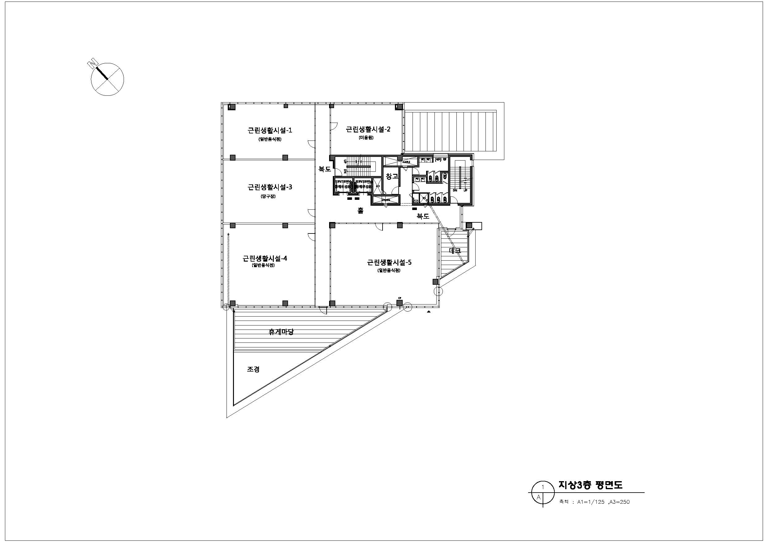
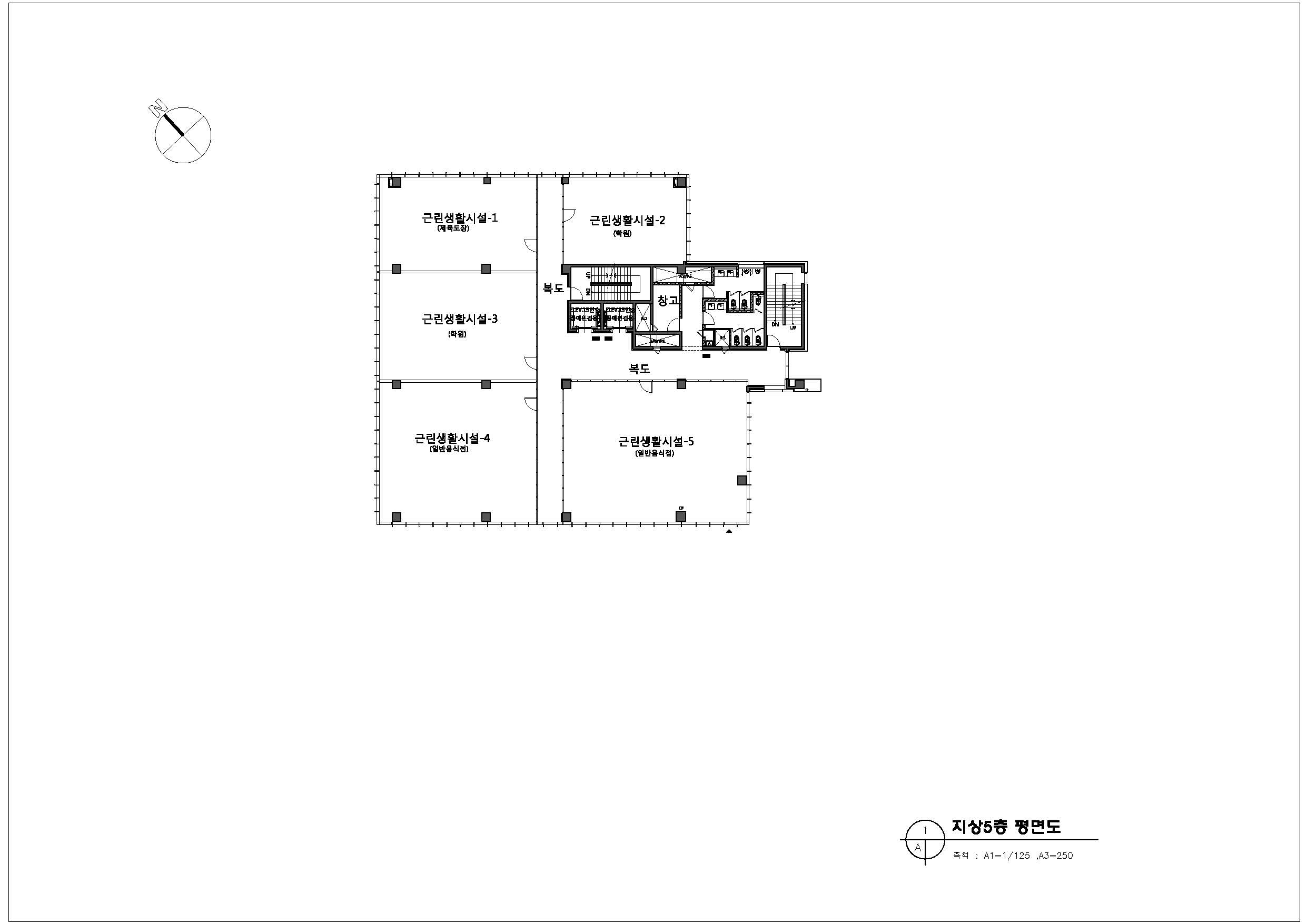
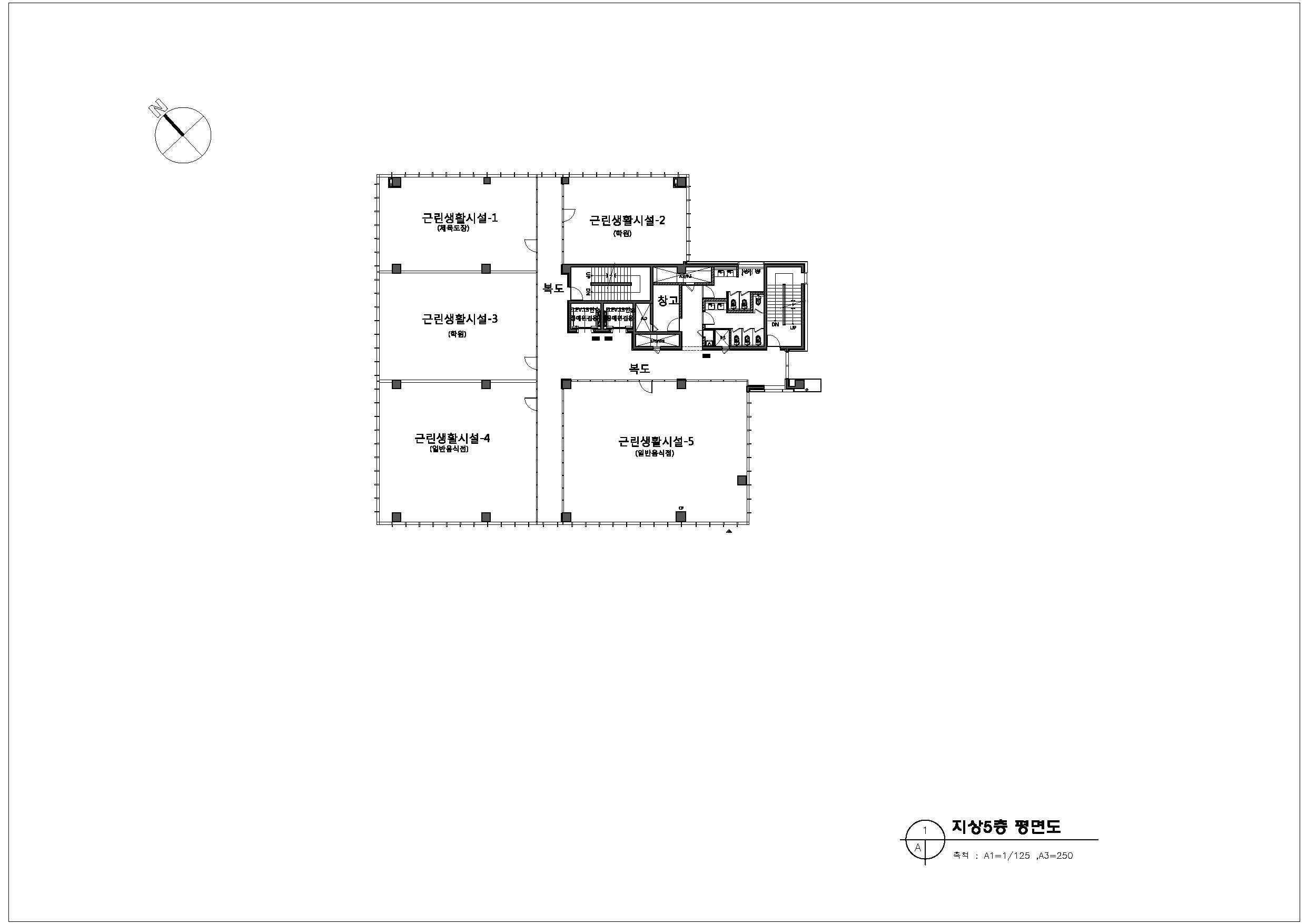
The DGB(Daegu Bank) Office Building, located in the New Town designated for the Relocation of the Gyeongbuk Provincial Government Office, is a project that is part of the First Phase Plan of the Provincial Government Office New Town. It is located in the center of the commercial area, with a residential complex on the north side and administration facilities such as the provincial government office on the east side towards Andong. If you look closely at the master plan of the entire new town, it is located in the center where the city’s central uses are intensively placed. Due to these characteristics specific to the location, there are two urban axes intersecting on the site: The main-axis of the traffic flow that connects to the main administrative facility group, and the sub-axis of the urban expansion that extends from the center to the periphery. Due to these two axes that embrace the flow of the city and the site, the building was intended to create a new commercial space that interconnects the commercial viability of the neighboring commercial buildings within the commercial district with the potential of forming an inter-active square and the public nature of the urban streets. The transparent and glowing glass box, placed on the low-rise solid mass that corresponds to the polygonal-shaped site and the sensation of the speed of the front road, illuminates the city from the center. It is the lighthouse that illuminates the new town as if it were guiding the direction in the dark sea. Architectural practice is always a process of interpreting different contexts surrounding the site, combining the client’s requirements, and creating the result of intense communication that sorts out the corresponding elements from those that do not. In this process, it is always necessary to tune the design between the public nature and commercial viability, and the architect is the conductor in this tuning process.

예천 경북도청이전신도시 대구은행 업무용 빌딩
경북도청이전 신도시 대구은행 업무용 빌딩은 도청 신도시 제1단계 계획에 해당하는 상업지역의 중앙부에 있다. 북측으로는 주거단지 공간이, 동측 안동방면으로는 도청청사를 비롯한 행정 업무시설이 있다. 신도시 전체의 마스터플랜을 가만히 들여다보면, 도시의 중심용도가 집약적으로 배치된 중심부에 있다고 볼 수 있다. 이런 장소적 특성에 의해 부지는 주요 행정시설군과 연결하는 교통흐름의 축(Main-Axis)과, 중심부에서 주변부로 확장되는 도시 확장의 축(Sub-Axis), 이 두 가지 도시 축이 교차하고 있다. 이런 도시의 흐름과 대지를 감싸고 있는 두 가지 축으로 건물은 inter-active Square의 성향을 지닌 상업지역 내 주변상가 건축물의 상업성과 도시 가로의 공공성을 상호연계한 신도시 내의 새로운 상업공간을 만들고자 했다. 다각형의 대지형상과 전면도로의 속도감에 대응하는 저층부의 솔리드한 매스 위에 올린 투명한 빛나는 유리 상자는 중심부에서 도시를 밝히고, 어두운 바다에서 위치를 안내해주는 등대처럼 신도시를 밝히는 등대이다. 건축 작업은 항상 대지를 감싸고 있는 여러 컨텍스트들을 해석하고, 건축주의 요구사항들을 집약하여, 그에 상응하는 요소들과 그렇지 않은 부분들을 선별하는 치열한 의사소통의 결과물을 만들어내는 과정이다. 그 과정 중에서 항상 건축이 가지는 공공성과 상업성 사이에 조율이 필요하고, 건축사는 이 조율 과정의 지휘자이다.




































Architect ARCHITECTS BANSUK ENC │ (주)반석이앤씨건축사사무소
Location Docheong-daero, Homyeong-myeon, Yecheon-gun, Gyeongsangbuk-do, Republic of Korea
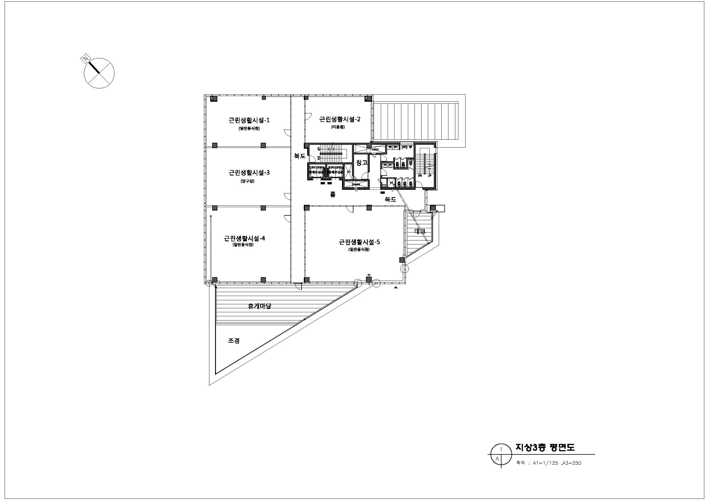
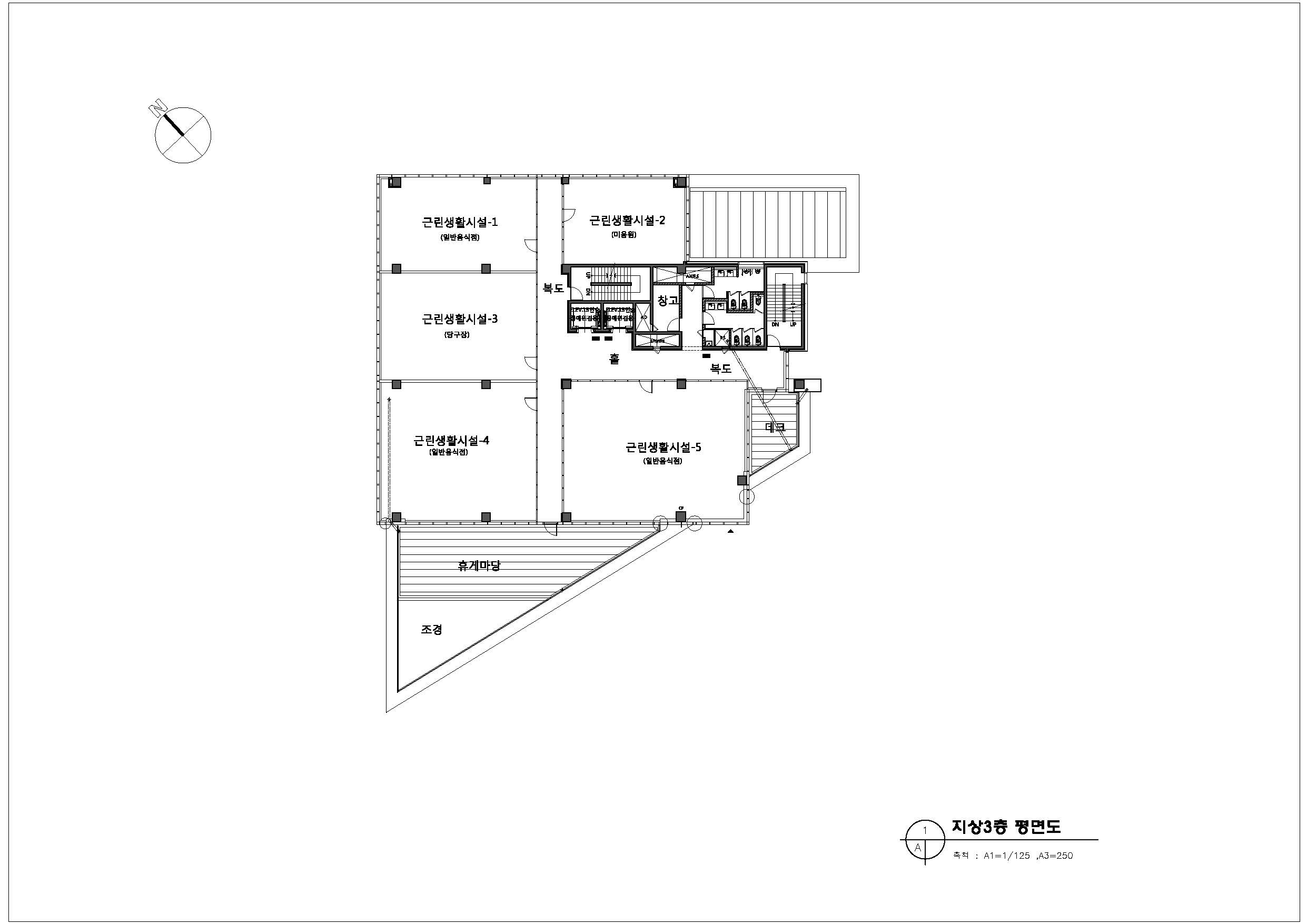
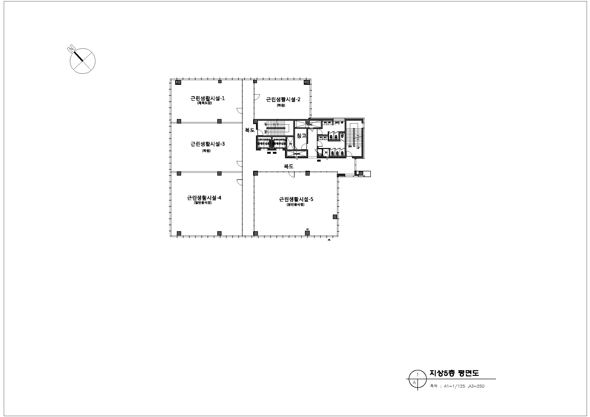
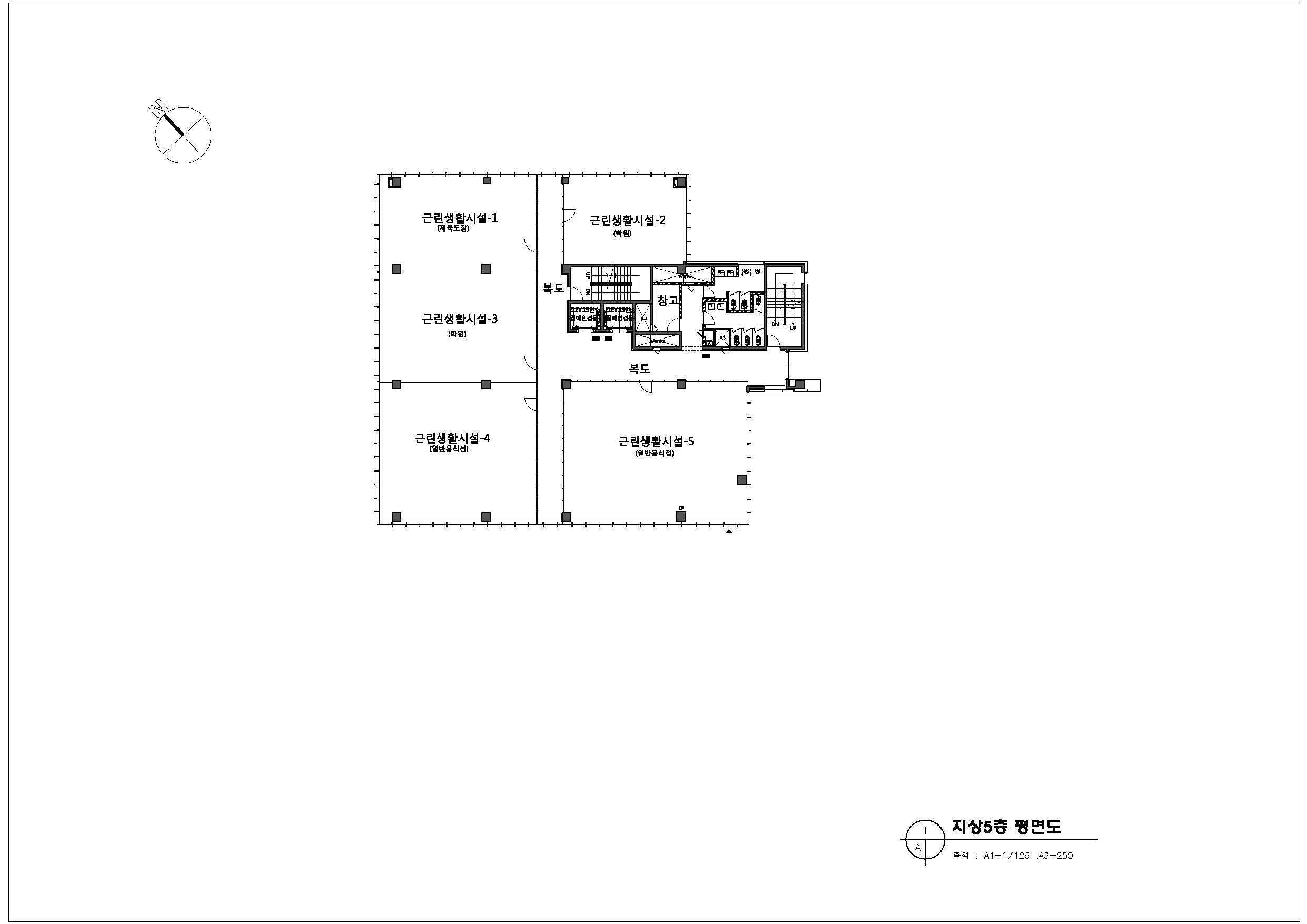
Program Business facility, Mixed-use facility
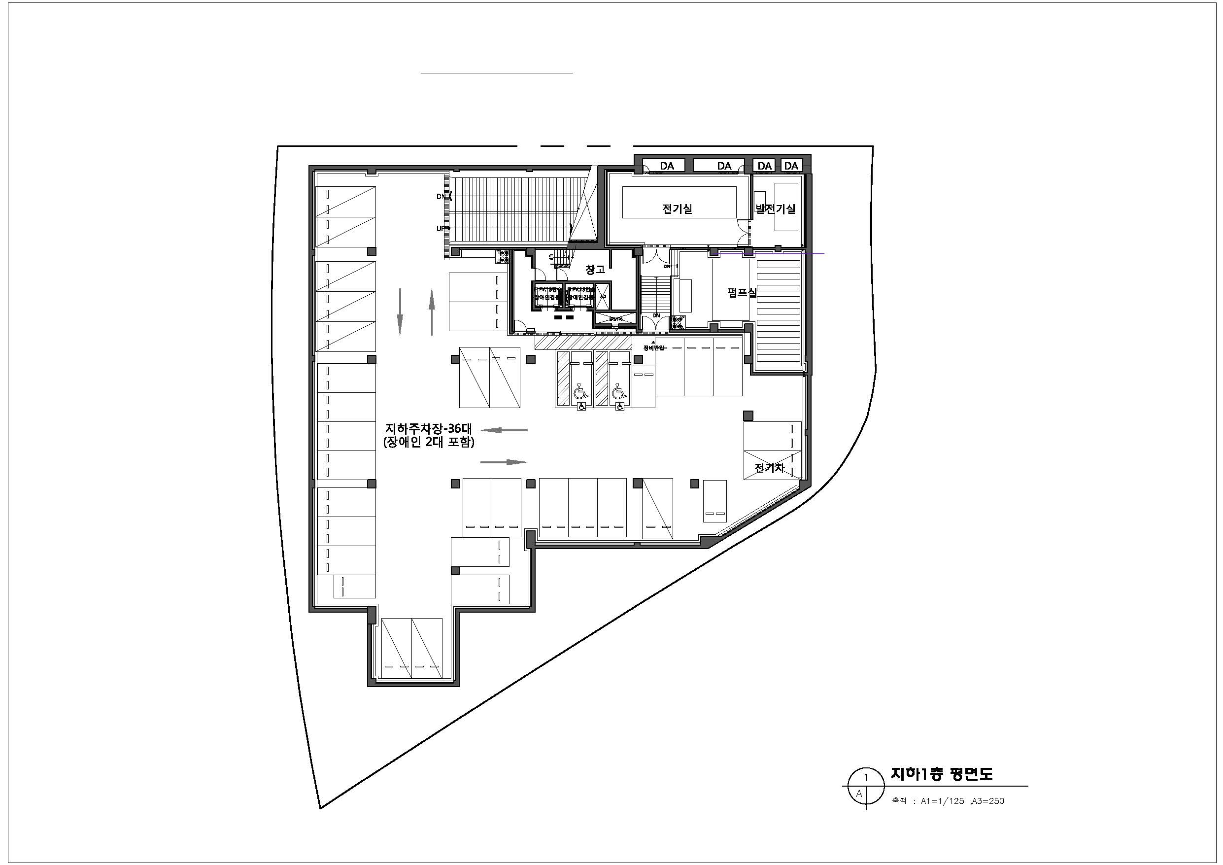
Site area 2,156.70㎡
Building area 1,124.54㎡
Gross floor area 5,766.62㎡
Building scope B1, 5F
Completion 2021. 12
Principal architect Youpyung Kang
Design team Youpyung Kang, Dongmin Kang, Wonsang Lee, Hyeonmin Kang
Client The Daegu Bank, Ltd.
Photographer Yongsu Kim
해당 프로젝트는 건축문화 2022년 8월호(Vol. 495)에 게재되었습니다.
The project was published in the August, 2022 recent projects of the magazine(Vol. 495).
August 2022 : vol. 495
Contents : RECORDS FIVE ARCHITECTS FROM THREE TEAMS SELECTED FOR ‘2022 KOREA YOUNG ARCHITECTS AWARD’ 2022 젊은 건축가상에 선정된 3개 팀, 5명의 건축가들 : NEWS / COMPETITION / BOOKS : SKETCH THE FLASHING ELEMENTS / CRISTINA CORREA FREI
anc.masilwide.com
'Architecture Project > Office' 카테고리의 다른 글
| MASS C&G Office Building in Magok (0) | 2023.01.18 |
|---|---|
| THE WRITER’S CABIN (0) | 2022.12.21 |
| HEUNGKUK TOWER BUSAN (0) | 2022.10.20 |
| WOLBAE MG COMMUNITY CREDIT COOPERATIVES (0) | 2022.10.20 |
| PARTENORD HABITAT HEADQUARTERS (0) | 2022.09.26 |
마실와이드 | 등록번호 : 서울, 아03630 | 등록일자 : 2015년 03월 11일 | 마실와이드 | 발행ㆍ편집인 : 김명규 | 청소년보호책임자 : 최지희 | 발행소 : 서울시 마포구 월드컵로8길 45-8 1층 | 발행일자 : 매일



