
Built in 1991, the main branch of Wolbae MG Community Credit Cooperatives needed a new identity that could respond to the changes of the surrounding environment as 30 years have passed. As the city grew rapidly and expanded along Wolbae-ro, it was becoming a disorderly and expressionless street mixed with its former appearance. To revitalize the desolate street, we hoped that the main branch of Wolbae MG Community Credit Cooperatives would become a space that could be expanded to ‘culture’ and ‘leisure’ beyond the image of a financial facility. It was composed as a space that can become an abundant living community that provides various daily activities, such as academies, lectures, performances, and sports to neighbors and customers.
The appearance of the existing building, such as ‘parallelogram’ and ‘curved corners’, and the scenery of Wolbae-ro became important motifs for the remodeling work. As an architectural solution, we applied ‘modules (3.6mX3.6m)’ to create order in the city, and a three-dimensional facade using ‘light’ was formed to create various expressions on the monotonous city street. In addition, the internal programs were exposed to the outside through vertical and horizontal openings, and part of the entrance was divided using diagonal lines to provide a ‘Seating Space’ to induce pedestrians and users to communicate. For the exterior, ‘white AL panels’ were used to express a reliable and clean image.

1991년에 지어진 월배새마을금고 본점은 30년의 세월이 지나, 주변 환경의 변화에 반응할 수 있는 새로운 아이덴티티가 필요했다. 월배로를 따라 빠르게 성장하며 확장된 도시는 예전의 모습과 혼재되어 무실서하고 무표정한 길거리로 변해가고 있었다. 삭막한 가로에 활력을 주기 위해, 월배새마을금고 본점은 금융시설의 이미지를 넘어 ‘문화’, ‘여가’ 등으로 확장될 수 있는 공간이 되길 바랐다. 이웃주민과 고객에게 아카데미, 강연, 공연, 운동 등 다양한 일상을 제공하는 풍요로운 생활공동체가 될 수 있는 공간으로 구성했다.
‘평행사변형’, ‘곡면 코너’ 등 기존 건축물의 모습과 월배로의 풍경은 리모델링 작업의 중요한 모티브가 되었다. 건축적 해법으로 ‘모듈(3.6mX3.6m)’을 적용해 도시에 질서를 만들고, ‘빛’을 이용해 입체적인 파사드를 만들어 단조로운 도시 가로에 다양한 표정을 만들어냈다. 또한, 내부의 프로그램들이 수직 수평의 개구부를 통해 외부로 드러나고, 입구 일부를 사선으로 나누어 ‘Seating Space’를 제공해 보행자와 이용자들이 소통할 수 있도록 유도했다. 외관은 ‘화이트 AL패널’을 선택해 신뢰할 수 있는 깨끗한 이미지를 표현하고자 했다.



























Architects 건축사사무소 칸 | Architects KANN
Location Dalseogu, Daegu, Republic of Korea
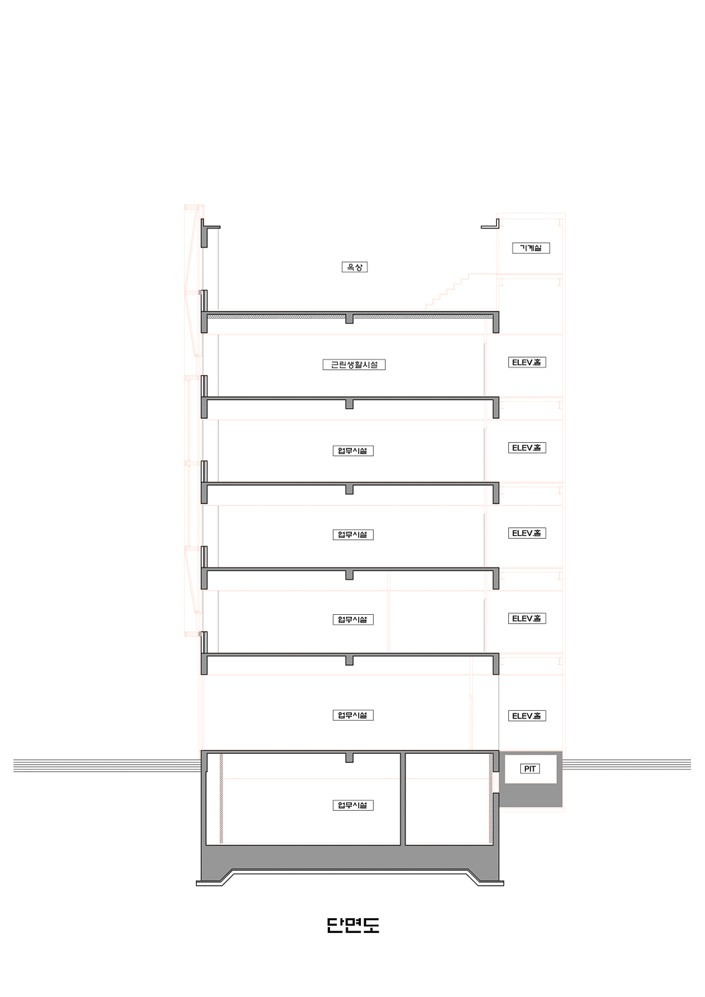
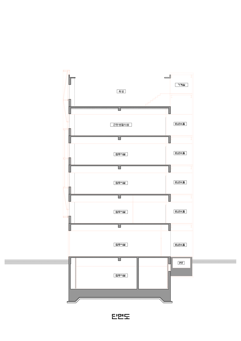
Program Business facility
Site area 280.00㎡
Building area 209.00㎡
Gross floor area 1,241.07㎡
Building scope B1, 5F
Building to land ratio 74.64%
Floor area ratio 371.34%
Completion 2021. 4
Principal architect Chankee Kim
Project architect Sanghoon Cha
Design team ChankeeKim, Sanghoon Cha
Construction Seum. Inc
Client Wolbae MG Community Credit Cooperatives
Photographer Donggyu Yoon
해당 프로젝트는 건축문화 2022년 7월호(Vol. 494)에 게재되었습니다.
The project was published in the July, 2022 recent projects of the magazine(Vol. 494).
July 2022 : vol. 494
Contents : RECORDS I LIVE ALONE AND TOGETHER 나 혼자, 그리고 같이 산다 “SPACE COORDINATOR”, AN EXPERIMENTAL AND INNOVATIVE DISCOURSE THAT REVOLUTIONIZES THE CITY 도시를 새롭게..
anc.masilwide.com
'Architecture Project > Office' 카테고리의 다른 글
| GYEONG-BUK PROVINCIALGOVERNMENT TOWN DGB OFFICE BUILDING (0) | 2022.11.10 |
|---|---|
| HEUNGKUK TOWER BUSAN (0) | 2022.10.20 |
| PARTENORD HABITAT HEADQUARTERS (0) | 2022.09.26 |
| EXTENSION OF THE CONSTITUTIONAL COURT OF KOREA (0) | 2022.09.16 |
| PROGETTO ITALIA (0) | 2022.09.14 |
마실와이드 | 등록번호 : 서울, 아03630 | 등록일자 : 2015년 03월 11일 | 마실와이드 | 발행ㆍ편집인 : 김명규 | 청소년보호책임자 : 최지희 | 발행소 : 서울시 마포구 월드컵로8길 45-8 1층 | 발행일자 : 매일



