
The building site is located directly over a metro station, right next to one of the city’s major radial roads, Evropska, which connects the city centre to the airport. The site has an elevation difference ranging from 7 up to 14 meters and is immediately surrounded by heterogeneous development. In 2012, conscious of the significance and complicated character of the site, the KKCG REG investment company held an international architecture workshop to find a suitable solution for its development. Significant urban development was happening all along the Evropska street during the 20th century. Company headquarters and other imposing buildings were being erected here. For both the developer and the architect it became a common goal to provide local residents with a vibrant urban complex offering amenities, cafes, restaurants and shops - in the form of a refined public space. A tight functional linkage between architecture and public space, serving both local citizens and visitors, was envisioned by the client. The design had to be confident and conscious of the urban context at the same time, responsive to the surrounding development.
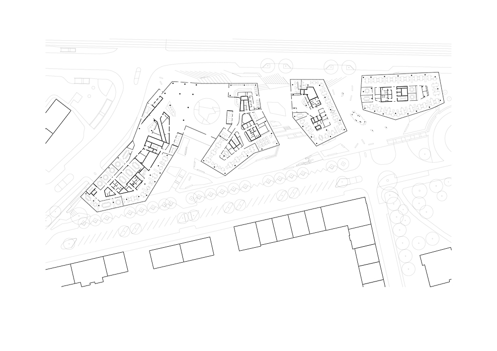
The four individual volumes of the building are shaped according to the fractal self-similarity principle and derived from existing site geometry. This approach generated a responsive building shape changing with the character and elevation of the perimeter streets, while still meeting the demands of the office space typology. The irregular shapes of the volumes are not arbitrary external design features, in fact they match closely the interior layout and the building function. Each of the four volumes is similar to the other ones, and all are bound together in one composition. Carefully assembled from the irregular “crystals”, the form of the permeable city block emerges. The scope of the design went beyond just individual buildings’ aesthetics and rational floor layout - the space around and in between buildings was equally important. The four crystalline volumes stand on a low two-story plinth. The purpose of the plinth is to address the different elevations of neighbouring streets. Narrow alleys and small open spaces are formed between the crystals, reminiscent of the public spaces typical for compact historical city centres. The design also introduces a small “piazzetta”, located at the site of a similar pre-existing historical square. The piazzetta also provides barrier-free access to the whole building complex and the metro station vestibule. A Federico Diaz sculpture underscores the place’s significance. For both the interior and the exterior, the scope of possible movement through the complex could be likened to that of an anthill. Sufficient accuracy of the crystalline shapes could only be achieved with a structural glass facade. Specifying the light transmission characteristics for the glass used for the project made it possible for the outside observer to take in the complex geometry of the buildings, while avoiding, to a large extent, any strong reflections or sun glare, undesirable in the given urban context. For its rainwater management solution, extensive green roofs and the building energy management system (energy recovery from elevators, heat exchanger), among other things, the building complex has been awarded the internationally recognized LEED Gold environmental certificate.

도시 중심부와 공항을 연결하는 에롭스카(Evropska)라는 도시의 주요 방사형 도로 바로 옆에 있는 지하철역 바로 위에 보르지슬라프카 센터가 들어섰다. 이 대지는 7m에서 14m에 이르는 고도차를 가지면서 주변에 이질적인 개발로 둘러싸여 있다. 2012년 KKCG REG 투자회사는 대지의 복잡한 특성을 의식하여 국제건축 워크숍을 개최하여 개발에 적합한 해결책을 모색하였다.
20세기 동안 에롭스카 거리를 따라 상당한 도시 개발이 이루어지고 있었다. 개발업자와 건축가 모두에게, 지역 주민에게 세련된 공공 공간의 형태로 편의 시설, 카페, 레스토랑, 상점을 제공하는 활기찬 도시 단지를 만드는 것에 대한 공통된 목표가 되었다. 의뢰인은 지역 시민과 방문객 모두에게 좋은 서비스를 제공하는 건축과 공공 공간 간의 긴밀한 기능적 연결을 구상했다. 디자인팀은 자신감 있는 동시에 주변 개발에 반응하는 도시적 맥락을 신경써야 했다.
4개의 개별 건물은 차원 분열 도형(프렉탈)의 자기 유사성 원리에 따라 모양이 지정되었으며 기존 대지의 기하학에서 파생되었다. 이 접근 방식은 사무실 공간 유형의 요구 사항을 충족하면서 주변 거리의 특성과 고도에 따라 변화하는 반응형 건물 모양을 생성했다. 볼륨의 불규칙한 모양은 임의의 외부 입면 디자인이 특징이라기보다 실제로 내부 레이아웃과 건물 기능이 밀접하게 일치한다.
4개의 볼륨은 각각 다른 볼륨들과 비슷하며, 모두 하나의 큰 구성으로 묶여 있다. 불규칙한 ‘결정체’에서 조심스럽게 조립된 투과성 도시 블록의 형태가 나타난다. 디자인의 범위에 있어서는 단순히 개별 건물의 미적인 측면과 합리적인 평면 배치를 넘어, 건물 주변과 건물 사이의 공간도 마찬가지로 중요했다. 4개의 볼륨은 낮은 2층의 주탑 위에 세워졌다. 이 주탑의 목적은 주변 이웃의 다양한 고도에 대처하기 위한 것이다. 좁은 골목길과 작은 공터가 결정체 사이에 형성되어 있어, 아담한 역사적 도시의 전형적인 공공 공간을 연상시킨다. 이 디자인은 또한 유사한 역사적 광장의 자리에 위치한 작은 ‘피아제타’를 도입한다. 피아제타는 또한 전체 건물 단지와 지하철역의 구내로 배리어 프리 접근을 제공한다. 프로젝트에 사용된 유리에 대한 투과성과 특성을 지정함으로써 외부 관찰자가 건물의 복잡한 형상을 받아들이는 동시에 주어진 도시 환경에서 바람직하지 않은 강한 반사나 햇빛의 눈부심을 상당 부분 피할 수 있었다. 빗물 관리 방법, 광활한 녹색 자연 지붕, 그리고 빌딩 에너지 관리 시스템(엘리베이터로부터의 에너지 회수, 열 교환기) 등을 통해 LEED Gold 환경 인증도 받았다.

































Architects 아울리크 피셰르 아르히텍티 | Aulik Fišer architekti
Location Prague, Czech Republic
Program Office
Site area 17,00㎡
Building area 10,780㎡
Gross floor area 69,735㎡
Design period 2012 - 2018
Construction period 2018 - 2021
Completion 2021
Principal architect Jan Aulik, Leoš Horak
Project architect Jakub Fišer, Jakub Hemzal, Gabriela Králová, David Zalabák, Alena Sedláková, Petra Coufal Skalická, Eva Maĕkova, Jan Dluhoš Design team Ondřej černy, Petra Mĕrková, Oleksandr Nebozhenko, Vojtĕch štamberg, Kristýna Zámostná
Landscape architect Zdenĕk Sendler
Construction management Ruby Project Management
Contractors Zakladani staveb
Client (KKCG Real Estate Group) Management_Petr Pujman, Otto Koval, Patrik Skala, Petr Pleskač
Photographer BoysPlayNice
May 2022 : vol. 492
Contents : RECORDS THE STORY OF THE CITY THAT PUBLISHERS DREAMED OF, RELEASED 꿈꾸던 도시가 들려주는 이야기, <위대한 계약: 파주, 책, 도시> 개봉 : NEWS / COMPETITION / BOOKS : SK..
anc.masilwide.com
'Architecture Project > Office' 카테고리의 다른 글
| PRIVATE OFFICE (0) | 2022.09.06 |
|---|---|
| WELL LIVING LAB (0) | 2022.09.05 |
| BEEAH HEADQUARTERS (0) | 2022.08.01 |
| IN-CLOUD ROOF (0) | 2022.07.05 |
| 林. PLATE-AU (0) | 2022.07.04 |
마실와이드 | 등록번호 : 서울, 아03630 | 등록일자 : 2015년 03월 11일 | 마실와이드 | 발행ㆍ편집인 : 김명규 | 청소년보호책임자 : 최지희 | 발행소 : 서울시 마포구 월드컵로8길 45-8 1층 | 발행일자 : 매일



