
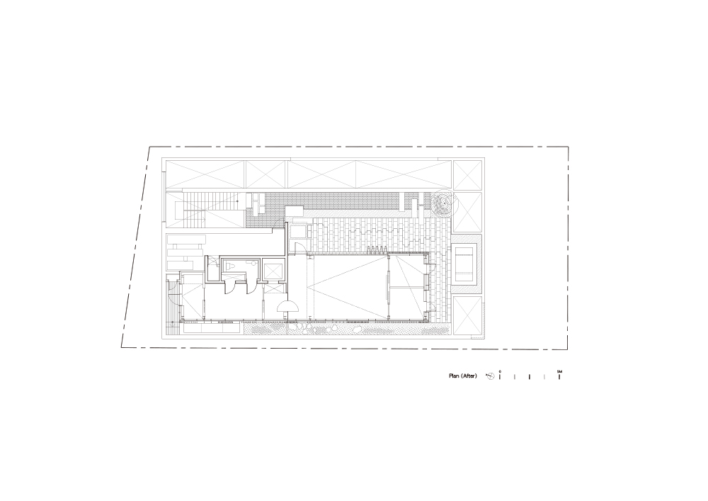
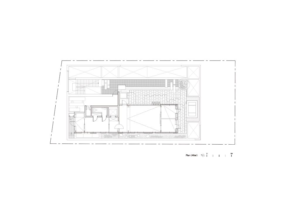
The purpose of this project is to retrofit an empty rooftop into a meeting place or rest area for employees. Previously, it was an empty space served as a garden rooftop and almost no one use it. We hoped to transform the place and bring a new meaning to be used for various purposes.
Roof – Variable Zinc
The rooftop was reborn onto the existing simple and pure white mass that did not stand out but coexisted with its surroundings. Such strange relations with other contexts made it to become a strangely interesting place. The gable roof shapes were twisted to add a sense of unfamiliarity. As for the texture, three different types of zincs were combined together to show different aspects along with the change of time and light. Thanks to such variations, the roof would have a different look all the time in line with it changing surroundings, and the bizarre shape in the middle of the city will make you feel it like a loner. Likewise, we wanted to give a special experience to both bystanders and those who are using the building.
Inside space – Irregular Louver
As for the interior, we intended to use the experience of existing landscape as much as possible. Specifically, the irregular louver was applied to bring various feelings according to the changing shadows of surrounding objects in the hope that such changing aspects of the inside space alongside the changes of time and external environment could bring multiple impressions - strangeness, expectation, excitement, empathy, and others.

기존 건물의 비워진 옥상에 직원들이 편하게 회의하고, 잠시 쉬기도 할 수 있는 공간을 증축 하는 프로젝트이다. 기존의 건물 옥상은 비워진 채 조경만 그 존재를 드러내면서 사용하는 사람이 거의 없는 공간이었다. 그로 인해 옥상은 의미가 없는 장소가 되었고 활용도를 높이기 위해서 새로운 공간이 기획되었다.
Roof - Variable Zinc
주변과 다투지 않고 존재하는 기존의 단순하고 순수한 흰색 매스 위에 새롭게 만들어지는 공간은 주변의 컨텍스트와 이질적으로 관계하면서 낯설고 흥미로운 존재로 드러나길 기대했다. 형태적 낯섦은 박공의 형태를 변형시켜 형태로 만들었고, 재질은 하나의 색이 아니라 시간과 빛에 따라 다양한 모습을 드러낼 수 있도록 세 가지 다른 징크를 조합하여 사용하였다. 이렇게 만들어진 지붕은 주변의 변화에 따라서 매번 다른 모습으로 보여질 것이고 도시의 이질적 형태는 마치 이방인인 것처럼 느껴질 수 있을 것이다. 이것은 보는 사람 그리고 그 공간을 사용하는 사람들 모두에게 특별한 경험이 될 수 있기를 기대한다.
Inside space - Irregular Louver
건축의 내부공간은 기존의 조경을 최대한 경험할 수 있도록 했고 내부 공간은 주변의 변화에 따라 함께 변화하는 그림자가 투영되어 다양한 느낌을 불러일으킬 수 있도록 루버라는 장치를 이용했다. 이것으로 사용자로 하여금 한 공간 안에서 시간과 외부의 환경에 따라 변화하는 형태를 통해 다양한 감정 - 빛이 주는 변화에 대한 낯섦, 기대, 흥분, 공감 등을 불러일으킬 수 있길 바랐다.
























Architects S.E.E.D HAUS │ 씨드하우스
Location Nonhyeon-dong, Gangnam-gu, Seoul, Republic of Korea
Use Office
Site area 614.90㎡
Built area 107.40㎡ (Extension) / Total 364.77㎡
Total floor area 107.40㎡ (Extension.) / Total 1,614.18㎡
Floors 4F(Extension) / Total B2F, 4F
Structure Steel frame
Exterior finish VM Zinc, Alum extrusion louver, Back-paint Glass, Sto
Interior finish Sto, Stone
Design period 2020.12 - 2021.03
Construction period 2021.03 - 2021.07
Architect Sanghoon Baek
Design team Eunjung Baek, Sunghyun Ahn, Heejung Kim
Cooperation Landscape_ Garden In Forest
Construction Fair Design Construction
Photographer Kyung Roh
해당 프로젝트는 건축문화 2022년 4월호(Vol. 491)에 게재되었습니다.
The project was published in the April, 2022 recent projects of the magazine(Vol. 491).
April 2022 : vol. 491
Contents : RECORDS DIÉBÉDO FRANCIS KÉRÉ, WINNER OF THE 2022 PRITZKER ARCHITECTURE PRIZE 2022년 프리츠커 건축상 수상자, 디에베도 프란시스 케레 : NEWS / COMPETITION / BOOKS : SKET..
anc.masilwide.com
'Architecture Project > Office' 카테고리의 다른 글
| BOŘISLAVKA CENTER (0) | 2022.08.03 |
|---|---|
| BEEAH HEADQUARTERS (0) | 2022.08.01 |
| 林. PLATE-AU (0) | 2022.07.04 |
| IN-FILLED VOID (0) | 2022.06.29 |
| WONIK HOLDINGS (0) | 2022.06.28 |
마실와이드 | 등록번호 : 서울, 아03630 | 등록일자 : 2015년 03월 11일 | 마실와이드 | 발행ㆍ편집인 : 김명규 | 청소년보호책임자 : 최지희 | 발행소 : 서울시 마포구 월드컵로8길 45-8 1층 | 발행일자 : 매일



