
Forest (林) symbolizes nature (林), and a plate-au, which is a place borrowed from Mille Plateaux written by philosopher Gilles Deleuze and needs to be re-explored as it changes continuously rather than being fixed, refers to a place that is constantly changing and vibrating by itself as a middle point without its beginning and ending.
White Mass
This project was started with making a relationship with cities through simple forms due to the complex context surrounding architectural sites. The sensibility and freshness of space in pure simplicity that avoids a conflict with the neighboring area as much as possible may bring about excitement, expectation and empathy in people. In addition, the white color of mass intended people to feel invisible light that changes depending on time and environment.
This is the attitude of architecture toward cities, which pursues the idea that feeling space is more important than being seen for architecture.
Program
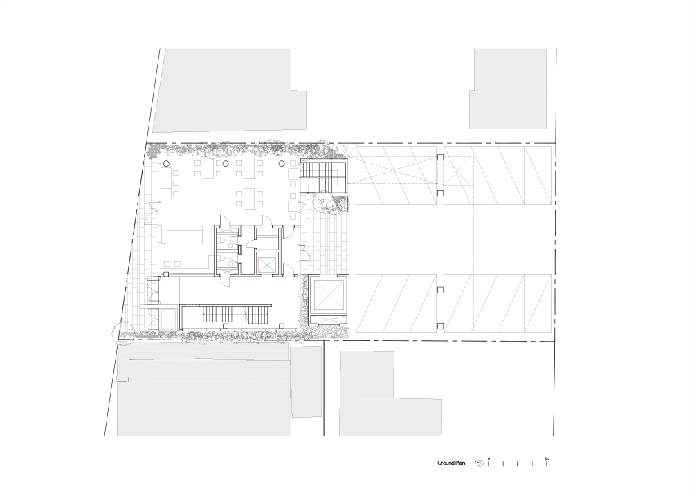
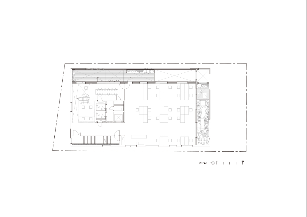
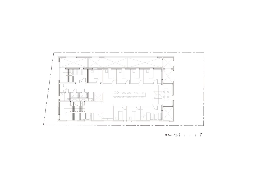
This building was designed as a work space for advertising people. For the purpose of securing functional efficiency and avoiding the overlapping of paths of employees and visitors during shooting, the studio and dressing room are located on the underground floor while office areas for employees are placed on the floors above ground level. At the same time, it needed to design outside spaces for people to take a rest or host an outdoor event.
Open space
Two outside spaces giving impression that is utterly different from each other being separated from the complexity of cities and everyday life, were created inside the building. One space is a garden that mainly consists of stones and water representing primitive nature, and the other is a space composed of a wooden deck and standardized metal plant boxes, wishing for giving rise to various emotions through outdoor areas with different shapes inside a building. Unfamiliarity, expectation, excitement, empathy… of changes caused by nature.
Material
The reflection on building materials was given due to the texture of white color to be affected by light. How can the relationship between artificial materials and natural ones be expressed through stones and bricks that give a rough natural texture to the white Sto? This is, after all, an expression that is meant to be standing at the middle point or boundary between nature and an artificial building. This idea has led to the use of exposed concrete, which has an architectural texture that allows us to feel the natural light best as the interior finishing material.

林은 자연(林)을 상징하고, Plate-au는 들뢰즈라는 철학가의 책 「천개의 고원」에서 차용한 것으로 고정된 곳이 아니라 끊임없이 변화하여 재탐구 되어야 할 곳으로 시작이나 끝에 있지 않은 중간지점으로서 늘 스스로 진동하면서 변화하는 장소를 말한다.
White Mass
이 프로젝트는 대지 주변의 복잡한 컨텍스트로 인해 단순한 형태를 통해 도시와 관계를 맺는 것으로 시작했다. 최대한 주변과 다투지 않는 순수한 단순함 속에 공간이 가지는 감수성, 새로움은 사람들에게 흥분과 기대, 공감을 불러일으킬 수 있을 것이다. 그리고 매스가 가지는 흰색은 시간과 환경에 따라 변화하면서 보이지 않는 빛을 사람들이 느낄 수 있길 바랐다. 이것은 건축이 가지는 도시의 태도이자 건축이 보이는 것이 아니라 공간을 느끼는 것이 더욱 중요하다는 것을 추구하고자 하는 것이다.
Program
이 건축물은 광고를 기획하는 사람들을 위한 공간으로 기획되었다. 지하층은 촬영을 위한 스튜디오 및 분장실, 지상층은 회사 직원들의 업무공간으로 기능적으로 효율적이어야 하면서 촬영할 때 외부 사람들과 직원들이 겹치지 않도록 해야 했다. 그러면서도 곳곳에 사람들을 위한 외부공간을 만들어서 쉴 수 있거나 이벤트를 열 수 있도록 구성해야 했다.
Open Space
건축물 내부에 만든 외부공간은 도시와 일상의 복잡함으로부터 분리시켜 서로 전혀 다른 느낌을 가진 두 개의 공간으로 만들었다. 하나의 공간은 원시적인 자연을 표현한 돌과 물을 바탕으로 한 정원 그리고 다른 하나는 나무데크와 정형화된 금속 플랜트 박스로 구성한 공간으로 이루어졌다. 이것은 한 건축물 안에 다른 형태의 외부공간을 통해, 자연이 만들어낸 변화에 대한 낯섦, 기대, 설렘, 공감과 같은 다양한 감정을 불러일으킬 수 있길 의도한 것이다.
Material
건축의 재료에 대한 고민은 빛에 따른 흰색의 질감에서 비롯되었다. 하얀색의 Sto에 거친 자연적 질감을 줄 수 있는 돌과 벽돌을 통해서 인공적 재료와 자연적 재료의 관계가 어떻게 표현될 수 있는지 보여주고자 했다. 이것은 결국 자연과 인공적인 건축물이 사이에 존재하는 중간지점 혹은 경계에 서있고자 하는 표현이다. 이러한 생각은 내부 마감에 연결되어 자연으로서의 빛을 가장 잘 느낄 수 있게 해주는 건축적 질감으로서 노출콘크리트를 사용하게 됐다.























Architects S.E.E.D HAUS │ 씨드하우스
Location Nonhyeon-dong, Gangnam-gu, Seoul, Republic of Korea
Use Office
Site area 614.90㎡
Built area 364.77㎡
Total floor area 1,506.78㎡
Floors B2F, 3F
Structure Reinforced concrete
Exterior finish Sto, Exposed concrete
Interior finish Exposed concrete, Stone
Design period 2016.06 - 2016.12
Construction period 2017.03 - 2018.11
Architect Sanghoon Baek
Design team Eunjung Baek, Sunghyun Ahn, Jisun Lee, Taeyong Won
Cooperation Interior Design_ Design Laundry, Landscape_ Openness Studio, Garden In Forest
Construction Fair Design Construction
Photographer Kyung Roh
해당 프로젝트는 건축문화 2022년 4월호(Vol. 491)에 게재되었습니다.
The project was published in the April, 2022 recent projects of the magazine(Vol. 491).
April 2022 : vol. 491
Contents : RECORDS DIÉBÉDO FRANCIS KÉRÉ, WINNER OF THE 2022 PRITZKER ARCHITECTURE PRIZE 2022년 프리츠커 건축상 수상자, 디에베도 프란시스 케레 : NEWS / COMPETITION / BOOKS : SKET..
anc.masilwide.com
'Architecture Project > Office' 카테고리의 다른 글
| BEEAH HEADQUARTERS (0) | 2022.08.01 |
|---|---|
| IN-CLOUD ROOF (0) | 2022.07.05 |
| IN-FILLED VOID (0) | 2022.06.29 |
| WONIK HOLDINGS (0) | 2022.06.28 |
| MGB HEADQUARTER (0) | 2022.06.27 |
마실와이드 | 등록번호 : 서울, 아03630 | 등록일자 : 2015년 03월 11일 | 마실와이드 | 발행ㆍ편집인 : 김명규 | 청소년보호책임자 : 최지희 | 발행소 : 서울시 마포구 월드컵로8길 45-8 1층 | 발행일자 : 매일



