
The Cafe Camptong project is designed to transform an old building stood empty for a long time in Apgujeong, Gangnam, a place having the most urban context in Seoul, into a cultural space.
This project began with a consideration about how to build a new relationship between the building with stopped time and isolated spaces and the city.
A building can easily change its shape from a market space of the past into an office of today. If it fails to harmonize with its surrounding environment, however, it would just be one of many that stand there without any meaning.
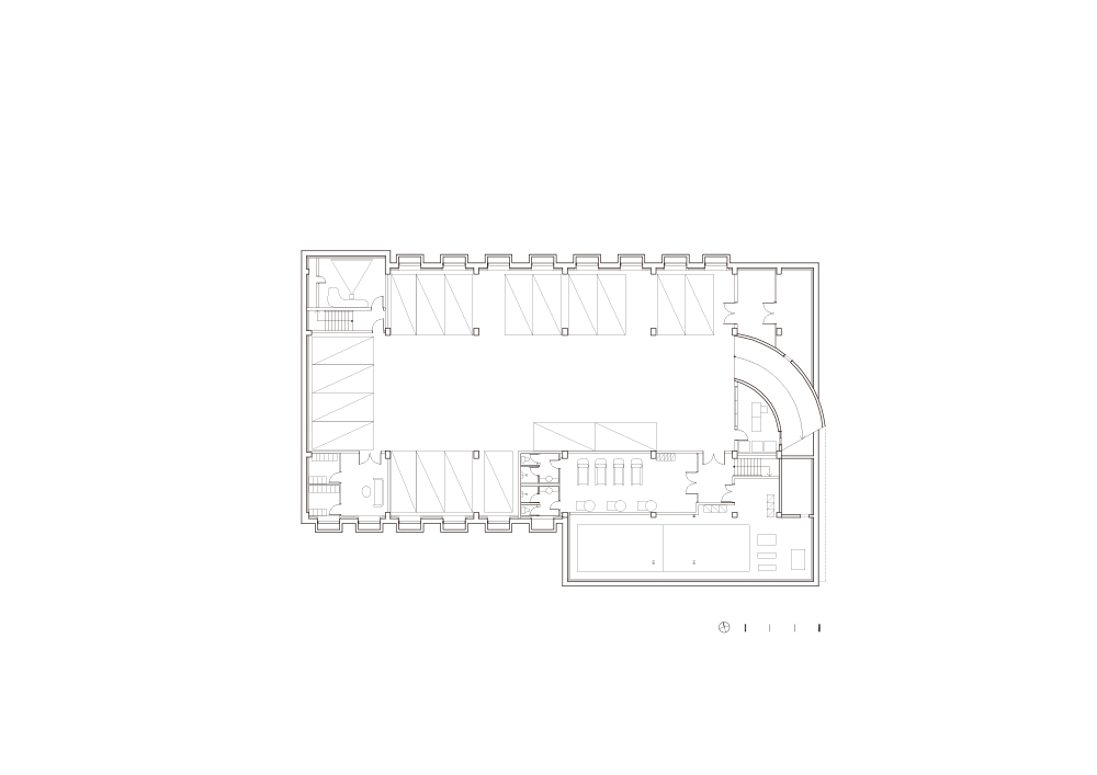
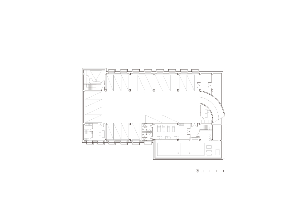
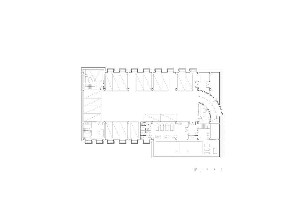
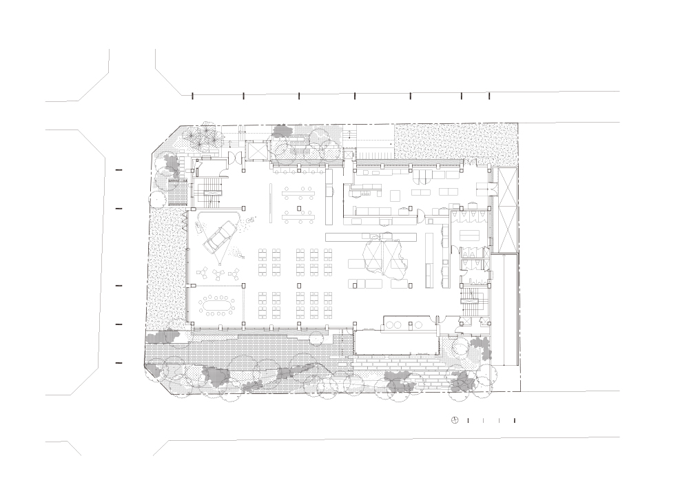
Traces of time and space – Red bricks and concrete
Revealing traces of time by removing old properties added as the time passes... It can be said as a collision with the urban context of today as well as a process of maximizing the gap between the past and present. It would certainly raise much excitement and expectation by showing unfamiliar faces of a city.
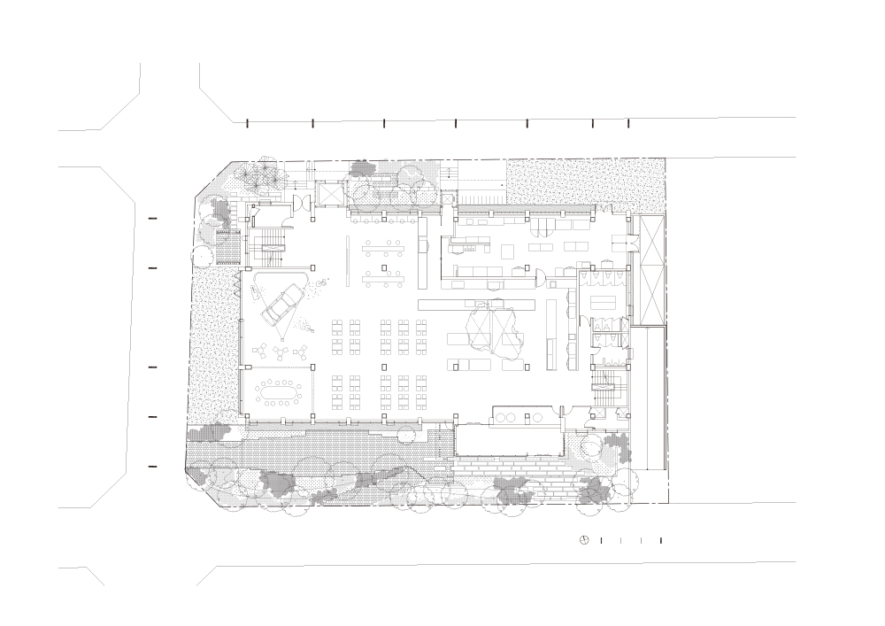
Urban garden – Primitive garden
A primitive garden would be placed outside of the building as if it was there before. It indicates a memory of garden vanished in the city.
A strange feeling, excitement, thrilling, and a sense of harmony presented by the nature in the middle of a city...... The garden will connect the past and present, and serve as a place of the future.
Oxygen house
The piping system to deliver a continuous supply of oxygen into the building is the most critical element in its interior design and a tool that brings completely different emotions to people by separating them from the city and their daily lives. Although unseen, they can breathe it in and feel the entirely different air flowing throughout their whole body as it serves as a tactile design element.
Cafe Camptong will certainly create a gap in mundane life and monotony in urban context by reflecting on the past and rebuilding the nature after its extinction. The supply of oxygen through internal piping will surely provide you with a tactile experience as a tool to maximize the gap.

서울에서 가장 도시적 컨텍스트를 가진 강남 압구정에 오랜 시간 비어있던 건물을 문화 공간으로 계획하는 프로젝트이다. 이 건물의 멈춰진 시간과 고립된 공간을 어떻게 새롭게 도시와 관계 맺을 것인가라는 고민에서 기획은 시작됐다.
과거의 시장공간에서 오피스 공간으로 변화했지만 주변 컨텍스트와 맞지 않는 건물은 사람들에게 존재하지만 존재하지
않는 실체일 뿐이었다.
시간과 공간의 흔적 - 붉은 타일과 콘크리트
시간과 함께 덧붙여진 물성을 벗겨내고 과거의 흔적을 드러내는 것. 이것은 현재 도시의 컨텍스트와의 충돌이자 현재와 과거의 간극을 극대화하는 것이다. 이것은 사람들에게 도시의 낯설음을 통해서 흥분과 기대를 불러일으킬 수 있을 것이다.
도시의 정원 - Primitive Garden
이 건물의 외부에 기존에 마치 존재하던 것 같은 원시적 정원을 계획하였다. 이것은 도시에서 사라진 정원에 기억이라고 할 수 있다. 도시에서의 자연이 주는 낯섦, 기대, 흥분, 공감. 이것은 현재와 과거가 만나는 접점이자 미래를 위한 공간이 될 것이다.
Oxygen House
건물 내부의 산소 공급을 위한 배관. 이것은 내부 공간의 가장 중요한 요소이자 도시와 일상으로부터 사람들을 분리시켜 전 수 있는 촉각적 디자인의 엘레먼트인 것이다. 이렇게 이 건물은 과거의 모습을 드러내고 사라진 자연을 만들어 냄으로 일상의 단조로움 그리고 도시가 가진 획일적 컨텍스트에 하나의 간극을 만들어 낼 것이다. 그리고 내부의 배관을 통한 산소 공급은 이러한 간극을 극대화하는 장치로 사람들에게 촉각적 경험을 줄 것이다.























Architects S.E.E.D HAUS │ 씨드하우스
Location Apgujeong, Gangnam-gu, Seoul, Republic of Korea
Use Commercial facility
Site area 1,656.70㎡
Built area 871.79㎡
Total floor area 3,939.25㎡
Floors B1, 4F
Structure Reinforced concrete, Steel frame
Exterior finish Exposed concrete, Brick, Sto
Interior finish Exposed concrete
Design period 2019. 2 - 2019. 6
Construction period 2019. 7 - 2019. 11
Architect Sanghoon Baek
Design team Eunjung Baek, Sohui Park, Sunghyun Ahn, Hyunwoo Jo, Jisun Lee, Heejung Kim
Cooperation Lighting_ Mavericks, Landscape_ Openness Studio
Construction DAWON ID&C
Photographer Kyung Roh
해당 프로젝트는 건축문화 2022년 4월호(Vol. 491)에 게재되었습니다.
The project was published in the April, 2022 recent projects of the magazine(Vol. 491).
April 2022 : vol. 491
Contents : RECORDS DIÉBÉDO FRANCIS KÉRÉ, WINNER OF THE 2022 PRITZKER ARCHITECTURE PRIZE 2022년 프리츠커 건축상 수상자, 디에베도 프란시스 케레 : NEWS / COMPETITION / BOOKS : SKET..
anc.masilwide.com
'Architecture Project > Office' 카테고리의 다른 글
| IN-CLOUD ROOF (0) | 2022.07.05 |
|---|---|
| 林. PLATE-AU (0) | 2022.07.04 |
| WONIK HOLDINGS (0) | 2022.06.28 |
| MGB HEADQUARTER (0) | 2022.06.27 |
| Sevenlakes Office (0) | 2022.06.15 |
마실와이드 | 등록번호 : 서울, 아03630 | 등록일자 : 2015년 03월 11일 | 마실와이드 | 발행ㆍ편집인 : 김명규 | 청소년보호책임자 : 최지희 | 발행소 : 서울시 마포구 월드컵로8길 45-8 1층 | 발행일자 : 매일



