
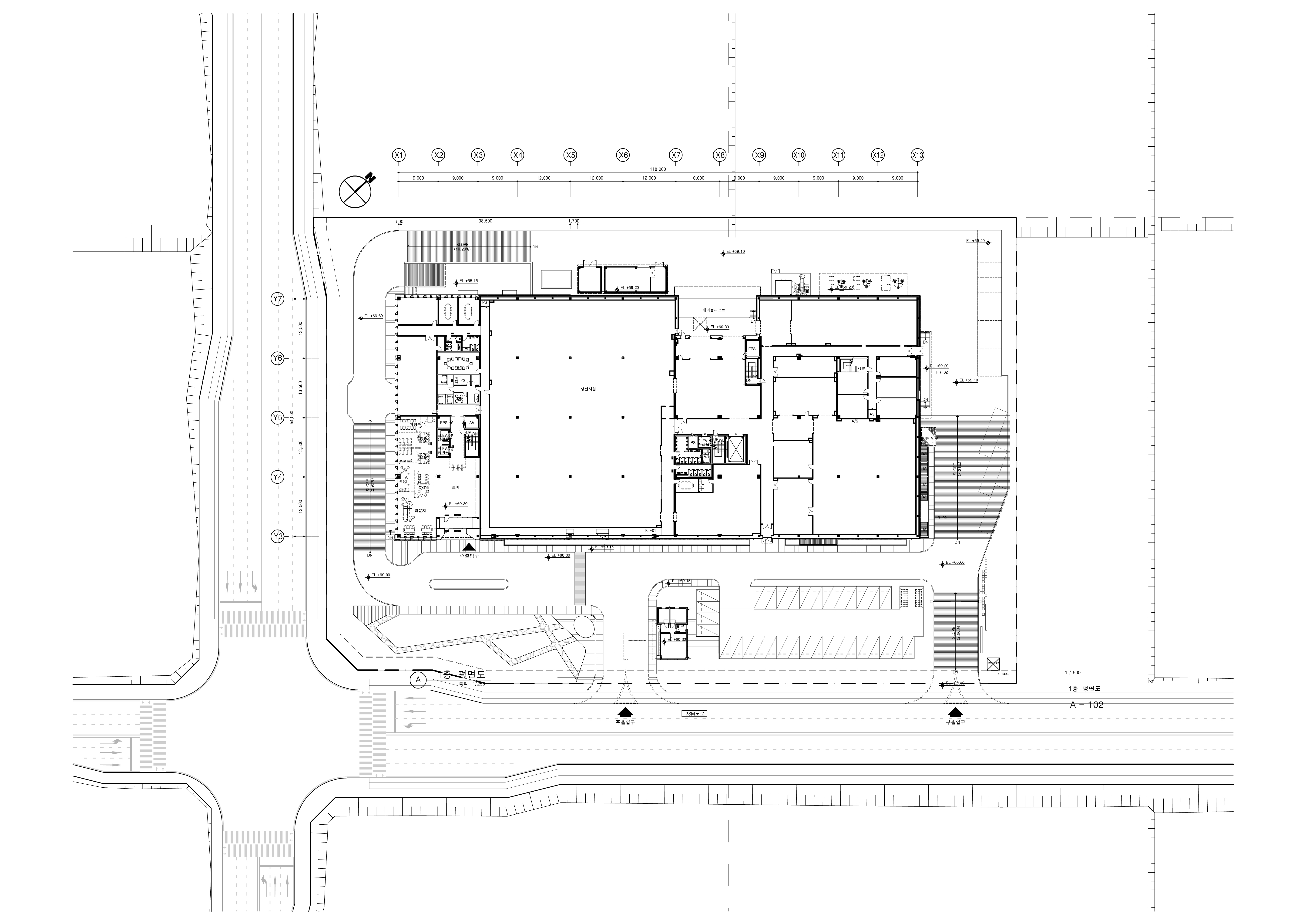
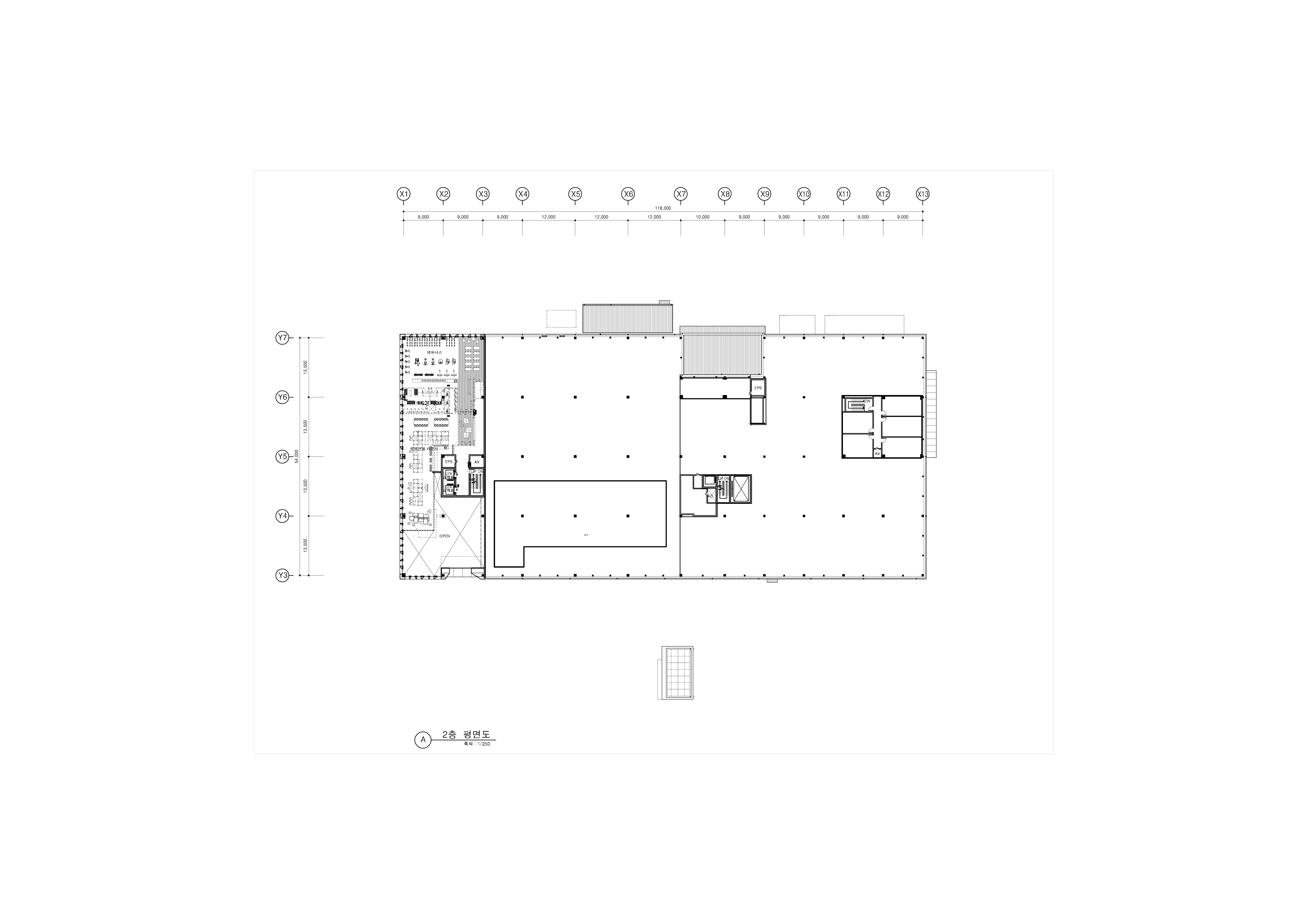
A factory, an industrial facility, is the most typical building with the form that complies with the function. Wonik IPS was also designed as an industrial facility for manufacturing semiconductor equipment. The Production Facility Zone of the factory and the Business Facility Zone for administrative management were put in the same building for efficiency. However, they were required to be clearly distinguished functionally. Production and business facilities are naturally divided, sharing boundaries and forming a vast mass. The main lobby (reception, publicity, meeting, etc.) and the lounge space dedicated to employees (fitness facilities, resting areas, etc.) are created between functionally separated masses. They form a place of communication and exchange between office and production facilities. The office space is characterized by the area of operation to accommodate various types of works, and furniture and space are optimized for the work pattern. The lounge, placed between the spaces, infuses life into the office space that can easily give a rigid feeling to employees and visitors. The external space size for employees had to be limited to secure space for necessary facilities within the limited site. As an alternative, we searched for a way to use the rooftop to fill in the green area the building lacks. It was designed as a rooftop garden for employees to rest and recharge (staff cafeteria, cafe, outdoor deck). It became a place where nature and people meet beyond the limits of the land that lacks green.
Industrial facilities are enormous, and they have a considerable impact on the surrounding environment. On the contrary, the number of applicable building materials and methods is often limited for economic reasons. We had to consider that the available means of expression are limited, but their influence on the surroundings is considerable. We wanted to create a production facility that can have rich expressions even by using economical materials that are always used. As a result, we decided to create the space and facade composed of the shape and intensity of light and the depth and contrast of shadow, applying the elements of time and changing environment to the architectural elevation. In the office area, we increased the depth of the space by using louvers that help control sunlight to create light and shadow. This design naturally made different expressions from the production area. In the production area, we wanted to create continuous shapes and changes of shadow by using the properties of the materials. This wall, less three-dimensional than the office area, contrasted intensively with the office area and created a facade with rich expressions.

기능을 따르는 형태에 입혀진 산업시설의 다양한 얼굴들, 원익홀딩스 진위사업장
원익홀딩스 진위사업장은 반도체 제조 장비를 생산하는 산업시설로서, 기능에 따라 형태가 만들어진 대표적인 건축물이다. 공장의 생산 구역과 업무 구역은 효율을 위해 동일동으로 구성됐으나, 기능에 따라 명확하게 나뉘어 있다. 따라서 생산시설과 업무시설은 경계를 맞댄 채 자연스레 분리되어 하나의 큰 공간을 구성한다. 기능적으로 분리된 영역 사이에 메인 로비(접견, 홍보, 회의 등)와 직원전용 라운지(직원전용 피트니스,휴게공간 등) 공간이 업무시설과 생산시설 사이의 소통과 교류를 담당한다. 업무공간은 다양한 형태의 근무가 가능하도록 영역별로 성격이 부여되어 있으며, 업무패턴에 최적화된 레이아웃과 업무별 영역으로 구분되어 있다. 그 사이사이에 위치한 라운지는 직원들의 업무 중 휴식과 방문객들을 위한 공간이다. 제한된 크기 내에 필요시설의 확보를 위해서 직원을 위한 외부공간은 옥상에 마련되어 있다. 옥상은 직원식당, 카페테리아, 옥외 데크로 계획되었고, 자연과 사람이 만나는 장소이다.
산업시설은 그 크기만큼이나 주변환경에 많은 영향을 준다. 하지만 경제적 논리로 적용할 수 있는 건축 재료와 방안은 제한적인 경우가 많다. 사용 가능한 수단은 제한적이고, 주변에 끼치는 영향은 크므로 그 부분에 대한 고민이 필요했고, 산업시설에 일반적으로 사용되는 자재로 원익홀딩스만의 얼굴이 될 입면을 만들어야 했다. 시간의 흐름과 환경의 변화는 빛의 형태와 세기에 따른 그림자의 깊이와 명암으로 입면에 그대로 투영된다. 사무영역은 일사량 조절에 도움이 되는 루버가 적용됐으며, 이 루버는 사무공간으로 빛과 그림자를 만들어주며 공간의 깊이를 더한다. 이런 디자인은 자연스럽게 생산영역과는 다른 표정을 만들었다. 생산 영역은 재료의 물성이 크게 드러난다. 연속적이면서 잔잔한 그림자는 다채로운 형태로 사무영역과는 강렬하게 대비되는 풍부한 표정을 만들어 낸다.












Architects (주)간삼건축종합건축사사무소 | Gansam co.,LTD
Location Masan-ro, Jinwi-myeon, Pyeongtaek-si, Gyeonggi-do, Republic of Korea
Program Industrial Facilities
Site area 16,528.00㎡
Building area 6,906.28㎡
Gross floor area 24,752.82㎡
Building scope 4F
Design period 2019. 2 - 2020. 6
Construction period 2019. 8 - 2020. 12
Completion 2021. 12
Principal architect Kyonam Chin
Project architect Seunghwan Kong
Design team Seunghwan Kong, Sunghhhon Chung, Dongho Kam, Jinhui Lee, Hojoon Lee
Structural engineer Sen ENG
Mechanical engineer douleng ENG
Electrical engineer Pyeonghwa ENC
Construction SHINWON CONSTRUCTION CO., Ltd.
Client Wonik Holdings
Photographer Dongwook Jung
해당 프로젝트는 건축문화 2022년 4월호(Vol. 491)에 게재되었습니다.
The project was published in the April, 2022 recent projects of the magazine(Vol. 491).
April 2022 : vol. 491
Contents : RECORDS DIÉBÉDO FRANCIS KÉRÉ, WINNER OF THE 2022 PRITZKER ARCHITECTURE PRIZE 2022년 프리츠커 건축상 수상자, 디에베도 프란시스 케레 : NEWS / COMPETITION / BOOKS : SKET..
anc.masilwide.com
간삼건축종합건축사사무소
간삼건축종합건축사사무소는 사람이 살아가는 공간을 만듭니다.
www.gansam.com
'Architecture Project > Office' 카테고리의 다른 글
| 林. PLATE-AU (0) | 2022.07.04 |
|---|---|
| IN-FILLED VOID (0) | 2022.06.29 |
| MGB HEADQUARTER (0) | 2022.06.27 |
| Sevenlakes Office (0) | 2022.06.15 |
| The Field (0) | 2022.06.02 |
마실와이드 | 등록번호 : 서울, 아03630 | 등록일자 : 2015년 03월 11일 | 마실와이드 | 발행ㆍ편집인 : 김명규 | 청소년보호책임자 : 최지희 | 발행소 : 서울시 마포구 월드컵로8길 45-8 1층 | 발행일자 : 매일



