
Background
The project is located at the former site of an aluminum factory in Huli District, Xiamen City. The building was originally a public bath of the factory. In 2019, the building was also partially renovated after the aluminum factory was transformed into a creative office park with multiple business forms, such as bars, basketball arena, and live-streaming space. This time we were commissioned by the Buddha artist Jiang Sheng to renovate the building into a new studio and exhibition space called "The Field".
The word "Elysium" originates from Buddhism, meaning the Western Pure Land of Ultimate Bliss or Sukhavati, but "The Field" is not intended to be an isolated pure land. The owner hopes to abandon the concept of "isolated and unreachable" and create an attractive spiritual place.
Buddha residence
Unlike the previous architecture design, this is a purpose-specific space that will be used to exhibit the JIANGJIABAN Buddha statues after the renovation. Therefore, the design not only needed to reflect humanity, but also to have the divine and religious atmosphere portrayed.
At the beginning of Buddhism, there were no physical subjects for people to rely on. However, with the rise of Mahayana Buddhism and advancement in craftsmanship, Buddhism began to enter the "Age of the Image." Therefore, how to interact with the tangible Buddha statues and architecture to convey the intangible perception has become a great challenge for the design. After the initial communication with the client, we gradually reached an agreement on the design concept: a hidden and even invisible architecture. The building is merely an intermedium to carry the Buddha statues and contain the essence of Buddhism, and is a "residence" for Buddha in the mundane world.
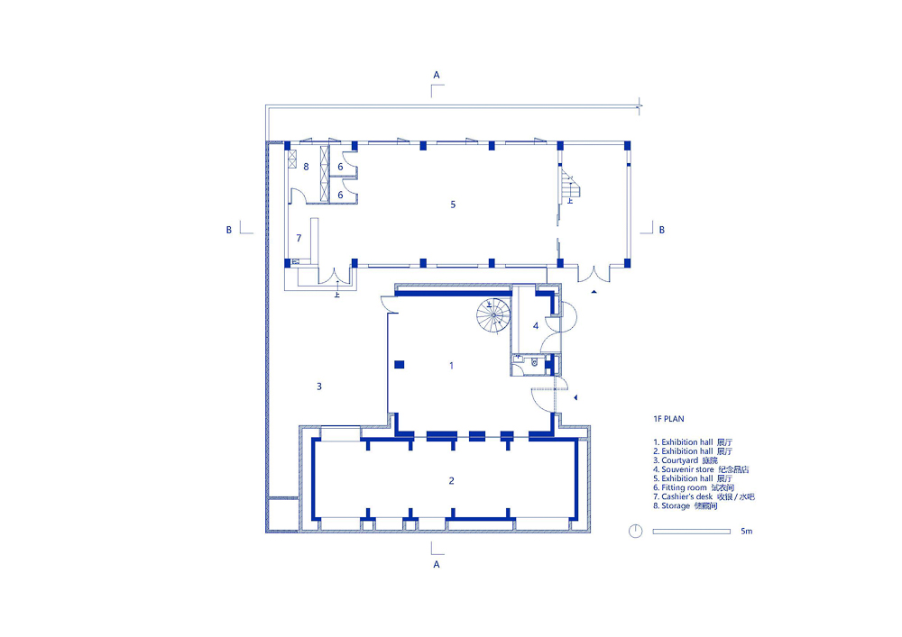
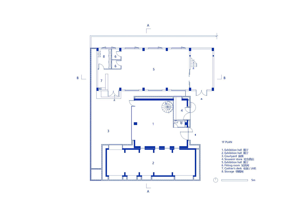
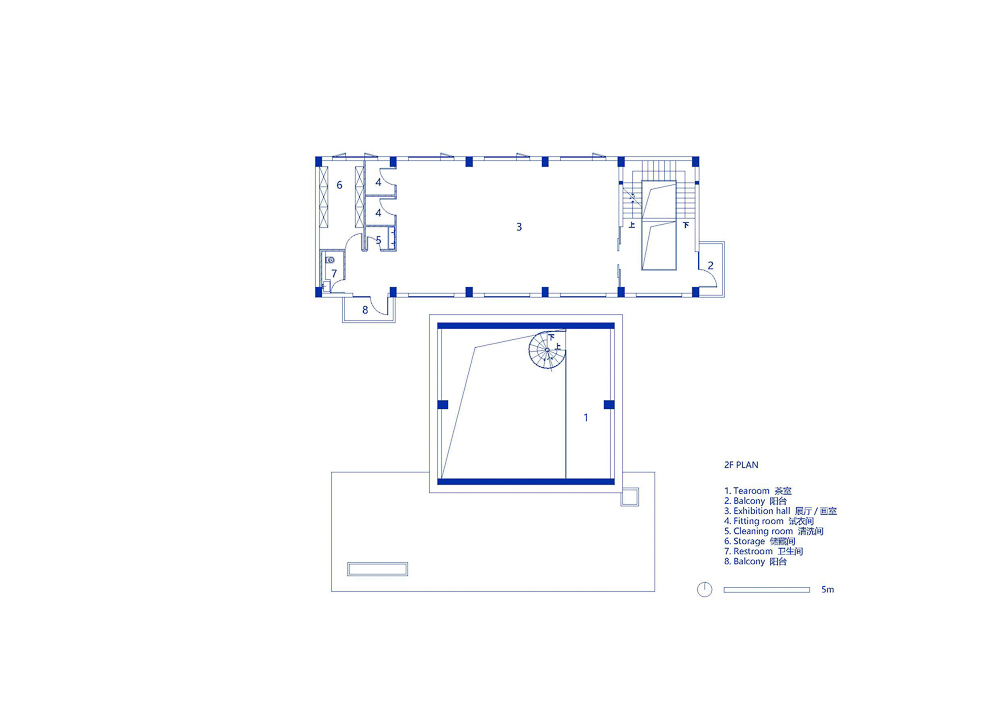
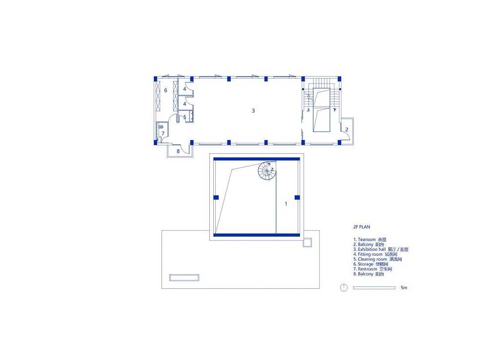
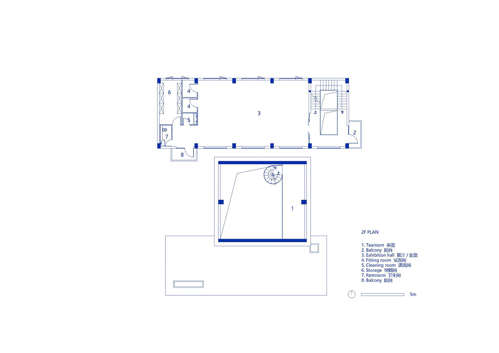
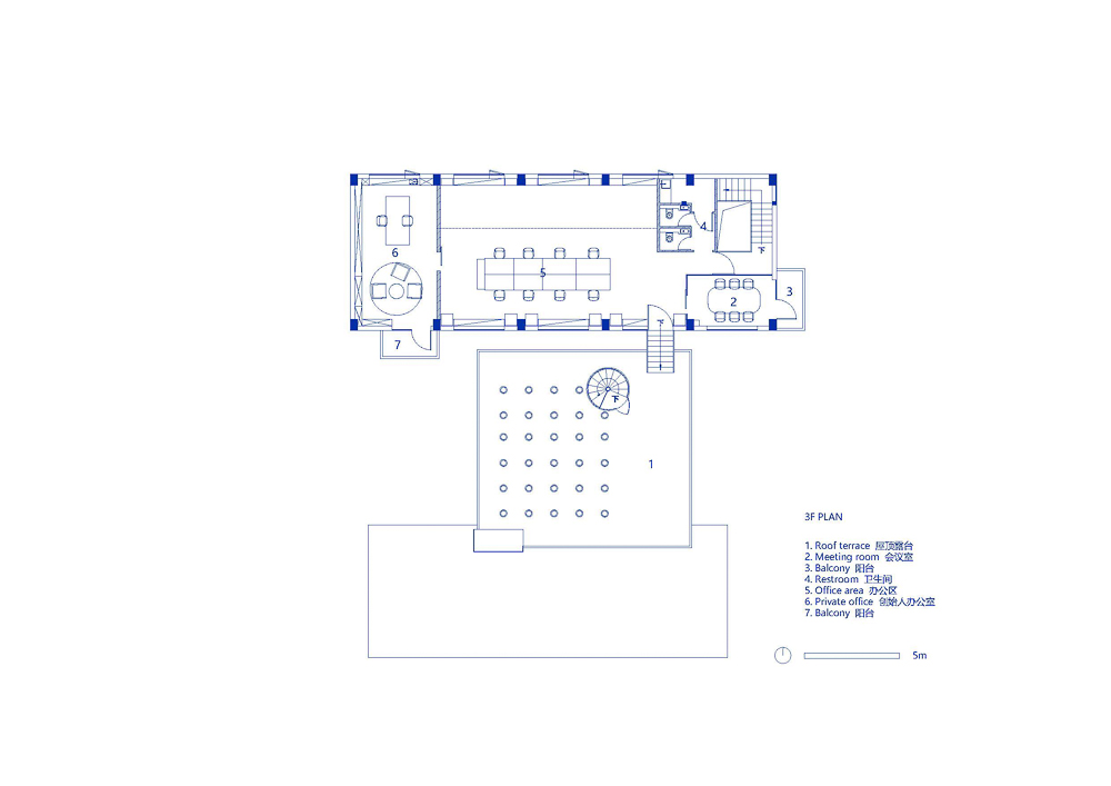
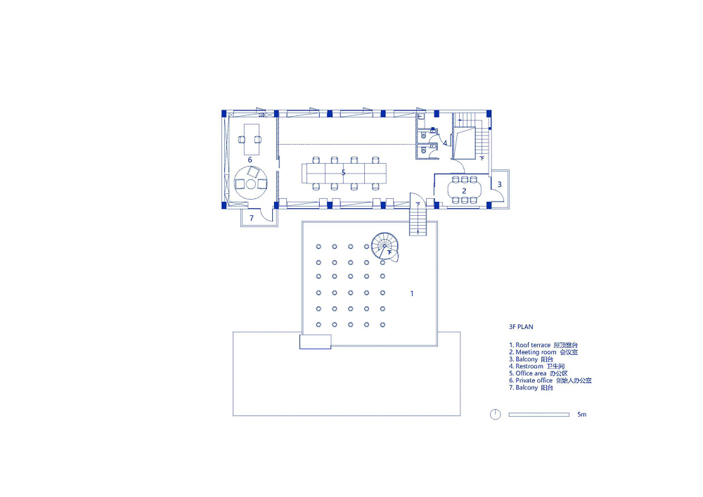
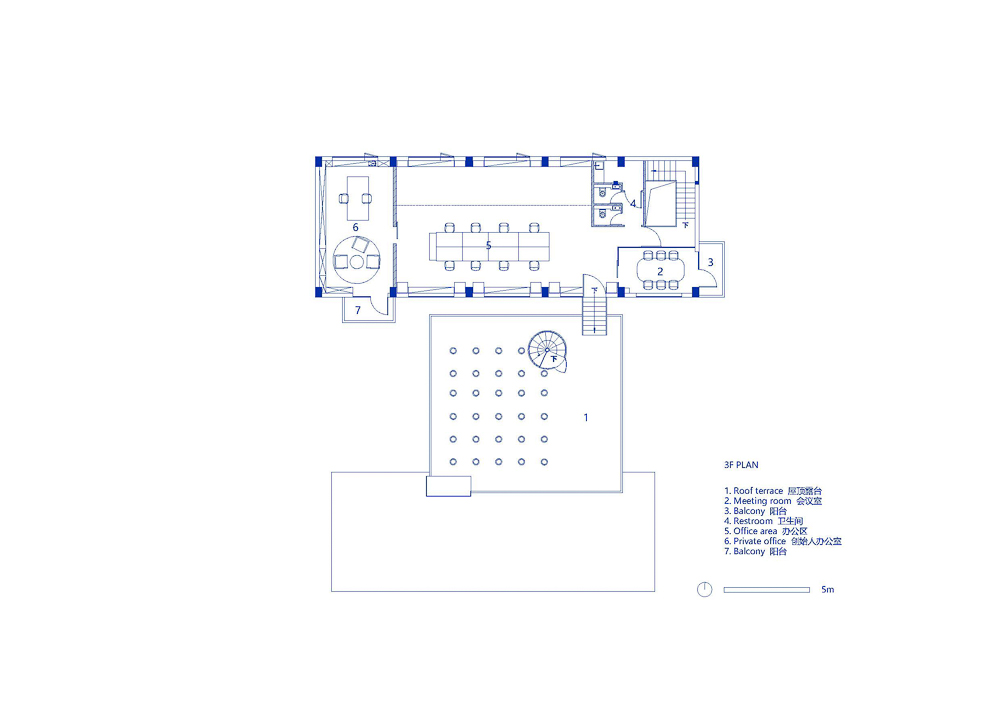
However, the form of the old building is still visible, it consists of three blocks, arranged south to north, shaping a rhythmic stepped form, which we define as Building 1, 2 and 3 according to the number of storeys. Building 1 has many windows on the facade, while the interior is divided into five independent spaces. On the east side of the Building 2, there is a big magnolia tree, and the interior of the building is a double-height space. Building 3 on the north side was previously transformed into an office space with square window arrayed on the facade.
Based on the architectural concept of "the residence of Buddha", we renovated the building from the inside out. First, we blocked up the windows on the façade of Building 1 and 2, and remove the internal walls of Building 1, thus creating a relatively integrated "darkroom", emphasizing an introvert, enclosed atmosphere. In the interior of the exhibition hall, we used a lot of white space and integrated background to conceal the details of architectural components, so that the shape of the Buddha Statues becomes more prominent.
Afterwards, we rearrange and simplified the exterior of the building, making part of the volume solid. The exterior of the building is painted with the same sandalwood yellow color as the interior, and the special texture of the wall was hand-painted by the workers, thus making the three buildings, whose façades were originally different, regain the remarkable integrity and recognition. From a distance, a tall and dense magnolia tree occupies the center of the sight, and the building appears more obscured under the cover of the canopy, becoming more subtle and restrained, seemingly absent.
Vessel of light
Light is functioned as the fundamental component of "The Field", with architectural form blended into it.
Xiamen is located in Southeast coast of China, with plenty of sunshine and rain. The local traditional buildings all used large slope roofs and small window openings according to local conditions. Inspired by this, we added 31 skylights on top of the building, either round or square, in arrays or isolated, to let the omnipresent light fill in and create two kinds of spaces: a "bright" main hall and a "closed" dark room, where the Buddha statues are also placed according to the light and dark environment.
The 28 circular skylights at the top of the main hall are recessed upwards, appearing as flat spots of light when the sunlight is oblique, and as dense "rain of light" when the sunlight is direct. The Buddha statues in the main hall are mainly carved from dense materials such as wood and stone, and when the light hits them, the light and shadow of the statues constantly change according to the angle of sunlight.
The one-story space connected to the south of the main hall is the “dark room”. We opened two square skylights of different sizes at the top of the dark room and a horizontal strip window at the bottom of one wall. Compared to the main hall, the light in the dark room is more diffuse and hazy, so the Buddha statues in the dark room are made of transparent materials such as glaze and jade. Under the reflection of light and shadow, the edges of the Buddha's image are blurred, sometimes resulting in a Zen state of "rainbowing".
At different times of the day throughout the year, by "capturing" the light, the invisible time is also revealed. Time flows silently, elaborating the artistic conception of "eternal" and "constant" together with the Buddha statues settled here.
Journey to the Pure Land under the Magnolia Tree
When we first surveyed the site, we were amazed by the huge magnolia tree on the east side of the building. At that time, we did not identify the tree species, but just protect the tree as much as possible during the design process to make it a landmark for the entire project. However, when the design is completed and half of the construction is finished, the magnolia tree which is the same age as the site blossomed inadvertently. We were pleasantly surprised to find that the fragrant aroma of magnolia could still be felt even indoors.
After the renovation, the magnolia tree is like a dharma-vessel of the " The Field ". The simple building forms became more obscured under the cover of the dense canopy. The renovation of the windows and doors alongside the street facade enclosed the internal spaces, adding a bit of intriguing interest to the architecture.
Guided by the magnolia tree, visitors bypass the wall and enter the exhibition hall through the revolving door under the canopy. After arriving at a low foyer, the space automatically guided the circulation into the double-height exhibition hall by the "rain of light" formed by the arrays of round skylights. There is a floor-to-ceiling windows on one side of the main hall connecting to the courtyard, blurring the boundary between indoors and outdoors as much as possible. On the south side of the main hall, four doorways lead to the one-story "dark room" that separates the light from the dark in an orderly fashion.
In one corner of the main exhibition hall, a spiral staircase leads vertically upward to the roof terrace, where the magnolia tree is just close at hand reach, and the fragrance of leaves and flowers welcomes you.
An outdoor staircase was added to a corner of the terrace to connect the Buildings 2 and 3. To improve the sense of space and transparency in the office area, we removed the thick elevator shaft walls and added a skylight at the top of the stairwell. A vertical stairwell with changing light and shadow leads down to the fashion showrooms and workshops on the first and second floors of the office building.
The entire building is connected as the "magnolia tree - Buddha statues and light - roof terrace - office space - fashion showroom - magnolia tree" route, forming a cyclical circulation in and out the building. The magnolia tree guides and speaks within the circulation, which is both the start and the end of it.

배경
이 프로젝트는 샤먼시(Xiamen) 후리(Huli)지역의 알루미늄 공장 부지에 위치해 있다. 이 건물은 원래 그 공장 내의 공중목욕탕이었다. 2019년 알루미늄 공장이 술집, 농구장, 라이브스트리밍 공간 등 복합 비즈니스 형태를 갖춘 창조적 오피스파크로 탈바꿈한 뒤 건물도 일부 개조됐다. 이번에 부처 예술가 장성(Jiang Sheng)으로부터 설계를 의뢰받아 건물을 ‘더 필드(The field)’라는 새로운 스튜디오와 전시 공간으로 개조하게 되었다.
‘엘리시움(Elysium)’은 불교에서 유래된 말로 궁극의 청복의 서역, 수카바티라는 뜻이지만, ‘더 필드’는 고립된 순수한 땅을 의미하지는 않는다. 건축주는 “고립되고 도달할 수 없는” 개념을 버리고 매력적인 영적인 장소를 만들기를 희망했다.
부처의 거주지
기존 건축 디자인과 달리 더 필드는 리노베이션 후 장자반 불상 전시라는 특별한 목적이 있는 공간이다. 따라서 디자인은 인간성을 반영할 뿐만 아니라 신성하고 종교적인 분위기를 묘사할 필요가 있었다.
불교 초기에는 사람들이 의지할 대상이 없었다. 그러나 대승불교의 발흥과 함께 공예가 발전하면서 불교는 ‘상상시대’로 접어들기 시작했다. 따라서 ‘불상의 유형이 건축물과 어떻게 상호작용하여 무형의 인식을 전달할 것인가’가 큰 과제가 되었다. 건축주와 처음 소통한 후, 우리는 ‘숨겨져 있고, 심지어 보이지도 않는 건물’이라는 콘셉트를 정했다. 건물은 불상을 담는 중간 매개체에 불과하며, 불교의 정수를 담고 있는 곳으로 세속세계에서 ‘부처가 거주하는 곳’이다.
오래된 건물의 형태는 여전히 볼 수 있다. 남쪽에서 북쪽으로 배열된 3개의 블록으로 구성되어 리드미컬한 계단 형태를 이루고 있는데, 우리는 이것을 층수에 따라 건물 1, 2, 3으로 정의한다. 1관은 정면에 창문이 많고, 내부는 5개의 독립된 공간으로 구분되어 있다. 2관 동쪽에는 큰 목련 나무가 있고, 건물 내부는 2층 높이의 공간이다. 북쪽의 3관 건물은 정면에 정사각형 창문이 배열된 사무실 공간으로 변형되었다.
“부처의 거주공간”이라는 건축 개념을 바탕으로 건물 외부부터 내부까지 새롭게 단장했다. 먼저 건물 1관과 2관의 전면 유리창을 막고 건물 1관의 내벽을 제거해 비교적 통합된 ‘암실’을 만들어 내향적이고 폐쇄적인 분위기를 강조했다. 전시장 내부에는 흰색의 공간과 통합적인 배경을 많이 활용하여 건축 구성요소의 디테일을 감춰 불상의 형상이 더욱 돋보이게 했다.
그 후 건물의 외부를 재배치하면서 단순화했고, 볼륨의 일부를 솔리드로 만들었다. 건물의 외부는 내부와 동일한 백단향 노란색으로 도색했으며, 벽의 특수한 질감은 작업자가 수작업으로 칠해 파사드가 달랐던 세 건물의 놀라운 무결성과 인지성을 되찾았다. 멀리서 보면 높고 울창한 목련나무가 시야의 중심을 차지하고 있는데, 건물은 캐노피 아래에 더 가려져 있어, 보이지 않는 듯 은은하고 절제되어 있다.
빛의 그릇
빛은 건축적 형태가 혼합된 “더 필드”의 기본 구성 요소로 기능한다.
샤먼은 중국 남동부 해안에 있으며, 일조량이 많고 비가 많이 오는 지역이다. 현지 전통 건축물은 모두 현지 조건에 따라 큰 경사 지붕과 작은 크기의 창을 가지고 있다. 이에 영감을 받아 건물 상단에 원형 또는 정사각형의 31개의 채광창을 거리를 두고 배치하여 편재하는 빛을 채우고 ‘밝은’ 본당과 ‘닫힌’ 어두운 방 두 종류의 공간을 만들었으며 명암에 따라 불상을 배치했다.
대청 위쪽의 원형 채광창 28개는 햇빛이 비스듬히 비칠 때는 평평한 빛의 반점으로, 직사광선이 비치는 곳에서는 짙은 ‘빛의 비’로 보인다. 대청에 있는 불상은 주로 나무와 돌 등 촘촘한 재료로 조각되어 있는데, 빛이 닿으면 햇빛의 각도에 따라 불상의 빛과 그림자가 끊임없이 바뀐다.
본당 남쪽과 연결된 1층 공간은 ‘어두운 방’이다. 어두운 방 꼭대기에는 크기가 다른 네모난 채광창 두 개와 한쪽 벽 아래에는 가로창을 두었다. 대청에 비해 어두운 방의 불빛은 더 산란하고 흐릿하여 어두운 방에 있는 불상은 유약과 옥과 같은 투명한 재료로 만들어졌다. 빛과 그림자가 반사되어 불상의 가장자리가 흐릿해지며, 때로는 선한 ‘무지개’ 상태가 되기도 한다.
일 년 내내, 그리고 하루에서도 다른 시간에 빛을 ‘포착’함으로써 보이지 않는 시간도 드러나기 마련이다. 시간은 조용히 흐르며 이곳에 안치된 불상과 함께 ‘영원’과 ‘불변’의 예술적 개념을 정교하게 표현하고 있다.
목련 나무 아래 순수한 땅으로의 여행
처음 현장을 조사했을 때, 건물 동쪽에 있는 거대한 목련 나무를 보고 놀랐다. 당시에는 나무의 종류를 파악하지 않고 설계 과정에서 최대한 나무를 보호해서 전체 프로젝트의 랜드마크로 만들 수 있도록 했다. 그러나 설계가 완성되고 절반의 공사가 끝나자 땅만큼 나이가 많은 목련 나무에 꽃이 피었다. 우리는 목련의 향긋한 향기가 실내에서도 여전히 느껴진다는 사실에 기분 좋게 놀랐다.
개축 후 목련 나무는 마치 ‘더 필드’의 달마 그릇과 같다. 빽빽한 캐노피 아래에서 단순한 건물 형태가 더욱 가려졌다. 거리의 파사드를 따라 창과 문을 개조한 것이 내부 공간을 감싸고 있어 건축에 흥미를 더했다.
방문객들은 목련 나무의 안내를 받으며 벽을 지나 캐노피 아래 회전문을 통해 전시장으로 들어간다. 낮은 로비에 도착하면, 늘어선 원형 채광창이 만든 ‘빛의 비’가 층고가 높은 전시장으로 자연스레 안내한다. 안뜰과 연결되는 메인 홀의 한쪽 면은 천장부터 바닥까지 내려오는 대형 창문을 두어 실내와 실외의 경계를 최대한 흐리게 했다. 메인 홀의 남쪽에는 4개의 출입구가 있어 빛과 어둠을 질서정연하게 구분하는 1층짜리 ‘어두운 방’으로 이어진다.
메인 전시장 한쪽 모퉁이의 나선형 계단으로 올라가면 옥상 테라스로 이어지는데, 목련 나무가 가까이에 있어 나뭇잎과 꽃향기가 방문객을 반긴다.
또한, 건물 2관과 3관을 연결하기 위해 테라스 모서리에 야외 계단을 추가했다. 사무실은 공간의 공간감과 투명성을 향상시키기 위해 두꺼운 엘리베이터 샤프트 벽을 제거하고 계단실 상단에 채광창을 추가했다. 빛과 그림자가 변화하는 수직 계단은 사무실 건물의 1층과 2층에 있는 패션쇼룸과 워크숍룸으로 이어진다.
건물 전체가 ‘목련 나무-불상과 빛-옥상 테라스-사무공간-쇼룸-목련 나무’ 순으로 연결돼 건물 안팎으로 동선의 순환을 이루고 있다. 여기서 목련 나무는 이러한 동선의 시작이자 끝임을 알려주는 존재이다.





































Architects TEAM_BLDG
Location Chaoyang, Beijing, China
Program Exhibition, Office & Retail
Built area 842㎡
Design period 2019. 11 - 2020. 2
Construction period finish 2020. 2 - 6
Project architect Xiao Lei, Yang Yuqiong, Lin Wenjun, Wang Han
Photographer Jonathan Leijonhufvud
해당 프로젝트는 건축문화 2022년 3월호(Vol. 490)에 게재되었습니다.
The project was published in the March, 2022 recent projects of the magazine(Vol. 490).
March 2022 : vol. 490
Contents : RECORDS THE BEGINNING OF THE JOURNEY TO THE MUSEUM OF ART IN THE FOREST, 《MMCA GWACHEON PROJECT 2021: ART BUS SHELTER》 숲 속 미술관으로 가는 여정의 시작, 《MMCA 과천프로젝트 2..
anc.masilwide.com
'Architecture Project > Office' 카테고리의 다른 글
| MGB HEADQUARTER (0) | 2022.06.27 |
|---|---|
| Sevenlakes Office (0) | 2022.06.15 |
| PICCOLO HOUSE (0) | 2022.05.16 |
| THEAR (0) | 2022.04.29 |
| TOKYO TORCH Tokiwabashi Tower (0) | 2022.04.19 |
마실와이드 | 등록번호 : 서울, 아03630 | 등록일자 : 2015년 03월 11일 | 마실와이드 | 발행ㆍ편집인 : 김명규 | 청소년보호책임자 : 최지희 | 발행소 : 서울시 마포구 월드컵로8길 45-8 1층 | 발행일자 : 매일



