
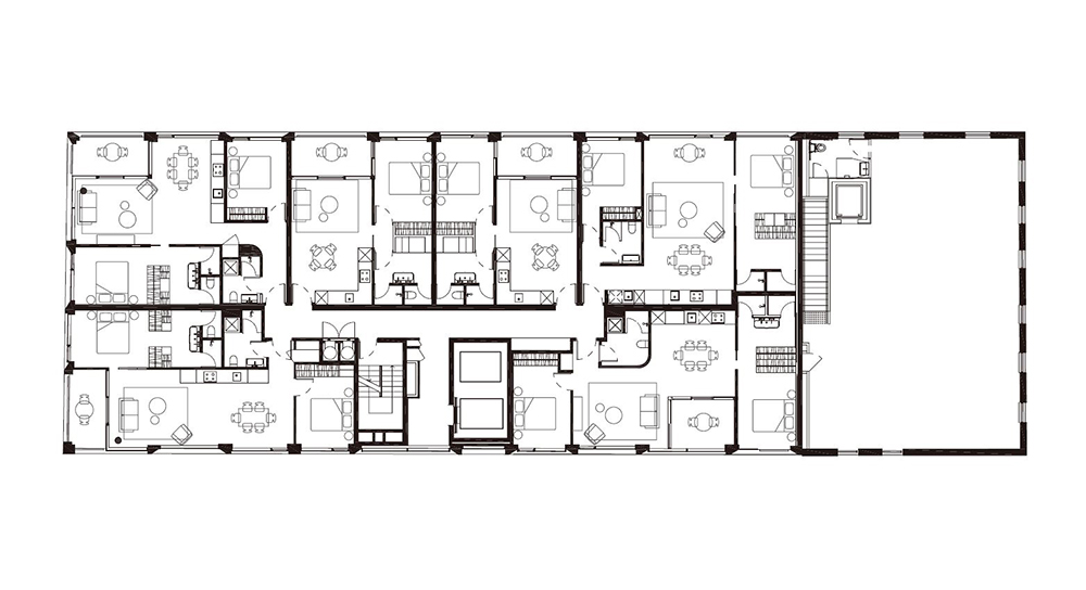
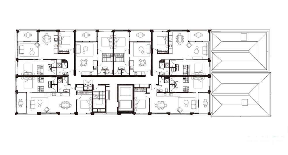
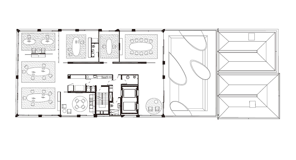
The Piccolo House is a multi-use building, the development encompasses retail, hospitality, commercial and luxury multi-residential into one unified concept. It is also new headquarters by Piccolo. Emerging from its heritage legacy below, Piccolo House is spurred by its contextual considerations. Sheathed in an ordered monolith of off-form concrete, precision cut-outs are subtly angled to reveal coloured reflective glass elements that reinterpret the autumnal tones of the brickwork in the neighbouring laneway. Akin to a block of stone being carved into, the mass references the lintel as a symbol of strength providing the structural framework for the building. Its unique island site allows the architecture to be expressed on all sides. The original Victorian terrace building addressing Dorcas Street has been restored and reinstated as an active commerce centre contributing to the streetscape and connecting with the neighbourhood, whilst housing private tenancies within. The Charles Street laneway references Richard Giblett’s paintings on the contemporary metropolis and reinterprets it into physical urban art using the materiality of Corten and various shades of steel. By night this intervention becomes illuminated, drawing similar ideas to the artwork of Dan Flavin, by painting the street surface with light. The illumination of Charles Street also creates a sense of safety through passive surveillance. Entry into the building occurs via John Street where mirrored glass and blackened metal elevate the sense of arrival. The Lobby interior mimics its colourful exterior with autumnal tones of mirrored glass. Above sits four levels of well-crafted one and two-bedroom apartments, offering clear views of Melbourne’s urban skyline. On the upper level, the Piccolo penthouse office reinforces the solidity of the building using silver travertine to make an appropriately elevated interior response to the overarching idea of stone being carved away. Imbued with the qualities of a high calibre residential project, the resulting palette is intentionally dark, timber, black and bronzed metal.

코르텐과 컬러 유리로 마감된 고품격 주거 공간, 피콜로 하우스
피콜로 하우스는 다중 이용 건축물로, 소매점, 접대, 상업용 공간과 더불어 고급 거주 공간으로 통합된 공간이다. 피콜로의 새로운 본사이기도 한 이 건축물은 시대가 남겨놓은 유산을 현시대의 도시와 어울리도록 리모델링 됐다. 정돈된 형태의 콘크리트 모놀리스로 덮인 파사드는 인접한 골목길에서 벽돌의 단풍 색조를 재해석하는 컬러 반사 유리 요소로 만들어졌다. 조각된 스톤 블록들과 유사한 형태는 건물의 구조적 틀을 강하게 드러낸다.
피콜로 하우스는 어떤 방향에서 보아도 알아볼 수 있다. 도르카스 거리를 주소로 하는 빅토리아 시대의 테라스 건물은 거리 풍경에 기여하고 주변의 활기를 주는 상업용 공간으로 사용되기도 하며, 개인적인 임대 공간도 마련되어 있다.
길을 따라, 코르텐이라는 물질이 주는 느낌과 다양하고 강하게 드러나는 철의 음영들은 건축물을 도시 예술로 보이게 만든다. 밤이 되면 파사드를 비추는 빛들이 거리를 덮어 도시를 댄 플라빈의 예술작품 같이 보이도록 한다. 이러한 조명은 골목을 밝게 비추고 활기를 가져오는 것으로 방범 효과도 있다.
존 스트리트를 통해 건물로 들어갈 때, 반사되는 유리와 검은 금속이 건물에 도착했음을 알려준다. 로비 내부는 거울 유리의 가을 색조로 화려한 외관을 모방한다. 위에는 멜버른의 도시 스카이라인이 선명하게 보이는 잘 꾸며진 1층과 2층짜리 아파트가 네 층으로 자리 잡고 있다. 위층에 있는 피콜로 펜트 하우스 사무실은 은색 트래버틴을 사용하여 건물의 견고함을 강화하고, 돌 조각에 대한 전반적인 아이디어에 대해 적절하게 높은 내부 반응을 만든다. 내부는 어두운색의 목재와 검정색과 청동색 금속이 높은 품질의 주거용 공간의 품격을 더하는 것처럼 보인다.



















Architects Wood Marsh
Location South Melboune, Victoria, Australia
Site area 4,000㎡
Building scope 6F
Principal architect Roger Wood, Randal Marsh
Project architect Roger Wood, Randal Marsh
Photographer Trevor Mein
해당 프로젝트는 건축문화 2022년 2월호(Vol. 489)에 게재되었습니다.
The project was published in the February, 2022 recent projects of the magazine(Vol. 489).
February 2022 : vol. 489
Contents : RECORDS THE NATIONAL MUSEUM OF MODERN AND CONTEMPORARY ART DISCLOSES PLANS FOR 2022 국립현대미술관 2022년 전시 계획 공개 : NEWS / COMPETITION / BOOKS : SKETCH THE QUIET..
anc.masilwide.com
'Architecture Project > Office' 카테고리의 다른 글
| Sevenlakes Office (0) | 2022.06.15 |
|---|---|
| The Field (0) | 2022.06.02 |
| THEAR (0) | 2022.04.29 |
| TOKYO TORCH Tokiwabashi Tower (0) | 2022.04.19 |
| EMK MUSICAL COMPANY (0) | 2022.04.18 |
마실와이드 | 등록번호 : 서울, 아03630 | 등록일자 : 2015년 03월 11일 | 마실와이드 | 발행ㆍ편집인 : 김명규 | 청소년보호책임자 : 최지희 | 발행소 : 서울시 마포구 월드컵로8길 45-8 1층 | 발행일자 : 매일



